|
  |
Подключение радиаторов к стояку гравитационной СО |
|
|
|
|
25.2.2014, 14:02
|
Группа: Участники форума
Сообщений: 33
Регистрация: 25.2.2014
Пользователь №: 224863

|
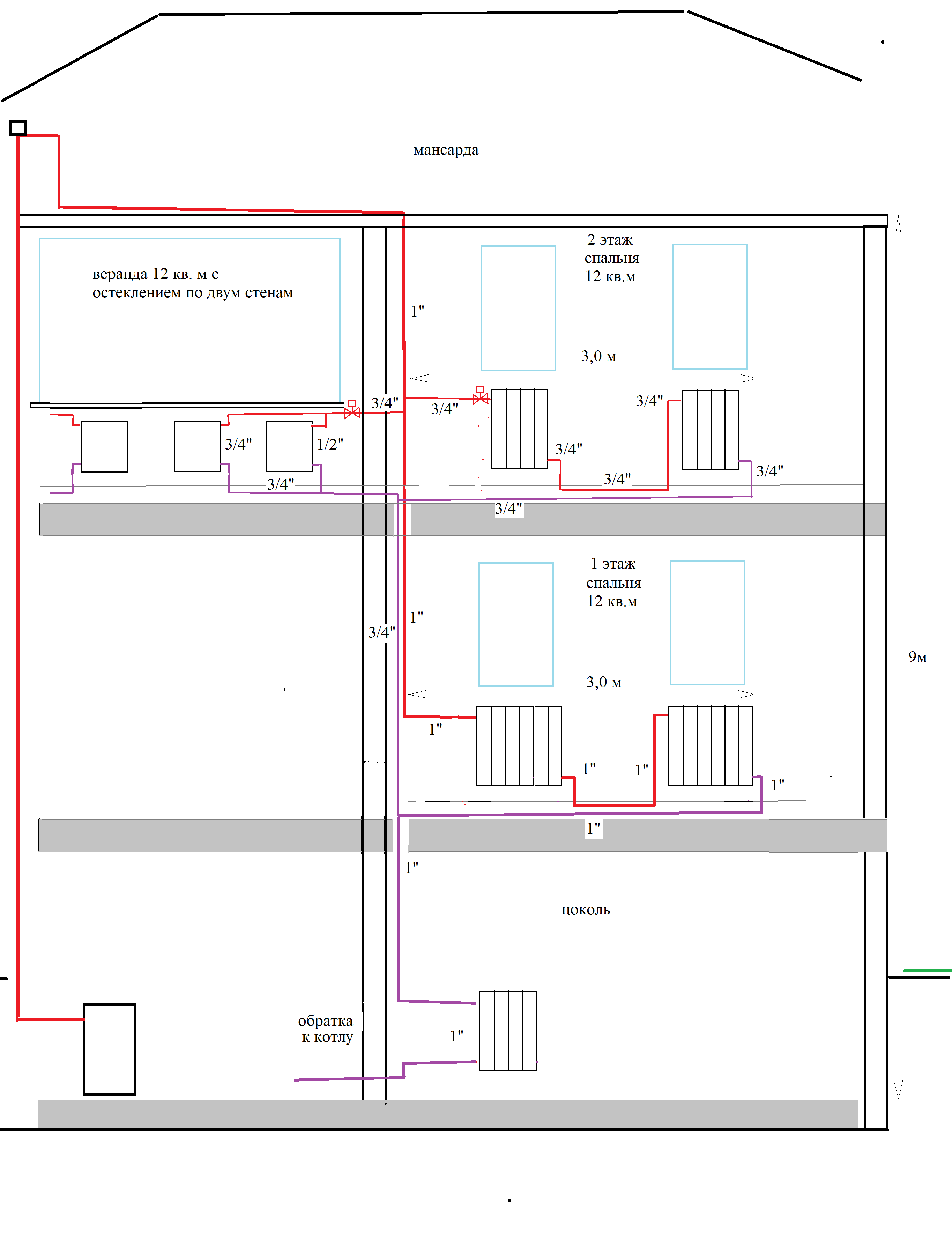
Уважаемые профессионалы. Пожалуйста, дайте оценку работоспособности такого варианта подключения радиаторов к стояку гравитационной СО. Сама система классическая - двухтрубная с ЕЦ, котлом в цоколе и верхним розливом по полу мансарды – главный стояк высотой 8,5 м Ду 62мм - два полукольца с попутным движением теплоносителя имеют по 3 стояка Ду=25мм (мощность ОП на каждом стояке 3,6-4,2кВт) на каждом полукольце. Путь, который теплоноситель проходит по горизонтали (розлив + отводы на радиаторы + лежак обратки) для каждого ОП составляет 27-32 м. т.е. в первом приближении система должна быть уравновешена. Скорость движения теплоносителя 0,1 м/с. Система (кроме обвязки котла) собирается на термостабилизированном армированном полипропилене и алюминиевых радиаторах. Для улучшения циркуляции (и обогрева мансарды) в лежаки розлива сверху врезаются несколько радиаторов. Наклоны лежаков 3-4 мм на метр. Главный стояк – полибутеновая труба (замуровывается в вентканал – отсюда предпочтение пластику – хочется сделать так, чтоб не ремонтировать). Планируемое подключение показано на рисунке. Подключение радиаторов веранды (слева) вопросов не вызывает – тут классические уклоны отводов подачи и обратки для самотека. Трубу подачи можно провести сверху под подоконником без ущерба внешнему виду. Смущает подключение радиаторов спален (справа на рисунке) – отвод подачи идет горизонтально в подпольном пространстве с вертикальными подъемами около 200 мм непосредственно перед радиаторами. Опасаюсь, что эти подъемы могут препятствовать затеканию теплоносителя в ОП, особенно для радиаторов 2 этажа, т.к. Ду стояка после врезки отводов 2 этажа не уменьшается (в соответствии с рекомендациями для систем с ЕЦ с целью уровнять условия циркуляции для ОП 2 и 1 этажей). По этой же причине отказался от диагонального подключения радиаторов – чтоб не увеличивать высоту вертикального участка подачи к ОП. На вторых (крайних) радиаторах каждой спальни планируются автоматические терморегуляторы. Насколько эти опасения основательны? Стоит ли сделать локальное сужение стояка ниже врезки отвода 2 этажа, например муфтами 32-25 и обратно 25-32, чтоб местным сопротивлением спровоцировать затекание теплоносителя в горизонтальный отвод подачи с вертикальным конечным участком? Может более правильно сделать последовательное подключение радиаторов – отвод от стояка на уровне верхнего подключения ОП – диагональное подключение 1-го радиатора – продолжение подачи под полом до 2 радиатора - подъем на 200мм – разностороннее нижнее подключение 2-го радиатора – обратка под полом? Правда при этом возможен приличный дисбаланс прогрева и теплоотачи между 1 и 2 ОП на каждом этаже.
Эскизы прикрепленных изображений
|
|
|
|
|
|
|
|
25.2.2014, 16:14
|
Группа: Участники форума
Сообщений: 5907
Регистрация: 12.10.2009
Из: Шантарск-Севастополь (пробегом)
Пользователь №: 39475

|
А-А-А!!! Сделано всё, чтобы простую и надежную гравитационную систему сделать максимально неработоспособной. "Много букаф" даже читать нет смысла - достаточно схемы. Не рассыпайтесь терминами и жаргонными словечками - лучше изучите физический смысл работы систем с естественной циркуляцией.
|
|
|
|
|
|
|
|
25.2.2014, 17:22
|
Группа: Участники форума
Сообщений: 33
Регистрация: 25.2.2014
Пользователь №: 224863

|
А будьте добры поподробнее. Это не схема системы, а часть схемы на которой показан один стояк из 6. С физическим смыслом разбирался перед этим пару месяцев. Ваше замечание просто обескураживает. Что здесь сделано настолько не так? Жаргонных словечек не употреблял - использовал только те которые встречаются при ваших же обсуждениях. Пожалуйста поясните по существу, не сочтите за труд, что не так, кроме отсутствия уклона отвода подачи к ОП?
|
|
|
|
|
|
|
|
25.2.2014, 18:37
|
Группа: Участники форума
Сообщений: 33
Регистрация: 25.2.2014
Пользователь №: 224863

|
Такой вариант подключения радиаторов к стояку, как мне кажется, вообще не содержит криминала с точки зрения гравитационной СО, кроме одного неудобства - отсутствие возможности регулирования температуры в спальне 1 этажа - понадобится байпас перед ОП с 3-ходовым краном Или эта схема тоже "А-а-а "? Подскажите пожалуйста.
Эскизы прикрепленных изображений
|
|
|
|
|
|
|
|
25.2.2014, 20:50
|
Группа: Участники форума
Сообщений: 7297
Регистрация: 27.5.2007
Пользователь №: 8854

|
Еще хлеще того. И термостаты появились...?
|
|
|
|
|
|
|
|
25.2.2014, 20:59
|
Группа: Участники форума
Сообщений: 33
Регистрация: 25.2.2014
Пользователь №: 224863

|
Да что не так-то?! Вентиль для однотрубной системы с термостатом имеет малое сопротивление в открытом состоянии, а при перекрытии подачи теплоносителя к ОП второго этажа весь поток спокойно идет в радиаторы первого. Двухтрубная система ведь и предназначена для возможности поэтажного регулирования СО с минимальной разбалансировкой. На всякий случай замечу что самый левый радиатор не соединяется с главным стояком, а питается от стояка не обозначенного на этом рисунке - это только часть схемы.
|
|
|
|
|
|
|
|
26.2.2014, 0:26
|
Группа: Участники форума
Сообщений: 2660
Регистрация: 20.3.2005
Пользователь №: 570

|
Цитата Да что не так-то?! Ну вы хотя бы не поленились и сравнили бы располагаемый гравитационный напор и потери давления в системе по вашей схеме. Это сняло бы все вопросы. Хотя, зная что такое гравитационная система и какие там бывают давления, видно и так, что, не потечет.
|
|
|
|
|
|
|
|
26.2.2014, 8:11
|
Группа: Участники форума
Сообщений: 2746
Регистрация: 18.9.2013
Из: СПб
Пользователь №: 206008

|
Цитата(Guerman @ 25.2.2014, 21:59)  Да что не так-то?! Вентиль для однотрубной системы с термостатом имеет малое сопротивление в открытом состоянии, а при перекрытии подачи теплоносителя к ОП второго этажа весь поток спокойно идет в радиаторы первого. Двухтрубная система ведь и предназначена для возможности поэтажного регулирования СО с минимальной разбалансировкой. На всякий случай замечу что самый левый радиатор не соединяется с главным стояком, а питается от стояка не обозначенного на этом рисунке - это только часть схемы. Между радиаторами спален "гидрозатвор", который запрёт систему. Почему на 2-ом этаже 3/4 дюйма, а на 1-ом 1 дюйм? Вода и пойдёт на первый этаж.
|
|
|
|
|
|
|
|
26.2.2014, 10:01
|
МОДЕРАТОР
Группа: Модераторы
Сообщений: 10995
Регистрация: 3.7.2004
Пользователь №: 32

|
автор, почитайте хоть это что-ли, для началу.. http://bibliofond.ru/view.aspx?id=550890#1там не сложно, главное понять что теплая вода только подымается, а холодная только опускается. и если теплая вода оказалась в ловушке - то она оттуда сама не уйдёт.
|
|
|
|
|
|
|
|
26.2.2014, 10:55
|
Группа: Участники форума
Сообщений: 33
Регистрация: 25.2.2014
Пользователь №: 224863

|
По поводу радиаторов спален у меня такие же опасения - именно поэтому я и обратился на форум практиков, чтоб подтвердить или снять свои сомнения. Хотя, как мне кажется, если делать систему закрытую с экспанзоматом то эффекта гидрозатвора не будет - непрерывный водяной поток без воздушных пробок должен сам себя "высасывать" из этого проблемного участка (как при сливе бензина шлангом) и двигаться в трубах за счет гравитационного давления (разница по высоте между котлом и ОП 2 этажа все-таки 6м (для 1 этажа - 3м), а одноуровневые гравитационные системы умудряются работать только за счет перепада температуры в радиаторах). Это вопрос о том, сможет ли гравитационное давление передавить сопротивление подъема на вертикальных участках подачи к ОП, насколько это критично. Как вариант можно ведь первый ОП подключать диагонально, а второй ОП снизу с двух сторон. но при этом прогрев 2 радиатора будет хуже первого из-за а) последовательного включения (но при этом последовательное включение этих радиаторов усилит циркуляцию в отводе и поможет продавить сопротивление вертикального участка) б)недиагонального, а нижнего включения (но тогда вертикальный участок сопротивления будет всего 150-200 мм, а не 700мм) Я и пытаюсь добиться ответа на вопрос какой из этих критериев более весомый, а вместо ответов получаю только междометия.
Разность по высоте между центром котла и центрами ОП 2 и 1 этажа разная, а ОП завязаны не последовательно а параллельно (верхние приборы не помогают циркуляции в нижних) соответственно условия для циркуляции в нижних хуже и поэтому им в учебниках советуют облегчать режим работы не зажимая диаметры стояков. Это то, что пишут везде о двухтрубной гравитационке в теории. О практике ничего не знаю. В одном из предыыдущих постов задал вопрос о необходимости локального сужения стояка сразу после врезки отвода радиатора спальни 2 этажа - местное повышение давления способствовало бы затеканию в отвод 2 этажа и не сильно ухудшало бы сопротивление подачи теплоносителя к 1 этажу, но про необходимость этого нигде в учебниках не пишут, а знатоки не отвечают
|
|
|
|
|
|
|
|
26.2.2014, 11:18
|
Группа: Участники форума
Сообщений: 2660
Регистрация: 20.3.2005
Пользователь №: 570

|
Цитата именно поэтому я и обратился на форум практиков Это вы не по адресу зашли. Вам надо на форумхаус сходить, вот там найдется много философов и "практиков" по рассуждать потечет или не потечет. Здесь не изобретают велосипеды подобно вашему и не конструируют системы на основании "кажется". Работоспособность системы определяется типовым подходом к ее применению с последующим ее расчетом, которого вы делать почему то не собираетесь, а хотите, чтобы участники форума определили правильность ваших решений. Но вода то не дура, и пойдет по пути наименьшего сопротивления, а не туда, куда как вам казалось и хотелось бы.
|
|
|
|
|
|
|
|
26.2.2014, 11:59
|
Группа: Участники форума
Сообщений: 33
Регистрация: 25.2.2014
Пользователь №: 224863

|
Указанную. контрольную работу я читал, как и методические указания. И то, что теплая вода поднимается яа холодная опускается я догадываюсь. Но в сообщающемся сосуде трехметровый столб опускающейся воды должен продавить (или увлечь за собой) десятисантиметровый столб который стремится остывая двигаться в обратном направлении. Да гравитационное давление на этом участке имеет обратный знак, но оно на порядок меньше общего двигателя Гравитационное давление для ОП 2 этажа будет порядка 900 Па, для ОП 1 - 500 Па. Ему же не надо преодолевать давление 15см водяного столба (для этого есть закон сообщающихся сосудов), ему надо лишь преодолеть обратное гравитационное давление вертикального участка подводки к ОП, разве не так?
|
|
|
|
|
|
|
|
26.2.2014, 12:38
|
Группа: Участники форума
Сообщений: 2660
Регистрация: 20.3.2005
Пользователь №: 570

|
Цитата ему надо лишь преодолеть обратное гравитационное давление вертикального участка подводки к ОП, разве не так? + потери на трение + потери на местные сопротивления при расчетном расходе теплоносителя - посчитайте их и сравните с располагаемым гравитационным давлением для дальнего ОП от стояка.
|
|
|
|
|
|
|
|
26.2.2014, 18:17
|
Группа: Участники форума
Сообщений: 7297
Регистрация: 27.5.2007
Пользователь №: 8854

|
Вот ведь неугомонный какой! Как бы помягче сказать-то. Понимаете ли - гравитационная или с принудительной циркуляцией СО должна проектироваться так, чтобы (неотъемлемое условие, не требующее расчетов) при открытии спускников весь теплоноситель из системы сливался. У Вас с правой стороны схемы первый по подключению в цепочку ОП всегда будет оставаться с водой по уровень нижней кромки входной врезки следующего ОП. Что уж там дальше обсуждать - непонятно. Ну Вы с азбуки начните, а потом уж - велком в группу изобретателей. У нас, в теплотеме Ежик недоволен будет такому "соратнику". Мы его защищаем от случайных попутчиков.
|
|
|
|
|
|
|
|
27.2.2014, 12:51
|
Группа: Участники форума
Сообщений: 2746
Регистрация: 18.9.2013
Из: СПб
Пользователь №: 206008

|
Цитата(Guerman @ 26.2.2014, 12:59)  Указанную. контрольную работу я читал, как и методические указания. И то, что теплая вода поднимается яа холодная опускается я догадываюсь. Но в сообщающемся сосуде трехметровый столб опускающейся воды должен продавить (или увлечь за собой) десятисантиметровый столб который стремится остывая двигаться в обратном направлении. Да гравитационное давление на этом участке имеет обратный знак, но оно на порядок меньше общего двигателя Гравитационное давление для ОП 2 этажа будет порядка 900 Па, для ОП 1 - 500 Па. Ему же не надо преодолевать давление 15см водяного столба (для этого есть закон сообщающихся сосудов), ему надо лишь преодолеть обратное гравитационное давление вертикального участка подводки к ОП, разве не так? Движущей силой в СО с естественной циркуляцией является разница плотностей горячей и холодной воды, умноженных на высоту от котла до расширительного бака.
|
|
|
|
|
|
|
|
27.2.2014, 13:36
|
МОДЕРАТОР
Группа: Модераторы
Сообщений: 10995
Регистрация: 3.7.2004
Пользователь №: 32

|
автор не понимает, что в любой системе отопления будут генерироваться газы. сейчас безразлично какие именно, но будут. в нормальной СО с высокими скоростями поток вытаскивается все газы к воздухосбрникам и к воздухоотводчикам. в гравитационной СО такой силы, кроме гравитации - нет, не было и не будет.
поэтому все трубопроводы должны иметь уклон обеспечивающий удаление воздуха, недопустимы участки подъема без воздухосборников и без автоматических воздухоотводчиков.
ну и тщательный расчет.
p.s. термоголовки почти наверняка работать не смогут, посмотрите диаграммы расход/давление на рег.вентили и если все же найдёте обладающие нужным квс то брать придётся трехходовые, разделящие но и в любом случае где-то должен быть охладитель достаточной мощности чтобы снимать избыток тепла. в ГСО два источника движущей силы: 1 - нагреватель, 2 - охладитель
|
|
|
|
|
|
|
|
27.2.2014, 14:06
|
Группа: Участники форума
Сообщений: 1505
Регистрация: 7.12.2009
Из: Москва
Пользователь №: 41921

|
Если, по простому: автор, вода -она-ж не дура, зачем ей затекать в радиаторы 2-го этажа и течь 3 метра в сторону, а затем и назад, если можно совершенно спокойно плюхнуться на 1-й этаж?
ну и вообще... чем не нравится схема с насосом?
|
|
|
|
|
|
|
|
27.2.2014, 21:08
|
Группа: Участники форума
Сообщений: 7297
Регистрация: 27.5.2007
Пользователь №: 8854

|
Цитата(Лыткин @ 27.2.2014, 9:51)  Движущей силой в СО с естественной циркуляцией является разница плотностей горячей и холодной воды, умноженных на высоту от котла до расширительного бака.  Ну вот напихали тумаков мешок так, что они вываливаться стали. Ващето есть такое понятие, как разница высот между центром нагревания и центром охлаждения. А то товарищ может подумать, что если расширительный бак высотой с башню задрать, то будет такая тяга, что чохочешь протянет...
|
|
|
|
|
|
|
|
28.2.2014, 8:26
|
МОДЕРАТОР
Группа: Модераторы
Сообщений: 10995
Регистрация: 3.7.2004
Пользователь №: 32

|
Цитата если расширительный бак высотой с башню задрать, то будет такая тяга, что чохочешь протянет... (занудным голосом) это так и есть потомучто на вертикальном участке от котла вверх тягу создает не только дельта Тэ но и пузырьки всевозможных газов и пара. чего больше - это бооольшой вопрос
|
|
|
|
|
|
|
|
28.2.2014, 10:43
|
Группа: Участники форума
Сообщений: 7297
Регистрация: 27.5.2007
Пользователь №: 8854

|
Тяга с помощью пузырьков- это сильно  Надо эту хохму на заметку взять.
|
|
|
|
|
|
|
|
28.2.2014, 18:19
|
МОДЕРАТОР
Группа: Модераторы
Сообщений: 10995
Регистрация: 3.7.2004
Пользователь №: 32

|
я так понимаю, что есть сомнения?
|
|
|
|
|
|
|
|
28.2.2014, 18:25
|
Группа: Участники форума
Сообщений: 4373
Регистрация: 4.12.2006
Из: Klaipeda
Пользователь №: 5034

|
Цитата(LordN @ 28.2.2014, 19:19)  я так понимаю, что есть сомнения?  Ну не сомнения, скорее здоровый инженерный скептицизм )
|
|
|
|
|
|
|
|
28.2.2014, 19:00
|
МОДЕРАТОР
Группа: Модераторы
Сообщений: 10995
Регистрация: 3.7.2004
Пользователь №: 32

|
ну так загляните в любую, вышедшую на режим, ГСО. вернее в её расширительный бачок. если он сделан правильно - то всё видно очень и очень хорошо  я не фантаст, я просто учился в одном из лучших универов СССР на одном лучших факультетов.
|
|
|
|
|
|
|
|
28.2.2014, 21:20
|
Группа: Участники форума
Сообщений: 7297
Регистрация: 27.5.2007
Пользователь №: 8854

|
Цитата(LordN @ 28.2.2014, 17:00)  я не фантаст, я просто учился в одном из лучших универов СССР на одном лучших факультетов. ...? А я думал - шутите. Вы, часом, расширительный бак с т.н. разгонной петлей не перепутали? Вот убирите ее и представленная схема превратится в кипятильник, а не в СО. , с давлением в котле, равным высоте "задратия" РБ. Эх...
Сообщение отредактировал испытатель - 28.2.2014, 21:20
Эскизы прикрепленных изображений
|
|
|
|
|
|
|
|
28.2.2014, 21:34
|
МОДЕРАТОР
Группа: Модераторы
Сообщений: 10995
Регистрация: 3.7.2004
Пользователь №: 32

|
иногда у меня возникает ощущение, что нынешние инженеры за терминами не видят сути физических явлений. разгонная петля... не идёт в голову еще какая-то аналогичная благоглупость того же порядка.. что ужасает - их как грязи. какая-то мистика вместо физики и обоснований. удручает.
|
|
|
|
|
|
|
|
28.2.2014, 21:43
|
Группа: Участники форума
Сообщений: 7297
Регистрация: 27.5.2007
Пользователь №: 8854

|
Оп-па. А Вы попробуйте своими руками, чтобы убедиться к кому относится Ваш спитч. А лучше начните с букваря и приведите из него картинку к формуле dP=h(Yг-Yх). К расширителю бачку или к СО эта "таинственная" h относится
Сообщение отредактировал испытатель - 28.2.2014, 21:48
|
|
|
|
|
|
|
|
28.2.2014, 22:14
|
проектировщик ТМ (фриланс)
Группа: Участники форума
Сообщений: 4032
Регистрация: 13.3.2005
Из: Череповец - СПБ - Воронеж - Геленджик
Пользователь №: 543

|
думается мне, что LordN пытается донести, что в вертикальном участке после котла не только гравитационные силы являются побуждающими поток к движению, а ещё и пузырьки пара (газа), которые образуются на поверхностях нагрева, срываются потоком и уносятся в систему. Не знаю как в этом плане умные котлы с регулируемой температурой воды в котле, но вот у бабушки в доме водяное отопление так и работало... руская печь, и через топку проходила труба. конечно же вода в ней кипела. сразу за печкой подъём трубы вверх. и эта кипящая субстанция очень с сильными звуками поднималась в расширительный бачек. система была атмосферная, и четко слышно было, как бурлит вода в верхнем бачке.
|
|
|
|
|
|
|
|
1.3.2014, 0:09
|
Группа: Участники форума
Сообщений: 7297
Регистрация: 27.5.2007
Пользователь №: 8854

|
От вертикального подъемного стояка трубы монтируются с уклоном вниз и все т.н. "пузырьки подъема перепада давления" пролетают мимо опусков и выходят в расширительный бак, а в систему не попадают. Что-то я такие уж элементарные вещи обсуждаю даже неудобно. Все подзабыли как строили гравитационки или это возрастное? Я их переделал - до тошноты, вспоминать смешно. Один теоретик, было дело, печь под уклоном сложил и уверял , что так тяга много лучше (хотя ложил явно под мухой). Аргументация похожая была- ты физику знаешь-теплый воздух поднимается и тяга в печи увеличивается. Ну по башке настучал теоретику, слова кончились.
Сообщение отредактировал испытатель - 1.3.2014, 0:12
|
|
|
|
|
|
|
|
1.3.2014, 1:07
|
Группа: Участники форума
Сообщений: 33
Регистрация: 25.2.2014
Пользователь №: 224863

|
Уважаемые господа По вашим советам и методическим рекомендациям в которые вы меня дружно ткнули я рассчитал потери всей системы
Длина кольца Потери трения Суммарный КМП Потери местн. сопр. Общие потери 1стояк (ю-з) 1 этаж 43,5м 255Па 25,3 148Па 404 2 этаж 44,3м 275Па 37,6 221Па 496 2 стояк (сев) 1 этаж 44,8м 230Па 28,9 170Па 400 2 этаж 46,9м 254Па 39,3 230Па 484 3 стояк (с-з) 1 этаж 44,4м 237Па 28,7 168Па 405 2 этаж 44,8м 262Па 39,4 231Па 493 4 стояк (с-в) однотруб 51м 366Па 42,3 248Па 614 на оба этажа 5 стояк (в) 1 этаж 39,4м 215Па 34,3 201Па 416 2 этаж 47,3м 332Па 49,2 289Па 621 6 стояк (ю) 1 этаж 37,6м 208Па 36,4 213Па 421 2 этаж 38,5м 244Па 44,3 260Па 504
Получается при расчетной V=0,1 м/с эмпирически разработанная система достаточно хорошо сбалансирована, потери в кольцах 1 этажа - 400 Па при располагаемом давлении для ОП 1 этажа 350+50...100 =400...450 Па 2 этажа - 500-600 Па при располагаемом давлении для ОП 2 этажа 750+50...100 = 800...850 Па (добавочное гравитационное давление взял меньше, т.к. меньше теплопотери стояков и раздачи из PPR). Я не стал учитывать что на раздаче на мансарде предполагается врезка нескольких радиаторов для охлаждения теплоносителя
Кольца 1 этажа действительно требуют бережного отношения к местным сопротивлениям - придется по возможности все подводки спрямлять. А для ОП 2 этажа ситуация обратная - гравитационное давление в полтора раза превышает потери давления в кольцах (в соответствии с расчетами), поэтому 3-4 лишних колен во благо красоты не должны быть критичными. Сужать Ду подводки ОП 2 этажа нет смысла, т.к. полипропилен гидравлически гладок, и увеличить сопротивление линейными потерями больше чем на 100Па не удастся, а для расчетной скорости сужение приведет к нехватки теплоносителя. В этой ситуации термовентиль в ОП второго этажа с Кv 2,1-2,3 (кмс=45-60) поднимет потери сопротивление кольца до требуемых 750-800 Па Это вентили типа comap 805 GD или Danfos RA-G с преднастройкой 2-3 градуса добавят и нужное сопротивление и удобство эксплуатации системы - жарко ведь чаще всего на 2 этаже.
Поэтому я, честно говоря, не понимаю нескольких знатоков , которые показывают что я несу несусветную чушь. Остаток воды при сливе в трех горизонтальных метровых участках трубы не кажется большой проблемой. Кроме того в литературе, к которой вы так активно отсылаете для одноуровневых гравитационных систем (с малым перепадом высоты между котлом и ОП) даже есть рекомендация подключать все радиаторы диагонально и последовательно, в этом случае сами радиаторы будут работать как дополнительные гравитационные насосы (первоначально я планировал параллельное подключение на отводе снизу - понял что это неправильно). Кран Маевского на радиаторе тоже никто не отменял (на стояке предусмотрен возухоотводчик, но воздух из этих радиаторов к нему не пройдет, я это понимаю.
Один невыясненный вопрос у меня остался - в цоколе почти на каждом стояке обратки (общем для ОП 1 и 2 этажа) я планирую радиатор по однотрубной схеме. Как будет себя этот радиатор вести - он будет уравнивать циркуляцию колец 1 и 2 этажа на общем для них участке, т.е. перераспределять избыток циркуляционного гравитационного давления кольца 2 этажа в кольцо 1 этажа (поток воды из кольца 2 этажа будет тянуть (увлекать за собой) воду из кольца 1 этажа, увеличивая в нем циркуляционное давление)? Или не гадать а в расчетах просто тупо снизить центр ОП относительно котла пропорционально теплоотдаче, и понизить на 5 градусов температуру обратки?
|
|
|
|
|
|
|
|
1.3.2014, 7:19
|
Группа: Участники форума
Сообщений: 5907
Регистрация: 12.10.2009
Из: Шантарск-Севастополь (пробегом)
Пользователь №: 39475

|
Цитата Поэтому я, честно говоря, не понимаю нескольких знатоков , которые показывают что я несу несусветную чушь Со временем поймете, когда отрывочные сведения будут замещаться знанием. Для этого совершенно недостаточно проглядеть одну методичку для студенческих контрольных работ. Цитата dP=h(Yг-Yх). К расширителю бачку или к СО эта "таинственная" h относится Вообще-то эта "h" относится к каждому отдельному элементу СО. Вода нагревается только в котле. Уже после выхода из котла вода начинает остывать. На вертикальном участке до РБ вода также остывает (хоть и немного) и на этом главном стояке создается противодавление, потому его и надо изолировать. И далее каждый отдельный участок также остывает. На нем создается положительное или отрицательное гравитационное давление в зависимости от разности отметок начала и конца участка. Пусть по абсолютной величине оно небольшое, но есть. В результате для каждого циркуляционного кольца получится своё располагаемое давление. "Геометрическая" сумма давлений участков и определит общее располагаемое давление в СО, а совсем не Цитата разница плотностей горячей и холодной воды, умноженных на высоту от котла до расширительного бака Сколько воды потечет через каждое циркуляционное кольцо - зависит от его "личного" располагаемого давления и характеристики сопротивления. Кроме того, гравитационная система почти всегда работает в нестационарном режиме. Температура в помещениях изменяется - изменяется теплоотдача элементов СО - изменяется гравитационное давление - изменяется расход. При "слишком сильном" охлаждении помещения циркуляция через ОП этого помещения увеличится, при его перегреве - уменьшится. Это замечательное свойство гравитационной системы - саморегулирование безо всяких термостатов. Циркуляционный расход в гравитационной СО в целом также переменный. В охлажденной системе он нулевой или близкий к нулю. При растопке котла, через который нет постоянного протока воды, вода в трубках действительно может закипеть и с "бульканьем" подниматься в РБ. Да, в этот момент пузырьки пара действительно увлекают воду в РБ, а сами там удаляются в атмосферу. Но до кипения воду лучше не доводить, разогревать надо постепенно. Вот на этот момент мог бы пригодиться "разгонный" насосик.
|
|
|
|
|
|
|
  |
1 чел. читают эту тему (гостей: 1, скрытых пользователей: 0)
Пользователей: 0
|
|
Реклама
ООО «Арктика групп» ИНН: 7713634274 | erid 2VtzqvpbUMg
ООО «УНИСПЛИТ» ИНН: 6453155081 erid:2VtzqxNcYBM
Реклама: ООО «СЛ-ЛАЗЕР» ИНН 7727447267 | erid: 2VtzqvEDgM7

Реклама: ООО «Зет-Логист» ИНН 5401982392 | erid: 2Vtzqw44UH9
Последние сообщения Форума
|