Реклама / ООО «ИЗОЛПРОЕКТ» / ИНН: 7725566484 | ERID: 2VtzqvfExCR
IPB IPB
Проектирование, монтаж, наладка, сервис


Здравствуйте, гость ( Вход | Регистрация )

- Стандарт НП «АВОК» 7.11-2024
«Рекомендации по проектированию инженерных систем
дошкольных образовательных организаций»

АВОК в соц. сетях
ИНН: 7714824045 | erid: 2VtzqwzKQiU
> расчет ограждающей конструкции, сопротивление теплопередаче стены
Yuliya_g1
сообщение 30.6.2009, 15:49
Сообщение #1





Группа: Участники форума
Сообщений: 21
Регистрация: 6.3.2008
Из: г.Вологда
Пользователь №: 16309



Есть конструкция стены. Сделали т/тех. расчет как однородной конструкции с последовательно расположенными однородными слоями. На что нам ответили, что эданная конструкция не однородна. Сделали другой расчет. После которого мне сказали что это стена с теплопроводными включениями. Правильно ли это? Если нет, то как доказать обратное?
Прикрепленные файлы
Прикрепленный файл  сечение_стены.dwg ( 131,5 килобайт ) Кол-во скачиваний: 468
Прикрепленный файл  расчет_стены.doc ( 95 килобайт ) Кол-во скачиваний: 278
 
Вернуться в начало страницы
 
+Ответить с цитированием данного сообщения
 
Открыть тему
Ответов (1 - 5)
JJJJ
сообщение 30.6.2009, 16:38
Сообщение #2


Нет ничего невозможного если Заказчик адекватен и при деньгах


Группа: Участники форума
Сообщений: 2460
Регистрация: 13.7.2007
Из: Московская обл.
Пользователь №: 9997



Цитата(Yuliya_g1 @ 30.6.2009, 12:49) [snapback]405646[/snapback]
Есть конструкция стены. Сделали т/тех. расчет как однородной конструкции с последовательно расположенными однородными слоями. На что нам ответили, что эданная конструкция не однородна. Сделали другой расчет. После которого мне сказали что это стена с теплопроводными включениями. Правильно ли это? Если нет, то как доказать обратное?

Однородная конструкция без теплопроводных включений.
Доказательство - расчет термического сопротивления RI и RII. Если RI = RII, то конструкция однородна, а на счет теплопроводных включений - пусть покажут на разрезе где они эти включения.
Вернуться в начало страницы
 
+Ответить с цитированием данного сообщения
ivan-l-ing
сообщение 30.6.2009, 18:35
Сообщение #3


техник ОВ


Группа: Участники форума
Сообщений: 3827
Регистрация: 17.4.2007
Из: Санкт-Петербург
Пользователь №: 7201



А вот на мой взгляд замечание абсолютно уместно. Однородность этой контсрукции низкая и следствие не эффективное использование свойств утеплителя, вести расчет исходя из условия однородности утеплителя неправильно ибо секущие плоскости не отображают того, что утеплитель проложен с разрывом.
Как то я читал вроде авоковскую статейку где расчет велся и в качестве теплопроводных включении были болты и кронштейны.
Вернуться в начало страницы
 
+Ответить с цитированием данного сообщения
PaPaZoo
сообщение 1.7.2009, 6:40
Сообщение #4





Группа: Участники форума
Сообщений: 62
Регистрация: 18.11.2008
Из: Екатеринбург
Пользователь №: 25466



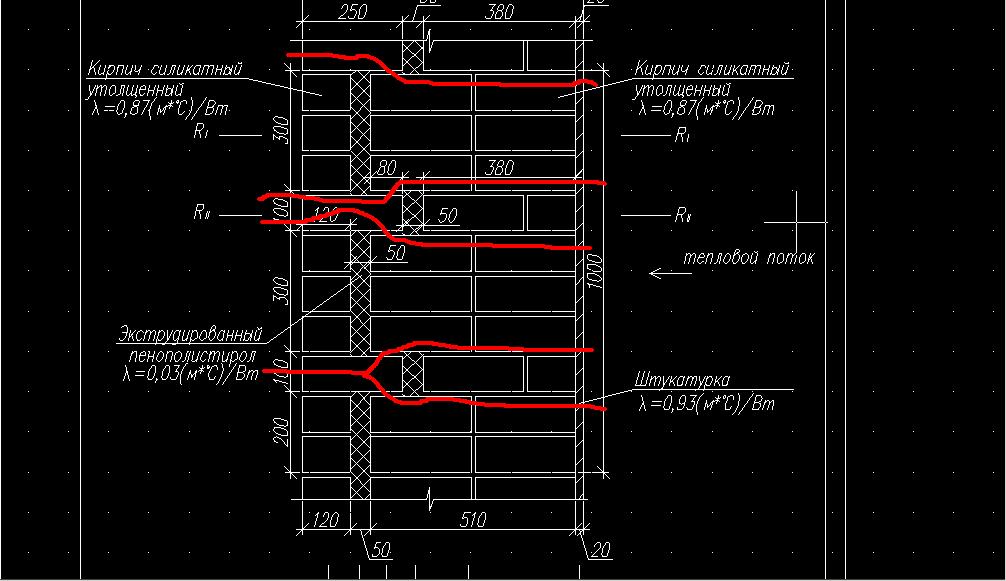
Я считаю что теплопроводные включения есть (показал их на рисунке) тепло будет уходить через кирпич. Считаю что конструкция неоднородна.

Сообщение отредактировал PaPaZoo - 1.7.2009, 6:41
Эскизы прикрепленных изображений
Прикрепленное изображение
 
Вернуться в начало страницы
 
+Ответить с цитированием данного сообщения
Yuliya_g1
сообщение 1.7.2009, 8:04
Сообщение #5





Группа: Участники форума
Сообщений: 21
Регистрация: 6.3.2008
Из: г.Вологда
Пользователь №: 16309



Сделали следующий расчет. верен ли он?
Прикрепленные файлы
Прикрепленный файл  тепло_стена.doc ( 301 килобайт ) Кол-во скачиваний: 6520
 
Вернуться в начало страницы
 
+Ответить с цитированием данного сообщения
ivan-l-ing
сообщение 2.7.2009, 16:40
Сообщение #6


техник ОВ


Группа: Участники форума
Сообщений: 3827
Регистрация: 17.4.2007
Из: Санкт-Петербург
Пользователь №: 7201



Не скромный вопрос, а вот эти пол кирпича с обработкой TSM Ceramic это что так через каждые три ряда макать? Помоему в плане производства работ это не стенка, а сплошной гемор.
Вернуться в начало страницы
 
+Ответить с цитированием данного сообщения

Добавить ответ в эту темуОткрыть тему
1 чел. читают эту тему (гостей: 1, скрытых пользователей: 0)
Пользователей: 0

 

Реклама
ООО «Арктика групп» ИНН: 7713634274




Реклама: ООО «СибСтронг» | ИНН 6670013662 | ERID: 2VtzqvdgiCU

ООО «УНИСПЛИТ» ИНН: 6453155081 erid:2VtzqwGt2gw
Реклама: ООО «СЛ-ЛАЗЕР» ИНН 7727447267 | erid: 2VtzqvY3G2W

Реклама: ООО «НовоКС» | ИНН 6330071530 | erid: 2VtzqwMVijq
Последние сообщения Форума






RSS Текстовая версия Сейчас: 30.11.2025, 9:58
Политика ООО ИИП «АВОК-ПРЕСС» в отношении обработки персональных данных