Реклама / ООО «ИЗОЛПРОЕКТ» / ИНН: 7725566484 | ERID: 2VtzqvfExCR
IPB IPB
Проектирование, монтаж, наладка, сервис


Здравствуйте, гость ( Вход | Регистрация )

- Стандарт НП «АВОК» 7.11-2024
«Рекомендации по проектированию инженерных систем
дошкольных образовательных организаций»

АВОК в соц. сетях
ИНН: 7714824045 | erid: 2VtzqwzKQiU
> вопрос по размещению насосов
ssn
сообщение 23.9.2016, 15:23
Сообщение #1


проектировщик ТМ (фриланс)


Группа: Участники форума
Сообщений: 4032
Регистрация: 13.3.2005
Из: Череповец - СПБ - Воронеж - Геленджик
Пользователь №: 543



чаще всего для ИТП отводится достаточно мало места. приходится искать варианты размещения достаточно плотные.
обычно применял схему размещения насосов мелких один над другим.
Получил в МОЭК замечание, делать так нельзя, вода при смене насоса выльется на внизу стоящий и все пропало сразу.
На мой взгляд, какое то надуманное замечание.

хочу спросить, кто что думает по этому поводу
Эскизы прикрепленных изображений
Прикрепленное изображение
 
Вернуться в начало страницы
 
+Ответить с цитированием данного сообщения
 
Открыть тему
Ответов (1 - 16)
HeatServ
сообщение 23.9.2016, 15:34
Сообщение #2


Не по вкусу пряник, не по чину мундир.


Группа: Участники форума
Сообщений: 50453
Регистрация: 24.4.2009
Пользователь №: 32666



Цитата(ssn @ 23.9.2016, 15:23) *
чаще всего для ИТП отводится достаточно мало места. приходится искать варианты размещения достаточно плотные.
обычно применял схему размещения насосов мелких один над другим.
Получил в МОЭК замечание, делать так нельзя, вода при смене насоса выльется на внизу стоящий и все пропало сразу.
На мой взгляд, какое то надуманное замечание.

хочу спросить, кто что думает по этому поводу
По поводу один над другим, думаю, высосано из пальца, а вот коробки у четырёх насосов внизу - явное нарушение требований монтажа.
Вернуться в начало страницы
 
+Ответить с цитированием данного сообщения
timofeyprof
сообщение 23.9.2016, 15:35
Сообщение #3





Группа: Участники форума
Сообщений: 3385
Регистрация: 22.7.2009
Пользователь №: 36382



Цитата(ssn @ 23.9.2016, 16:23) *
чаще всего для ИТП отводится достаточно мало места. приходится искать варианты размещения достаточно плотные.
обычно применял схему размещения насосов мелких один над другим.
Получил в МОЭК замечание, делать так нельзя, вода при смене насоса выльется на внизу стоящий и все пропало сразу.
На мой взгляд, какое то надуманное замечание.

хочу спросить, кто что думает по этому поводу

конечно надумано: спусники есть, воду слили, а капли воды не страшны насосам с IP55, какие у вас скорее всего и заложены.
МОЭК был бы не МОЭК, если бы не придумывыл новые замечания
Вернуться в начало страницы
 
+Ответить с цитированием данного сообщения
ssn
сообщение 23.9.2016, 15:39
Сообщение #4


проектировщик ТМ (фриланс)


Группа: Участники форума
Сообщений: 4032
Регистрация: 13.3.2005
Из: Череповец - СПБ - Воронеж - Геленджик
Пользователь №: 543



коробки вниз это 3Д модели оборудования. резать модели и вертеть коробки вверх в проекте не очень охота.
надеюсь на соблюдение монтажниками правил из паспорта насоса.

А насосы на самом деле IPХ5, т.е. по воде - 5, не боятся обрызгивания.
и ведь так и не смог победить (убедить). в одном проекте пошли на глупый компромис - установили под насосами лотки. я все думал, согласятся с таким моразмом - согласились ))))

но вот следующий проект на согласовании (делались в одно время), и тут как увидели насосы эти - нет, теперь не согласуем точно.


Сообщение отредактировал ssn - 23.9.2016, 15:42
Эскизы прикрепленных изображений
Прикрепленное изображение
 
Вернуться в начало страницы
 
+Ответить с цитированием данного сообщения
timofeyprof
сообщение 23.9.2016, 15:42
Сообщение #5





Группа: Участники форума
Сообщений: 3385
Регистрация: 22.7.2009
Пользователь №: 36382



Цитата(ssn @ 23.9.2016, 16:39) *
коробки вниз это 3Д модели оборудования. резать модели и вертеть коробки вверх в проекте не очень охота.
надеюсь на соблюдение монтажниками правил из паспорта насоса.

повернуть на 180 насосы целиком. направление стрелки на корпусе в чертежах никто не увидит.
Вернуться в начало страницы
 
+Ответить с цитированием данного сообщения
ssn
сообщение 23.9.2016, 15:44
Сообщение #6


проектировщик ТМ (фриланс)


Группа: Участники форума
Сообщений: 4032
Регистрация: 13.3.2005
Из: Череповец - СПБ - Воронеж - Геленджик
Пользователь №: 543



ну не получится (бывает насос в план попадает, а там же профиль внизу разный, видно где всас у насоса), да и не красиво так делать, чаще всего передаю модель.
хотя, замечание конечно верное, надо добавить в общие указания по умолчанию запись про это дело...

Сообщение отредактировал ssn - 23.9.2016, 15:45
Вернуться в начало страницы
 
+Ответить с цитированием данного сообщения
ssn
сообщение 26.9.2017, 15:27
Сообщение #7


проектировщик ТМ (фриланс)


Группа: Участники форума
Сообщений: 4032
Регистрация: 13.3.2005
Из: Череповец - СПБ - Воронеж - Геленджик
Пользователь №: 543



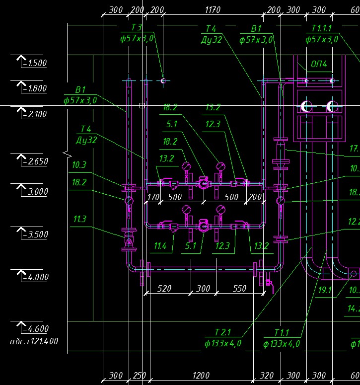
возвращаюсь к теме такого размещения насосов.
МОЭК опять пишет замечания про такое размещение.

причем, какая то у них странная логика. если развернуть линии насосов вертикально, то все по их мнению ОК.
Хотя. тогда выходит, что над насосами фильтры, и что бы их почистить, из них надо брызгать водой. и о ужас, она опять попадает на насосы.

все боятся таджиков, которые ворвутся в ИТП и все сломают и зальют.

Всем такие замечания пишут? или есть какой то хитрый способ размещения таких насосов без опасности попадания воды на двигатель и компактно?
Эскизы прикрепленных изображений
Прикрепленное изображение
 
Вернуться в начало страницы
 
+Ответить с цитированием данного сообщения
ivan-l-ing
сообщение 26.9.2017, 16:20
Сообщение #8


техник ОВ


Группа: Участники форума
Сообщений: 3827
Регистрация: 17.4.2007
Из: Санкт-Петербург
Пользователь №: 7201



попробуй в разбежку мм на 200 насосы воткнуть, визуально будут не друг над другом, но конечно чушь
Вернуться в начало страницы
 
+Ответить с цитированием данного сообщения
Амиго
сообщение 26.9.2017, 16:31
Сообщение #9





Группа: Участники форума
Сообщений: 4812
Регистрация: 17.3.2008
Пользователь №: 16585



током перемкнет кого нить. там ж токоприемник.

В РФ ставлю сдвоенные насосы. В мск по горизонтали разношу.
Вернуться в начало страницы
 
+Ответить с цитированием данного сообщения
ssn
сообщение 26.9.2017, 16:50
Сообщение #10


проектировщик ТМ (фриланс)


Группа: Участники форума
Сообщений: 4032
Регистрация: 13.3.2005
Из: Череповец - СПБ - Воронеж - Геленджик
Пользователь №: 543



т.е. у нижнего насоса сделать вынос от стены грубо говоря на 100 мм больше? вариант...

а почему током долбанёт? при каком режиме эксплуатации такое возможно? так же можно про всё электро оборудование ИТП сказать - потенциально током долбанёт.

Сообщение отредактировал ssn - 26.9.2017, 16:51
Вернуться в начало страницы
 
+Ответить с цитированием данного сообщения
испытатель
сообщение 26.9.2017, 17:07
Сообщение #11





Группа: Участники форума
Сообщений: 7297
Регистрация: 27.5.2007
Пользователь №: 8854



Всегда в ТТ чертежей записываю установку насосов и расходомеров "в разбежку". Особое внимание на фильтры. Так нельзя имхо. Я бы их вертикально на нисходящей установил.
Вернуться в начало страницы
 
+Ответить с цитированием данного сообщения
Wiz
сообщение 26.9.2017, 17:13
Сообщение #12





Группа: Участники форума
Сообщений: 2660
Регистрация: 20.3.2005
Пользователь №: 570



Цитата
Всем такие замечания пишут?

Ага и только в МОЭК. Видимо фишка какая-то новая с недавнего времени. Мосэнерго на это внимание не обращает.
Вернуться в начало страницы
 
+Ответить с цитированием данного сообщения
ssn
сообщение 26.9.2017, 17:23
Сообщение #13


проектировщик ТМ (фриланс)


Группа: Участники форума
Сообщений: 4032
Регистрация: 13.3.2005
Из: Череповец - СПБ - Воронеж - Геленджик
Пользователь №: 543



Цитата(испытатель @ 26.9.2017, 17:07) *
Всегда в ТТ чертежей записываю установку насосов и расходомеров "в разбежку". Особое внимание на фильтры. Так нельзя имхо. Я бы их вертикально на нисходящей установил.


ну... ставим насосы на вертикальной на нисходящей. И получаем, что фильтры выше насосов. И при их прочистке, вода так же будет лететь на насосы (причём будет попадать на насос стекая по трубам со 100% вероятностью). Но "вертикальная" установка не вызывает вопросов МОЭК.

Сообщение отредактировал ssn - 26.9.2017, 17:24
Вернуться в начало страницы
 
+Ответить с цитированием данного сообщения
испытатель
сообщение 26.9.2017, 17:52
Сообщение #14





Группа: Участники форума
Сообщений: 7297
Регистрация: 27.5.2007
Пользователь №: 8854



Я про фильтры до насосов. Вы неправильно поняли.
Вернуться в начало страницы
 
+Ответить с цитированием данного сообщения
Амиго
сообщение 26.9.2017, 17:58
Сообщение #15





Группа: Участники форума
Сообщений: 4812
Регистрация: 17.3.2008
Пользователь №: 16585



Цитата
т.е. у нижнего насоса сделать вынос от стены грубо говоря на 100 мм больше? вариант...

а почему током долбанёт? при каком режиме эксплуатации такое возможно? так же можно про всё электро оборудование ИТП сказать - потенциально током долбанёт

ага. тот что ниже подальше от стены.
ну там коробка к ней 220 или 380 подходит. Опасно. Больше там ж нет ничего.
С другой стороны... Мне один раз сказали так не делать. Я так не делаю. )
Вернуться в начало страницы
 
+Ответить с цитированием данного сообщения
ssn
сообщение 26.9.2017, 18:35
Сообщение #16


проектировщик ТМ (фриланс)


Группа: Участники форума
Сообщений: 4032
Регистрация: 13.3.2005
Из: Череповец - СПБ - Воронеж - Геленджик
Пользователь №: 543



Цитата(Амиго @ 26.9.2017, 17:58) *
С другой стороны... Мне один раз сказали так не делать. Я так не делаю. )

с одной стороны правильно. с другой стороны, стандартное размещение пары насосов (по крайней мере у меня). возможно надо пересмотреть.
380 и 220 там ко всему оборудованию подходит. и к насосам, и к рег клапанам (если они 220). кругом опасность. но это техническое помещение и доступ в него только обученному персоналу.
Вернуться в начало страницы
 
+Ответить с цитированием данного сообщения
Машинист
сообщение 26.9.2017, 21:54
Сообщение #17


Эко Интегратор Всея Руси


Группа: Участники форума
Сообщений: 12282
Регистрация: 14.1.2008
Из: Архангельск
Пользователь №: 14438



Нефигом заняться моэку. Устанешь поливать его, это насос.
А на нисходящей вроде не рекомендуют. Книжку грундовскую читал когда-то, запомнил. Поток - или горизонтально или вверх, вал насоса - горизонтально плюс-минус 15 градусов. Потом видел, что всем на эти вещи насрать, и всё работает smile.gif
Вернуться в начало страницы
 
+Ответить с цитированием данного сообщения

Добавить ответ в эту темуОткрыть тему
1 чел. читают эту тему (гостей: 1, скрытых пользователей: 0)
Пользователей: 0

 

Реклама
ООО «Арктика групп» ИНН: 7713634274




Реклама: ООО «СибСтронг» | ИНН 6670013662 | ERID: 2VtzqvdgiCU

ООО «УНИСПЛИТ» ИНН: 6453155081 erid:2VtzqwGt2gw
Реклама: ООО «СЛ-ЛАЗЕР» ИНН 7727447267 | erid: 2VtzqvY3G2W

Реклама: ООО «НовоКС» | ИНН 6330071530 | erid: 2VtzqwMVijq
Последние сообщения Форума






RSS Текстовая версия Сейчас: 30.11.2025, 6:54
Политика ООО ИИП «АВОК-ПРЕСС» в отношении обработки персональных данных