Реклама / ООО «ИЗОЛПРОЕКТ» / ИНН: 7725566484 | ERID: 2VtzquhXmku
IPB IPB
Проектирование, монтаж, наладка, сервис


Здравствуйте, гость ( Вход | Регистрация )

- Стандарт НП «АВОК» 7.11-2024
«Рекомендации по проектированию инженерных систем
дошкольных образовательных организаций»

АВОК в соц. сетях
ИНН: 7714824045 | erid: 2VtzqwzKQiU
 
Добавить ответ в эту темуОткрыть тему
> Отвод дымовых газов или "танцы с бубном", расчет дымовой трубы, отвод дымовых газов.
kroal
сообщение 3.1.2017, 12:15
Сообщение #1





Группа: Участники форума
Сообщений: 29
Регистрация: 15.1.2009
Пользователь №: 27737



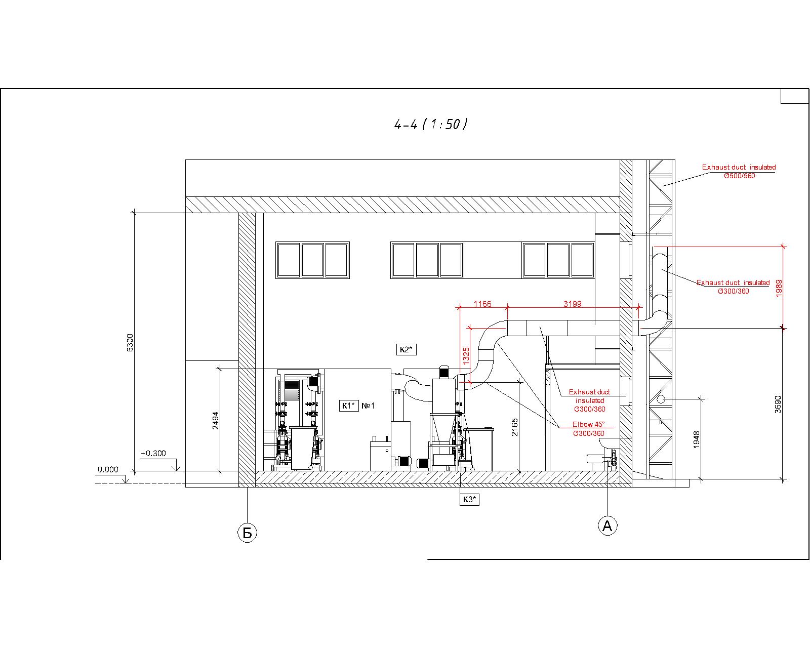
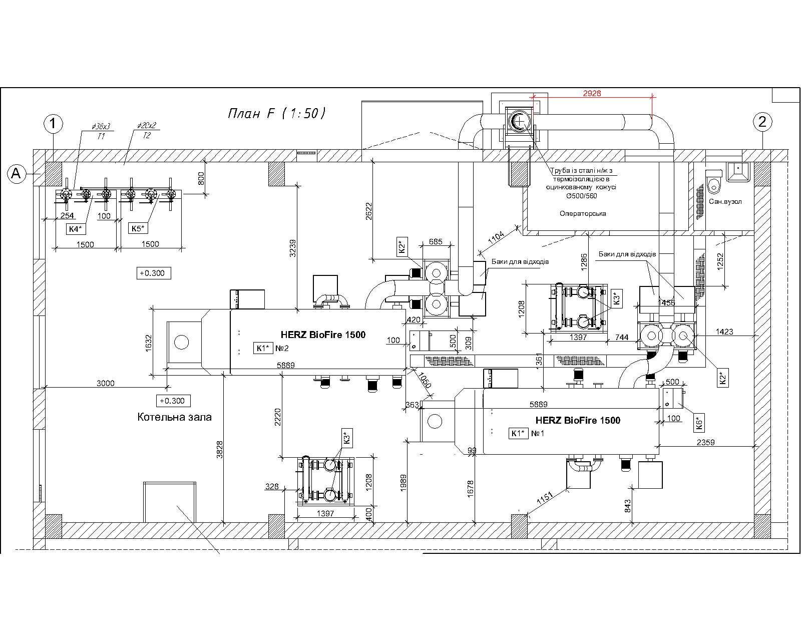
Добрый день ув. колеги. В конце прошлого года столкнулись с небольшой проблемой при пусконаладке твердотопливного котла Herz мощностью 1500 кВт. Итак:
  • Имеется водогрейный котел мощностью 1500 кВт, топливо - щепа.
  • Выход дымовых газов - диаметром 300 мм
  • Массовая пропускаемость потока топочного газа (кг/с) - 1,119 (паспортные данные)
  • Объем потока топочного газа (Nm3/h) - 3100 (паспортные данные)
  • Объем потока топочного газа (Bm3/h) - 4916 (паспортные данные)
  • После котла установлен поставляемый производителем котла циклон-дымосос (диаметры патрубков 300 мм)
  • Расход обеспечиваемый дымососом - 5292 (m3/h) (паспортные данные), дымосос сдвоенный (два вентилятора мощностью 3.0 кВт каждый), комплектуется частостным приводом, управление которым осуществляет автоматика котла.
  • Раряжение, создаваемое до циклона дымососом до циклона 1440 Па, при работе двигателя на 50 Гц.
  • Газоходы между котлом и дымососом, дымососом и дымовой трубой - нержавейка, диаметром 300 мм, утепленные. Высота дымовой трубы - 20м. Конфигурацию прилагаю, два отвода после циклона с углом 45 градусов а не 90.
  • Автоматика котла позволяет поддерживать разряжение в топке котла (по умолчанию установлено 35 Па). Данную функцию можно отключить програмно.
  • Автоматика котла анализирует содержание кислорода в газах (лямбда зонд) корректирует подачу воздуха и топлива в топку. Данную функцию можно отключить програмно.

Ситуация в следующем. Котел работает в полном автомате. До температуры порядка 600 гр. процесс горения стабилен. Разряжение поддерживается, температура растет, топливо воздух - корректируется. При достижении 650 градусов начинается "разнос". Автоматика продолжая добавлять топливо и корректирует воздух и пытается удержать разряжение. Но разряжение летает сначала плюс/минус 10 Па от заданного, затем все больше и больше. В конце концов достигаются значения 0 и 100 Па. По значению 0 Па происходит остановка котла. Ситуацию можно исправить, уменьшив подачу топлива, котел будет работать более стабильно, но с недобором мощности порядка 20-30%.
Как показывает практика рабочая температура в топке при номинальной мощности должна быть 700 -750 градусов. Т.е. котел явно не выходит на номинал. При стабильном режиме имеем в топке 35 Па, перед циклоном 100 Па, после циклона 300 Па. Тяга в трубе составляет порядка 25 Па.
Производитель котла грешит на участок между трубой и циклоном. По их просчетам должно быть порядка 400 мм и они делают акцент, что расчтитывать надо используя только одно значение - Массовая пропускаемость потока топочного газа (кг/с) - 1,119. И еще, автрийцы прислали свой пересчет. Что интересно, они используют в расчетах лябда = 1.6 (который в паспорте не указан). Наши проектанты использовали 1.2. Может быть в этом причина?
Нашие проектанты грешат на дымосос (т.к. одна и таже модель используется на котлах от 600 кВт до 1500 кВт, а производитель не дает рабочих кривых и аеродинамическое сопротивление ни котла, ни циклона).
Я грешу на автоматику, которая возможно не успевает отрабатывать.
Вообщем "танцы с бубном".
Просьба помочь в поиске проблемы. Газоход, дымосос или автоматика? Заранее благодарен.

Сообщение отредактировал kroal - 3.1.2017, 12:16
Эскизы прикрепленных изображений
Прикрепленное изображение
Прикрепленное изображение
 
Вернуться в начало страницы
 
+Ответить с цитированием данного сообщения
Смит
сообщение 3.1.2017, 12:35
Сообщение #2





Группа: Участники форума
Сообщений: 653
Регистрация: 25.2.2011
Пользователь №: 95959



Цитата(kroal @ 3.1.2017, 12:15) *
При достижении 650 градусов начинается "разнос". Автоматика продолжая добавлять топливо и корректирует воздух и пытается удержать разряжение. Но разряжение летает сначала плюс/минус 10 Па от заданного, затем все больше и больше. В конце концов достигаются значения 0 и 100 Па.

Раз начинается такая болтанка, то значит, ПИД-регулятор толком не работает.
Вернуться в начало страницы
 
+Ответить с цитированием данного сообщения
kroal
сообщение 3.1.2017, 13:31
Сообщение #3





Группа: Участники форума
Сообщений: 29
Регистрация: 15.1.2009
Пользователь №: 27737



Вот. Была такая мысль. Но программное обеспечение не позволяет настраивать регулятор. Такая возможность имеется только для управления трехходовыми клапанами по воде.
Вернуться в начало страницы
 
+Ответить с цитированием данного сообщения
Машинист
сообщение 3.1.2017, 18:42
Сообщение #4


Эко Интегратор Всея Руси


Группа: Участники форума
Сообщений: 12273
Регистрация: 14.1.2008
Из: Архангельск
Пользователь №: 14438



Похоже, и правда придушили этот участок.
Вернуться в начало страницы
 
+Ответить с цитированием данного сообщения
Ludvig
сообщение 3.1.2017, 21:39
Сообщение #5





Группа: Banned
Сообщений: 3427
Регистрация: 27.5.2010
Из: Москва
Пользователь №: 58872



ПИД-регулятор. А превышение мощности котла на ум не приходило?
Вернуться в начало страницы
 
+Ответить с цитированием данного сообщения
kroal
сообщение 3.1.2017, 21:48
Сообщение #6





Группа: Участники форума
Сообщений: 29
Регистрация: 15.1.2009
Пользователь №: 27737



Цитата(Ludvig @ 3.1.2017, 21:39) *
ПИД-регулятор. А превышение мощности котла на ум не приходило?

На счет ПИД регулятора меньше сомнений, т.к. до определенной мощности процесс стабилен. Что вы имеете в виду под превышением мощности?
Вернуться в начало страницы
 
+Ответить с цитированием данного сообщения
Галиев
сообщение 4.1.2017, 21:45
Сообщение #7





Группа: Участники форума
Сообщений: 4289
Регистрация: 10.1.2011
Из: г.Саранск
Пользователь №: 88830



Когда тягу в топке раскачивает при работе на щепке, значит воздуха не хватает, как правило, из-за нехватки дымососа и иже с ним. А нехватка дымососа может быть вызвана, как выше подметили, избыточностью вносимой в топку мощности.
ПИД - регулятор не причем. Попробуйте в ручном режиме разогнать дымосос на 100 %.
Вернуться в начало страницы
 
+Ответить с цитированием данного сообщения
Смит
сообщение 4.1.2017, 22:10
Сообщение #8





Группа: Участники форума
Сообщений: 653
Регистрация: 25.2.2011
Пользователь №: 95959



Цитата(kroal @ 3.1.2017, 12:15) *
Нашие проектанты грешат на дымосос (т.к. одна и таже модель используется на котлах от 600 кВт до 1500 кВт

Помпаж?
Да, попробуйте вручную увеличивать частоту для дымососа.
Вернуться в начало страницы
 
+Ответить с цитированием данного сообщения
kroal
сообщение 5.1.2017, 12:00
Сообщение #9





Группа: Участники форума
Сообщений: 29
Регистрация: 15.1.2009
Пользователь №: 27737



Цитата(Смит @ 4.1.2017, 22:10) *
Помпаж?
Да, попробуйте вручную увеличивать частоту для дымососа.

По рекомендации австрийцев увеличили максимальную частоту для двигателей с 50 Гц до 60 Гц. Теперь дымосос работает при максимальной нагрузке на частоте порядка 57 Гц. Ситуация практически не изменилась. Опять таки до конца картина с дымососом не ясна, т.к. нет рабочей кривой.

Интересная ситуация. Если отключить програмно лямбда зонд, то автоматика будет подавать топливо и воздух по таблице, без коррекции. При этом функция контроля разряжения нормально отрабатывает и поддерживает разряжение +/- 5 Па.
Вернуться в начало страницы
 
+Ответить с цитированием данного сообщения
Смит
сообщение 5.1.2017, 12:13
Сообщение #10





Группа: Участники форума
Сообщений: 653
Регистрация: 25.2.2011
Пользователь №: 95959



Цитата(kroal @ 5.1.2017, 12:00) *
Если отключить програмно лямбда зонд, то автоматика будет подавать топливо и воздух по таблице, без коррекции. При этом функция контроля разряжения нормально отрабатывает и поддерживает разряжение +/- 5 Па.

Выходит, всё раскачивает ПИД-регулятор дутьевого вентилятора?
Вернуться в начало страницы
 
+Ответить с цитированием данного сообщения

Добавить ответ в эту темуОткрыть тему
1 чел. читают эту тему (гостей: 1, скрытых пользователей: 0)
Пользователей: 0

 

Реклама
ООО «Арктика групп» ИНН: 7713634274




Реклама: ООО «СибСтронг» | ИНН 6670013662 | ERID: 2VtzqvdgiCU

ООО «УНИСПЛИТ» ИНН: 6453155081 erid:2VtzqwGt2gw
Реклама: ООО «СЛ-ЛАЗЕР» ИНН 7727447267 | erid: 2VtzqvY3G2W

Реклама: ООО «НовоКС» | ИНН 6330071530 | erid: 2VtzqwMVijq
Последние сообщения Форума






RSS Текстовая версия Сейчас: 5.11.2025, 0:18
Политика ООО ИИП «АВОК-ПРЕСС» в отношении обработки персональных данных