Реклама / ООО «ИЗОЛПРОЕКТ» / ИНН: 7725566484 | ERID: 2VtzquhXmku
IPB IPB
Проектирование, монтаж, наладка, сервис


Здравствуйте, гость ( Вход | Регистрация )

- Стандарт НП «АВОК» 7.11-2024
«Рекомендации по проектированию инженерных систем
дошкольных образовательных организаций»

АВОК в соц. сетях
ИНН: 7714824045 | erid: 2VtzqwzKQiU
 
Добавить ответ в эту темуОткрыть тему
> Вопрос по Полотенцесушителям
Kid1284
сообщение 5.8.2019, 9:41
Сообщение #1





Группа: New
Сообщений: 3
Регистрация: 4.8.2019
Пользователь №: 363780



Всем привет!

Коллеги, не судите строго, еще учусь. Подскажите пожалуйста, если было вынесено решение в коттедже посадить полотенцесушители(5шт) от гидрострелки на отдельный контур с насосом с трехходовиком, то я должен отвод на каждый полотенцесушитель от контура вести через коллекторрнную схему по примеру теплых полов? Или сделать тупо по проходной схеме? Полотенчики находятся на разных этажах (на первом стояке: 1 на 2 этаже, 2 на первом этаже, 1 в цоколе, на втором стояке стоит один на 2 втором этаже. Сама котельная в цоколе. )

Так вот как выполнить разводку правильно?
Варианты переделать все от отопления или ГВС не пройдут. Уже решение принято такое.
Вернуться в начало страницы
 
+Ответить с цитированием данного сообщения
Kid1284
сообщение 5.8.2019, 10:09
Сообщение #2





Группа: New
Сообщений: 3
Регистрация: 4.8.2019
Пользователь №: 363780



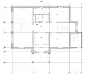
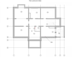
На всякий случай прикрепляю планы
Прикрепленное изображение

Прикрепленное изображение

Прикрепленное изображение
Вернуться в начало страницы
 
+Ответить с цитированием данного сообщения
lovial
сообщение 5.8.2019, 11:05
Сообщение #3





Группа: Участники форума
Сообщений: 2233
Регистрация: 8.7.2008
Из: Днепропетровск
Пользователь №: 20416



По проходной схеме не есть хорошо - даже если полотенечки без термоголовок, то сам заказчик может летом перекрыть полотенечек в каком-нибуд гостевом санузле, поскольку он пока не эксплуатируется. И вуаля - ВСЕ полотенечки перестали работать...
Даже если сделать перемычки и обеспечить гарантированный проток через каждый полотенечек - сэкономить на трубе относительно параллельного (через коллектор) подключения вряд ли получится - дополнительные фитинги (тройники) сожрут весь навар...
Вернуться в начало страницы
 
+Ответить с цитированием данного сообщения
Kid1284
сообщение 5.8.2019, 11:18
Сообщение #4





Группа: New
Сообщений: 3
Регистрация: 4.8.2019
Пользователь №: 363780



Большое спасибо за ответ!
Вернуться в начало страницы
 
+Ответить с цитированием данного сообщения

Добавить ответ в эту темуОткрыть тему
1 чел. читают эту тему (гостей: 1, скрытых пользователей: 0)
Пользователей: 0

 

Реклама
ООО «Арктика групп» ИНН: 7713634274




Реклама: ООО «СибСтронг» | ИНН 6670013662 | ERID: 2VtzqvdgiCU

ООО «УНИСПЛИТ» ИНН: 6453155081 erid:2VtzqwGt2gw
Реклама: ООО «СЛ-ЛАЗЕР» ИНН 7727447267 | erid: 2VtzqvY3G2W

Реклама: ООО «НовоКС» | ИНН 6330071530 | erid: 2VtzqwMVijq
Последние сообщения Форума






RSS Текстовая версия Сейчас: 5.11.2025, 3:55
Политика ООО ИИП «АВОК-ПРЕСС» в отношении обработки персональных данных