|
  |
Расчет теплопотерь подземной емкости, расчет змеевика емкости |
|
|
|
|
6.2.2020, 13:34
|
Группа: New
Сообщений: 6
Регистрация: 14.5.2018
Пользователь №: 341821

|
Добрый день! у заказчика на объекте есть существующая емкость с внутренним подогревателем не теплоизолированная, он хочет применить ее на проектируемом объекте. емкость стальная предполагается для хранения в ней подтоварной воды. площадь емкости 107,5 м2, объем емкости 66,4 м3, необходимая температура внутри емкости +5 С, глубина заложения емкости 0,5 м температура наружного воздуха обеспеченностью 0,92 - минус 25 С (для Москвы), глубина промерзания грунта 1,44 м. установка емкости предполагается в бетонный саркофаг, толщина бетонной крышки саркофага 250 мм. саркофаг внутри засыпан песком необходимо определить достаточен ли существующий змеевик с поверхностью теплообмена 8 м2 для поддержания температуры подтоварной воды +5 С.
с нашей стороны предлагалось теплоизолировать емкость, заказчик отказывается. с его стороны появилось предложение теплоизолировать саркофаг тепловой изоляцией пеноплекс 45 (применяемый для дорог) толщиной 50 мм с коэффициентом теплопроводности 0,034 Вт/м*К.
логически понимаю что емкость все равно необходимо теплоизолировать, но как это подтвердить расчетами, подскажите пожалуйста
|
|
|
|
|
|
|
|
6.2.2020, 19:13
|
Группа: Участники форума
Сообщений: 68
Регистрация: 10.6.2014
Из: Ярославль
Пользователь №: 236428

|
Цитата(KhaREZE85 @ 6.2.2020, 13:34)  Добрый день! у заказчика на объекте есть существующая емкость с внутренним подогревателем не теплоизолированная, он хочет применить ее на проектируемом объекте. емкость стальная предполагается для хранения в ней подтоварной воды. площадь емкости 107,5 м2, объем емкости 66,4 м3, необходимая температура внутри емкости +5 С, глубина заложения емкости 0,5 м температура наружного воздуха обеспеченностью 0,92 - минус 25 С (для Москвы), глубина промерзания грунта 1,44 м. установка емкости предполагается в бетонный саркофаг, толщина бетонной крышки саркофага 250 мм. саркофаг внутри засыпан песком необходимо определить достаточен ли существующий змеевик с поверхностью теплообмена 8 м2 для поддержания температуры подтоварной воды +5 С.
с нашей стороны предлагалось теплоизолировать емкость, заказчик отказывается. с его стороны появилось предложение теплоизолировать саркофаг тепловой изоляцией пеноплекс 45 (применяемый для дорог) толщиной 50 мм с коэффициентом теплопроводности 0,034 Вт/м*К.
логически понимаю что емкость все равно необходимо теплоизолировать, но как это подтвердить расчетами, подскажите пожалуйста Вода в емкости заполняет все пространство? Глубина заложения 0,5 метров это горловина по уровню земли? площадь велика, глубина емкости чуть больше 0,5м, т.е. емкость полностью находится в глубине промерзания грунта. Змеевик покрывает всю площадь емкости? Температура подогревающей среды по какому графику? Толщина песка между бетонным саркофагом и емкостью? Изолировать пеноплексом 45 сверху по грунту или всю емкость сверху и на всю глубину? Вот первые вопросы. Я просто пока не сталкивался с такой задачей, но интересно поразбираться.
|
|
|
|
|
|
|
|
6.2.2020, 20:01
|
Группа: Участники форума
Сообщений: 1046
Регистрация: 5.10.2013
Пользователь №: 208061

|
Такие задачи проходят специалисты, изучающие транспорт нефти.
Вопрос еще в размерах саркофага, из них будет понимание площади теплообмена
|
|
|
|
|
|
|
|
6.2.2020, 21:54
|
Группа: Участники форума
Сообщений: 348
Регистрация: 28.10.2014
Пользователь №: 248987

|
Цитата(KhaREZE85 @ 6.2.2020, 13:34)  необходимо определить достаточен ли существующий змеевик с поверхностью теплообмена 8 м2 для поддержания температуры подтоварной воды +5 С. Такого змеевика вполне достаточно. Считаем по-простому: коэффициент теплоотдачи змеевика принимаем - 200 Вт/м2*град, разницу температур воды на входе и выходе в змеевик принимаем - 30 градусов. Q = 200*30*8 = 48 кВт. Теплопотери всей конструкции не рассчитать (не хватает многих данных) но они будут в разы меньше.
Сообщение отредактировал GraNiNi - 6.2.2020, 21:55
|
|
|
|
|
|
|
|
6.2.2020, 22:48
|
Группа: Участники форума
Сообщений: 348
Регистрация: 28.10.2014
Пользователь №: 248987

|
Уточнение: 30 градусов - это средняя разность температур между температурами воды на входе и выходе и температурой воды в емкости.
|
|
|
|
|
|
|
|
7.2.2020, 9:34
|
Группа: New
Сообщений: 6
Регистрация: 14.5.2018
Пользователь №: 341821

|
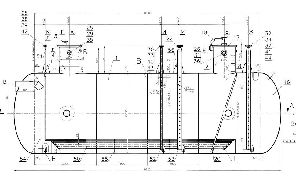
Цитата(WParamonov @ 6.2.2020, 19:13)  Вода в емкости заполняет все пространство? Глубина заложения 0,5 метров это горловина по уровню земли? площадь велика, глубина емкости чуть больше 0,5м, т.е. емкость полностью находится в глубине промерзания грунта. Змеевик покрывает всю площадь емкости? Температура подогревающей среды по какому графику? Толщина песка между бетонным саркофагом и емкостью? Изолировать пеноплексом 45 сверху по грунту или всю емкость сверху и на всю глубину? Вот первые вопросы. Я просто пока не сталкивался с такой задачей, но интересно поразбираться. коэффициент заполнения емкости 0,9, получается объем заполнения 60 м3. глубина заложения 0,5 м - это до верхней образующей емкости, глубина промерзания грунта 1,44 м, диаметр емкости 3 м, получается 0,94 м емкости находятся выше глубины промерзания, и 2,06 м емкости находятся ниже глубины промерзания. змеевик находится в нижней части емкости, картинка во вложении. температурный график теплоносителя 105-70С. толщина песка между бетонным саркофагом и емкостью 200 мм. изолируется не емкость, а сам саркофаг - сверху и по бокам.
Эскизы прикрепленных изображений
|
|
|
|
|
|
|
|
7.2.2020, 10:13
|
Группа: New
Сообщений: 6
Регистрация: 14.5.2018
Пользователь №: 341821

|
Цитата(Twonk @ 6.2.2020, 20:01)  Такие задачи проходят специалисты, изучающие транспорт нефти.
Вопрос еще в размерах саркофага, из них будет понимание площади теплообмена габариты саркофага 4,4х3,6(h) м, по внутренним размерам, толщина бетонного саркофага 300 мм Цитата(GraNiNi @ 6.2.2020, 21:54)  Такого змеевика вполне достаточно. Считаем по-простому: коэффициент теплоотдачи змеевика принимаем - 200 Вт/м2*град, разницу температур воды на входе и выходе в змеевик принимаем - 30 градусов. Q = 200*30*8 = 48 кВт. Теплопотери всей конструкции не рассчитать (не хватает многих данных) но они будут в разы меньше. откуда взять коэффициент теплоотдачи 200 Вт/м2*град?
|
|
|
|
|
|
|
|
7.2.2020, 20:18
|
Группа: Участники форума
Сообщений: 348
Регистрация: 28.10.2014
Пользователь №: 248987

|
Коэффициенты конвективной теплоотдачи от змеевика к окружающей его воде можно посмотреть, например, здесь: https://dpva.ru/Guide/GuidePhysics/GuidePhy...sientSteamCoil/Каковы размеры трубы змеевика? Диаметры внутренний и наружный?
|
|
|
|
|
|
|
|
9.2.2020, 15:01
|
Группа: Участники форума
Сообщений: 348
Регистрация: 28.10.2014
Пользователь №: 248987

|
Цитата(GraNiNi @ 6.2.2020, 21:54)  Теплопотери всей конструкции не рассчитать (не хватает многих данных) но они будут в разы меньше. Считаем также - по-простому. Из ТЗ следует, что вся цистерна закопана в грунт. Таким образом, самый тонкий слой будет сверху, где кроме 0,5 м грунта будет еще 0,2 м песка (засыпка), 0,25 м бетона (крышка) и 0,05 м пеноплекса (теплоизоляция). Общее термическое сопротивление этого бутерброда будет около 2 м2*К/Вт, что даст теплопотери (с этой глубины) при разности температур между наружным воздухом (-25) и стенкой цистерны (+5) в 30 градусов - 15 Вт/м2., или около 1,5 КВт на всю цистерну.
Сообщение отредактировал GraNiNi - 9.2.2020, 15:09
|
|
|
|
|
|
|
|
19.2.2020, 13:22
|
Группа: Участники форума
Сообщений: 68
Регистрация: 10.6.2014
Из: Ярославль
Пользователь №: 236428

|
Цитата(GraNiNi @ 9.2.2020, 15:01)  Считаем также - по-простому. Из ТЗ следует, что вся цистерна закопана в грунт. Таким образом, самый тонкий слой будет сверху, где кроме 0,5 м грунта будет еще 0,2 м песка (засыпка), 0,25 м бетона (крышка) и 0,05 м пеноплекса (теплоизоляция). Общее термическое сопротивление этого бутерброда будет около 2 м2*К/Вт, что даст теплопотери (с этой глубины) при разности температур между наружным воздухом (-25) и стенкой цистерны (+5) в 30 градусов - 15 Вт/м2., или около 1,5 КВт на всю цистерну. грунт промерзает на 1,44м и только на 0,9м емкость в мерзлом грунте. Т.е. около 35кв.м находится в зоне отрицательных температур. Остальная часть емкости находится в зоне положительных температур. Если принять, что земля влажная, песок влажный, бетон на каменном наполнителе, то теплопроводность можно усреднить и взять 1,2 Вт/мС. Отсюда следует, что пирог песок 0,2 м + бетон 0,25 м + 0,5 земли = 0,95 м будет терять тепла 0,95 м / 1,2 Вт/мС + 0,05 м / 0,03 Вт/мС= 2,46 м2С/Вт. Перепад температур 30 градусов. Отсюда по принятой площади и перепаду температур расчет: 1/2,46*30*35=427 Вт. теплопроводность меди 394 Вт/кв.м, Алюминий 220, Железо 74, Сталь 45. В зависимости от материала змеевика и мощность подогрева. Согласен с коллегой. Змеевика хватит, даже если не утеплять цистерну. Но затрат на подогрев с утеплением будет гораздо меньше.
|
|
|
|
|
|
|
|
23.2.2020, 23:59
|
Группа: Участники форума
Сообщений: 348
Регистрация: 28.10.2014
Пользователь №: 248987

|
Цитата(WParamonov @ 19.2.2020, 13:22)  Т.е. около 35кв.м находится в зоне отрицательных температур. Остальная часть емкости находится в зоне положительных температур. Все верно, только нужно еще учесть, что часть площади цистерны, находящейся в грунте с положительной температурой в диапазоне от 0 до +5 градусов тоже будет терять тепло и эти потери тоже нужно компенсировать подогревом.
|
|
|
|
|
|
|
  |
1 чел. читают эту тему (гостей: 1, скрытых пользователей: 0)
Пользователей: 0
|
|
Реклама
ООО «Арктика групп» ИНН: 7713634274 | erid 2VtzqvpbUMg
ООО «УНИСПЛИТ» ИНН: 6453155081 erid:2Vtzqux2Ugf
Последние сообщения Форума
|