|
  |
Теплопотери через пол - если зоны пересекаются, как правильно учесть "узкую выступающую комнату" |
|
|
|
|
15.7.2020, 21:02
|
Группа: Участники форума
Сообщений: 563
Регистрация: 31.8.2007
Из: Москва
Пользователь №: 10998

|
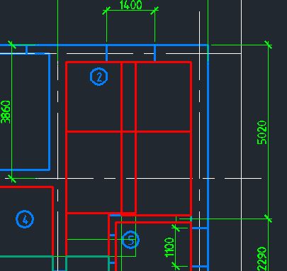
Здравствуйте, давно хочу выяснить, как правильно считать теплопотери через пол по грунту (утепленная плита) для узкой комнаты, которая с трех сторон выходит на улицу. Зоны 1 - по два метра от каждой стены там пересекаются по три раза и накладываются друг на друга. По логике - теплопотери идут во все три стороны, значит надо считать все три зоны. Но смущает то, что больно много получается теплопотерь в итоге. В файле на картинке пример такой комнаты (2), она имеет наружные стены с трех сторон ("слева" - веранда). И еще интересно, накладываются ли друг на друга полосы 1й зоны напротив внутреннего угла, там где комната 4 (у нее стена "сверху" по рисунку тоже наружная).
Сообщение отредактировал Flow - 15.7.2020, 21:04
Эскизы прикрепленных изображений
|
|
|
|
|
|
|
|
16.7.2020, 16:01
|
Группа: Участники форума
Сообщений: 3575
Регистрация: 5.3.2009
Из: Газ-Ачака
Пользователь №: 30120

|
Цитата(Flow @ 15.7.2020, 21:02)  Здравствуйте, давно хочу выяснить, как правильно считать теплопотери через пол по грунту Т.е. вопрос давно мучает а заглянуть в книгу или пособоие не судьба ?
Эскизы прикрепленных изображений
|
|
|
|
|
|
|
|
16.7.2020, 20:57
|
Группа: Участники форума
Сообщений: 563
Регистрация: 31.8.2007
Из: Москва
Пользователь №: 10998

|
Цитата(Composter @ 16.7.2020, 16:01)  Т.е. вопрос давно мучает а заглянуть в книгу или пособоие не судьба ? Мимо, мой друг, на приведенной Вами странице такой случай отсутствует ".. ..для узкой комнаты, которая с трех сторон выходит на улицу" Во всех книгах, что мне попадались, авторы перерисовывают друг у друга просторные помещения , в которых все четыре зоны помещаются на полу, и красивый внешний угол.
Сообщение отредактировал Flow - 16.7.2020, 21:05
|
|
|
|
|
|
|
|
16.7.2020, 22:49
|
Группа: Участники форума
Сообщений: 12793
Регистрация: 9.4.2014
Пользователь №: 229939

|
Цитата(Flow @ 15.7.2020, 21:02)  давно хочу выяснить, как правильно считать теплопотери через пол по грунту (утепленная плита) для узкой комнаты, которая с трех сторон выходит на улицу.
Зоны 1 - по два метра от каждой стены там пересекаются по три раза и накладываются друг на друга. По логике - теплопотери идут во все три стороны, значит надо считать все три зоны. Но смущает то, что больно много получается теплопотерь в итоге. Если это не курсовая работа, то предлагаю не заниматься "ловлей блох" - посчитайте весь пол "аппендикса" как зону 1. Ну будет, возможно, крошечный запас - ничего смертельного не вижу.
|
|
|
|
|
|
|
|
17.7.2020, 0:23
|
Группа: Участники форума
Сообщений: 3575
Регистрация: 5.3.2009
Из: Газ-Ачака
Пользователь №: 30120

|
Цитата(Flow @ 16.7.2020, 20:57)  Мимо, мой друг, на приведенной Вами странице такой случай отсутствует "....для узкой комнаты, которая с трех сторон выходит на улицу"
Во всех книгах, что мне попадались, авторы перерисовывают друг у друга просторные помещения , в которых все четыре зоны помещаются на полу, и красивый внешний угол. Т. Е. Вы не способны проинтерполировать ситуацию с комнатой с 2 наружными стенами на 3 наружнымых стены? А если бы было 4 стены то нужно было выпускать отдельную книгу для того чтобы вы поняли?
|
|
|
|
|
|
|
|
17.7.2020, 19:32
|
Группа: Участники форума
Сообщений: 563
Регистрация: 31.8.2007
Из: Москва
Пользователь №: 10998

|
Цитата(Composter @ 17.7.2020, 0:23)  Т. Е. Вы не способны проинтерполировать ситуацию с комнатой с 2 наружными стенами на 3 наружнымых стены? А если бы было 4 стены то нужно было выпускать отдельную книгу для того чтобы вы поняли? Нет не способен, не все подряд можно интерполировать. Цитата(ИОВ @ 16.7.2020, 22:49)  Если это не курсовая работа, то предлагаю не заниматься "ловлей блох" - посчитайте весь пол "аппендикса" как зону 1. Ну будет, возможно, крошечный запас - ничего смертельного не вижу. К сожалению нет. Это реальная комната, и речь идет о возможность сделать там только теплый пол или теплый пол плюс радиатор. Просто весь пол как зону 1 посчитать будет неправильно. Ведь "квадрат" в углу в первой зоне размером 2х2 метра, по методикам учитывается два раза в расчете. А в данном случае таких квадрата два, т.к. у комнат два внешних угла и обо в зоне 1. А если учесть еще "наложение" зоны 1 по длине, то около 100 Вт теплопотерь набегает и заказчик в этом случае получит радиатор "в подарок". Вот я и заморочился. Хотя конечно Вы правы, - радиатор заказчик все-равно получит
Сообщение отредактировал Flow - 17.7.2020, 19:35
|
|
|
|
|
|
|
|
17.7.2020, 21:28
|
Группа: Участники форума
Сообщений: 762
Регистрация: 22.12.2009
Пользователь №: 43058

|
Цитата(Flow @ 17.7.2020, 20:32)  по методикам учитывается два раза в расчете Не надо ничего два раз учитывать, откуда вы это взяли? Одна площадь учитывается один раз. Вы же в автокаде чертите? Нарисуйте полилинию по внутреннему периметру здания, используйте несколько раз команду "смещение" (отступ) и получите зоны, а то у вас ерудна какая-то на картинке.
|
|
|
|
|
|
|
|
17.7.2020, 22:06
|
Группа: Участники форума
Сообщений: 2736
Регистрация: 4.4.2005
Из: Саратов
Пользователь №: 620

|
Цитата(keaton @ 17.7.2020, 22:28)  Не надо ничего два раз учитывать, откуда вы это взяли? Одна площадь учитывается один раз.
Вы же в автокаде чертите? Нарисуйте полилинию по внутреннему периметру здания, используйте несколько раз команду "смещение" (отступ) и получите зоны, а то у вас ерудна какая-то на картинке. Углы дважды считаем. У стен, кстати, тоже.
|
|
|
|
|
|
|
|
18.7.2020, 9:19
|
Группа: Участники форума
Сообщений: 3575
Регистрация: 5.3.2009
Из: Газ-Ачака
Пользователь №: 30120

|
Цитата(Flow @ 17.7.2020, 19:32)  то около 100 Вт теплопотерь набегает и заказчик в этом случае получит радиатор "в подарок" фигасе радиаторы по 100 Вт кстати меряется пол от осей,а не от стен . если площадь меньше 16 м2 то берется вся площадь как 1 зона + 2*2*количество углов Теме явно место в песочнице
|
|
|
|
|
|
|
|
18.7.2020, 9:32
|
Группа: Участники форума
Сообщений: 2736
Регистрация: 4.4.2005
Из: Саратов
Пользователь №: 620

|
100Вт/м2 как я понял, т.е. удельные с м2, другой вопрос, если это всё первая зона, то, стало быть это не подвал (а то бы стены в грунте съели бы всю первую зону, ну или почти всю) а если это не подвал, то это полы по грунту на уровне рельефа, стало быть стены наружные с трех сторон, и 100Вт/м2, в таком случае, это вообще-то маловато будет. А воздухообмен?
|
|
|
|
|
|
|
|
18.7.2020, 17:09
|
Группа: Участники форума
Сообщений: 762
Регистрация: 22.12.2009
Пользователь №: 43058

|
Цитата(Хоттабыч @ 17.7.2020, 23:06)  Углы дважды считаем. У стен, кстати, тоже. Вот блин, век живи - век учись! Сколько помещений недоотопил за карьеру...)
|
|
|
|
|
|
|
|
18.7.2020, 19:33
|
Группа: Участники форума
Сообщений: 2736
Регистрация: 4.4.2005
Из: Саратов
Пользователь №: 620

|
Про стены, я имел в виду то что мерим по наружке, от угла наружного.
Спасибо ShaggyDoc  Цитата(Composter @ 18.7.2020, 10:19)  кстати меряется пол от осей, а не от стен Погодите, погодите, так в приведенном Вам материале говорится, что от внутренней поверхности.
|
|
|
|
|
|
|
|
18.7.2020, 19:53
|
Группа: Участники форума
Сообщений: 20902
Регистрация: 8.8.2007
Из: Vilnius
Пользователь №: 10542

|
Цитата(keaton @ 18.7.2020, 17:09)  Сколько помещений недоотопил за карьеру...) При расчётах опытные люди (те, что Сталина ещё видели) закладывали запас 10-15, а то и 20%. Запас, как говорится заднице не вредит, зато выручает когда прокидон....
|
|
|
|
|
|
|
|
18.7.2020, 20:22
|
Группа: Участники форума
Сообщений: 4383
Регистрация: 14.11.2006
Пользователь №: 4724

|
Цитата(jota @ 18.7.2020, 19:53)  При расчётах опытные люди (те, что Сталина ещё видели) закладывали запас 10-15, а то и 20%. Запас, как говорится заднице не вредит, зато выручает когда прокидон....  Вот поэтому среди монтажников и появился принцип, в отоплении как ни делай все равно работает, а в вентиляции как ни делай, все равно не работает.
|
|
|
|
|
|
|
|
18.7.2020, 20:32
|
Группа: Участники форума
Сообщений: 20902
Регистрация: 8.8.2007
Из: Vilnius
Пользователь №: 10542

|
Цитата(Const82 @ 18.7.2020, 20:22)  Вот поэтому среди монтажников и появился принцип, в отоплении как ни делай все равно работает, а в вентиляции как ни делай, все равно не работает.  Да, вентиляция дело мутное. Тут только Костя Таратыркин ориентируется по компасу.....
|
|
|
|
|
|
|
|
18.7.2020, 21:48
|
Группа: Участники форума
Сообщений: 2736
Регистрация: 4.4.2005
Из: Саратов
Пользователь №: 620

|
Дык за запас тоже могут предъявить - перерасход социалистической собственности.
|
|
|
|
|
|
|
|
19.7.2020, 0:23
|
Группа: Участники форума
Сообщений: 20902
Регистрация: 8.8.2007
Из: Vilnius
Пользователь №: 10542

|
Цитата(Хоттабыч @ 18.7.2020, 21:48)  Дык за запас тоже могут предъявить - перерасход социалистической собственности. Поймать надо сперва......
|
|
|
|
|
|
|
|
29.9.2020, 22:21
|
Группа: Участники форума
Сообщений: 85
Регистрация: 4.2.2019
Пользователь №: 355316

|
Теплопотери в грунт вообще не имеют строгого теплофизического обоснования. Очевидно, так как комната два угла имеет, то в этих местах теплопотери увеличатся. Лично я бы считал так, что перекрывающуюся площадь в углах взял бы дважды. Это максимум +8м2 или меньше, если комната уже 4м. Думаю чёткого правила нет, и разница в результате в пределах погрешности методики
Вопрос близкий к теме: Кто как считает добавку на угловое помещение 0.05, если помещение очень большое 20-100м? (спортзал, цех) На всю стену длиной во всё здание накидывать 5% нет смысла, хоть в помещении и есть наружный угол?
|
|
|
|
|
|
|
|
1.10.2020, 8:36
|
интересующийся
Группа: Участники форума
Сообщений: 518
Регистрация: 16.7.2004
Из: Москва
Пользователь №: 64

|
ГОСТ Р ИСО 13370-2016 "ТЕПЛОВЫЕ ХАРАКТЕРИСТИКИ ЗДАНИЙ Метод расчета теплопередачи через грунт" родился мертвым?
|
|
|
|
|
|
|
|
1.10.2020, 9:56
|
Группа: Участники форума
Сообщений: 563
Регистрация: 31.8.2007
Из: Москва
Пользователь №: 10998

|
Цитата(Prasolov @ 1.10.2020, 8:36)  ГОСТ Р ИСО 13370-2016 "ТЕПЛОВЫЕ ХАРАКТЕРИСТИКИ ЗДАНИЙ Метод расчета теплопередачи через грунт" родился мертвым? Спасибо! Интересный документ. p.s. Только похоже что он не родился, а проник к нам из за границы  А где же там про четыре зоны?, как нас в родных институтах учат. Это у них там, а тут все по-другому. Думаю этот гост ждет такая же судьб как и ГОСТ Р ЕН 13779-2007.
|
|
|
|
|
|
|
|
2.10.2020, 10:12
|
Группа: Участники форума
Сообщений: 2233
Регистрация: 8.7.2008
Из: Днепропетровск
Пользователь №: 20416

|
Цитата(qmax44 @ 29.9.2020, 22:21)  Вопрос близкий к теме: Кто как считает добавку на угловое помещение 0.05, если помещение очень большое 20-100м? (спортзал, цех) На всю стену длиной во всё здание накидывать 5% нет смысла, хоть в помещении и есть наружный угол? Она на все помещение, т.к. лучистые теплопотери возрастают. П.С. А кто как обходит "разрыв" пола по зонам и наружной стены? Наружная стена идет до уровня пола, пол по грунту считается от внутренней поверхности стены, в итоге образуется "дырка" - теплопотери через саму стену в грунт никуда не попадают...
|
|
|
|
|
|
|
  |
1 чел. читают эту тему (гостей: 1, скрытых пользователей: 0)
Пользователей: 0
|
|
Реклама
ООО «Арктика групп» ИНН: 7713634274
Реклама: ООО «СибСтронг» | ИНН 6670013662 | ERID: 2VtzqvdgiCU
ООО «УНИСПЛИТ» ИНН: 6453155081 erid:2VtzqwGt2gw
Реклама: ООО «СЛ-ЛАЗЕР» ИНН 7727447267 | erid: 2VtzqvY3G2W
Реклама: ООО «НовоКС» | ИНН 6330071530 | erid: 2VtzqwMVijq
Последние сообщения Форума
|