|
  |
Стояковая система отопления без подвала |
|
|
|
|
27.5.2021, 6:42
|
Группа: Участники форума
Сообщений: 31
Регистрация: 19.10.2020
Из: Барнаул
Пользователь №: 382929

|
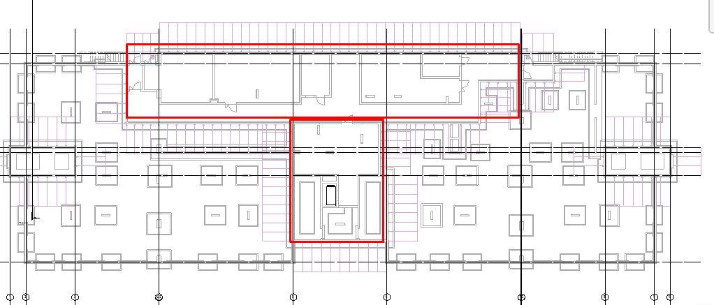
Всем доброго времени суток! Может кто подскажет, в интернете такой информации нет! На проектирование поступил объект, в ТЗ прописано - запроектировать вертикальную(стояковую) систему отопления, но в здании нет подвала, практически, есть три помещения - ИТП, Венткамера, Водомерный. Остальные 85% здания - без подвала или какого либо подполья. Так вот, заказчик решил прокладывать сети в лотках, где подвала нет, и вот вопрос. Как делать балансировку и узел слива со стояков? Какие есть решения по размещению арматуры? В лотках, же, я так понимаю, не разместить, потому что как ее тогда обслуживать? Можно ли разместить сливную и запорно-балансировочную арматуру непосредственно в объеме первого этажа и зашить с устройством смотрового лючка? Или какие есть предложения? Подвал на скриншоте выделил, чтобы было понимание.
Эскизы прикрепленных изображений
|
|
|
|
|
|
|
|
27.5.2021, 13:07
|
Группа: Участники форума
Сообщений: 33477
Регистрация: 4.12.2006
Из: 97
Пользователь №: 5032

|
и что мешает там же в лотке проложить дренажную трубу? ну вот нужны заку заморочки сильно жаба душит до денег, но ведь проблемы то проявятся тогда, когда он спихнет здание в эксплуатацию и его уже не достать. Он сам себе придумывает проблемы, вы их не снимите, хотя можете вдрыгз разругаться, а вам надо это ругание, вам и КС-2 по своим работам подписывать. а в лотке и куча балансировочником еще поместится и прочих дорогих кошельку приблуд.
Сообщение отредактировал инж323 - 27.5.2021, 13:08
|
|
|
|
|
|
|
|
2.6.2021, 5:33
|
Группа: Участники форума
Сообщений: 31
Регистрация: 19.10.2020
Из: Барнаул
Пользователь №: 382929

|
Цитата(инж323 @ 27.5.2021, 17:07)  а в лотке и куча балансировочником еще поместится и прочих дорогих кошельку приблуд. Ну а как ее тогда обслуживать будут? Как перекрывать краны, если будет необходимо? Как вообще, по сути, туда в лоток потом попадет сантехник, после сдачи в эксплуатацию, если будет необходимость?
|
|
|
|
|
|
|
|
2.6.2021, 10:32
|
Группа: Участники форума
Сообщений: 20902
Регистрация: 8.8.2007
Из: Vilnius
Пользователь №: 10542

|
Как делал бы я: 1. Балансирование - на радиаторы на подаче динамические термостатные вентили типа RA-DV Данфосс (https://assets.danfoss.com/documents/44248/AI325851796639ru-RU0101.pdf) или другой фирмы. Тогда система будет автоматиески сбалансирована. На обратном подключении радиатора - радиаторный вентиль типа RLV Данфосс, чтобы радиатор можно было отключить от системы без слива. 2. Никаких спусков в лотках. Систему поделил бы на 2 части и вентили дренажа в подвале. Имея возможность отключить каждый радиатор от системы, спускные вентили на стояках не так актуальны. Даже учитывая что динамические термостатные вентили дороже обычных где-то в 2 раза, система всё равно выйдет не дороже обычной. А в наладке и эксплоатации значительно дешевле.
|
|
|
|
|
|
|
|
3.6.2021, 9:58
|
Группа: Участники форума
Сообщений: 31
Регистрация: 19.10.2020
Из: Барнаул
Пользователь №: 382929

|
Цитата(jota @ 2.6.2021, 14:32)  Как делал бы я: 1. Балансирование - на радиаторы на подаче динамические термостатные вентили типа RA-DV Данфосс (https://assets.danfoss.com/documents/44248/AI325851796639ru-RU0101.pdf) или другой фирмы. Тогда система будет автоматиески сбалансирована. На обратном подключении радиатора - радиаторный вентиль типа RLV Данфосс, чтобы радиатор можно было отключить от системы без слива. 2. Никаких спусков в лотках. Систему поделил бы на 2 части и вентили дренажа в подвале. Имея возможность отключить каждый радиатор от системы, спускные вентили на стояках не так актуальны. Даже учитывая что динамические термостатные вентили дороже обычных где-то в 2 раза, система всё равно выйдет не дороже обычной. А в наладке и эксплоатации значительно дешевле. Интересно, не знал о динамическом термостате, по сути они отключают необходимость в автоматах в принципе в данном случае?
|
|
|
|
|
|
|
|
3.6.2021, 12:08
|
Группа: Участники форума
Сообщений: 33477
Регистрация: 4.12.2006
Из: 97
Пользователь №: 5032

|
Цитата(ShaGuaR @ 2.6.2021, 5:33)  Ну а как ее тогда обслуживать будут? Как перекрывать краны, если будет необходимо? Как вообще, по сути, туда в лоток потом попадет сантехник, после сдачи в эксплуатацию, если будет необходимость? у лотка сьемные крышки в районе расположения арматуры и врезок в магистраль. надо- крышку подняли, закрыли стояк, открыли дренаж.... и т.д. потом закрыли крышку. изуродать тоже можно это быстро, как и без проблем жить с таким устройством системы. как сделать и как хотеть.
|
|
|
|
|
|
|
|
27.6.2021, 0:36
|
Группа: Участники форума
Сообщений: 50
Регистрация: 15.6.2019
Пользователь №: 361545

|
1. Как на свет появилось несколькоэтажное здание с частичным подвалом? 2. Зачем лепить уродливые стояки? 3. Виновными всегда оказываются идущие на поводу, но никак не неадекватный заказчик.
|
|
|
|
|
|
|
|
27.6.2021, 12:49
|
Группа: Участники форума
Сообщений: 1370
Регистрация: 28.6.2005
Из: Estonia
Пользователь №: 918

|
Проектировал дом . Подвала нет , скальный грунт , только по центру с торца дома приямок , куда приходит теплотрасса и где размещён теплоузел . Трубы ( с утолщённой стенкой на электросварке) расположил по периметру внешних стен , движение теплоносителя попутное, трубы в сварном П - образном лотке, сверху закрываемом декоративными оцинкованными крышками , которые крепятся к лотку винтами с потаёнными головками. Лоток размещён так , что верхняя точка как бы с противоположенной стороны от теплоузла .На случай если появится течь ,вода по лотку пойдёт в приямок с теплоузлом и далее к находящемуся в теплоузле приямочку с дренажным насосом для откачки воды в систему канализации. В районе выхода стояков из лотка малые люки-крышки для обслуживания и замены запорной арматуры. Дренаж со стояков в случае необходимости через сливные краники прямо в лоток Вход в теплоузел осуществляется через небольшую пристройку с того же торца дома. При заключении договора на обслуживание каждый владелец подписывает договор на обслуживание , где включён пункт о правилах доступа в квартиру сантехников в процессе аварии. При ремонтах по замене покрытия пола обязательно присутствует представитель обслуживающей организации , который следит , чтобы не заделали в глухую крышки лотка. Дом построен и более 20 лет в эксплуатации. На опыте его эксплуатации ( и лучшем финансировании) построен подобный дом в 2015 году , но там вдоль всего фасада изнутри фундамента выдолблен в скале приямок высотой 2 метра и шириной 1,5 метра для прохода людей , там с запорной арматурой и ремонтами вообще нет проблем . Всё горизонтальные коммуникации обслуживаются закрываются без захода в квартиры. Все коммуникации - водопровод , канализация и магистрали отопления все рядышком . Правда позднее в районе торцевой пристройки пришлось поставить камеру видеонаблюдения для безопасности . Молодёжь захотела уединений и лезла в те ,, окопы,,.
|
|
|
|
|
|
|
|
27.6.2021, 16:12
|
Группа: Участники форума
Сообщений: 20902
Регистрация: 8.8.2007
Из: Vilnius
Пользователь №: 10542

|
А не проще было применить коллекторную систему?
|
|
|
|
|
|
|
|
28.6.2021, 23:32
|
Группа: Участники форума
Сообщений: 1370
Регистрация: 28.6.2005
Из: Estonia
Пользователь №: 918

|
Нет, лучевая схема отопления в подобных случаях не очень подходит и более затратна, попробуйте сами прикинуть например для 2-3-х подъездного здания и отсутствие подвала. По второму решению сейчас спроектировано ещё 4 дома, поскольку проект оказался удачным в том числе и по эксплуатации .
|
|
|
|
|
|
|
  |
1 чел. читают эту тему (гостей: 1, скрытых пользователей: 0)
Пользователей: 0
|
|
Реклама
ООО «Арктика групп» ИНН: 7713634274
Реклама: ООО «СибСтронг» | ИНН 6670013662 | ERID: 2VtzqvdgiCU
ООО «УНИСПЛИТ» ИНН: 6453155081 erid:2VtzqwGt2gw
Реклама: ООО «СЛ-ЛАЗЕР» ИНН 7727447267 | erid: 2VtzqvY3G2W
Реклама: ООО «НовоКС» | ИНН 6330071530 | erid: 2VtzqwMVijq
Последние сообщения Форума
|