Реклама / ООО «ИЗОЛПРОЕКТ» / ИНН: 7725566484 | ERID: 2VtzqvfExCR
IPB IPB
Проектирование, монтаж, наладка, сервис


Здравствуйте, гость ( Вход | Регистрация )

- Стандарт НП «АВОК» 7.11-2024
«Рекомендации по проектированию инженерных систем
дошкольных образовательных организаций»

АВОК в соц. сетях
ИНН: 7714824045 | erid: 2VtzqwzKQiU
 
Добавить ответ в эту темуОткрыть тему
> Открытая прокладка труб, Жилое здание
Bananan
сообщение 30.11.2007, 15:08
Сообщение #1





Группа: Участники форума
Сообщений: 183
Регистрация: 26.1.2006
Пользователь №: 1981



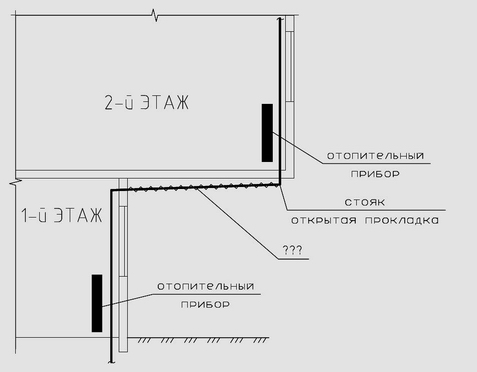
Отопительный стояк жилого дома опускается со 2-го этажа и попадает на улицу, т.к. первый этаж смещен к центру здания.
Проложить трубу в конструкции пола - нет возможности! Возможна ли прокладка трубы открыто на улице в изоляции и металлической гильзе сверху?
Есть ли нормы запрещающие такую прокладку? остывание воды в трубе и т.д.
Спасибо
Эскизы прикрепленных изображений
Прикрепленное изображение
 
Вернуться в начало страницы
 
+Ответить с цитированием данного сообщения
Гость_Stan_*
сообщение 30.11.2007, 15:18
Сообщение #2





Guest Forum






Нельзя, до такой ситуации даже в СНиПе не додумались.
Вернуться в начало страницы
 
+Ответить с цитированием данного сообщения
Владимир К.
сообщение 30.11.2007, 15:47
Сообщение #3





Группа: Участники форума
Сообщений: 43
Регистрация: 26.10.2007
Из: Москва
Пользователь №: 12341



ОТОПЛЕНИЕ, ВЕНТИЛЯЦИЯ
И КОНДИЦИОНИРОВАНИЕ
СНиП 41-01-2003

6.4.2 Прокладка трубопроводов систем отопления не допускается:
а) на чердаках зданий (кроме теплых чердаков) и в проветриваемых подпольях в районах с расчетной температурой минус 40 °С и ниже (параметры Б);

Вернуться в начало страницы
 
+Ответить с цитированием данного сообщения
Гость_Stan_*
сообщение 30.11.2007, 16:27
Сообщение #4





Guest Forum






Это из другой арии smile.gif
Вернуться в начало страницы
 
+Ответить с цитированием данного сообщения
DvaUdara
сообщение 30.11.2007, 17:09
Сообщение #5





Группа: Участники форума
Сообщений: 241
Регистрация: 27.9.2005
Из: СПб
Пользователь №: 1253



посчитайте остывание воды и все будет ясно
Вернуться в начало страницы
 
+Ответить с цитированием данного сообщения
Bananan
сообщение 3.12.2007, 10:35
Сообщение #6





Группа: Участники форума
Сообщений: 183
Регистрация: 26.1.2006
Пользователь №: 1981



Цитата
Нельзя, до такой ситуации даже в СНиПе не додумались.


Если не запрещено, то разрешено или я не прав?
Вернуться в начало страницы
 
+Ответить с цитированием данного сообщения
Гость_Stan_*
сообщение 3.12.2007, 10:50
Сообщение #7





Guest Forum






Что мешает проложить трубу внутри здания?

Цитата(Bananan @ 3.12.2007, 10:35) [snapback]197562[/snapback]
Если не запрещено, то разрешено или я не прав?

Если вы не разделяете внутренние сети и наружные, тогда можно как угодно smile.gif
Вернуться в начало страницы
 
+Ответить с цитированием данного сообщения
Alexplumb
сообщение 4.12.2007, 20:43
Сообщение #8





Группа: Участники форума
Сообщений: 238
Регистрация: 16.11.2006
Из: Санкт-Петербург
Пользователь №: 4758



Не рискуйте!!!
Стояк по стеночке верхней квартиры до зоны попадания в пространство 1-го этажа, потом под потолком до места прокладки рядом с окном.
А за сколько стояк остынет до нуля - посчитайте сами ...
В следующем сообщении присоединенный файл 2, 4 М

Вот он!
Прикрепленные файлы
Прикрепленный файл  ROCKWOOL_Album_tech_insulation.pdf ( 2,3 мегабайт ) Кол-во скачиваний: 23090
 
Вернуться в начало страницы
 
+Ответить с цитированием данного сообщения

Добавить ответ в эту темуОткрыть тему
1 чел. читают эту тему (гостей: 1, скрытых пользователей: 0)
Пользователей: 0

 

Реклама
ООО «Арктика групп» ИНН: 7713634274




Реклама: ООО «СибСтронг» | ИНН 6670013662 | ERID: 2VtzqvdgiCU

ООО «УНИСПЛИТ» ИНН: 6453155081 erid:2VtzqwGt2gw
Реклама: ООО «СЛ-ЛАЗЕР» ИНН 7727447267 | erid: 2VtzqvY3G2W

Реклама: ООО «НовоКС» | ИНН 6330071530 | erid: 2VtzqwMVijq
Последние сообщения Форума






RSS Текстовая версия Сейчас: 30.11.2025, 6:38
Политика ООО ИИП «АВОК-ПРЕСС» в отношении обработки персональных данных