Системы отопления с естественной циркуляцией, Вопросы и ответы |
|
|
|
|
10.7.2009, 11:38
|
Группа: Участники форума
Сообщений: 30
Регистрация: 14.2.2008
Из: Москва
Пользователь №: 15546

|
Надеюсь комуто поможет. расчёт ЕЦ
|
|
|
|
|
|
|
|
10.7.2009, 11:45
|
Не по вкусу пряник, не по чину мундир.
Группа: Участники форума
Сообщений: 50453
Регистрация: 24.4.2009
Пользователь №: 32666

|
Цитата(Готр @ 10.7.2009, 12:38) [snapback]410280[/snapback] Надеюсь комуто поможет. расчёт ЕЦ Отличный файлик, спасибо. Пора уже тему организовывать отдельную "Отопление с ЕЦ". Думаю, была бы очень уместна.
|
|
|
|
|
|
|
|
10.7.2009, 12:39
|
Нет ничего невозможного если Заказчик адекватен и при деньгах
Группа: Участники форума
Сообщений: 2460
Регистрация: 13.7.2007
Из: Московская обл.
Пользователь №: 9997

|
Цитата(jota @ 9.7.2009, 16:46) [snapback]410023[/snapback] JJJJ Зря вот советуете дымоход газового котла из оцинковки делать. Ведь засмеют его потом и смешают кое с чем. Если не получается из нерж. или алюминия, лучше уже тогда из чёрной жести. Цинк реагирует с азотной кислотой, пары которой - следствие горения (окисления) природного газа и оцинковка простоит значительно меньше чем чёрная жесть.... Для красоты можно жаропрочной серебрянкой покрыть.... Вот это все теория, а на практике стоит себе этот цинк уже 40 лет(на газовом котле). Да и вытяжка не вся из оцинковки, а только та ее часть которая расположена в помещении(у меня это кухня), сам дымоход из асбоцементных труб(других в то время не было). Неуже ли в помещении из черной стали делать. А я потемневшую оцинковку покрыл прозрачным лаком и она приняла вполне благородный вид. Кстатии серебрянка плохо стоит при температуре, пробовал. ИНЖ! зонтик нужен, атмосферные осадки не есть хорошо, вороны кости бросают, в ветренную дождливую погоду даже зонт не в полной мере спасает и тогда в стакан со смотровым лючком(чаще его называют трайник) набирается вода, а поскольку он не герметичный то стекает на пол непотребного вида жидкость.
|
|
|
|
|
|
|
|
10.7.2009, 12:56
|
Группа: Участники форума
Сообщений: 30
Регистрация: 14.2.2008
Из: Москва
Пользователь №: 15546

|
СП 41-104-2000
10. ДЫМОВЫЕ ТРУБЫ
10.1. Высота дымовых труб при искусственной тяге определяется в соответствии с ОНД-86. Высота дымовых труб при естественной тяге определяется на основании результатов аэродинамического расчета газовоздушного тракта и проверяется по условиям рассеивания в атмосфере вредных веществ. 10.2. При расчете рассеивания в атмосфере вредных веществ следует принимать максимально допустимые концентрации золы, оксидов серы, оксидов азота, оксидов углерода. При этом количество выделяемых вредных выбросов принимается, как правило, по данным заводов (фирм) изготовителей котлов, при отсутствии этих данных определяется расчетным путем. 10.3. Скорость дымовых газов на выходе из дымовой трубы при естественной тяге принимается не менее 6 - 10 м/с исходя из условий предупреждения задувания при работе котельной на сниженных нагрузках. 10.4. Высота устья дымовых труб для встроенных, пристроенных и крышных котельных должна быть выше границы ветрового подпора, но не менее 0,5 м выше конька крыши, а также не менее 2 м над кровлей более высокой части здания или самого высокого здания в радиусе 10 м. 10.5. Для автономных котельных дымовые трубы должны быть газоплотными, изготавливаться из металла или из негорючих материалов. Трубы должны иметь, как правило, наружную тепловую изоляцию для предотвращения образования конденсата и люки для осмотра и чистки, закрываемые дверками. 10.6. Дымовые трубы следует проектировать вертикальными без уступов. 10.7. Устья кирпичных дымовых труб на высоту 0,2 м следует защищать от атмосферных осадков. Устройство зонтов, дефлекторов и других насадок на дымовых трубах не допускается. 10.8. Расстояние от наружной поверхности кирпичных труб или бетонных дымовых труб до стропил, обрешеток и других деталей кровли из горючих и трудногорючих материалов следует предусматривать в свету не менее 130 мм, от керамических труб без изоляции - 250 мм, а при теплоизоляции с сопротивлением теплопередаче 0,3 м2 х °С/Вт негорючими или трудногорючими материалами - 130 мм. Пространство между дымовыми трубами и конструкциями кровли из горючих или трудногорючих материалов следует перекрывать негорючими кровельными материалами. 10.9. Следует предусматривать защиту от коррозии наружных стальных конструкций кирпичных и железобетонных дымовых труб, а также поверхностей стальных труб. 10.10. Выбор конструкции защиты внутренней поверхности дымовой трубы от агрессивного воздействия среды должен производиться исходя из условий сжигания топлива.
|
|
|
|
|
|
|
|
10.7.2009, 13:08
|
Группа: Участники форума
Сообщений: 4383
Регистрация: 14.11.2006
Пользователь №: 4724

|
10.1. Для расчета по ОНД-86 нужно знать приземную фоновую концентрацию. После осознания этого факта расчет для одноквартиного дома благополучно заканчивается. Это касается и п 10.2. 10.3 Вдноквартирных домах диаметр брался по данным производителя (по фактическому выходу из котла) без проверки на скорость.
|
|
|
|
|
|
|
|
10.7.2009, 13:22
|
Группа: Участники форума
Сообщений: 30
Регистрация: 14.2.2008
Из: Москва
Пользователь №: 15546

|
Племяннику помогал отопления мострячить, а у него газовый котёл и водогрейка соответственно тоже газовая, хотели объединить в одну трубу с рассечкой, а газовая служба ответила примерно так: " а мне прох... что в СНиПах и ГОСТах пишут у нас своё виденье этого дела и внутренние инструкции и всё тут. Диаметр трубы не ниже заводской раз и труба асбоцементная два если хочеш чтобы газ подключили. на кой чё глаза закрывают за "вознограждение"
Сообщение отредактировал Готр - 10.7.2009, 13:27
|
|
|
|
|
|
|
|
10.7.2009, 14:47
|
Нет ничего невозможного если Заказчик адекватен и при деньгах
Группа: Участники форума
Сообщений: 2460
Регистрация: 13.7.2007
Из: Московская обл.
Пользователь №: 9997

|
Цитата(Готр @ 10.7.2009, 10:22) [snapback]410347[/snapback] Племяннику помогал отопления мострячить, а у него газовый котёл и водогрейка соответственно тоже газовая, хотели объединить в одну трубу с рассечкой, а газовая служба ответила примерно так: " а мне прох... что в СНиПах и ГОСТах пишут у нас своё виденье этого дела и внутренние инструкции и всё тут. Диаметр трубы не ниже заводской раз и труба асбоцементная два если хочеш чтобы газ подключили. на кой чё глаза закрывают за "вознограждение" Печная вытяжка АОГВ11,6 - диаметр 100мм, Водогрейные котлы(газовые колонки, например КГИ56) диаметр вытяжки 140мм. Можно посчитать диаметр объединенной трубы. А врезать колонку в трубу 100мм конечно нельзя и пожарники не примут СО. Как правило в одной утепленной гильзе прокладывается 3 шт. трубы: печная вытяжка, вытяжка водогрейного котла и вытяжка естественная из пом. котельной(без нее пожарники не примут). И на счет растояний от сгораемых конструкций тоже все верно. В частности в том числе для этого и гильза и крепление асбоцементных труб к металическим уголкам или швелерам с помощью так называемых "стремянок" (пруток 10 согнутый хомутом и с резьбами на концах), сами уголки крепятся на потолочных балках. Таким образом можно выдержать расстояния от сгораемых конструкций дома. Если выполнить печную вытяжку согласно рекомендаций завода изготовителя, то и скорость и разряжение будут в норме, в сущности об этом и говорили слесари газовой службы.
|
|
|
|
|
|
|
|
12.7.2009, 1:47
|
Группа: Участники форума
Сообщений: 30
Регистрация: 14.2.2008
Из: Москва
Пользователь №: 15546

|
Скачал где-то из интернета. как вариант.
|
|
|
|
|
|
|
|
14.7.2009, 0:49
|
Группа: Участники форума
Сообщений: 30
Регистрация: 14.2.2008
Из: Москва
Пользователь №: 15546

|
Цитата(Готр @ 10.7.2009, 12:38) [snapback]410280[/snapback] Надеюсь комуто поможет. расчёт ЕЦ вот ещё: Схемы
|
|
|
|
|
|
|
|
23.9.2013, 10:07
|
Группа: New
Сообщений: 1
Регистрация: 23.9.2013
Пользователь №: 206555

|
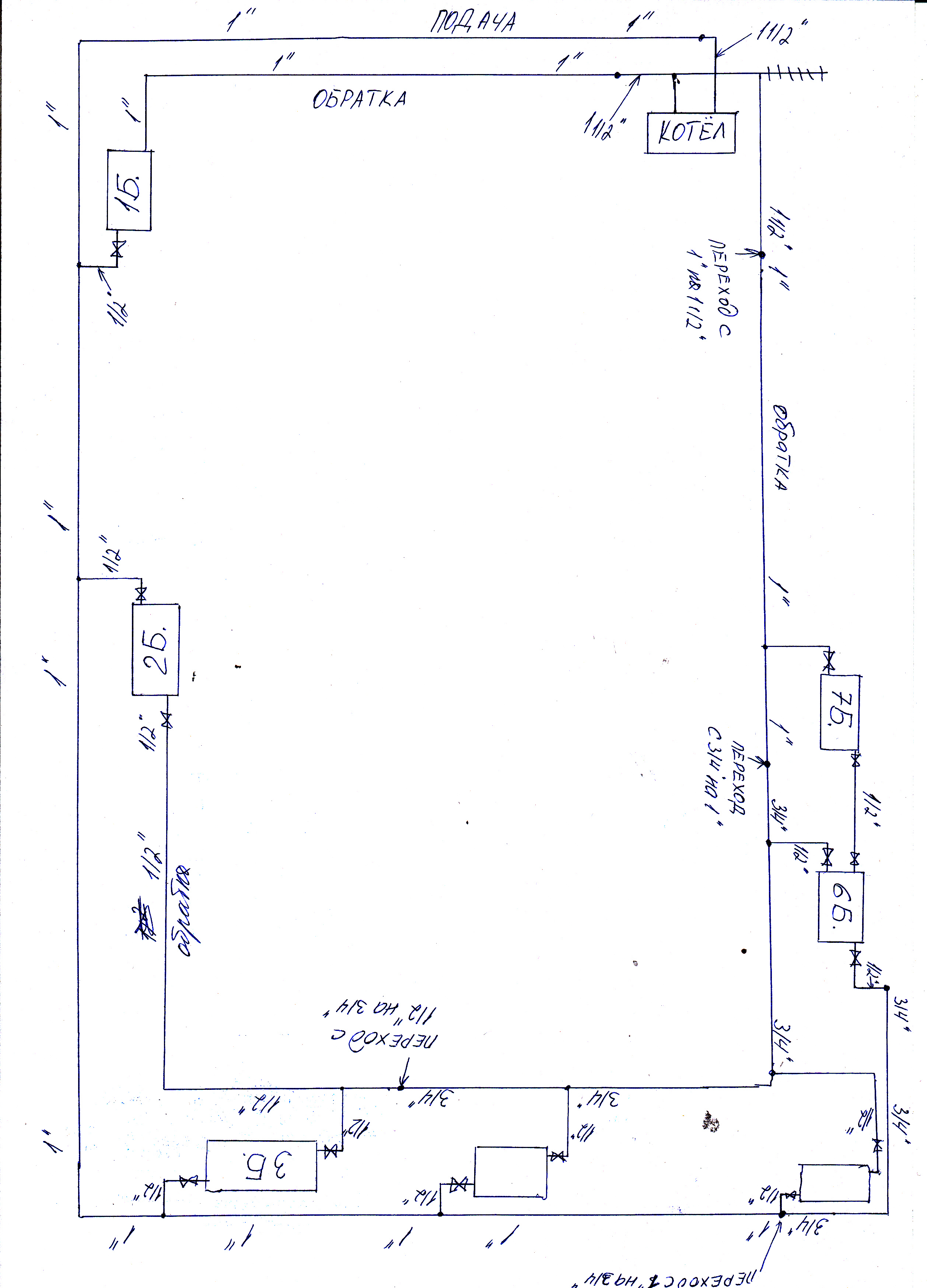
Здравствуйте! Пожалуйста, посоветуйте что можно сделать!!! У меня такая вот проблема. Смонтировал систему отопления заново. Схема прилагается. В итоге нагреваются только верх батарей, низ везде холодный, обратка вся холодная. Исключение только для батареи Б1. Там обратка дюймовая. все остальные размеры даны в схеме. описание проблемы тоже дано в прикрепленном файле. Буду очень благодарен!!!!!!!!!!! Помогите!!!
Эскизы прикрепленных изображений
|
|
|
|
|
|
|
|
26.9.2013, 11:18
|
Группа: Участники форума
Сообщений: 588
Регистрация: 6.6.2007
Пользователь №: 9342

|
Цитата(ромманн @ 23.9.2013, 12:37)  Здравствуйте! Пожалуйста, посоветуйте что можно сделать!!! У меня такая вот проблема. Смонтировал систему отопления заново. Схема прилагается. В итоге нагреваются только верх батарей, низ везде холодный, обратка вся холодная. Исключение только для батареи Б1. Там обратка дюймовая. все остальные размеры даны в схеме. описание проблемы тоже дано в прикрепленном файле. Буду очень благодарен!!!!!!!!!!! Помогите!!! Я так понимаю система с естественной циркуляцией? Через Б1 циркулирует т.к. это более короткий циркуляционный контур. Нужно отрегулировать систему. Закрыть для начала проток через Б1. Далее закрыть проток через другие приборы . Открывать по одному. Б1 приоткрывать понемногу только после того как все остальные начнут прогреваться. В случае если Ваша система имеет гидравлическое сопротивление больше чем расчетное , то возможно решить только путем конструктивного вмешательства (установка насоса, увеличение диаметра трубопроводов, увеличение разности максимальной и минимальной отметок системы (котел в самой нижней точке системы должен быть),увеличение разности температуры между подачей и обраткой)
|
|
|
|
|
|
|
|
26.9.2013, 11:57
|
Группа: Участники форума
Сообщений: 2233
Регистрация: 8.7.2008
Из: Днепропетровск
Пользователь №: 20416

|
Судя по описанию экспериментов (при горячем верхе батареи низ всегда холодный, максимум теплый) - нехватка давления (малый перепад центра нагрева и центра охлаждения), и как только центр охлаждения (горячие участки радиаторов) становится ниже - циркуляция встает. Рекомендации - переделка системы (например, сделать разгонный участок) или насос. В любом случае хотелось бы видеть аксонометрическую схему - возможно, переделка обойдется "малой кровью"...
|
|
|
|
|
|
|
|
13.10.2013, 14:42
|
Группа: Участники форума
Сообщений: 36
Регистрация: 17.9.2013
Пользователь №: 205945

|
Про Б1 вам уже ответили , она малое кольцо с нормальной подводкой , вот и работатет . Я по системе пройдусь .Гидравлическое сопротивление системы велико . Диаметры надо увеличивать . Непонятно наличие уклонов , на схеме я их не увидел . Отсутствие уклонов тоже убивает систему . И непонятно чем собранна система , сталью или полипропиленом ( 32 PPR трубу тож дюймовой называют ) ? Впрочем с такими диаметрами она вряд ли будет работать самотёком . Я расскажу просто и доходчиво . Труба 1 дюйм ставится только на конечных участках перед врезкой в концевой радиатор . Иногда на дюймовый отрезок ставят два радиатора . Вообще такая система собирается ,,телескопом ,, и держатся уклоны от 2,5-3 мм на метр и больше . Без соблюдения уклонов система станет , причём с симптомами похожими на ваши . Без ,,телескопичности нормально будут работать первые 1-2 радиатора . На подводках к радиаторам как можно меньше уголков , т.к. диаметр подводок у вас 1/2 , и уголки тоже прилично держат . Единственный простой и дешёвый способ запустить систему , врезать насос , байпас с такими диаметрами безсмысленен . С насосом она будет работать нормально . По другому вы её вряд ли запустите . И обязательно рег краны на Б1 .
|
|
|
|
|
|
1 чел. читают эту тему (гостей: 1, скрытых пользователей: 0)
Пользователей: 0
|
|
Реклама
ООО «Арктика групп» ИНН: 7713634274
Реклама: ООО «СибСтронг» | ИНН 6670013662 | ERID: 2VtzqvdgiCU
ООО «УНИСПЛИТ» ИНН: 6453155081 erid:2VtzqwGt2gw
Реклама: ООО «СЛ-ЛАЗЕР» ИНН 7727447267 | erid: 2VtzqvY3G2W
Реклама: ООО «НовоКС» | ИНН 6330071530 | erid: 2VtzqwMVijq
Последние сообщения Форума
|