Отопление домика охраны, Система с аккумулятором тепла. |
|
|
|
Гость_Владимир Борисович_*
|
18.4.2010, 14:21
|
Guest Forum

|
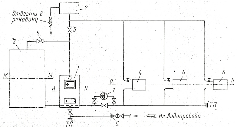
Уважаемые форумчане. Окажите помощь, дайте совет. Есть небольшой домик для охраны дачных участков. Здание из оцилиндрованных бревен диаметром 22см, изнутри гипсокртон, снаружи сайдинг. Помещений три: кухня 7м2 и две комнаты по 12м2. Необходимо осуществить отопление этих помещений, но только дровами, их навалом. Планировочно здание представляет собой комнаты расположенные последовательно, поэтому просто печь может отопить только два помещения. Предлагается выполнить водяное отопление, но при этом заказчик хочет иметь тепловой аккумулятор, чтобы не топить беспрерывно. Вопрос, как посчитать водяной аккумулятор тепла на 6 - 8 часов работы. Нужна методика расчета. Делать его теплоизолированным или нет.Схему отопления подобрал.
|
|
|
|
|
|
|
Гость_Владимир Борисович_*
|
18.4.2010, 14:27
|
Guest Forum

|
Схему прилагаю.
Эскизы прикрепленных изображений
|
|
|
|
|
|
|
|
18.4.2010, 15:28
|
Не по вкусу пряник, не по чину мундир.
Группа: Участники форума
Сообщений: 50502
Регистрация: 24.4.2009
Пользователь №: 32666

|
Туда бы насос общий на обратку (чтобы и из аккумулятора качал), и развязку трёхходовым на выходе в систему и/или аккумулятор. А аккумулятор конечно нужно теплоизолировать. Но это так, по ходу, а по объёмам ничего не скажу, изба судя по описанию довольно добротная.
Сообщение отредактировал HeatServ - 18.4.2010, 15:30
|
|
|
|
|
|
|
|
18.4.2010, 16:00
|
Группа: Участники форума
Сообщений: 77
Регистрация: 10.7.2007
Из: Магнитогорск
Пользователь №: 9910

|
Методику расчета ТА не знаю, но производители рекомендуют 30-50литров на 1кВт.
|
|
|
|
|
|
|
|
18.4.2010, 16:12
|
Группа: Участники форума
Сообщений: 7297
Регистрация: 27.5.2007
Пользователь №: 8854

|
"заряжать аккумулятор" нужно по выходу из котла, а не через обратку. Назначение запорного устройства на восходящей линии - непонятно. Я бы с аккумулятором связываться не стал, поскольку емкость на требуемый промежуток работы требуется - до 1 куб.м. и нужно манипулировать запорными кранами. Проще поставить ТЭНовый электрокотел 1,5 кВт с термостатотом на 45-50 гр.С на восходящей линии. Ничего переключать не нужно будет, а на поддержание температуры в течение 6-8 часов достаточно.
|
|
|
|
|
|
|
Гость_Владимир Борисович_*
|
18.4.2010, 16:39
|
Guest Forum

|
Там теплопотери посчитаны 5,8 квт получилось. А вот электричество в этом районе большая проблемма к сожалению и часты перерывы в подаче эл. энергии. Конечно высокой точности там не надо, но согласитесь, что охране сутками сидеть у печки не есть здорово. Охранять как то надо, обходы там делать. А система отопления на три радиатора остывть начинает по расчету через 30 - 40 минут после прогорания топлива, емкости воды маловато. Предполагаю что аккумулятор долен быть литров на 500-600. Но вот процесс остывания в нем по времени не совсем понятен. И до какой степени он может остывать. Может лучше самопальные емкостные отопительные приборы поставить, тем самым увеличить теплоемкость системы, но опять до какой емкости это сделать.
|
|
|
|
|
|
|
|
18.4.2010, 16:44
|
Группа: Участники форума
Сообщений: 20930
Регистрация: 8.8.2007
Из: Vilnius
Пользователь №: 10542

|
Цитата(HeatServ @ 18.4.2010, 15:28)  Туда бы насос общий на обратку (чтобы и из аккумулятора качал), и развязку трёхходовым на выходе в систему и/или аккумулятор.
|
|
|
|
|
|
|
|
18.4.2010, 17:13
|
МОДЕРАТОР
Группа: Модераторы
Сообщений: 10995
Регистрация: 3.7.2004
Пользователь №: 32

|
Есть печи с аккумуляторами на основе легкоплавких металлов, есть аккумуляторы на основе тугоплавких парафинов. Аккумулятор без фазового перехода вещества - занимает много места и очень много весит.
|
|
|
|
|
|
|
|
18.4.2010, 17:22
|
Группа: Участники форума
Сообщений: 7297
Регистрация: 27.5.2007
Пользователь №: 8854

|
Нет таких металлов и парафинов с удельной теплоемкостью выше, чем у воды! Экзотика - водород (теплоемкость в три раза выше), как на генераторах ТЭЦ.
|
|
|
|
|
|
|
|
18.4.2010, 17:43
|
Группа: Участники форума
Сообщений: 4190
Регистрация: 17.8.2007
Из: Москва
Пользователь №: 10745

|
Владимир Борисович!
Вы же сами приводили схемы. Традиционно в России эта задача решалось воздушным отоплением. От Храмов до богатых жилых домов.
Кухня и комната _печь. Вторая комната воздушное отопление. Канал в печи. Грубо труба сотка, но обычно канал. Регулируемое отверстие у пола. Корб из досок от верхнего отверстия в канала до второй комнаты. В ней перетоки или щель под дверью. Возможны современные вариации. Видел такие дома в два этажа от двух , печей. одна кухонная. Делают еще разгонный короб из досок у стенки печи. Аналогично решают вытяжки.
Посмотрите "раскладки"таких печей ... их много...
Массивность из разумных размеров печи.
Конечно можно начать эксперементировать с энергоактивными оболочками, но сруб уже есть..
|
|
|
|
|
|
|
|
18.4.2010, 17:44
|
МОДЕРАТОР
Группа: Модераторы
Сообщений: 10995
Регистрация: 3.7.2004
Пользователь №: 32

|
испытатель, вы - не внимательны!
|
|
|
|
|
|
|
|
18.4.2010, 17:59
|
Не по вкусу пряник, не по чину мундир.
Группа: Участники форума
Сообщений: 50502
Регистрация: 24.4.2009
Пользователь №: 32666

|
Цитата(LordN @ 18.4.2010, 18:13)  Есть печи с аккумуляторами на основе легкоплавких металлов, есть аккумуляторы на основе тугоплавких парафинов. Аккумулятор без фазового перехода вещества - занимает много места и очень много весит. С теплотой фазового перехода было бы интересно, но вода подешевше будет. Да и неужели 3 тонны воды в эту избу не затолкать? Я за воду.
|
|
|
|
|
|
|
|
18.4.2010, 18:06
|
Группа: Участники форума
Сообщений: 4190
Регистрация: 17.8.2007
Из: Москва
Пользователь №: 10745

|
К посту семь. Быть может ... насос на байпас, а лепестковый обратный клапан на прямой ход... Цитата(HeatServ @ 18.4.2010, 18:59)  С теплотой фазового перехода было бы интересно, но вода подешевше будет. Да и неужели 3 тонны воды в эту избу не затолкать? Я за воду. Раз речь за воду... водонаполняемую стену..  Три куба...
|
|
|
|
|
|
|
|
18.4.2010, 18:14
|
Группа: Участники форума
Сообщений: 20930
Регистрация: 8.8.2007
Из: Vilnius
Пользователь №: 10542

|
Цитата(HeatServ @ 18.4.2010, 17:59)  Да и неужели 3 тонны воды в эту избу не затолкать?. Какие 3 тонны? 500 лтр максимум
|
|
|
|
|
|
|
|
18.4.2010, 19:37
|
Не по вкусу пряник, не по чину мундир.
Группа: Участники форума
Сообщений: 50502
Регистрация: 24.4.2009
Пользователь №: 32666

|
Цитата(jota @ 18.4.2010, 19:14)  Какие 3 тонны? 500 лтр максимум Дык я так просто, от балды и с запасом. 3 тонны-то ясное дело за глаза. Мне не совсем понятно как в схеме 1 поста 7 происходит накопление?
|
|
|
|
|
|
|
|
18.4.2010, 19:44
|
Группа: Участники форума
Сообщений: 20930
Регистрация: 8.8.2007
Из: Vilnius
Пользователь №: 10542

|
Цитата(HeatServ @ 18.4.2010, 19:37)  Мне не совсем понятно как в схеме 1 поста 7 происходит накопление? Должно быть натуральная гравитационная циркуляция....
|
|
|
|
|
|
|
|
18.4.2010, 19:47
|
Группа: Участники форума
Сообщений: 4383
Регистрация: 14.11.2006
Пользователь №: 4724

|
Цитата(Бойко @ 18.4.2010, 19:06)  К посту семь. Быть может ... насос на байпас, а лепестковый обратный клапан на прямой ход... Раз речь за воду... водонаполняемую стену..  Три куба... Господа насос клапан это хорошо, но перебои с электричеством. Я за русскую печь. На 2 помещения и гравитационную систему с радиаторами типа МС-140 - там и запас воды можно хранить и гравит система дает большие диаметры, что тоже увеличивает ак. способность.
|
|
|
|
|
|
|
|
18.4.2010, 20:24
|
Не по вкусу пряник, не по чину мундир.
Группа: Участники форума
Сообщений: 50502
Регистрация: 24.4.2009
Пользователь №: 32666

|
Цитата(Const82 @ 18.4.2010, 20:47)  Господа насос клапан это хорошо, но перебои с электричеством. Я за русскую печь. На 2 помещения и гравитационную систему с радиаторами типа МС-140 - там и запас воды можно хранить и гравит система дает большие диаметры, что тоже увеличивает ак. способность. Печью регулировать сложно, перетопы. Перетоп печью это такой атас, хоть догола раздевайся.
|
|
|
|
|
|
|
Гость_Владимир Борисович_*
|
18.4.2010, 21:19
|
Guest Forum

|
Похоже картина прояснилась. Тем более, перезвонился с председателем кооператива. Мой главный аргумент такой. Питаться люди три раза в день должны, должны. Значит и печь зимой три раза в день топить надо. Убедил похоже. Дает он свой бак из трубы 500мм на 2 метра длиной, готовый, заглушенный. Печь- котел в стальном исполнении они присмотрели уже, название котла сказать не мог, завтра определимся. Что касется самой системы, то решили простую гравитационку. Бак аккумулятор на вертикаль, разводка над дверью, с опуском на приборы. Пока не решил как аккумулятор заряжать до полной и при этом не перегревать помещения. Боюсь на гравитационке термостаты большие КМС создадут.
|
|
|
|
|
|
|
|
18.4.2010, 21:37
|
Группа: Участники форума
Сообщений: 20930
Регистрация: 8.8.2007
Из: Vilnius
Пользователь №: 10542

|
Какие термостаты на гравитацию с такой высотой? Ставьте шаровые краны, хоть говорят что с ними регулировать нельзя, но для такой системы самое то....
|
|
|
|
|
|
|
Гость_Владимир Борисович_*
|
18.4.2010, 22:11
|
Guest Forum

|
Согласен, и благодарю за консультацию Вас и всех, кто принимал в ней участие.
|
|
|
|
|
|
|
|
18.4.2010, 22:25
|
техник ОВ
Группа: Участники форума
Сообщений: 3827
Регистрация: 17.4.2007
Из: Санкт-Петербург
Пользователь №: 7201

|
Цитата(Владимир Борисович @ 18.4.2010, 22:19)  Похоже картина прояснилась. Тем более, перезвонился с председателем кооператива. Мой главный аргумент такой. Питаться люди три раза в день должны, должны. Значит и печь зимой три раза в день топить надо. Убедил похоже. Да вы, батенька, манагер. Впариваете людям никчёмную утварь. Если печь топить три раза в день и при этом в доме холодно, значит дом утеплять нужно или после топки вьюжку закрывать, чтобы тепло не выдувало (для этого даже простецкой буржуйки хватит), а чтобы третью комнату отопить, достаточно дверь в нее не закрывать.
|
|
|
|
|
|
|
Гость_Владимир Борисович_*
|
19.4.2010, 8:56
|
Guest Forum

|
Ну нету там никакой печи и не планируется ее делать. Есть водяной котел в металлическом кожухе размером 40 на 60см, по паспорту его мощность около 6квт. Первоначально планировалось отопление эл. радиаторами, но пришлось отказаться из-за ненадежности электроснабжения и высокой стоимости.Поэтому тепловой аккумулятор наиболее верное решение.Не будет хватать его тепловой мощности, тогда и топить придется по ощущениям.А кухня, она же прихожая, она же тамбурное помещение, она же котельная. Другое дело, чтобы при зарядке аккумулятора система не перегревалась. Аккумулятор заряжать на 90гр, а системе в это время будет необходимо всего 60гр.вот это для меня проблема пока нерешенная. Все остальное ясно и понятно.
|
|
|
|
|
|
|
|
19.4.2010, 9:17
|
Не по вкусу пряник, не по чину мундир.
Группа: Участники форума
Сообщений: 50502
Регистрация: 24.4.2009
Пользователь №: 32666

|
Цитата(Владимир Борисович @ 19.4.2010, 9:56)  Ну нету там никакой печи и не планируется ее делать. Есть водяной котел в металлическом кожухе размером 40 на 60см, по паспорту его мощность около 6квт. Первоначально планировалось отопление эл. радиаторами, но пришлось отказаться из-за ненадежности электроснабжения и высокой стоимости.Поэтому тепловой аккумулятор наиболее верное решение.Не будет хватать его тепловой мощности, тогда и топить придется по ощущениям.А кухня, она же прихожая, она же тамбурное помещение, она же котельная. Другое дело, чтобы при зарядке аккумулятора система не перегревалась. Аккумулятор заряжать на 90гр, а системе в это время будет необходимо всего 60гр.вот это для меня проблема пока нерешенная. Все остальное ясно и понятно. Вот как раз зарядка и есть самое тонкое место. Вообще я предлагал ручной трёхходовик, который можно ставить на промежуточные и крайние значения (заряд аккумулятора/отопление из аккумулятора/отопление котлом), по идее насос упростил бы это дело работая и как смесительный и как побудитель, но раз электричество ненадёжное, то конечно проблемнее. Если систему целиком гравитационной делать, то аккумулятор пониже нужно ставить, а без насоса заряжать его даже не знаю как. Слишком низкие скорости будут. Или вообще делать отдельные контуры: котёл-аккумулятор-система. Аккумулятор работает как гидрострелка и гравитационный насос. Возможно придётся разместить для этого котёл как можно ниже, а сам аккумулятор высоким для создания гравитационного напора, можно из трубы-трёхсотки.
|
|
|
|
|
|
|
|
19.4.2010, 9:53
|
Не по вкусу пряник, не по чину мундир.
Группа: Участники форума
Сообщений: 50502
Регистрация: 24.4.2009
Пользователь №: 32666

|
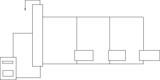
Проиллюстрирую. Можно для переключения на режим "без аккумулятора" поставить отсекатель на аккумулятор или байпас напрямую из системы в обратку котла.
Сообщение отредактировал HeatServ - 19.4.2010, 9:53
Эскизы прикрепленных изображений
|
|
|
|
|
|
|
|
19.4.2010, 9:58
|
Не по вкусу пряник, не по чину мундир.
Группа: Участники форума
Сообщений: 50502
Регистрация: 24.4.2009
Пользователь №: 32666

|
Вот так без аккумулятора.
Эскизы прикрепленных изображений
|
|
|
|
|
|
|
|
19.4.2010, 10:04
|
Эко Интегратор Всея Руси
Группа: Участники форума
Сообщений: 12294
Регистрация: 14.1.2008
Из: Архангельск
Пользователь №: 14438

|
Чувствуется 21-й век, ядрена корень ))) Зачем все это хозяйство ? Ведь достаточно было бы на кухне плиту выложить, и греющую полустенку между кухней и 1-й комнатой, с дымоходом внутри. А во второй комнате либо ничего, либо столбянку 2 х 3...3,5 кирпича, сам на даче такую выкладывал - и варит, и греет, и обувь-одежду сушит, и места не занимает. Либо уж камин, если красоты захочется. Топится все это два раза в день - утром и вечером, часа по полтора, без особого контроля. Растопил - и занимайся чем угодно. Обед варится, печь топится. Обед - в духовке горячий стоит до обеда изумительно. (духовка - металлический шкафчик, встроенный в кухонную плиту позади топки). Одну или две топки протопить - разницы никакой, поверьте мне, мы прожили с 2 печками 20 лет. Пожарная безопасность - вполне по силам ребенку старше 10-ти. Главное в охранном деле - не бухать сверх меры  .
|
|
|
|
|
|
|
|
19.4.2010, 10:07
|
Не по вкусу пряник, не по чину мундир.
Группа: Участники форума
Сообщений: 50502
Регистрация: 24.4.2009
Пользователь №: 32666

|
Цитата(Машинист @ 19.4.2010, 11:04)  Дык котёл у их уже есть. Осталось сгородить аккумулятор и 3 радиатора. И бухла.
|
|
|
|
|
|
|
|
19.4.2010, 10:14
|
Эко Интегратор Всея Руси
Группа: Участники форума
Сообщений: 12294
Регистрация: 14.1.2008
Из: Архангельск
Пользователь №: 14438

|
Дак вот в том и проблема, что богато живут.
Вдумайтесь: Дом из оцилиндрованного дерева надо обшить снаружи и снутри ( такую красоту испортить !!! ) Да еще сайдингом ... Некак было сколотить двухслойный сарай из досок и засыпать между опилком и обшить так же. И теплопотери были бы меньше еще. и дешевле - из мусора почти.
Ворчу, ворчу ))) Живут люди хорошо - и ладушки. Вот только зачем что-то покупать не думая, а затем мучиться - куда бы это впендюрить и что еще к нему сбоку присобачить ??? По-русски это, слишком по-русски. Найдите печника хорошего, и не парьтесь. А котел продайте, и деньги дружески пропейте )))
|
|
|
|
|
|
|
|
19.4.2010, 10:18
|
Не по вкусу пряник, не по чину мундир.
Группа: Участники форума
Сообщений: 50502
Регистрация: 24.4.2009
Пользователь №: 32666

|
Цитата(Машинист @ 19.4.2010, 11:14)  Некак было сколотить двухслойный сарай из досок и засыпать между опилком и обшить так же. И теплопотери были бы меньше еще. и дешевле - из мусора почти. Это домик охраны, он должен быть неприступным как Форт-Нокс, оттудова должны выходить суръёзные похмельные мужики и говорить: "Кто такие? По какому праву?" А ты говоришь из кизяка мазанку лепить.
|
|
|
|
|
|
2 чел. читают эту тему (гостей: 2, скрытых пользователей: 0)
Пользователей: 0
|
|
Реклама
ООО «Арктика групп» ИНН: 7713634274 | erid 2VtzqvpbUMg
ООО «УНИСПЛИТ» ИНН: 6453155081 erid:2VtzqxNcYBM
Реклама: ООО «СЛ-ЛАЗЕР» ИНН 7727447267 | erid: 2VtzqvEDgM7

Реклама: ООО «Зет-Логист» ИНН 5401982392 | erid: 2Vtzqw44UH9
Последние сообщения Форума
|