|
  |
система отопления прошу совета |
|
|
|
|
21.4.2010, 8:17
|
Группа: Участники форума
Сообщений: 95
Регистрация: 24.7.2009
Из: херсон
Пользователь №: 36488

|
Реальный объект. Вопрос в исполнении разводки отопления радиаторного. Все радиаторы с нижним подключением через "бинокли" прямые с функцией отключения прибора. На всех радиаторах и полотенцесушителях предполагаются термоголовы с выносным датчиком типа RAW-K 5032 Danfoss Вариант первый это делать систему согласно проекта из ппр и взять "бинокли" с функцией регулирования. В проекте стоят терморегуляторы под радиаторами что это за такое? Вариант второй - поэтажные ящики с балками и расходомерами, лучевая разводка. В котельной предполагается два котла на 48кВт на отопление и на 25кВт на гвс летом и в качестве аварийного. Емкостной бойлер 300л косвенного нагрева, теплообменник бассейна, теплые полы. Обвязка котельной предполагается вот так... А если не ставить стрелку, а просто кинуть петлю д50 из подачи в обратку и на эту петлю подключить систему отбора тепла?
Эскизы прикрепленных изображений
|
|
|
|
|
|
|
|
22.4.2010, 7:57
|
Группа: Участники форума
Сообщений: 429
Регистрация: 21.9.2009
Из: Москва
Пользователь №: 38700

|
Интересный проект  Вопрос по фоткам, попутно отвечу на вопросы: 1) Зачем узел смешения после котлов? Если честно совершенно не понятно каким образом будет осуществляться подача воды ГВС летом, вы планируете перекрывать вручную все ветки кроме гвс летом? + где узел смешения гвс? + почему насосы на подаче? + это вся обвязка расширительного бака? Стрелка после котлов небходима, т.к. она выполняет несколько задач, которые обычная "петля" выполнить не сможет, например деаэрацию + грязевик. 2) Обозначение панельных радиаторов - убило. 3) Труба полипропилен ду15? "Термодатчик" Терморегулятор на прибор все-таки ставится сбоку в "штатное место", с сайта производителя: "В комплект поставки радиаторов серии KERMI входит: кран Маевского, заглушка, комплект кронштейнов для настенного крепежа, встроенный термосмесительный вентиль без термоголовки." Последний абзц с 3 фотки не понял - автору надо меньше курить. 4,5,6) На самом деле я бы не стал делать врезку в общий коллектор на систему полов, сделал бы шкафы локально в комнатах + в шкафах узлы обвязки. ЗЫ "Гребенка (как говорил мой преподаватель) у барышень в сумках, чтобы причесывать (мягко выражусь) голову, в отоплении/теплоснабжении все-таки "коллектор""
Сообщение отредактировал Wizlock - 22.4.2010, 8:01
|
|
|
|
|
|
|
|
22.4.2010, 12:32
|
Группа: Участники форума
Сообщений: 204
Регистрация: 24.10.2007
Пользователь №: 12283

|
1 оставь что нибудь одно. или стрелку или узел смешения, я за узел смешения(со стрелками работал мало , не понимаю как она будет рабоать в таком диапазоне), поставить фильтр отдельно и воздушник проблем особо нет 2. гвс непонятно как будет работать. или батареии будут холодные или гвс очень горячей. плюс при таком раскладе. постоянно будет в отоплении вода менятся и накипь поубивает котлы. я бы гвс вообще повесил на отдельный котел и отрегулировал на 50С тогда и без узла смешения работать будет, а в отопление залил бы чистую воду мягкую 3 насос поставь перед котлами потом с батареями. там все в комплекте идет. и регулятор стоит сбоку на абатерее. нафиг его ставить у пола увеличивая простраство пол-батарея как соединять полы и батареи вопрос эстетики и заказчика я думаю где ему удобне. работтаь и так и так будет
и что то сомнения по поводу мощности. басейн там большой, хватит ли 50квт?. и подача воды стабильная? насос может поставить на входе
|
|
|
|
|
|
|
|
22.4.2010, 13:12
|
Группа: Участники форума
Сообщений: 20956
Регистрация: 8.8.2007
Из: Vilnius
Пользователь №: 10542

|
Котельная. При работе на гидравлический разделитель, каждый котёл должен иметь свой насос и на обратке к котлу. 3х ходовой клапан контроля обратки ставится на обратку. Так как стоит у Вас - это с функцией зарядки аккумулятора. На обратке обязателен фильтр. На тёплые полы насос должен быть после регулирующего клапана, а не до. Нет термометров..для контроля. Нет балансовых вентилей Система отопления. Здесь подошла бы коллекторная система (у вас она называется лучевая). Эта система отличается тем, что каждый радиатор к коллекторному ящику подключается отдельной линией. Трубы PEX без соединений, цельные от коллектора до радиатора - это обеспечивает высокую надёжность. У Вас такой системы нет. То что вы назвали и показали как лучевая - не знаю как назвать. Полипропиленовые трубы не гибкие и соединяются диффузионной сваркой и с большим температурным расширением - для разводки к радиаторам не очень годятся. Фитинги ППР очень дорогие. Насчёт выносных голов к радиаторам - такое можно обосновать только если сами радиаторы в закрытой нише или отделены портьерами. А так можно головы ставить на термостатный вентиль радиатора. Резюме: Если Вы проектировщик, то плохо представляете то, чем занимаетесь
|
|
|
|
|
|
|
|
22.4.2010, 15:26
|
Группа: Участники форума
Сообщений: 429
Регистрация: 21.9.2009
Из: Москва
Пользователь №: 38700

|
Цитата Так как стоит у Вас - это с функцией зарядки аккумулятора. Можно более конкретно, не осилил формулировку.
|
|
|
|
|
|
|
|
22.4.2010, 19:24
|
Группа: Участники форума
Сообщений: 20956
Регистрация: 8.8.2007
Из: Vilnius
Пользователь №: 10542

|
Цитата(Wizlock @ 22.4.2010, 15:26)  Можно более конкретно, не осилил формулировку. Это я неточно сформулировал. Такие термостаты используются как для заполнения аккумуляторных баков, так и для ограничения минимума обратки. В первом случае термостатный элемент обычно на 70*- 80*С и клапан ставится на подаче перед баком-аккумулятором. Пока температура подачи не выросла до 70*-80* подача через клапан возвращается в обратку. Это сделано для того, чтобы не подавать в аккумулятор недостаточно согретую воду. Во втором случае термостатный элемент на 55* для газовых котлов, 61* для солярки и ТТ. Пока температура не выросла до уставки клапана - направление на котёл закрыто. В первом случае при недостаточной температуре циркуляция через котёл, во втором случае, через нагрузку. В прицепе брошюрка на англ. , но есть схемки, которые пояснят всё
|
|
|
|
|
|
|
|
22.4.2010, 22:14
|
Группа: Участники форума
Сообщений: 95
Регистрация: 24.7.2009
Из: херсон
Пользователь №: 36488

|
Пардоньте схемку котельной просто неправильно нарисовал. Перерисую. Вопрос был в разводке отопления. PPR-AL-PPR или pex-al-pex ?
|
|
|
|
|
|
|
|
22.4.2010, 22:27
|
Группа: Участники форума
Сообщений: 95
Регистрация: 24.7.2009
Из: херсон
Пользователь №: 36488

|
Вот так подвязывается оборудование + 20 кВт бассейн на балке отопления. Котел 1 или 2 еще не решили.
Эскизы прикрепленных изображений
|
|
|
|
|
|
|
|
23.4.2010, 8:08
|
Группа: Участники форума
Сообщений: 95
Регистрация: 24.7.2009
Из: херсон
Пользователь №: 36488

|
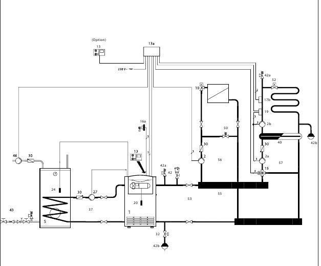
Смесительный узел перед котлом - для Поддержания обратки на 40°С - защита от конденсата на стенках котла - теплообменник чугунный. Управление смесителем в котле Vaillant atmoVIT 48. Схемка кстати опять не та была)) Вот эта будет правильно. только без Погодозависимого регулятора. На балке отопления еще одна ветка на теплообменник бассейна. На радиаторах будут стоять термоголовки с выносным датчиком (за шторами) на штатных местах. Проект рисовала проектная организация. Она же предложила реализацию системы таким образом. Цена системы в отличие от коллекторной в половину меньше. А по поводу дороговизны ппр для автономного отопления категорически не согласен! Здесь планируется коллекторная (с расходомерами) поэтажная разводка на радиаторы металлопластиковой трубой д16 и также от распред коллектора с расходомерами разводка теплых полов металлопластиковой трубой. Вопрос - какая разводка лучше? Коллекторная(цена-3000э) или ППР как на проекте (цена 1500э)?
Эскизы прикрепленных изображений
|
|
|
|
|
|
|
|
23.4.2010, 9:36
|
Группа: Участники форума
Сообщений: 429
Регистрация: 21.9.2009
Из: Москва
Пользователь №: 38700

|
Цитата Проект рисовала проектная организация. Честно - как-то через одно место спроектировано, но это сугубо мое мнение. Системы бывают однотрубные, двухтрубные, бифилярные, точнее описывайте свою, т.к. Цитата Цена системы в отличие от коллекторной в половину меньше. У вас изображена, если можно так выразиться, именно коллекторная система, Вам говорили про лучевую. Цитата На радиаторах будут стоять термоголовки с выносным датчиком (за шторами) на штатных местах. Если Вы Зак - с Вас тянут деньги, а вы и рады, не нужны тут выносные - лишняя трата денег. Цитата Здесь планируется коллекторная (с расходомерами) поэтажная разводка на радиаторы металлопластиковой трубой д16 и также от распред коллектора с расходомерами разводка теплых полов металлопластиковой трубой. Не осилил. Так это что за здание? Личный дом или что? Цитата Вопрос - какая разводка лучше? Коллекторная(цена-3000э) или ППР как на проекте (цена 1500э)? Вопрос не корректный - греть будут обе, а вот гемора с ппр будет больше, т.к. если монтажники грамотные они-таки включат сверление отверстий в каждой стене + сварку фитингов в сметку, разводка лучевая тем и хороша, что не требует дорогостоящих операций, кинул трубу в полу через дверные проемы и забыл про нее после стяжки + удобство регулирования + возможность отключения приборов с единого шкафа.
Сообщение отредактировал Wizlock - 23.4.2010, 9:39
|
|
|
|
|
|
|
|
23.4.2010, 9:45
|
Группа: Участники форума
Сообщений: 95
Регистрация: 24.7.2009
Из: херсон
Пользователь №: 36488

|
личный дом это
|
|
|
|
|
|
|
|
23.4.2010, 9:55
|
Группа: Участники форума
Сообщений: 429
Регистрация: 21.9.2009
Из: Москва
Пользователь №: 38700

|
Вот смотрю на прайс Dan...s RAW-K 16,76 евро (Термоголовка на прибор отопления) RAW-K 5032 с выносным датчиком 23,8 Теперь сумму приборов умножайте на цифры эти, получите на сколько Вас нагреть хотят, при том что выносной датчик в вашем случае не нужен, если только прибор не находится в нише закрытой для доступа.
|
|
|
|
|
|
|
|
23.4.2010, 10:45
|
Группа: Участники форума
Сообщений: 204
Регистрация: 24.10.2007
Пользователь №: 12283

|
батареи клади в пол. монтаж проще и дешевле. а с полирпопиленом возни будет много. и монтажники не факт что красиво его положат. его хорошо если в стену прятать и переход с пластик на метал стоят очень дорого
|
|
|
|
|
|
|
|
23.4.2010, 12:16
|
Группа: New
Сообщений: 16
Регистрация: 23.7.2009
Из: Москва
Пользователь №: 36441

|
Схемы эти, "проектировщики" взяли с сайта Vaillant, особенно не задумываясь над вашим домиком  Там еще написано "Не применять как проектное решение" ))
Сообщение отредактировал Saha_ - 23.4.2010, 12:19
|
|
|
|
|
|
|
|
28.4.2010, 16:15
|
Группа: Участники форума
Сообщений: 593
Регистрация: 9.10.2007
Из: Санкт-Петербург
Пользователь №: 11862

|
Вот про ППР это вы зря, никакой возни если умеешь обращаться с грелкой, если монтажники с руками, то все будет четко. Фитинги стоят копейки. единственно, что потребуется, так это принять параметры теплоносителя не более 70/50 для полипропилена. Однако если есть возможность делать сшитым полиэтиленом в полу, то этот вариант предпочтительней, т.к. можно увеличить темп. график и надежность систем.
|
|
|
|
|
|
|
|
29.4.2010, 13:42
|
Группа: Участники форума
Сообщений: 204
Регистрация: 24.10.2007
Пользователь №: 12283

|
переход ппр-сталь стоит дофига. а пластиковые дешево. и не везде можно подлезть с утюгом этим. а ппр вроде до 90 работает. армированый. разве нет? мне говорили что он не очень любит температуру. но 1 объект весь им заделан. вот жду, что с ним станет
|
|
|
|
|
|
|
|
30.4.2010, 10:41
|
Группа: Участники форума
Сообщений: 593
Регистрация: 9.10.2007
Из: Санкт-Петербург
Пользователь №: 11862

|
а вы посмотрите таблицы у производителя по периоду эксплуатации для таких графиков. Плюс дайте 90С и посмотрите какие сопли будут провисать. А с утюгом в принципе можно подлезть везде, главное смекалку проявить)) А кстати муфта с наружной метал. резьбой стоит не более 80р. до 25й включительно. Однако это не значит, что я всеми руками за ППР. Смотреть надо по обстоятельствам и надежности, что и где применять.
Сообщение отредактировал demon185 - 30.4.2010, 10:43
|
|
|
|
|
|
|
|
30.4.2010, 12:11
|
Группа: Участники форума
Сообщений: 204
Регистрация: 24.10.2007
Пользователь №: 12283

|
я укладывал километр фд премиум 50.примерно 500 отводов. приходилось огибать опоры черз 6 метров и двери и тд. повесили 50 батарей. так вот. варить по месту не выходило. только готовые клюшки можно быол припаять, а так никак. и внекоторых местах было возможно это делать только 2 рабочим. 1 не справлялся. и еще я видел как тянули холодную и воздух(не мои люди) так там они так все криво напаяли. после выправляли на хомутах. это еще промздание. а в хате так сделать это ужас. и цена выше чем заявленной Вами, если переход на полдюйма еще куда не шло, а потом резко идет вверх сделал запрос по своей трубе. судя по графику(похожей трубы. армированная алюминеевой вставкой вроде. есть еще с волокнами, но графика к ней нет) труба прослужит не долго!! если они настроят котельную на 90 град. то в батареи вода будет 85. и где то лет 10 обещают. только вентиляция висящая на том же коллекторе будет работат не эффективно. Вот не слушают Заки инженеров, а потом аварии.
|
|
|
|
|
|
|
  |
1 чел. читают эту тему (гостей: 1, скрытых пользователей: 0)
Пользователей: 0
|
|
Реклама
ООО «Арктика групп» ИНН: 7713634274 | erid 2VtzqvpbUMg
ООО «УНИСПЛИТ» ИНН: 6453155081 erid:2Vtzqux2Ugf
Последние сообщения Форума
|