|
  |
Теплопотери, Вопросы и ответы |
|
|
|
|
7.10.2013, 11:45
|
Группа: New
Сообщений: 19
Регистрация: 29.7.2013
Из: Курск
Пользователь №: 200530

|
Добрый день! Возник еще один вопрос. дело в том, что в здании. что я рассчитываю несколько типов стен. Я рассчитала коэффициент теплопередачи согласно методике, изложенной в СП "Проектирование тепловой защиты зданий"(приложение Я). А как поступить , если несколько типов покрытия? Воспользоваться той же формулой? Заранее спасибо!
|
|
|
|
|
|
|
|
7.10.2013, 14:26
|
Группа: New
Сообщений: 19
Регистрация: 29.7.2013
Из: Курск
Пользователь №: 200530

|
формула такая: R=A/(∑ (Ai/Ri), где Аi,Ri - cоответственно площадь i-го участка характерной части ограждающей конструкции, м², и его приведенное сопротивление теплопередаче, м²*С/Вт А-общая площадь конструкции, равная сумме площадей отдельных участков, м²
|
|
|
|
|
|
|
|
16.10.2013, 15:25
|
Группа: New
Сообщений: 19
Регистрация: 29.7.2013
Из: Курск
Пользователь №: 200530

|
Добрый день! Возник такой вопрос. в одном из расчетов теплопотерь обнаружила цифру коэффициента β в диапазоне 2-4. Нигде не нашла подобных значений. Подскажите. Заранее спасибо
|
|
|
|
|
|
|
|
17.10.2013, 12:32
|
Группа: Участники форума
Сообщений: 937
Регистрация: 14.12.2006
Из: Москва
Пользователь №: 5189

|
ЛюдмилаКарелова, очень часто ответить на вопрос помогает правильная постановка вопроса. Вы когда что-то спрашиваете, всегда уточняйте конкретно где вы это нашли. Может это некое ноу-хау автора того самого расчета. А может коэффициент, при помощи которого он подгонял под нормативку косячное решение. А может ещё что-то.
|
|
|
|
|
|
|
|
12.2.2014, 16:42
|
Группа: Участники форума
Сообщений: 42
Регистрация: 27.3.2013
Из: Россия
Пользователь №: 187017

|
Здравствуйте. Подскажите пожалуйста как посчитать теплопотери помещения с балконом(застеклен)? Заранее спасибо.
|
|
|
|
|
|
|
|
14.3.2014, 13:39
|
Группа: Участники форума
Сообщений: 50
Регистрация: 13.1.2010
Пользователь №: 44115

|
Друзья, интересует вопрос: как правильно рассчитать теплопотери через чердачное перекрытие, используя формулу из СНиП: Q=F x (tнар-tвн) x (1+betta) x n/R. Чердак неотапливаемый, кровля двухскатная. Конкретно интересует какое значение температуры tнар использовать в расчете? Ведь температура на чердаке, хоть он и не отапливаемый, по идее должна быть выше улчиной температуры. Заранее спасибо!
Сообщение отредактировал devgenik - 14.3.2014, 13:40
|
|
|
|
|
|
|
|
17.3.2014, 6:44
|
Группа: Участники форума
Сообщений: 1548
Регистрация: 14.4.2011
Пользователь №: 103554

|
tнар принимать равной уличной, для поправки на чердак в формуле есть коэффициент n учитывающий расположение ограждающей конструкции.
P.S. задам заодно свой вопрос betta для чердачных, подвальные перекрытий и проездов =0 ? По какому принципу подбирать n, есть таблицы со значениями по типу конструкций, а есть расчёт с принятием температур воздуха на чердаке и в подвале по наличию и отсутствию трубопроводов, какой метод лучше использовать?
|
|
|
|
|
|
|
|
1.7.2014, 12:24
|
Группа: New
Сообщений: 12
Регистрация: 12.10.2013
Из: Иркутск
Пользователь №: 208943

|
Здравствуйте. Вопрос по добавочным теплопотерям. Есть жилое здание с лестничной клеткой, которая имеет на каждом этаже дверь выходящую наружу здания. Т.е. что то типо балконов. Таких дверей 15 штук, по 1 на каждом этаже. Нужно ли брать добавочные теплопотери на эти двери? Т.к. они не оборудованы тепловой завесой. И если брать, то, к примеру, я принимаю 0,27 H — для двойных дверей с тамбуром между ними. Величина 0,27 H для двери на каждом этаже?
|
|
|
|
|
|
|
|
1.7.2014, 14:45
|
Инженер ОВК
Группа: Участники Форума2
Сообщений: 987
Регистрация: 2.6.2005
Из: Санкт-Петербург
Пользователь №: 835

|
Цитата(6eaR @ 1.7.2014, 13:24)  Здравствуйте. Вопрос по добавочным теплопотерям. Есть жилое здание с лестничной клеткой, которая имеет на каждом этаже дверь выходящую наружу здания. Т.е. что то типо балконов. Таких дверей 15 штук, по 1 на каждом этаже. Нужно ли брать добавочные теплопотери на эти двери? Т.к. они не оборудованы тепловой завесой. И если брать, то, к примеру, я принимаю 0,27 H — для двойных дверей с тамбуром между ними. Величина 0,27 H для двери на каждом этаже? Ну в старом СНиПе не было четко сказано 0,27*H для каждой такой двери. Причем "H" всегда одна и та же. Другое дело, что эти двери открываются редко, если вообще открываются, и могут идти как запасные, тогда никаких добавок не надо.
|
|
|
|
|
|
|
|
1.7.2014, 15:20
|
Группа: Участники форума
Сообщений: 20914
Регистрация: 8.8.2007
Из: Vilnius
Пользователь №: 10542

|
Двери имеют меньшее сопротивление теплопередаче, чем стена и возможна инфильтрация. Я бы добавил теплоту на компенсацию этих теплопотерь.
|
|
|
|
|
|
|
|
2.7.2014, 7:36
|
Группа: Участники форума
Сообщений: 2746
Регистрация: 18.9.2013
Из: СПб
Пользователь №: 206008

|
В 80-х годах установили на заводе КВ-ГМ-20 с температурным регулированием по т-ре наружного воздуха. Оказалось что ночью (несмотря на понижение т-ры воздуха) нагрузка на котёл меньше процентов на 20, чем днём. Единственное объяснение это то, что днём чаще открываются двери на улицу (вот такая инфа).
|
|
|
|
|
|
|
|
2.7.2014, 16:31
|
Группа: Участники форума
Сообщений: 12843
Регистрация: 9.4.2014
Пользователь №: 229939

|
Цитата(6eaR @ 1.7.2014, 12:24)  Здравствуйте. Вопрос по добавочным теплопотерям. Есть жилое здание с лестничной клеткой, которая имеет на каждом этаже дверь выходящую наружу здания. Т.е. что то типо балконов. Таких дверей 15 штук, по 1 на каждом этаже. Нужно ли брать добавочные теплопотери на эти двери? Т.к. они не оборудованы тепловой завесой. И если брать, то, к примеру, я принимаю 0,27 H — для двойных дверей с тамбуром между ними. Величина 0,27 H для двери на каждом этаже? Речь идёт о лестничной клетке Н1, которая используется только для эвакуации при пожаре. В режиме эксплуатации двери закрыты, считайте их как запасные - без добавок на их открывание.
|
|
|
|
|
|
|
|
18.8.2014, 16:53
|
Группа: Участники форума
Сообщений: 25
Регистрация: 6.8.2014
Пользователь №: 241305

|
100Вт на м2, 200 или 300, дом хорошо утепленый или не сильно утепленных домах (что это значит стены что ли бумажные) и тд это манагерский подход.
|
|
|
|
|
|
|
|
21.10.2014, 12:00
|
Группа: Участники форума
Сообщений: 20
Регистрация: 27.8.2014
Пользователь №: 243085

|
Добрый день! Подскажите как посчитать тепловой поток для различных параметров теплоносителя?? 80/60, 70/50 допустим и т.д. Дан тепловой поток оборудования для 150/70 градусов.
Сообщение отредактировал kirillmart1 - 21.10.2014, 12:06
|
|
|
|
|
|
|
|
22.10.2014, 8:19
|
Группа: Участники форума
Сообщений: 41
Регистрация: 6.4.2012
Пользователь №: 146467

|
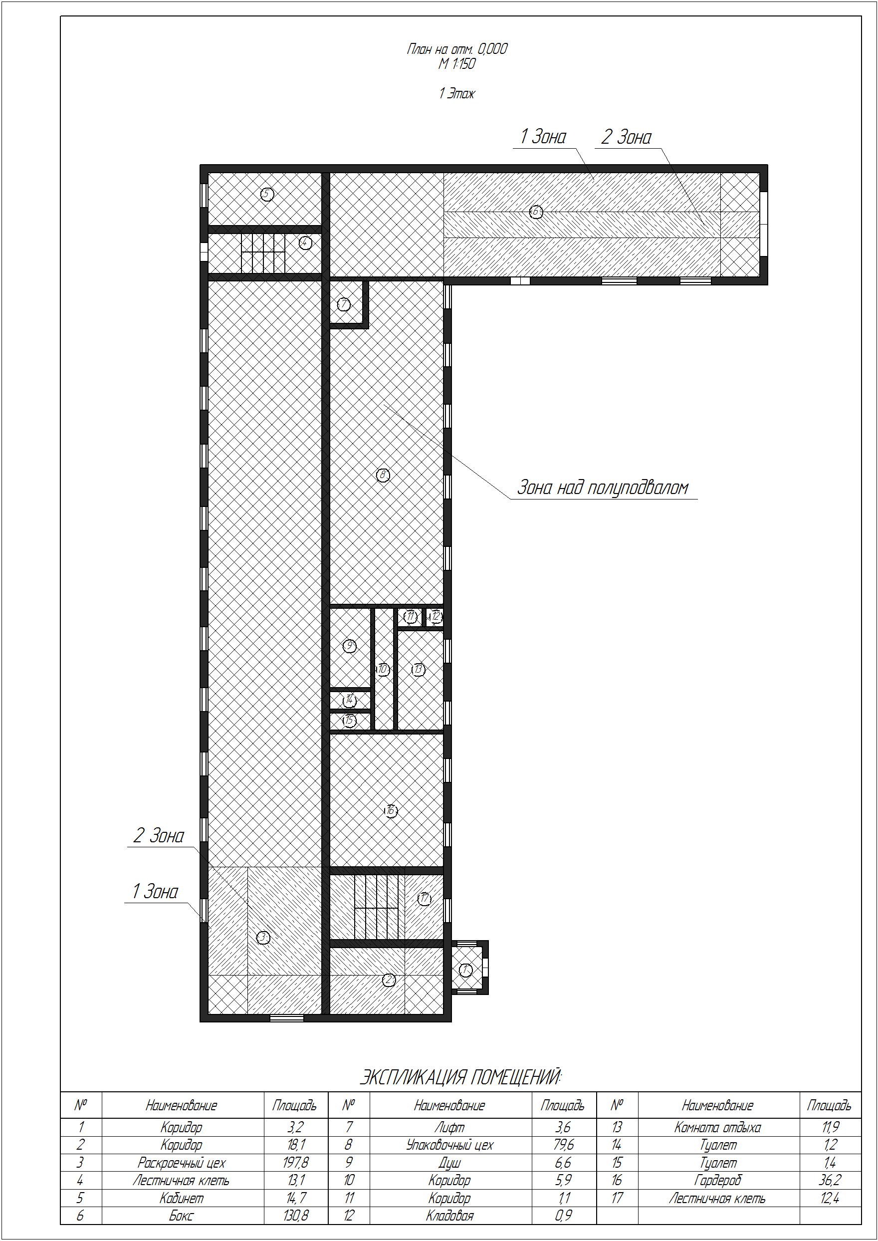
Всем доброго времени суток! Обращаюсь к специалистам-проектировщикам: впервые столкнулась с расчетом теплопотерь производственных помещений, где высота помещения 4м. При защите данного расчета у согласовывающей организации, мне было выдано следующее замечание, цитирую: 1. Для помещений высотой выше 4м вычислить температуру ее роста по высоте и учесть в расчете ограждающих конструкций. Раз 5 перечитала, так и не поняла, что значит температура ее роста по высоте. Может кто сталкивался?..в какой литературе можно посмотреть данную методику расчета? 2. Еще такой вопрос, коэффициент теплопроводности пескоблока? У меня в расчете стоит 1,2 Вт/м.град.С, нашла его в интернете, т.к в снипе по строительной теплотехнике как такового пескоблока нет...тоже сказали, что указан неверно... 3. На плане разбивки пола по зонам проставить размеры зон.- До этого я всегда сдавала в таком виде, как в прикрепленном файле, все проходило. А теперь, чтобы понять правильно, размеры зон - это указать ширину по 2 м каждой зоны? или каждое помещение линейными размерами по каждой зоне разбить? Помогите!!!
Эскизы прикрепленных изображений
|
|
|
|
|
|
|
|
14.11.2014, 11:51
|
Группа: New
Сообщений: 9
Регистрация: 23.9.2014
Пользователь №: 245586

|
Здравствуйте. Подскажите, пожалуйста, как посчитать теплопотери простого проффлиста без изоляции. При толщине 2.2мм и коеф.теплопередачи 54-58 получается очень много, намного больше ожидаемого значения.
|
|
|
|
|
|
|
|
14.11.2014, 15:49
|
Группа: Участники форума
Сообщений: 348
Регистрация: 28.10.2014
Пользователь №: 248987

|
Из сообщения непонятно, откуда и куда идет теплопередача и как получили коэфф. теплопередачи?
|
|
|
|
|
|
|
|
14.11.2014, 18:06
|
Группа: Участники форума
Сообщений: 2233
Регистрация: 8.7.2008
Из: Днепропетровск
Пользователь №: 20416

|
Цитата(kirillmart1 @ 21.10.2014, 12:00)  Добрый день! Подскажите как посчитать тепловой поток для различных параметров теплоносителя?? 80/60, 70/50 допустим и т.д. Дан тепловой поток оборудования для 150/70 градусов. Смотреть в данных на оборудование коэффициент n. Или теплоотдачу при других параметрах. Подробнее у меня тут http://lovial.narod.ru/statyi/teplo/radiator.htmlЦитата(Tomitoka1988 @ 22.10.2014, 8:19)  Всем доброго времени суток! Обращаюсь к специалистам-проектировщикам: впервые столкнулась с расчетом теплопотерь производственных помещений, где высота помещения 4м. При защите данного расчета у согласовывающей организации, мне было выдано следующее замечание, цитирую: 1. Для помещений высотой выше 4м вычислить температуру ее роста по высоте и учесть в расчете ограждающих конструкций. При высоте помещения более 4 метров температура меняется от (например) +16 на уровне пола до + 26 на уровне потолка - Архимед потому что. Соответственно если посчитать теплопотери для всей стены при температуре, например, 18 градусов в помещении, то в реальности теплопотери будут больше... Разбивайте стену на полосы по высоте и считайте... Цитата(Koss @ 14.11.2014, 11:51)  Здравствуйте. Подскажите, пожалуйста, как посчитать теплопотери простого проффлиста без изоляции. При толщине 2.2мм и коеф.теплопередачи 54-58 получается очень много, намного больше ожидаемого значения. Для тонкого и теплопроводного материала основной вклад в сопротивление теплопередаче будут вносить приграничные слои воздуха, в формуле их влияние учитывается как альфа наружная и альфа внутренняя. Для строительства они в СНиПе посчитаны, для других расчетов есть масса других формул...
|
|
|
|
|
|
|
|
20.11.2014, 12:21
|
Группа: Участники форума
Сообщений: 439
Регистрация: 30.11.2008
Из: г. Кемерово
Пользователь №: 26048

|
Хочу поделиться как делаю расчет теплопотерь в здании. Итак, Наружная Стена (НС).Как правило, особых проблем и вопросов не вызывает, сопротивление теплопередаче выдается архитекторами (АР), обмер НС - строго по правилам обмера (например, как в справочнике проектировщика Староверова, 1990 г). Сопротивление воздухопроницанию принимаю нормируемую по табл. 9 СП 50.13330-2012. Окно в наружной стене (ОК).Здесь интереснее. Обычно сопротивление теплопередаче тоже выдается архитекторами, ну или на худой случай, можно выяснить хотя бы материал (ПВХ, алюминий) и конструкцию окна, а далее - приложение Л из СП 23-101-2004 в помощь. Иногда подхожу с данной табличкой к архитектору и спрашиваю, ткните пальцем, какое окно вероятнее всего будет в здании. В-общем, решаемо. Про сопротивление воздухопроницаемости отдельная песня. Очень помогает книга Е. Г. Малявиной "Теплопотери здания", раздел 6, особенно табличка, приведенная на стр. 87. Здесь поступаю двумя путями. Путь первый - спрашиваю, какого класса окна в здании (А, Б, В, Г, Д), получаю ответ, смотрю в табличку и принимаю значение сопротивления воздухопроницанию. Путь второй-более сложный, но и более выгодный и более "подстраховочный" что-ли... Работаем в паре с АР, выполняю расчет требуемого сопротивления воздухопроницанию окна, получаю некую цифру. Затем либо АР принимает класс окна с сопротивлением воздухопроницанию не ниже нормируемого (при этом к расчету принимается цифра как в Пути 1), либо в разделе АР делается пометка о том, что окна принять с сопротивлением воздухопроницанию не ниже нормируемого, эту же цифру принимаю в расчете. Своего рода "подстраховка" на тот случай, если Заказчик установит окна не по проекту, а потом придет с жалобами на недогрев помещений. Обмер ОК - строго по правилам обмера. Покрытие (ПТ) и Перекрытие (ПЕР).Сопротивление теплопередаче выдается АР, но в расчетах учитываю покрытие только в том случае, если помещение сверху граничит с ним непосредственно, т.е. нет чердака или какого либо пространства между помещением и покрытием. В остальных случаях, например, при наличии чердака, учитываю в расчетах только перекрытие. При этом принимаю понижающий коэффициент n (формула 3 СНиП 23-02-2003) по следующим зависимостям: 1. Наружные стены, покрытия, перекрытия над проездами, а также перекрытия над холодными (проветриваемыми) подпольями зданий и сооружений, возводимых с северной строительно-климатической зоны - n=1; 2. Чердачные перекрытия со стальной, черепичной или асбестоцементной кровлей по разреженной обрешетке и покрытия с вентилируемыми прослойками - n=0,9; 3. Чердачные перекрытия с кровлей из рулонных материалов - n=0,8; 4. Стены и перекрытия (за исключением указанных в поз. 8 и 9 ), отделяющие отапливаемые помещения от сообщающихся с наружным воздухом неотапливаемых помещений (например, тамбуров) - n=0,7; 5. Стены и перекрытия, отделяющие отапливаемые помещения от неотапливаемых, не сообщающихся с наружным воздухом - n=0,4; 6. Перекрытия над подпольями, расположенными ниже уровня земли, при непрерывной конструкции цоколя с R0 = 1 м2 • ч • С°/ккал - n=0,4; 7. То же, и перекрытия над холодными подпольями, расположенними выше уровня земли - n=0,75; 8. Перекрытия над неотапливаемыми подвалами, расположенными ниже уровня земли или имеющими наружные стены, выступающие над уровнем земли до 1 м, с окнами в наружных стенах подвалов - n=0,6; 9. То же, без окон - n=0,4.Эти значения встречал в справочнике Староверова ранних годов выпуска. Обмер ПТ - строго по правилам обмера. Потери тепла через перекрытия учитываю если разница температур в помещениях более 3-х град. В последнее время для небольших площадей и небольшой разницы температур (менее 6 град.) не учитываю вообще, ну, или учитываю только для помещения, которое теряет тепло. Теплопритоки не считаю, если в принимающем тепло помещении нет постоянного пребывания людей. Возможно, неправильно делаю, но если это плюс-минус до 100 Вт, то оно того не стоит, ловля блох. ИМХО. Но перекрытие над неотапливаемым помещением считаю всегда, принимая соответствующий коэфф. n. Что касается сопротивления теплопередаче Rо перекрытия, то считаю его сам, т.к. очень часто АР выдавали мне его с "ошибками". Например, по формуле 8 СП 23-101-2004, постоянно путали с коэффициентами теплоотдачи, то он всегда равен 23, то ещё какая-нибудь ерунда. В итоге уточняю конструкцию перекрытия, материалы, плотность, и вперед. Правила обмера ПЕР - строго по правилам обмера, но с некоторыми допущениями - при разнице температур в помещениях более 3 град. принимаю размеры ПЕР в пределах внутренних граней стен. Стены внутренние (ВН).В отличие от перекрытий, при разнице температур внутри помещений более 3-х град. учитываю всегда. Свистопляска начинается в самом начале - когда делаю расчет Rо. Перегородки очень часто в пределах здания бывают разной толщины, из разных материалов, часто из экзотических и совсем "не табличных". Иногда набегает около 7 разных типов перегородок. Один нюанс, про который забывают некоторые АР - при расчете ВН Rо по формуле 8 СП 23-101-2004 ее нужно преобразовать в вид - R0=Rsi+Rk+Rsi. Пытался при наличии в ВН внутренней двери (ДВ) учитывать и ее, но понял, что это откровенная ловля блох, усугубляемая тем, что иногда вообще неизвестно , какие двери и из какого материала будут применены по факту. В итоге дверь не считаю, в месте ДВ у меня продолжение ВН )) Если в помещении есть внутренняя стена, отделяющая отапливаемое помещение от неотапливаемого, да ещё с дверью, расчет делаю следующим образом: - определяю Ro ВН (такие ВН, как правило, утеплены); - определяю Ro двери, но дверь принимаю как внутреннюю; - принимаю с соответствующий коэфф. n, одинаковый для двери и ВН. Полы (ПЛ).Самое трудоемкое занятие, на мой взгляд, при определении потерь тепла, думаю, многие со мной согласятся  Причем трудности связаны именно с разбивкой по зонам и обмерами. Самый простой случай - когда полы по грунту, отметка пола равна отметке земли. Но даже в этом случае без помощи автокада было бы сложней, т.к. здания могут иметь самые вычурные формы. Хотя в самой методике расчета потерь тепла через ПЛ проблем не составляет, за исключением конкретных случаев, например, если ПЛ имеет в своем составе материалы, коэфф. теплопроводности которых больше 1,2. Некоторые инженеры в этом случае считают Rо по формуле 8.7 (справочник проектировщика Староверова, 1990 г) для всех материалов, входящих в состав ПЛ, а ведь требуется только для тех, коэфф. теплопроводности которых больше 1,2. Вроде все основные конструкции перечислил  Хочу остановиться ещё на некоторых частных случаях. Например, есть наружная стена, в ней - входная дверь. Если неизвестно ее сопротивление теплопередаче, поступаю след. образом: - по формуле 3 СНиП 23-02-2003 определяю Rreq; - в случае, если здание производственное с сухим, нормальным, влажным или мокрым режимом нормируемый температурный перепад определяю по табл. 5 СНиП 23-02-2003; - td определяется по приложению Р СП 23-01-2003; - в соответствии с п. 5.7 определяю приведенное сопротивление теплопередаче и полученное число принимаю для расчета теплопотерь. Естественно, учитываются надбавки на врывание холодного воздуха. Или, другой случай. Есть дверь запасная (летняя, эвакуационная и т.п.), которая открывается очень редко. В данном случае она считается аналогично вышеописанному, но надбавки на врывание холодного воздуха не учитываю. Перечислены далеко не все случаи, т.к. у меня на работе процентов 80 - производственные здания. Прошу поправить, если где-то ошибся
|
|
|
|
|
|
|
|
21.11.2014, 11:07
|
Группа: New
Сообщений: 11
Регистрация: 8.9.2014
Пользователь №: 244109

|
Здравствуйте! Подскажите пожалуйста) Нужно ли учитывать при расчетах теплопотерь влажность нар.воздуха и скорость ветра? г.Ставрополь. По климатологии там влажность примерно 80% и скорость ветра 4 м/с. Если это учитывается, то где и как?
|
|
|
|
|
|
|
|
21.11.2014, 17:59
|
Инженер ОВК
Группа: Участники Форума2
Сообщений: 987
Регистрация: 2.6.2005
Из: Санкт-Петербург
Пользователь №: 835

|
Почти все считаю также. Кроме: Цитата Стены внутренние (ВН). Если уж вы так любите точность, то в случае с неотапливаемым помещением нужно знать его температуру. А следовательно вычислить. А как вы ее вычисляете? Цитата Покрытие (ПТ) и Перекрытие (ПЕР). Тут я использую пример приведенный в приложении Т к СП 23-101-2004 и за несколько итераций прихожу к искомому значению. По такому же принципу можно посчитать, если в подвале/техэтаже нет/есть трубы отопления и ГВС. В данном случае расчет с простым умножением нормируемого значения на коэффициент n считаю неверным, объясню почему. - В примечании к таб. 4 СНиП 23-01-2003 написано:
Цитата Нормируемые значения сопротивления теплопередаче чердачных и цокольных перекрытий, отделяющих помещения здания от неотапливаемых пространств с температурой tc (text < tc < tint), следует уменьшать умножением величин указанных в графе 5, на коэффициент n, определяемый по примечанию к таблице 6. При этом расчетную температуру воздуха в теплом чердаке, теплом подвале и остекленной лоджии и балконе следует определять на основе расчета теплового баланса. А вы делаете расчет этой температуры tc? В вашем сообщении это не было указано. Вы просто берете и умножаете на n, а его надо вычислять. - Формула 3 из СНиП 23-02-2003 в части массивных ограждающих конструкций (не двери и окна) относится только к производственным зданиям и др. указанным в п. 5.4.
Цитата Хочу остановиться ещё на некоторых частных случаях. Например, есть наружная стена, в ней - входная дверь. Если неизвестно ее сопротивление теплопередаче, поступаю след. образом: - по формуле 3 СНиП 23-02-2003 определяю Rreq; - в случае, если здание производственное с сухим, нормальным, влажным или мокрым режимом нормируемый температурный перепад определяю по табл. 5 СНиП 23-02-2003; Не понял почему только для производственного здания вы пользуетесь таблицей 5 для выяснения сопротивления двери. По-моему в этой таблице есть значения для всех типов зданий. И его нужно от туда брать, т.к. именно так написано в п. 5.4.
Сообщение отредактировал -BuTeK- - 21.11.2014, 18:06
|
|
|
|
|
|
|
|
26.11.2014, 12:17
|
Группа: Участники форума
Сообщений: 439
Регистрация: 30.11.2008
Из: г. Кемерово
Пользователь №: 26048

|
Цитата в случае с неотапливаемым помещением нужно знать его температуру. А следовательно вычислить. А как вы ее вычисляете? По формуле 8.6 справочника проектировщика, Староверов, 1990 г., но чаще всего через понижающий коэфф. n. Как-то в самом начале работы инженером проводил расчеты по формуле 8.6 и через коэфф. n. Сравнивая результаты пришел к выводу, что проще и быстрее считать все же через коэффициент, тем более что в этом случае величина потерь тепла получалась чуть больше, в пределах на 100-200 Вт. По поводу неверности определения теплопотерь через коэфф. n - ну так и если делать расчет на основе теплового баланса, то искомую tc тоже невозможно узнать со стопроцентной точностью, т.к. влияние оказывают много факторов - изоляция труб (которая может быть рассчитана по разному, например, трубы отопления - по нормам плотности теплового потока, ГВС - по заданному снижению температуры вещества), или же отсутствие труб вообще, наличие/отсутствие фрамуг в подвалах, заглублен подвал в землю или нет, и т.п. Поэтому, считаю, что если уж потребуется обосновать коэфф. n, то это можно сделать через расчет tc, придя к искомому значению. ИМХО. С теплыми чердаками, остекленными лоджиями и балконами на практике не сталкивался Цитата Не понял почему только для производственного здания вы пользуетесь таблицей 5 Для всех случаев пользуюсь. Для примера приведено произв. здание, как наиболее сложный случай, который у меня когда-то вызвал трудности с определением нормируемого температурного перепада. Цитата Формула 3 из СНиП 23-02-2003 в части массивных ограждающих конструкций (не двери и окна) относится только к производственным зданиям и др. указанным в п. 5.4. не совсем понял что Вы имеете ввиду
|
|
|
|
|
|
|
|
29.12.2014, 3:59
|
Группа: New
Сообщений: 1
Регистрация: 18.12.2014
Пользователь №: 254555

|
Уважаемые форумчане! Хочу спросить как правильно провести расчет теплопотерь через пол над подвалом, потому как много есть примеров для полов расположенных на грунте и на лагах. В моем случае помещение на первом этаже, пол находится над неотапливаемым подвалом.
|
|
|
|
|
|
|
|
29.12.2014, 13:30
|
Группа: Участники форума
Сообщений: 3575
Регистрация: 5.3.2009
Из: Газ-Ачака
Пользователь №: 30120

|
считать как теплопотери через стенку снип 23-02-2003, вам в помощь пункт 5.5 и таблица 6.
|
|
|
|
|
|
|
|
23.1.2015, 22:43
|
Группа: Участники форума
Сообщений: 30
Регистрация: 31.3.2009
Пользователь №: 31400

|
Добрый вечер, коллеги! Возник вопрос относительно правильности расчета инфильтрации через наружную дверь тамбура. Ситуация следующая: на первом этаже 4-этажного здания имеется помещение с механической общеобменной вентиляцией (приток равен вытяжке). Помещение имеет свой отдельный вход с улицы через встроенный тамбур, а также имеет выход в общий коридор (т.е. помещение связано с остальным объемом здания).
При расчете количества инфильтрующегося воздуха через наружную дверь тамбура я учитываю полную высоту здания. Как по-вашему, верно ли я поступаю, или в данном случае правильнее будет принимать только высоту тамбура?
|
|
|
|
|
|
|
|
23.1.2015, 22:54
|
Группа: Участники форума
Сообщений: 2233
Регистрация: 8.7.2008
Из: Днепропетровск
Пользователь №: 20416

|
Цитата(Xpander @ 23.1.2015, 23:43)  Добрый вечер, коллеги! Возник вопрос относительно правильности расчета инфильтрации через наружную дверь тамбура. Ситуация следующая: на первом этаже 4-этажного здания имеется помещение с механической общеобменной вентиляцией (приток равен вытяжке). Помещение имеет свой отдельный вход с улицы через встроенный тамбур, а также имеет выход в общий коридор (т.е. помещение связано с остальным объемом здания). При расчете количества инфильтрующегося воздуха через наружную дверь тамбура я учитываю полную высоту здания. Как по-вашему, верно ли я поступаю, или в данном случае правильнее будет принимать только высоту тамбура? Методика изложена в старом СНиПе "Отопление, вентиляция..." 91 года, ЕМНИП. Считается высота здания, коэффициент берется как для дверей с тамбуром...
|
|
|
|
|
|
|
|
23.1.2015, 23:35
|
Группа: Участники форума
Сообщений: 174
Регистрация: 24.9.2008
Пользователь №: 22867

|
Цитата(lovial @ 23.1.2015, 21:54)  Методика изложена в старом СНиПе "Отопление, вентиляция..." 91 года, ЕМНИП. Считается высота здания, коэффициент берется как для дверей с тамбуром... Ситуация, которая обсуждается, не очень похожа на вход с улицы в здание, которым пользуются посетители и работники всего 4-х этажного здания, если двери с тамбуром предназначены для помещения 101, дверь в коридор тоже только для работников этой комнаты. Частота пользования входными дверями в офис несравнима с использованием общего входа в здание. Не согласятся люди из этой комнаты превратить ее в проходной двор. Может быть стоит использовать какой-то компромиссный вариант. Например, взять для расчета инфильтрации только высоту 1 этажа. Или рассчитывать как для тройных дверей с тамбурами между ними? И первый, и второй варианты при расчетах скорее всего дадут завышенный результат. Но не на столько, как получается с использованием влоб методики СНиПа. Если же это проходное помещение, то воспользуйтесь советом lovial.
|
|
|
|
|
|
|
|
24.1.2015, 8:57
|
Группа: Участники форума
Сообщений: 30
Регистрация: 31.3.2009
Пользователь №: 31400

|
Цитата(lovial @ 23.1.2015, 22:54)  Считается высота здания Не могли бы Вы пояснить более развернуто? Если бы мы рассматривали, например, вход в лестничную клетку, то, однозначно, да. Но в данном случае у нас ведь несколько иная ситуация. Цитата(lovial @ 23.1.2015, 22:54)  коэффициент берется как для дверей с тамбуром... Уточните, пожалуйста, о каком именно коэффициенте идет речь. Цитата(Putivets @ 23.1.2015, 23:35)  Частота пользования входными дверями в офис несравнима с использованием общего входа в здание. Но ведь инфильтрация считается для закрытой двери и не зависит от частоты её открывания. Цитата(Putivets @ 23.1.2015, 23:35)  Или рассчитывать как для тройных дверей с тамбурами между ними? Опять же, как это учесть при расчете количества инфильтрующегося воздуха? Или, может быть, Вы имеете в виду добавку на врывание наружного воздуха при открывании наружных дверей?
|
|
|
|
|
|
|
|
24.1.2015, 9:42
|
Группа: Участники форума
Сообщений: 2233
Регистрация: 8.7.2008
Из: Днепропетровск
Пользователь №: 20416

|
Цитата(Xpander @ 24.1.2015, 9:57)  Или, может быть, Вы имеете в виду добавку на врывание наружного воздуха при открывании наружных дверей? Если у вас, как писалось, приток и вытяжка дают нулевой баланс, то кроме этой самой добавки на открывание дверей, "поводов"для инфильтрации вроде бы нет...
|
|
|
|
|
|
|
|
27.5.2015, 15:26
|
Группа: Участники форума
Сообщений: 1495
Регистрация: 23.6.2008
Из: г. Магнитогорск
Пользователь №: 19983

|
Какой коэффициент теплоотдачи aн принимать для внутренних перегородок, такой же как ав=8,7?
Сообщение отредактировал shadow - 27.5.2015, 15:27
|
|
|
|
|
|
|
  |
1 чел. читают эту тему (гостей: 1, скрытых пользователей: 0)
Пользователей: 0
|
|
Реклама
ООО «Арктика групп» ИНН: 7713634274
Реклама: ООО «СибСтронг» | ИНН 6670013662 | ERID: 2VtzqvdgiCU
ООО «УНИСПЛИТ» ИНН: 6453155081 erid:2VtzqwWc8XB
Реклама: ООО «СЛ-ЛАЗЕР» ИНН 7727447267 | erid: 2VtzqvEDgM7
Последние сообщения Форума
|