Реклама / ООО «ИЗОЛПРОЕКТ» / ИНН: 7725566484 | ERID: 2VtzquhXmku
IPB IPB
Проектирование, монтаж, наладка, сервис


Здравствуйте, гость ( Вход | Регистрация )

- Стандарт НП «АВОК» 7.11-2024
«Рекомендации по проектированию инженерных систем
дошкольных образовательных организаций»

АВОК в соц. сетях
ИНН: 7714824045 | erid: 2VtzqwzKQiU
 
Добавить ответ в эту темуОткрыть тему
> Ванная у наружной стены
Анна Сергеевна
сообщение 29.10.2012, 17:13
Сообщение #1





Группа: New
Сообщений: 15
Регистрация: 13.9.2012
Пользователь №: 163156



Доброго времени суток, уважаемые специалисты!

Помогите, пожалуйста, с таким вопросом.
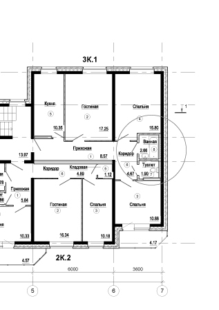
На приложенном плане этажа жилого дома (интересующий участок выделен красным кругом) ванная комната примыкает к наружной стене. Какие мероприятия для сохранения тепла в ванной предусматривают? Устанавливают отопительный прибор или закладывают более мощный полотенцесушитель? Или достаточно утепления наружной стены?

Сообщение отредактировал Анна Сергеевна - 29.10.2012, 17:21
Эскизы прикрепленных изображений
Прикрепленное изображение
 
Вернуться в начало страницы
 
+Ответить с цитированием данного сообщения
Khomenko_A_S
сообщение 29.10.2012, 17:15
Сообщение #2


Инженер


Группа: Участники форума
Сообщений: 2270
Регистрация: 12.4.2012
Из: Херсон
Пользователь №: 147254



Отопительный прибор ставьте
Вернуться в начало страницы
 
+Ответить с цитированием данного сообщения
Анна Сергеевна
сообщение 29.10.2012, 17:24
Сообщение #3





Группа: New
Сообщений: 15
Регистрация: 13.9.2012
Пользователь №: 163156



Здравствуйте!
Отопительный прибор у наружной стены ставить?
У наружной не получается - ванну не развернуть по горизонтали - размеры помещения ванной летят - планировки согласованы с заказчиком.
Может полотенцесушитель мощнее?
А можно только утеплить наружную стену?
Вернуться в начало страницы
 
+Ответить с цитированием данного сообщения
OYL
сообщение 29.10.2012, 18:19
Сообщение #4





Группа: Участники форума
Сообщений: 221
Регистрация: 21.10.2010
Из: Sibir
Пользователь №: 77484



А почему вообще вопрос встал? Конденсат появился или что другое? До сих пор как работало?
Вернуться в начало страницы
 
+Ответить с цитированием данного сообщения
Анна Сергеевна
сообщение 29.10.2012, 18:30
Сообщение #5





Группа: New
Сообщений: 15
Регистрация: 13.9.2012
Пользователь №: 163156



вопрос о мероприятиях, чтоб ни конденсата, ни плесени не было
Вернуться в начало страницы
 
+Ответить с цитированием данного сообщения
A.Gonishev
сообщение 29.10.2012, 19:29
Сообщение #6





Группа: New
Сообщений: 15
Регистрация: 1.11.2011
Пользователь №: 127639



Добрый вечер! Правильное решение - это отопительный прибор и необязательно у наружной стены, можно стояк проложить около двери и рядышком разместить...
Вернуться в начало страницы
 
+Ответить с цитированием данного сообщения
Анна Сергеевна
сообщение 29.10.2012, 20:41
Сообщение #7





Группа: New
Сообщений: 15
Регистрация: 13.9.2012
Пользователь №: 163156



а вы можете дать ссылочку на снип, где написано это правильное решение?
Вернуться в начало страницы
 
+Ответить с цитированием данного сообщения
инж323
сообщение 30.10.2012, 1:00
Сообщение #8





Группа: Участники форума
Сообщений: 33436
Регистрация: 4.12.2006
Из: 97
Пользователь №: 5032



Можете взять решение у МНИИТЭПа с его домами серии П30 или П46, П47. У них все же стоит стояк за этой санкабиной заводского изготовления, между ней и наружной стеной. Стояк с регистрами "толщиной", как и стояк. ф20, на сварке, без регулировок. Хоть тогда снип не требовал автоматического регулирования у ОП.

Сообщение отредактировал инж323 - 30.10.2012, 1:01
Вернуться в начало страницы
 
+Ответить с цитированием данного сообщения
Vano
сообщение 30.10.2012, 1:04
Сообщение #9


старожил экс-модератор согласный инженер дед Иван


Группа: Участники форума
Сообщений: 44857
Регистрация: 23.11.2004
Из: Москва
Пользователь №: 273



Инж вопрос - а лючков доступа там нет?
В плане потек шов сварной - долбить - вскрывать, или есть решение проектное по доступу в это пространство?
Вернуться в начало страницы
 
+Ответить с цитированием данного сообщения
инж323
сообщение 30.10.2012, 1:17
Сообщение #10





Группа: Участники форума
Сообщений: 33436
Регистрация: 4.12.2006
Из: 97
Пользователь №: 5032



Не было,но типовуха же- им согласовывали такие отступления. И кабина ж стыкована с жилыми комнатами,хоть на этой стенке и нет непосредственно приборов.
Вернуться в начало страницы
 
+Ответить с цитированием данного сообщения
Sach1
сообщение 2.11.2012, 12:51
Сообщение #11





Группа: New
Сообщений: 1
Регистрация: 2.11.2012
Пользователь №: 168963



Моя квартира точно соответсвует Вашей.
Раньше стоял водяной полотенцесушитель и электрический полотенцесушитель.
Зимой в ванной было некомфортно, хотя признаков промерзаня и плесени не было.
Сейчас при ремонте сделал теплый пол (электрический) - радость семьи не передать.
Вернуться в начало страницы
 
+Ответить с цитированием данного сообщения
maxat
сообщение 10.12.2012, 8:37
Сообщение #12





Группа: Участники форума
Сообщений: 86
Регистрация: 21.10.2010
Пользователь №: 77390



планировка похожа на мою, ставьте батарейку на боковой стенке и будет тепло.
Вернуться в начало страницы
 
+Ответить с цитированием данного сообщения
Гость_ЁЖик_*
сообщение 12.12.2012, 0:41
Сообщение #13





Guest Forum






По наружной стене выкладывал змеевик, в районе расположения ванной. Под плитку. С изоляцией под змеевиком. Вопрос закрывался не успев открыться.Если есть возможность надёжной запитки и циркуляции, то можно сделать.
Вернуться в начало страницы
 
+Ответить с цитированием данного сообщения

Добавить ответ в эту темуОткрыть тему
1 чел. читают эту тему (гостей: 1, скрытых пользователей: 0)
Пользователей: 0

 

Реклама
ООО «Арктика групп» ИНН: 7713634274




Реклама: ООО «СибСтронг» | ИНН 6670013662 | ERID: 2VtzqvdgiCU

ООО «УНИСПЛИТ» ИНН: 6453155081 erid:2VtzqwGt2gw
Реклама: ООО «СЛ-ЛАЗЕР» ИНН 7727447267 | erid: 2VtzqvY3G2W

Реклама: ООО «НовоКС» | ИНН 6330071530 | erid: 2VtzqwMVijq
Последние сообщения Форума






RSS Текстовая версия Сейчас: 8.11.2025, 22:52
Политика ООО ИИП «АВОК-ПРЕСС» в отношении обработки персональных данных