|
  |
Воздушное отопление |
|
|
|
|
19.4.2013, 18:11
|
Инженер-физик широкого профиля :-)
Группа: Модераторы
Сообщений: 5577
Регистрация: 27.3.2005
Из: Московская область
Пользователь №: 596

|
Воздушное отопление подразумевает рециркуляцию воздуха (полную или частичную). Иначе это будет вентиляция. Поскольку в таком помещении, как автостоянка, рециркуляцию делать нельзя, ответ простой - нужны отопительные приборы. Их там будет немного, если стоянка под землёй.
|
|
|
|
|
|
|
|
22.4.2013, 13:26
|
Группа: Участники форума
Сообщений: 189
Регистрация: 16.7.2008
Пользователь №: 20686

|
Их там будет много!! Из-за разности расходов притока и вытяжки (дисбаланс 20%). Тоесть при проектировании водяного отопления придется учесть нагрев (разница между мех. вытяжкой и притоком) приточного воздуха и цифра получится раза в 3 выше чем теплопотери подземной стоянки.
|
|
|
|
|
|
|
|
23.4.2013, 22:10
|
Инженер-физик широкого профиля :-)
Группа: Модераторы
Сообщений: 5577
Регистрация: 27.3.2005
Из: Московская область
Пользователь №: 596

|
Конкретные цифры озвучьте...
Кстати, можно немного перегревать воздух на притоке. И тогда вообще можно избавиться от отопительных приборов...
|
|
|
|
|
|
|
|
24.4.2013, 13:03
|
Группа: Участники форума
Сообщений: 1075
Регистрация: 14.12.2009
Из: Москва
Пользователь №: 42437

|
Цитата(Ruslan1979 @ 17.4.2013, 23:02)  Какое отопление экономичнее по затратам на материалы и монтаж. Водяное (регистры) или воздушное в подземном паркинге жилого многоквартирного дома. Я знаю, что потребованию норм в паркинге изначально требуется обеспечить общеобменную вентиляцию с подготовкой приточного воздуха. Но при всем этом вопрос на мой взгляд остается открытом и интересно узнать опыт коллег. Делайте воздушное. Вентиляция отдельно.
|
|
|
|
|
|
|
|
25.4.2013, 17:50
|
Группа: Участники форума
Сообщений: 3575
Регистрация: 5.3.2009
Из: Газ-Ачака
Пользователь №: 30120

|
не забудье про это 7.2.1 Системы воздушного отопления и системы приточной вентиляции, совмещенные с воз душным отоплением, следует проектировать с резервными вентиляторами (или электродвигателями вентиляторов) или предусматривать не менее двух отопительных агрегатов (или двух систем). При выходе из строя вентилятора допускается снижение температуры воздуха в помещении ниже нормируемой, но не ниже 12 °С.
|
|
|
|
|
|
|
|
12.5.2013, 6:58
|
Группа: Участники форума
Сообщений: 1131
Регистрация: 4.4.2011
Из: Караганда
Пользователь №: 101850

|
а как на производстве применяют воздушное отопление? ведь на полу грязь а это черевато подъемом всей этой грязи в воздух. Или для производственных помещений настраивается очень низкая скорость и грязь и пыль лежит на месте )? Если так, то можно ли заменить на воздушные калориферы типа Volcano. У меня как раз проект спроектированный на регистры. Заказчик хочет воткнуть водяные панели но это будет очень дорого. Хотел предложить ему воздушные калориферы как альтернативу, но опасаюсь что они будут пыль гонять в отличие от панелей и регистров.
|
|
|
|
|
|
|
|
12.5.2013, 16:25
|
Группа: Участники форума
Сообщений: 5907
Регистрация: 12.10.2009
Из: Шантарск-Севастополь (пробегом)
Пользователь №: 39475

|
Цитата ведь на полу грязь а это черевато подъемом всей этой грязи в воздух. Или для производственных помещений настраивается очень низкая скорость и грязь и пыль лежит на месте У многих в квартирах на полу пыли и грязи больше, чем в производственных помещениях. При проектировании вентиляции и воздушного отопления не "настраивается", а заранее предусматривается скорость движения воздуха в нормативных пределах - путем соответствующего расчета воздухораспределителей. При нормативных скоростях (0.5...1 м/с) пыль в воздух не поднимается. Довелось встречаться с типично-узконаправленным кандидатом в кандидаты наук, работы которого были посвящены вторичному образованию пыли от вентиляции в литейных цехах (там пыли много бывает). Оказалось, что этот узкий специалист оперировал скоростями порядка 10 м/с. Он с большим удивлением узнал, что вообще-то существуют и методики расчета воздухораспределения, в которых определяются скорости воздуха. И изучают это на соседней кафедре - дверь рядом. А в своих трудах он основывался на "предположим, скорость движения воздуха 10 м/с", и доказывал, что надо меньше. Цитата Заказчик хочет воткнуть водяные панели но это будет очень дорого. Во многих случаях это единственно верное решение. Для регистров просто не хватит места, применение местных воздушно-отопительных агрегатов может быть ограничено по категории производства. А те, кто распознали преимущества излучающих панелей, от воздушного отопления отказываются. Да и любое воздушное отопление киловатты наматывает, что в итоге оказывается дороже первоначальных затрат. Если уж рассматривать варианты, то не на уровне "думаю", а путем технико-экономических расчетов со сравнением приведенных затрат, т.е. включая эксплуатацию. Главный недостаток воздушного отопления - неравномерная температура по высоте. Внизу холодно, "в фермах" - жара. Избежать этого можно только при правильном подборе и расстановке воздухораспределителей или отопительных агрегатов. Судя по вопросам и ответам в теме это мало кто теперь знает.
|
|
|
|
|
|
|
|
12.5.2013, 17:15
|
Группа: Участники форума
Сообщений: 335
Регистрация: 18.2.2009
Из: Урал
Пользователь №: 29391

|
Цитата(Татьяна Удальцова @ 12.5.2013, 19:25)  Во многих случаях это единственно верное решение. Для регистров просто не хватит места, применение местных воздушно-отопительных агрегатов может быть ограничено по категории производства. А те, кто распознали преимущества излучающих панелей, от воздушного отопления отказываются. Да и любое воздушное отопление киловатты наматывает, что в итоге оказывается дороже первоначальных затрат. Если уж рассматривать варианты, то не на уровне "думаю", а путем технико-экономических расчетов со сравнением приведенных затрат, т.е. включая эксплуатацию. Татьяна, позвольте не согласится, почти во всем. То что панели лучше регистров, это неоспоримо, регистры, это вообще убожество, придумано у нас, и применяемо только у нас. И вы правы по регистрам, если создавать с помощью них необходимый градиент, то ими можно все стены от пола до потолка завесить. Что касаемо любое воздушное отопление киловатты наматывает, так это любая неправильно спроектированная и смонтированная система делает, некорректный аргумент. Цитата(Татьяна Удальцова)  Главный недостаток воздушного отопления - неравномерная температура по высоте. Внизу холодно, "в фермах" - жара. Избежать этого можно только при правильном подборе и расстановке воздухораспределителей или отопительных агрегатов. Судя по вопросам и ответам в теме это мало кто теперь знает. Сами себе ответили: недостаток воздушного отопления........ избежать этого можно только при правильном подборе и расстановкеТак это недостаток любой работы, даже гвоздь надо правильно забивать. К сожалению, наша беда не в "правильности работ", а в отсутствии специалистов, систему обучения в России разрушили полностью, у нас теперь юристов, бухгалтеров и менеджеров учат  , и это главная беда и боль... P.S. Панели и воздушное, выполняют несколько разные задачи, так что не очень корректно менять одно другим, если конечно первоначально было в корне неверно реализовано.
|
|
|
|
|
|
|
|
11.6.2013, 10:46
|
Группа: Участники форума
Сообщений: 97
Регистрация: 21.5.2012
Пользователь №: 151331

|
Цитата(Татьяна Удальцова @ 12.5.2013, 16:25)  Главный недостаток воздушного отопления - неравномерная температура по высоте. Внизу холодно, "в фермах" - жара. Избежать этого можно только при правильном подборе и расстановке воздухораспределителей или отопительных агрегатов. Судя по вопросам и ответам в теме это мало кто теперь знает. Встречался проект с потолочными вентиляторами "придавливающие" теплый воздух от газовых воздушных отопителей. Кто встречался с таким и насколько эффективно?
|
|
|
|
|
|
|
|
11.6.2013, 13:14
|
Группа: Участники форума
Сообщений: 335
Регистрация: 18.2.2009
Из: Урал
Пользователь №: 29391

|
Цитата(allxndr @ 11.6.2013, 13:46)  Встречался проект с потолочными вентиляторами "придавливающие" теплый воздух от газовых воздушных отопителей. Кто встречался с таким и насколько эффективно? Ну, если делать правильно, а именно об этом мы и говорили в предыдущих постах. То именно так и делается, называются они дистрификаторы (еще их миксерами называют), эффективность высочайшая. К сожалению, заказчики не хотят это воспринимать в всерьез. Те же самые пиндосы и европейцы используют такие системы с превеликим удовольствием. Вкладываю картинку, для понимания, если модераторы посчитают рекламой, пусть удалят  Цитата(Татьяна Удальцова @ 12.5.2013, 19:25)  Главный недостаток воздушного отопления - неравномерная температура по высоте. Внизу холодно, "в фермах" - жара. Избежать этого можно только при правильном подборе и расстановке воздухораспределителей или отопительных агрегатов. Судя по вопросам и ответам в теме это мало кто теперь знает. Татьяна, недостаток не в воздушном отоплении, а в неправильном применении. Тех кто это знает и правильно применяет хватает, мы например  , только кто же будет просто так свои знания раздавать  , они денег стоят
|
|
|
|
|
|
|
|
2.8.2013, 6:20
|
Группа: Участники форума
Сообщений: 281
Регистрация: 4.5.2010
Пользователь №: 55216

|
Цитата(jota @ 20.12.2012, 12:58)  Проект вентиляции для воздушного отопления не подходит - количество воздуха для отопления в 2-3 раза больше чем только вентиляции. Количество воздуха для вентиляции и воздушного отопления, если грубо прикинуть, равно сумме наружного воздуха на вентиляцию и рециркулирующего воздуха на отопление. На отопление нужно с воздухом передать количество тепла, равное расчётным теплопотерям помещений. Для вентиляции - наружный воздух по сан.нормам. Т Немного не по вопросу автора темы, но по теме: касательно адм. зданий - согласен. А вот если речь о промышленных объектах, то количество тепла на вентиляцию может в разы превышать теплопотери. Зачем тогда париться с рециркуляцией, может проще догреть вентиляционный воздух с 18 до 30-40 гр.? Нет?
|
|
|
|
|
|
|
|
2.8.2013, 19:45
|
Группа: Участники форума
Сообщений: 20
Регистрация: 2.8.2013
Пользователь №: 201069

|
Цитата Главный недостаток воздушного отопления - неравномерная температура по высоте. Внизу холодно, "в фермах" - жара. Избежать этого можно только при правильном подборе и расстановке воздухораспределителей или отопительных агрегатов. Судя по вопросам и ответам в теме это мало кто теперь знает. Странно.Разве этого недостатка лишены любые другие системы,от радиаторов до фэнкойлов и т.д. Для устранения этого недостатка у руфтопов ,например фирмы Ruud , есть специальные диффузоры(вертикальные при высоте помещения от восьми до четырнадцати метров и горизонтальные для потолков 4,5-6 метров) Так же хочется сказать,что единственным минусом при охлаждении и нагреве офисных помещений руфтопами является то,что в этом случае стоимость системы дешевле не в два и более раз(это для помещений с большими обьемами),а на 50-70 процентов.Будете в Кишиневе я с удовольствием покажу Вам офисные здания "Империал Вин"-6 этажей офисных помещений,здания банков,торговых центров включающих офисную часть. Отвечая на вопрос о притоке свежего воздуха.Руфтоп может работать и со ста процентами наружного воздуха.В этом случае его производительность будет исходить из условий нагрева и охлаждения наружного воздуха.Посему и рекомендованное количество воздуха для вентиляции 20-30 процентов.В этом случае устойчивый КПД системы 81 процент.Хочу обратить внимание-именно системы.Ведь когда мы говорим заказчику о КПД котла выше 100 процентов,мы же не говорим что КПД системы водяного отопления не бывает выше 60 процентов.Кстати на Росийском газе,которым мы пользуемся,этот коэффициент 92 процента(газ хороший) Давайте посмотрим на 300 машину с 39 форсункой.Холод 87 кВт,тепло 113 кВт,Расход воздуха более 12000 м куб,3600 м. Куб свежего воздуха.Монтируется либо на кровле ,либо возле здания.Когда сопостовляются стоимости систем,никто как правило не вспоминает о помещении для котельной,которое стоит совсем не дешево.Так вот цена этого 300 счастья 27000 долларов. Мы делали этим оборудованием торговые центры и производства,офисные здания и бассейны,рыб заводы и жилье.Что характерно.Заказчики пользующиеся этими системами,уже ни о каком другом виде отопления слышать не хотят.Что касается "хватит приточного воздуха","будет пыль летать",прочих сомнений-это решается инженерными решениями.На то мы и инженеры.Для спортивных бассейнов есть специализированное оборудование-стоит очень много.Так просто для проектировщика заложить его.А ведь это оборудование всего лишь осуществляет ряд функций выполняющих ряд требований для бассейнов -температура,влажность и тд. Так вот эти требования можно соблюсти набором другово оборудования.Сегодняшний спектр оборудования позволяет выполнять любые требования.Просто мы пытаемся делать это творчески,а не механически. P.S. Бассейн прекрасно эксплуатируется уже второй год.Все параметры в норме.Правда не за 900000 евро(стоимость специализированного оборудования на данный обьем),а за 230000 тысячь долларов(включая админ часть).
Сообщение отредактировал Gemini - 18.6.2014, 8:16
|
|
|
|
|
|
|
|
2.8.2013, 20:27
|
Группа: Участники форума
Сообщений: 20902
Регистрация: 8.8.2007
Из: Vilnius
Пользователь №: 10542

|
Цитата(qwerqus @ 2.8.2013, 6:20)  Немного не по вопросу автора темы, но по теме: касательно адм. зданий - согласен. А вот если речь о промышленных объектах, то количество тепла на вентиляцию может в разы превышать теплопотери. Зачем тогда париться с рециркуляцией, может проще догреть вентиляционный воздух с 18 до 30-40 гр.? Нет? На промке воздушное отопление лучше тепловентиляторами: загрязнения остаются в зоне, а не разносятся по всему корпусу. Да и регулировать температуру разных зон проще. Насчёт теплопотерь - считайте потери не только через ограждения, а и с выбрасываемым воздухом. Вы догреваете воздух, причём в количестве большем, чем нужно для вентиляции, а потом выбрасываете. Если применить рекуперацию, то такое решение приемлемо. Цитата(Рисович @ 2.8.2013, 19:45)  Просто мы пытаемся делать это творчески,а не механически. P.S. Бассейн прекрасно эксплуатируется уже второй год.Все параметры в норме.Правда не за 900000 евро(стоимость специализированного оборудования на данный обьем),а за 230000 тысячь долларов(включая админ часть). Руфтопы прекрасно себя зарекомендовали для вентиляции и отопления больших объёмов: магазинов, спортивных и других сооружений. Для административных зданий уже нужна VAV система, иначе воздушное отопление будет печально смотреться. Про бассейн, Вы забыли упомянуть, что спец установки для бассейнов как правило с теплообменником типа тепловой насос и тепло используют для нагрева воды в самом бассейне. Кроме этого, сама установка выполнена из материалов устойчивых к хлору, который используется как антисептик-добавка к воде. Этот хлор с конденсирующейся водой в обычном теплообменнике способен сожрать его за пол-года. Если же Вы поставили прямоточную установку без рекуперации тепла, то надо было предупредить заказчика, что за энергию ему придётся платить неподецки.... Всё дешёвое на монтаже, дорогое в эксплуатации - закон Природы.
Сообщение отредактировал jota - 2.8.2013, 20:29
|
|
|
|
|
|
|
|
2.8.2013, 20:30
|
Группа: Участники форума
Сообщений: 20
Регистрация: 2.8.2013
Пользователь №: 201069

|
Внутренний двор офисного здания.10шт 150 машин Йорк и одна 180 машина Рууд.Дифузор горизонтальный в производственном помещении.Высота потолка 4,5 метра.240 дифузор-расход воздуха 12000 м куб.Один дифузор на одну машину.Обслуживает квадрат со стороной 56 метров.Под ним сидят работающие женщины.Жалоб нет.[attachment=77121:image.jpg]
Сообщение отредактировал Рисович - 2.8.2013, 20:42
Эскизы прикрепленных изображений
|
|
|
|
|
|
|
|
2.8.2013, 20:41
|
Группа: Участники форума
Сообщений: 20
Регистрация: 2.8.2013
Пользователь №: 201069

|
Цитата(jota @ 2.8.2013, 20:27)  На промке воздушное отопление лучше тепловентиляторами: загрязнения остаются в зоне, а не разносятся по всему корпусу. Да и регулировать температуру разных зон проще. Насчёт теплопотерь - считайте потери не только через ограждения, а и с выбрасываемым воздухом. Вы догреваете воздух, причём в количестве большем, чем нужно для вентиляции, а потом выбрасываете. Если применить рекуперацию, то такое решение приемлемо. Руфтопы прекрасно себя зарекомендовали для вентиляции и отопления больших объёмов: магазинов, спортивных и других сооружений. Для административных зданий уже нужна VAV система, иначе воздушное отопление будет печально смотреться. Про бассейн, Вы забыли упомянуть, что спец установки для бассейнов как правило с теплообменником типа тепловой насос и тепло используют для нагрева воды в самом бассейне. Кроме этого, сама установка выполнена из материалов устойчивых к хлору, который используется как антисептик-добавка к воде. Этот хлор с конденсирующейся водой в обычном теплообменнике способен сожрать его за пол-года. Если же Вы поставили прямоточную установку без рекуперации тепла, то надо было предупредить заказчика, что за энергию ему придётся платить неподецки.... Всё дешёвое на монтаже, дорогое в эксплуатации - закон Природы.  Наша система на бассейне потребляет гораздо меньше чем аналогичная специализированная.Для нагрева воды используется прямоточный нагреватель все той же фирмы руд.Очень эффективная штука.Почему же "печально смотреться"С точностью до наоборот.При установке байпаса и автоматически регулирующихся решеток ,мы можем регулировать индивидуальные параметры во всех обслуживаемых помещениях,более того при необходимости загружать систему от 50 до ста процентов.Природу обманывать не получается,да и не надо .Надо думать и считать,сопостовляются и сравнивать.А вообще прежде чем начинать проектирование,я обычно продумываю ее концепцию,как она будет работать и эксплуатироваться.Я не пишу о том что буду делать,я пишу о том что уже работает.Мой первый объект на руфтопах работает уже 13 лет без замены оборудования.Очень бы хотелось увидеть что нибудь подобное с другими системами.Да и без потери мощностей.Накипи и прочего ведь нет.
Сообщение отредактировал Рисович - 2.8.2013, 20:51
|
|
|
|
|
|
|
|
2.8.2013, 21:23
|
Группа: Участники форума
Сообщений: 20902
Регистрация: 8.8.2007
Из: Vilnius
Пользователь №: 10542

|
Цитата(Рисович @ 2.8.2013, 20:41)  При установке байпаса и автоматически регулирующихся решеток ,мы можем регулировать индивидуальные параметры во всех обслуживаемых помещениях,более того при необходимости загружать систему от 50 до ста процентов. Вот здесь интересуют технические подробности, а не общие фразы....если не трудно.
|
|
|
|
|
|
|
|
2.8.2013, 21:36
|
Группа: Участники форума
Сообщений: 20
Регистрация: 2.8.2013
Пользователь №: 201069

|
Что значит общие фразы.Для руфтопа Монтируется байпас,Основное предназначение которого сохранение расхода воздуха на вентиляторе.Есть решетки с пультом управления,таким же как на унитарном оборудовании,С указанием температуры.В ситуации когда в определенном количестве помещений расходы либо уменьшаются,либо прекращаются(решетка закрыта) и нужен байпас.Проще говоря пускающий воздух по малому кругу и позволяющий сохранить требуемый расход воздуха.Для этого есть вся требуемая автоматика,опционно.К сожалению диллеры очень часто что бы не заморачиваться,или не интересуются опциями,а иногда и не знают о них.
|
|
|
|
|
|
|
|
2.8.2013, 21:59
|
Группа: Участники форума
Сообщений: 20902
Регистрация: 8.8.2007
Из: Vilnius
Пользователь №: 10542

|
Если установка используется только для отопления, тогда понятно. Но если совмещённое с вентиляцией, то достижение установленной температуры в помещении означает прекращение вентиляции. Для таких совмещённых систем строятся трёхтрубные системы с смесительными VAV клапанами.
|
|
|
|
|
|
|
|
2.8.2013, 22:24
|
Группа: Участники форума
Сообщений: 20
Регистрация: 2.8.2013
Пользователь №: 201069

|
Цитата(jota @ 2.8.2013, 21:59)  Если установка используется только для отопления, тогда понятно. Но если совмещённое с вентиляцией, то достижение установленной температуры в помещении означает прекращение вентиляции. Для таких совмещённых систем строятся трёхтрубные системы с смесительными VAV клапанами. Решетка прикрывается,как правило в помещении которое не эксплуатируется в данный момент(гостиничный номер например)Его зачем вентилировать.Выставляете минимальную или максимальную температуру.Зачем эти расходы.Вы же отдыхаете иногда за кордоном.Ручечки и кнопочки там есть.Наши нормы по воздуху на человека самые гуманные в мире.На западе они в разы меньше.Требования санитаров очень важная вещь.Но если у вас в помещении датчик углекислого газа,и автоматика открывающая больший приток свежего воздуха.Это разве нарушение?Всегда есть решение одной проблемы несколькими способами.По пожарным нормам можно поставить шкаф с автоматикой стоимостью десятки тысячь долларов с закрытием клапанов,а можно завязать автомат с обесточиванием линии запитки оборудования с пожарным датчиком.Какие клапана с закрытым воздушным контуром,если при этом клапан забора наружного воздуха закрывается.Кислороду браться не откуда.Попробуйте им это обьяснить. Вот что интересно.На тех обьектах где установленны датчики у г они не разу не сработали за долгие годы эксплуатации.И это при том что многократно превышенно количество людей,по сравнению с расчетами.Это ведь знакомая история?В тех условиях одно,а потом постоянные изменения,перепланировки в процессе эксплуатации.
Сообщение отредактировал Рисович - 2.8.2013, 22:34
|
|
|
|
|
|
|
|
3.8.2013, 12:30
|
Группа: Участники форума
Сообщений: 7297
Регистрация: 27.5.2007
Пользователь №: 8854

|
В таких случаях важнее рекламы Акты замера санэпидстанцией скорости движения воздушных потоков не более 0,2 м/с по ГОСТ30494. У Вас такое наличиствует?
|
|
|
|
|
|
|
|
3.8.2013, 16:50
|
Группа: Участники форума
Сообщений: 20902
Регистрация: 8.8.2007
Из: Vilnius
Пользователь №: 10542

|
Цитата(Рисович @ 2.8.2013, 22:24)  Решетка прикрывается,как правило в помещении которое не эксплуатируется в данный момент(гостиничный номер например) Но если у вас в помещении датчик углекислого газа,и автоматика открывающая больший приток свежего воздуха.Это разве нарушение?Всегда есть решение одной проблемы несколькими способами. Смешиваете понятия или не поняли вопроса. Объясняю ещё раз, медленнее. Отопление совмещённое с вентиляцией не новость. Вы, в отличие от Штатов, Канады и др. неупомянутых, приоритетом объявили отопление. Это уже Ваша "находка". Я не зря упоминал про 3-трубную систему VAV, но Вы пропустили мимо, или не поняли, что именно в Штатах, Канаде и др. неупомянутых развитых стран это обязательная система совмещённого с вентиляцией воздушного отопления и кондиционирования. По одному воздуховоду подаётся воздух нормальной температуры помещеня, по второму обратка в венткамеру, а по третьему зимой подогретый воздух, летом охлаждённый. А смесительные VAV клапана регулируют температуру подачи в помещение смеси по температуре помещения. При этом количество наружного воздуха может быть постоянным или регулироваться по датчикам качества воздуха в помещении (тот же датчик СО2) Есть и 4 трубная, где может подаваться кроме подогретого ещё и охлаждённый воздух одновременно. Вы предлагаете усечённую модель, безусловно она в разы дешевле. А пример с гостинничным номером вообще не из той оперы и на практике решается значительно дешевле. Записывайте: есть карточка-ключ, которую открыв двери, зайдя в коридор номера надо вставить в гнездо. Как только вставляете в гнездо карточку, подаётся напряжение в розетки, появляется вода в кранах и, внимание - открываются клапана вентиляции, которые в режиме отсутствия были закрыты на 80%. Уходя, карточку-ключ забираете и всё отключается....вот так, простенько..... Цитата(Рисович @ 3.8.2013, 14:33)  Впрочем сегодня людей которые пессимистично относятся к этому виду отопления сильно поубавилось, А ее эту санэпидем лутше бы в Штаты,Канаду и тд отправить.Глядишь ,они бы как мы и столько как мы жить стали,а может мы как они. Если будете и дальше ваять свои системы, боюсь за рост пессимистов. Такие системы имеют ограниченный ареал: однообъёмные помещения и частные дома - там это можно делать по вашему принципу. Гостинницы, административные, многоквартирные дома и т.д. требуют более серъёзные системы и они есть. А вот жить как вы, там не хотят. И там так строить вам не позволят. И последнее, имею сомнения, что Вы проектировщик. Больше похоже на письмо менеджера...
|
|
|
|
|
|
|
|
4.8.2013, 21:17
|
Группа: Участники форума
Сообщений: 20
Регистрация: 2.8.2013
Пользователь №: 201069

|
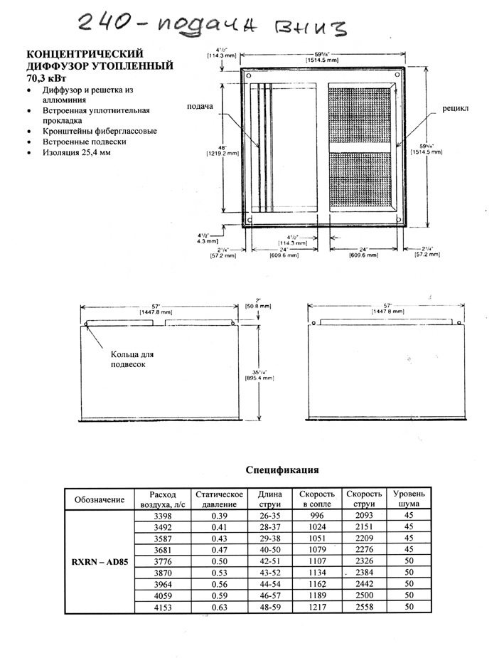
Возможно кому то пригодится.Очень полезная вещь для больших обьемов.Один дифузор,один руфтоп.Хотя может использоваться и с другими видами оборудования.Это для 240 машины,есть и другие типоразмеры.
Эскизы прикрепленных изображений
|
|
|
|
|
|
|
|
11.6.2014, 10:24
|
Группа: Участники форума
Сообщений: 45
Регистрация: 21.5.2013
Пользователь №: 193053

|
Подскажите пожалуйста, целесообразно ли применять воздушное отопление в производственном помещении(швейный цех) размерами 19 на 22 примерно и высотой от пола до потолка 4,4 м? Я поставила регистры, но боюсь не протопится. Помещение находится над цоколем со складами. Там топить буду на 10 градусов. Сверху отапливаемое офисное помещение. Но в воздушном меня смущает большая подвижность воздуха и температура приточного воздуха, который будет дуть на рабочие места. Как вы считаете стоит ли оставить регистры и не волноваться? Температура холодной пятидневки -27. Теплопотери 13000 Вт без учёта теплопоступлений. Не считала пока. Я просто начинающий проектировщик, и мне трудно принимать проектные решения. Да и с воздушгым копашиться тяжело. И проконсультироваться не с кем. Может сделать дежурку регистрами на 5 градусов а остальное тепловентиляторами? Боюсь потолки низковаты.
|
|
|
|
|
|
|
|
11.6.2014, 10:40
|
Группа: Участники форума
Сообщений: 174
Регистрация: 24.9.2008
Пользователь №: 22867

|
Цитата(dashasweat @ 11.6.2014, 10:24)  .....Не считала пока ....... и мне трудно принимать проектные решения..... А ведь решения принимаются на основе расчетов. Догадываетесь, какой будет Вам совет?
|
|
|
|
|
|
|
|
11.6.2014, 11:48
|
Группа: Участники форума
Сообщений: 20902
Регистрация: 8.8.2007
Из: Vilnius
Пользователь №: 10542

|
Тёплые полы не рассматривали? (особенно, если внизу холодное помещение). Или излучающие потолочные водяные панели? Воздушное отопление тепловентиляторами для фиксированных рабочих мест не годится. К тому же в швейных цехах нельзя раздувать пыль (ворсинки пряжи). Ну и регистры дороже чем стальные радиаторы и на вид ужасные... Что касается теплопоступлений, то для определения мощности системы я их не учитываю (не постоянная величина). Возможный избыток мощности должен нивелироваться регуляторами (термостатами) по Тпом.
|
|
|
|
|
|
|
|
11.6.2014, 13:02
|
Группа: Участники форума
Сообщений: 45
Регистрация: 21.5.2013
Пользователь №: 193053

|
Панели на водяном теплоносителе? А тепло дойдёт до низа? Тёплые полы слишком круто. На пол даже утеплитель отказались класть. Надо сделать попроще, не гнаться за красотой. Т. е регистры только по внешним параметрам не подходят, вы считаете? Или всё таки они не прогреют? А вариант централизованного воздушного отопления, совмещённого с вентиляцией можно рассмотреть? Если пустить струи вдоль наружных стен а вытяжку над рабочей зоной. Насчёт инертности теплопоступлений спасибо за совет! Учту.
|
|
|
|
|
|
|
|
11.6.2014, 13:50
|
Группа: Участники форума
Сообщений: 20902
Регистрация: 8.8.2007
Из: Vilnius
Пользователь №: 10542

|
Тепло от панелей дойдёт прекрасно, но это значительно "круче" чем тёплые полы. Радиаторы компактнее и регулируются термостатами. Можно поставить центральное регулирование по Тпом. Регистры надо варить на месте, потом грунтовать и красить. Их тоже надо будет регулировать..... Регистры ставяться в помещения, где возможны случаи случайного механического воздействия, которое может повредить тонкостенный радиатор. (н.п. цеха, склады и т.п.)
|
|
|
|
|
|
|
|
11.6.2014, 14:22
|
Группа: Участники форума
Сообщений: 12794
Регистрация: 9.4.2014
Пользователь №: 229939

|
Цитата(dashasweat @ 11.6.2014, 14:02)  На пол даже утеплитель отказались класть. У Вас в подвале +10 град. Т.о. Вы нарушаете п. 5.1 б) и п.5.8 СНиП 23-02-2003, которые являются обязательными по постановлению № 1047-р. Экспертизу вряд ли удастся пройти. Если же экспертиза не заметит отсутствие утепления пола, то потом работники будут болеть (у них ноги постоянно в холоде), жаловаться и санитарная служба всё равно предпишет выполнить утепление пола. Там надо считать, что выгоднее для Заказчика: отапливать подвал до более высокой температуры или утеплять пол над подвалом. В любом случае, если не требуют нормы, габариты помещения и Заказчик, лучше не делать воздушного отопления. По поводу радиаторов полностью поддерживаю jota
|
|
|
|
|
|
|
|
1.7.2014, 7:48
|
Группа: Участники форума
Сообщений: 45
Регистрация: 21.5.2013
Пользователь №: 193053

|
Спасибо за советы. Добилась утепления пола над подвалом. Теплопотери значительно уменьшились. Рассмотрю радиаторы.
|
|
|
|
|
|
|
|
1.7.2014, 8:08
|
Группа: New
Сообщений: 13
Регистрация: 8.5.2014
Из: тюмень
Пользователь №: 232939

|
Помогите разобраться, вопрос по отоплению!
однотрубная вертикальная система отопления с нижней разводкой подающий стояк холостой
что будет если на подающий стояк посадить прибор? ?
("техническое заключение о возможности подключения отопительной батареи к стояку подающей и дать разъяснение что это не нарушает надёжность работы системы отопления")
|
|
|
|
|
|
|
  |
2 чел. читают эту тему (гостей: 2, скрытых пользователей: 0)
Пользователей: 0
|
|
Реклама
ООО «Арктика групп» ИНН: 7713634274
Реклама: ООО «СибСтронг» | ИНН 6670013662 | ERID: 2VtzqvdgiCU
ООО «УНИСПЛИТ» ИНН: 6453155081 erid:2VtzqwGt2gw
Реклама: ООО «СЛ-ЛАЗЕР» ИНН 7727447267 | erid: 2VtzqvY3G2W
Реклама: ООО «НовоКС» | ИНН 6330071530 | erid: 2VtzqwMVijq
Последние сообщения Форума
|