|
  |
Подключение радиаторов к стояку гравитационной СО |
|
|
|
|
2.3.2014, 15:05
|
МОДЕРАТОР
Группа: Модераторы
Сообщений: 10995
Регистрация: 3.7.2004
Пользователь №: 32

|
вот ваша схема. все полагают, что в приборы 4-5-6-7 горячая вода не пойдёт почти наверняка и они не будут участвовать в создании циркуляции. я с этим почти согласен. но попробовал бы так сделать обеспечив все автоматическими воздухоотводчиками и подводящие патрубки взялбы на калибр больше.
|
|
|
|
|
|
|
|
2.3.2014, 15:07
|
Группа: Участники форума
Сообщений: 33571
Регистрация: 4.12.2006
Из: 97
Пользователь №: 5032

|
Противоречия вы сразу же сами увидите, если начнете вычислять Ре для кольца этого(с их рисунка) и вспомните сразу фразу про "а что за высоту берем для подставления в формулу". У вас на верхнем рисунке том есть высота и вопросов нет, а на нижнем её просто нет. Что б запустить приборы с отрицательной высотой этой, вам нужно иметь что то создающее в системе большее по величине Ре, что б вам было из ЧЕГО вычесть эту отрицательную составляющую. Ну отройте же учебник какой, тут их полно на форуме. Хотите Сканави "Конструирование и расчет водянного и воздушного отопления", хотите просто Богословский, Сканави и другие "отопление и вентиляция" часть 1. там рисунок у этой группы авторов один- их Александр Николаевич и сам на доске рисовал и очень во всех книгах просто и доходчиво написано.
|
|
|
|
|
|
|
|
2.3.2014, 15:10
|
МОДЕРАТОР
Группа: Модераторы
Сообщений: 10995
Регистрация: 3.7.2004
Пользователь №: 32

|
если котёл газовый, то зачем вам ГСО? ставьте насосик типа альфа2 и забудьте обо всём. у него автоадапт прекрасно работает, на каждый ОП можете поставить по термоголовке или сделать групповое управление - вариантов много... газовому котлу в любом случае нужны и электроны и насос...
|
|
|
|
|
|
|
|
2.3.2014, 15:19
|
Группа: Участники форума
Сообщений: 33
Регистрация: 25.2.2014
Пользователь №: 224863

|
Для ЛордН понимание самообалансировки появилось. Однако по методичке расчетов ГСО при невязке располагаемого давления и потерь давления в кольце больше 15% (и в большую сторону) рекомендуется вводить искусственные сопротивления или заужать проходы. Иначе система самосбалансируется, но только не так как хочется вам, а как хочется ей. В моем случае подводимый к стояку теплоноситель будет со свистом засасываться Оп2 этажа до тех пор пока Оп 1 не доостынут до уличной температуры, только тогда они будут способны конкурировать с кольцом 2 этажа и пресекут этот бестолковый отбор теплоносителя, конечно ОП 2 этажа им с определенного момента будетпомогать когда например Т в комнате станет 40 гр. и остывание ТП в ОП2 прекратится. Как мне кажется что это не комфортно. я добиваюсь обратного.
|
|
|
|
|
|
|
|
2.3.2014, 15:32
|
Группа: Участники форума
Сообщений: 33
Регистрация: 25.2.2014
Пользователь №: 224863

|
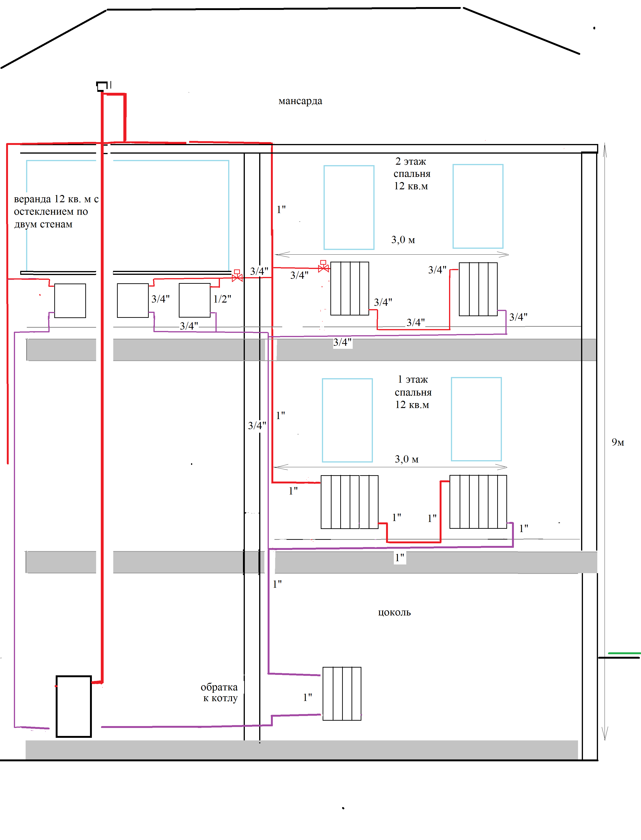
ДА НЕТ ЖЕ НЕ ТАКОЙ У МЕНЯ РИСУНОК. к главному стояку естественно ничего не подсоединяется. Самый левый радиатор питается не от главного, а от своего стояка. Я в посте это уточнял. Вот какой рисунок, чтоб никого не смущать этим несчастным радиатором. Система из 2 полуколец с попутным движением ТП длина пути теплоносителя через каждый ОП 43-47м . На рисунке 1 стояк (теперь 2 ) из 6 + главный. Разница между ОП 2 этажа справа и слева от стояка по потерям давления 5-7%. Это не критично.
Сообщение отредактировал Guerman - 2.3.2014, 15:48
Эскизы прикрепленных изображений
|
|
|
|
|
|
|
|
2.3.2014, 15:47
|
Группа: Участники форума
Сообщений: 4190
Регистрация: 17.8.2007
Из: Москва
Пользователь №: 10745

|
Лучше сместить точку врезки расширительного "бидона"  на 150-200 мм от подающего стояка (тройник на проход/тройник в отвлетвление). И чем автору не нДравятся классические схемы...
|
|
|
|
|
|
|
|
2.3.2014, 15:51
|
Группа: Участники форума
Сообщений: 33
Регистрация: 25.2.2014
Пользователь №: 224863

|
Это не бидон это возухоотводчик. Бидона в системе нет, вместо него планируется экспанзомат на обратке у котла. Если под классической схемой имеется в виду классические трубы воль стен под потолком с наклоном по полметра на метр, то не нравится дизайн. Я смотрю по расчетам что гравитационная система может выглядеть вполне эстетично и включать в себя необходимые регулировки. В остальном не вижу принципиальных отличий от классической схемы.
Сообщение отредактировал Guerman - 2.3.2014, 15:57
|
|
|
|
|
|
|
|
2.3.2014, 16:24
|
Группа: Участники форума
Сообщений: 4373
Регистрация: 4.12.2006
Из: Klaipeda
Пользователь №: 5034

|
Цитата(Guerman @ 2.3.2014, 16:51)  В остальном не вижу принципиальных отличий от классической схемы. Осталась мелочь- воплотить все в металле и оценить результаты. Останется ли оптимизм в голосе? )
|
|
|
|
|
|
|
|
2.3.2014, 16:36
|
Группа: Участники форума
Сообщений: 33
Регистрация: 25.2.2014
Пользователь №: 224863

|
Система не в металле, а в термостабилизированном армированном полипропилене, цена вопроса 98 тыр. главный стояк полибутен - цена вопроса 36 тыр. Это все без радиаторов. Дорого или нет - не знаю. Сравнить не с чем. Можно считать это капризом полоумного хозяина. От металла отказался сразу - только на обвязку котла. Пластик - чтоб сварить, запустить, посмотреть и замуровать до конца своей жизни.
|
|
|
|
|
|
|
|
2.3.2014, 16:37
|
Группа: Участники форума
Сообщений: 4190
Регистрация: 17.8.2007
Из: Москва
Пользователь №: 10745

|
Цитата(Guerman @ 2.3.2014, 15:51)  Это не бидон это возухоотводчик. Бидона в системе нет, вместо него планируется экспанзомат на обратке у котла. Если под классической схемой имеется в виду классические трубы воль стен под потолком с наклоном по полметра на метр, то не нравится дизайн. Я смотрю по расчетам что гравитационная система может выглядеть вполне эстетично и включать в себя необходимые регулировки. В остальном не вижу принципиальных отличий от классической схемы. "..не нравится дизайн.." Художника каждый обидеть может...  Эстетика технического решения... это не только раскрашенные в цветочек ОП и даже не сполер на копейке... "экспанзомат"? Сразу и написать трудно.. ну тогда и группу безопасности рисовать/ставить надо... хотя и в "бидоне" имеется мудрость старых мастеров.. и не одна.
Сообщение отредактировал Бойко - 2.3.2014, 16:38
|
|
|
|
|
|
|
|
2.3.2014, 16:46
|
Группа: Участники форума
Сообщений: 33571
Регистрация: 4.12.2006
Из: 97
Пользователь №: 5032

|
Цитата(Guerman @ 2.3.2014, 17:36)  Пластик - чтоб сварить, запустить, посмотреть и замуровать до конца своей жизни. Ну чего вы так то уж к нему? Пусть долго живет, в здравии и памяти твердой и дела пусть у него хорошие будут. да и сами живите долго и хорошо. Не надо лишнее пластику- всякая овощ своего стоит и не стоит его приукрашивать.
|
|
|
|
|
|
|
|
2.3.2014, 16:47
|
Группа: Участники форума
Сообщений: 4373
Регистрация: 4.12.2006
Из: Klaipeda
Пользователь №: 5034

|
Цитата(Guerman @ 2.3.2014, 16:36)  Сравнить не с чем. Можно считать это капризом полоумного хозяина. Так это все делаете еще и не себе?! )) Запомните только одно, неважно,что все "хотелки" рождал клиент, за результат , по сути, отвечать вам.
|
|
|
|
|
|
|
|
2.3.2014, 17:07
|
Группа: Участники форума
Сообщений: 33
Регистрация: 25.2.2014
Пользователь №: 224863

|
Ну так у меня вопрос не по группе безопасности, вот я и не отобразил ее, чтоб не захламлять картинку. Вон на первом рисунке оставил слева радиатор, висящий в воздухе, так людская фантазия его сразу к главному стояку приклеила, хотя мне кажется нет более бредового варианта. Но это человеческая психика - ААА новенький появился? а в г..но тебя сразу не разбираясь И схему полную в изометрии какой смысл выкладывать - она сложная, будет куча вопросов и потеря общего времени. Я в теме уже раза три пояснил что схема с попутным (не с тупиковым) движением теплоносителя. Интересует только вопрос отводов. Потери давления по кольцам я посчитал, выложил. Мотивировал. В ответ только общие фразы и ни одного поста типа "как это у тебя дружок на кольце потери давления всего 400 Па , а гравитационное располагаемое давление аж 800Па, так не бывает". Инженеры обычно общаются по существу и с цифрами. Только поправки к расчетам с опытом немного корректируются от тех что студентам дают. Но некоторые общие замечания все равно помогли. Нашел неточности в своих расчетах - думал нижнее кольцо на пределе, оказалось нет - запас по давлению есть. Спасибо. Полоумный хозяин - это я, для себя я делаю. сам. Воистину трудности перевода
Сообщение отредактировал Guerman - 2.3.2014, 17:09
|
|
|
|
|
|
|
|
2.3.2014, 17:24
|
Группа: Участники форума
Сообщений: 33571
Регистрация: 4.12.2006
Из: 97
Пользователь №: 5032

|
Ну вот что вам написать про располагаемые 800 и требуемые 400? Все равно ГСО себя отбалансирует и потери в параллельных кольцах будут равными, только вот расход по ним не будет нужным вам. Вам это (с расходом) зачем?
|
|
|
|
|
|
|
|
2.3.2014, 17:33
|
МОДЕРАТОР
Группа: Модераторы
Сообщений: 10995
Регистрация: 3.7.2004
Пользователь №: 32

|
и всё-таки, вы не ответили про электричество и насос в котле. да без разницы куда подключить тот ОП, на законы физики он не повлияет.
про эстетику - что мешает вмуровать трубу в штробу и в стену, но сделать геометрию классически безупречной?
|
|
|
|
|
|
|
|
2.3.2014, 18:05
|
Группа: Участники форума
Сообщений: 33
Регистрация: 25.2.2014
Пользователь №: 224863

|
В том то и дело, вводя дополнительные сопротивления в кольцо с избыточным гравитационным давлением при расчете требуемого более менее стационарного режима системы, нужного вам, мы избегаем следующей ситуации: ОП 2 этажа нагонит температуру в помещении до 40 градусов засасывая из стояка весь теплоноситель который позволяет Ду подводки, (вода же не дура - идет куда позовут а зовет ее располагаемое давление ОП2 этажа вдвое настойчивее) после этого ОП 2 этажа естественно перестанет остывать и стабилизируется, дав чуть погреться ОП 1 этажа, который сможет составить конкуренцию только когда разность теплоносителя на входе и выходе прибора будет градусов 20, а для этого помещение должно прилично остыть. И при этом даже удвоение количества секций на 1 этаже не помогут. Вам такая самобалансировка системы зачем, если вам надо чтоб ОП 2 этажа стабильно отбирали положенные 2 кВт ПРИ СТАБИЛЬНОЙ ТЕМПЕРАТУРЕ В ПОМЕЩЕНИИ 19 ГРАДУСОВ, А НЕ 35 (при разности температур на вх /выходе ОП 20 а не 5 гр)? И соответственно ОП 1 этажа должны на эту мощность выходить не при комнатной Т равной 10 градусов (при разности температур 30 градусов!). Привозу эти цифры от балды, без расчетов, извините. При этом в общей обратке при смешении потока будет все нормально - обратка обеих колец смешается, температура усреднится и котел будет думать что сережа молодец, так держать.
|
|
|
|
|
|
|
|
2.3.2014, 18:08
|
Группа: Участники форума
Сообщений: 7297
Регистрация: 27.5.2007
Пользователь №: 8854

|
Цитата(Бойко @ 2.3.2014, 13:37)  "экспанзомат"? Сразу и написать трудно.. ну тогда и группу безопасности рисовать/ставить надо... хотя и в "бидоне" имеется мудрость старых мастеров.. и не одна. Цитата(Guerman @ 2.3.2014, 14:07)  Ну так у меня вопрос не по группе безопасности, вот я и не отобразил ее, чтоб не захламлять картинку. Когда с чувством юмора проблемы начинаются - нужно отдохнуть от нахлынувших мыслей.ИМХО
Сообщение отредактировал испытатель - 2.3.2014, 18:08
|
|
|
|
|
|
|
|
2.3.2014, 18:28
|
Группа: Участники форума
Сообщений: 33
Регистрация: 25.2.2014
Пользователь №: 224863

|
Что тут ответить - просто хочу чтоб работало и без насоса. Штроба в стене требует тех же поворотов на 90 гр. чтоб утопить подводку а затем вывести ее из стены. При этом потери давления практически не отличаются от моего варианта увода после первого ОП под уровень пола, а потом поднятия вертикально на 60см. Местные сопротивления поворотов такие же (отрицательное грав. давление мизерное - теплоноситель не успевает остыть на этом вертикальном участке). Единственный плюс укладки в штробу - позволить воздуху из последнего в отводе ОП пройти к стояку и дальше к воздузоотводчику - не нужен кран Маевского. Минусы - 1)штробление поротерма (это оказался достаточно хрупкий материал - дал в нескольких местах вертикальные трещины по углам дома) не хочу ослоаблять кладку штробами. 2)необходимость утепления подводок замурованных в штробу. 3) вечная борьба с неизбежными трещинами штукатурки по ходу замурованного отвода к ОП из за большой локальной разницы нагрева штукатурки. Это для гипсокартона только пройдет.
Т.к. у меня система закрытая, то постоянного использования крана Маевского быть не должно - поступления воздуха в систему мизерное.
|
|
|
|
|
|
|
|
2.3.2014, 18:55
|
Группа: Участники форума
Сообщений: 10258
Регистрация: 8.3.2007
Пользователь №: 6446

|
Но так (сцепка) было в "спальнях" бы надёжнее - "и волки сыты и овцы целы"!
Раз трубы не стальные, то желательно чтоб обозначение в " соответствовало ближе к расчётному диаметру в мм (1 " - 25 мм, 1 1/2 " - 40 мм)
|
|
|
|
|
|
|
|
2.3.2014, 19:11
|
МОДЕРАТОР
Группа: Модераторы
Сообщений: 10995
Регистрация: 3.7.2004
Пользователь №: 32

|
на таких скоростях плавный, "длинный" отвод, будет иметь невеликое сопротивление. особенно если, повторюсь, перейти на калибр выше. соглашусь с КультРа по по поводу сцепки в спальнях. про регулировку. нормальной автоматической регулировки в ГСО реализовать трудно, разве что использовать ОП с регуляторами по воздушной части - с воздушными заслонками на которые навернуть/сколхозить привода, хотя быть может такое есть и пром.производтсва. не колхоз..
и еще раз. ваша ГСО, с поправкой КультРа, будет работать, если в ОП, по старту, будет заходить горячая вода.
термоголовки - поставьте, в конце-концов её всегда можно будет убрать.. только подберите её правильно.
|
|
|
|
|
|
|
|
2.3.2014, 19:25
|
Группа: Участники форума
Сообщений: 33
Регистрация: 25.2.2014
Пользователь №: 224863

|
Как раз и не нравится труба вдоль стены между окон. Все диаметры на рисунке внутренние. Стояк наружный Д=32мм, внутренний - 24,8мм отвод второго этажа наружный Д=25мм, внутренний 18 или 19,4 (у производителя армированные алюминием трубы с Ду 19 только зеленые идут на прокладку под полом, а белые для открытой прокладки имеют Ду=18мм, т.к. армированы стекловолокном) Да я посмотрел термоголовки подходят и данфос и комап для однотрубных систем.
Сообщение отредактировал Guerman - 2.3.2014, 19:32
|
|
|
|
|
|
|
|
2.3.2014, 19:29
|
МОДЕРАТОР
Группа: Модераторы
Сообщений: 10995
Регистрация: 3.7.2004
Пользователь №: 32

|
и еще, по опыту проживания в двухэтажном дому - в любом, а особенно в хорошо утепленном снаружи дому, потребная мощность отопления второго этажа намного, в разы, меньше первого.
если вы пишите Ду или DN - это и означает условный внутренний диаметр.
|
|
|
|
|
|
|
|
2.3.2014, 19:35
|
Группа: Участники форума
Сообщений: 33
Регистрация: 25.2.2014
Пользователь №: 224863

|
В том то и дело, а условия для циркуляции ОП 2 этажа лучше почти в два раза.
|
|
|
|
|
|
|
|
2.3.2014, 20:17
|
МОДЕРАТОР
Группа: Модераторы
Сообщений: 10995
Регистрация: 3.7.2004
Пользователь №: 32

|
правильно выбирайте ОП. и схему.
|
|
|
|
|
|
|
|
2.3.2014, 20:38
|
Группа: Участники форума
Сообщений: 7297
Регистрация: 27.5.2007
Пользователь №: 8854

|
Цитата(LordN @ 2.3.2014, 17:29)  и еще, по опыту проживания в двухэтажном дому - в любом, а особенно в хорошо утепленном снаружи дому, потребная мощность отопления второго этажа намного, в разы, меньше первого. А пример расчета хоть один можно? Через меня десятки ведомостей тепловых потерь двухэтажных домов прошли и ни разу не встречал, чтобы потери второго этажа были в несколько раз меньше первого. Ну наоборот, обычно процентов на 20 выше. Откуда вы это все берете? Хоть бы книжку какую помянули или примеры проектов привели.
|
|
|
|
|
|
|
|
2.3.2014, 21:50
|
Группа: Участники форума
Сообщений: 33
Регистрация: 25.2.2014
Пользователь №: 224863

|
Не понял какой пример расчета: теплопотерь здания или расчета режимов ОП для 1 и 2 этажа. Если теплопотерь здания, то я делал приблизительную оценку по площади (кубатуре) помещений с учетом количества окон и межэтажных проемов. В моем случае получается распределение теплопотерь между 1/2 этажами как 60/40 может получится даже 65/35. Опыт показывает что это так - всегда в -25 на первом этаже холоднее. Тепло 1 этажа греет пол 2 + через лестничный проем поднимается наверх. Мансарда над 2 этажом утеплена, но не отапливается специально, только разводкой трубы раздачи и радиатором, который я хочу врезать в раздачу чтоб увеличить терлопотери полипропиленовой трубы раздачи.
|
|
|
|
|
|
|
|
2.3.2014, 22:05
|
Группа: Участники форума
Сообщений: 7297
Регистрация: 27.5.2007
Пользователь №: 8854

|
Когда делается расчет по ограждающим конструкциям - опыту нет места, потому, что делаться должно по конкретному факту. Ну Вы же, наверное, инженер и именно этот принцип должен быть в крови. Если не копирую апробированное решение -Пока не просчитаю, а потом не проверю, не поверю никому! Начните с обязательных расчетов, которые нужно было сделать давно не только поэтажно, но и по помещениям. Извините, но то, что Вы творите и обсуждаете - непрофессионально по последовательности. Вам со всех сторон говорят, а Вы междусобойчиком наслаждаетесь. Стратификация температуры внутри сообщающихся замкнутых объемов помещений ообъекта, задача более сложная, но это ДРУГАЯ задача. Кроме того, вентиляция может все опрокинуть.
Сообщение отредактировал испытатель - 2.3.2014, 22:07
|
|
|
|
|
|
|
|
2.3.2014, 22:17
|
Группа: Участники форума
Сообщений: 33571
Регистрация: 4.12.2006
Из: 97
Пользователь №: 5032

|
Цитата(испытатель @ 2.3.2014, 23:05)  Когда делается расчет по ограждающим конструкциям - опыту нет места, потому, что... Испытатель, ну вот тут не стоит перегибать. Вы прекрасно знаете, как будет выполнен расчет согласно требований нормативов, а нестационарный ВТР никто делать не будет(расчет), даже для крупного объекта, к которым даже сторатноувеличенный коттедж не подойдет. Не увидеть в расчете "подушку". Как результат -можно. но не как результат расчета.И тем более в расчете СО. Хоть и сам не согласен с многократным превышением. Не с многократным,но с превышением.
|
|
|
|
|
|
|
|
3.3.2014, 0:28
|
Группа: Участники форума
Сообщений: 33
Регистрация: 25.2.2014
Пользователь №: 224863

|
Ну оставьте вы расчет ограждающих конструкций на моей совести, ради бога. 44 поротерм + 2см теплой штукатурки снаружи и 2 см внутри проходят по СНИПу чесслово. Остекление в пределах разумного. Я начал с расчета по помещениям, и под этот расчет стояки размещал. Отапливаемая площадь порядка 100 кв.м. по каждому этажу (второй этаж полноценный, над ним утепленная мансарда без специального отопления - только разводкой раздачи в подпольном пространстве) и 70 кв м в цоколе с ОП на обратке. Должно хватить и 25 кВт, хотя ТУ на подключение получено на 50кВт (на два котла по 25). По расчету обогрева помещений для подачи 4кВт на каждый стояк на пределе (v теплоносителя =0,2 м/с) хватало и Ду=18мм , специально взял следующий диаметр в запас (Ду=25мм) при необходимости могу увеличить ОП в полтора раза и задействовать оба котла. Меня волнует вопрос равномерного обогрева. Не хочу Ташкент на 2 этаже и заморозки на первом. Имея лестничный проем на 2 этаж в гостинной, а не в изолированном помещении это особенно актуально - тепло идет вверх. И внизу его должно быть больше. Сейчас живу в доме с теплым полом на 1 этаже и радиаторами и на 1 и 2 этаже. Дом без прихожей вообще. Лестничный проем на 2 этаж в гостиной. Так чтоб нормально спать (в морозы) оставил только теплый пол. Все радиаторы закрутил на полную и на 2 этаже тоже. А сейчас из 4 коллекторов ТП оставил 2 полуприкрученных. В общем не то мы обсуждаем.
|
|
|
|
|
|
|
|
3.3.2014, 5:21
|
МОДЕРАТОР
Группа: Модераторы
Сообщений: 10995
Регистрация: 3.7.2004
Пользователь №: 32

|
Цитата(испытатель @ 3.3.2014, 0:38)  А пример расчета хоть один можно? Через меня десятки ведомостей тепловых потерь двухэтажных домов прошли и ни разу не встречал, чтобы потери второго этажа были в несколько раз меньше первого. Ну наоборот, обычно процентов на 20 выше. Откуда вы это все берете? Хоть бы книжку какую помянули или примеры проектов привели. цитирую себя же Цитата потребная мощность отопления второго этажа намного, в разы, меньше первого. где тут про теплопотери? тут только про мощность ОП. достаточно такого пояснения или надо дальше разжевать? что за мелочные придирки? креститесь дальше..
|
|
|
|
|
|
|
  |
2 чел. читают эту тему (гостей: 2, скрытых пользователей: 0)
Пользователей: 0
|
|
Реклама
ООО «Арктика групп» ИНН: 7713634274 | erid 2VtzqvpbUMg
ООО «УНИСПЛИТ» ИНН: 6453155081 erid:2VtzqxNcYBM
Реклама: ООО «СЛ-ЛАЗЕР» ИНН 7727447267 | erid: 2VtzqvEDgM7

Реклама: ООО «Зет-Логист» ИНН 5401982392 | erid: 2Vtzqw44UH9
Последние сообщения Форума
|