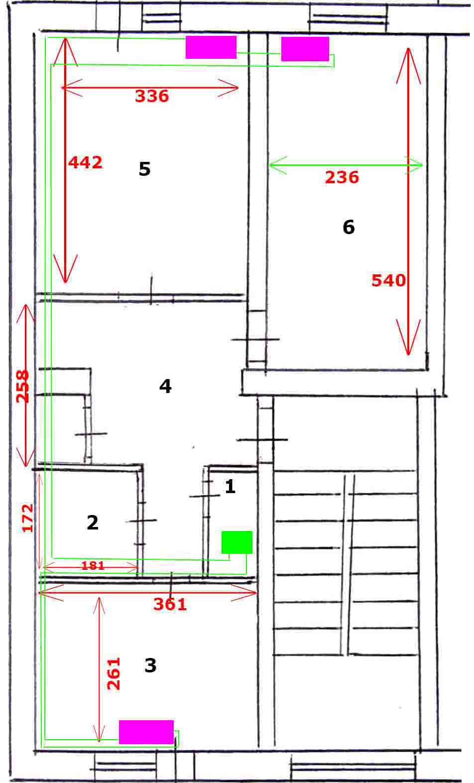
Помогите пожалуйста с выбором котла и схемой монтажа автономного отопления. Решили заделать автономку в квартире. Квартира двухкомнатная. Централизованного отопления считай что нет (радиаторы еле еле теплые). На схеме цифрами обозначены следующие объекты:
1-туалет; 2-ванна; 3-кухня; 4-коридор; 5-зал; 6-спальня. Красными цифрами обозначены габариты площадей.
Планирую приобретать электрический (газовый отпадает по закону) котел для обогрева трех радиаторов. Сам котел на схеме обозначен зеленым прямоугольником. Радиаторы-прямоугольники с сиреневой заливкой в кол-ве трех штук. Котел планирую монтировать в туалете, затем через ванную контур идет к радиатору на кухне, после через ту же ванную и коридор в зал и спальню (на схеме трубы обозначены зеленым). И возвращается обратным ходом в туалет. Примерная длина всей системы 50 м, отапливаемая площадь около 40 м2.
Котел только однофазный. Есть ли что то приличное в сегменте до 20 тыс. рублей? И обязательно ли брать котел со встроенным циркуляционным насосом и расширительным бачком, или это все можно монтировать отдельно? Помогите пожалуйста определиться с выбором и направьте в правильное русло реализацию монтажа и разводки системы. Буду очень признателен откликнувшимся)
Нажмите для просмотра прикрепленного файла
