Обратный. Муфтовый. Латунный., Были ли у кого проблемы? |
|
|
|
|
15.12.2009, 14:54
|
Не по вкусу пряник, не по чину мундир.
Группа: Участники форума
Сообщений: 50453
Регистрация: 24.4.2009
Пользователь №: 32666

|
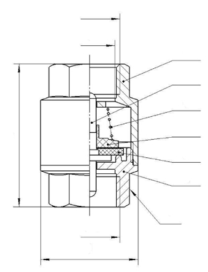
Долго думал, открывать ли отдельную тему... Итак, вопрос: были ли у кого-нибудь проблемы при эксплуатации обратных пружинных муфтовых латунных клапанов. Производителя указывать даже нет смысла, они от всех брэндов как близнецы-братья, приведу лишь эскиз для наглядности. Свою проблему разрисую в красках. Баня, открытый водоразбор, регулятор типа РТ-ДО Ду 50, вся арматура (Балломакс, шаровые) тоже Ду 50. Разбор в пиковые часы достигает 13 тонн/ч. Регулятор ГВС настроен на 65 градусов. Обратных клапанов два. Для надёжности, практика опробованная, работает более чем на 30 объектах... Но тут баня. Смотрим рисунок. Снижалась температура наружного воздуха, повышалась температура в подающем трубопроводе, наступило воскресенье. Люди попёрли в баню. На улице -20, в подаче +90, на лицах улыбки. И вдруг пропала горячая вода. Звонят, приезжаю, пошли в моечную? пошли... пришли, лучше бы не приходили, ибо полторы-две сотни обнажённых джентльменов за 2 часа без горячей воды изрядно утратили в манерах и стали просто голыми злыми мужиками, а в женском отделении ещё и дамы, и те тоже ничего хорошего администрации не говорили. За шулерство бьют канделябрами, за отсутствие горячей воды тоже бьют, а чем могут бить злые голые мужики?.. Но об этом не хотелось думать. Померял давление в коллекторе - 0,5 кгс/см2. Подача - 6 кгс/см2, обратка 4 кгс/см2. Явно, что термобаллон регулятора зажал подачу, а почему не идёт из обратки - неясно. Сразу предположение - под обратный клапан что-то поднесло, отсюда сразу неочевидное, но единственно верное экспресс-решение проблемы - металлопластиковая труба Ду 20 из обратки в коллектор (нижняя кривая на рисунке), подключили, всё работает. Вчера срезали нафиг эти клапаны, на всякий случай прихватили межфланцевый, "язычковый" для горизонтальной установки, его и поставили. Но вся фигня в том, что оба муфтовых клапана в идеальном состоянии, никаких засоров. Пропускная способность у клапанов таких очень приличная (или тут я как раз заблуждаюсь?). А что это было за явление такое - до сих пор не понимаю.
Сообщение отредактировал HeatServ - 15.12.2009, 14:58
Эскизы прикрепленных изображений
|
|
|
|
|
|
|
|
15.12.2009, 16:28
|
Инженер-физик широкого профиля :-)
Группа: Модераторы
Сообщений: 5577
Регистрация: 27.3.2005
Из: Московская область
Пользователь №: 596

|
Цитата(HeatServ @ 15.12.2009, 14:54)  Баня, открытый водоразбор...Разбор в пиковые часы достигает 13 тонн/ч. Ужос.  Но это оффтоп... Самые первые глупые вопросы: клапана той ли стороной стояли? С краном, который на одной нитке с клапанами, все в порядке?
|
|
|
|
|
|
|
|
15.12.2009, 16:37
|
Не по вкусу пряник, не по чину мундир.
Группа: Участники форума
Сообщений: 50453
Регистрация: 24.4.2009
Пользователь №: 32666

|
Цитата(Alex_ @ 15.12.2009, 16:28)  Ужос.  Но это оффтоп... Самые первые глупые вопросы: клапана той ли стороной стояли? С краном, который на одной нитке с клапанами, все в порядке? Клапаны стояли правильно. И что с ними будет "на одной нитке с краном"? Или Вы в смысле что исправен ли он вообще? Исправен.
|
|
|
|
|
|
|
|
15.12.2009, 17:54
|
Познающий воду
Группа: Участники форума
Сообщений: 603
Регистрация: 17.6.2006
Из: Москва
Пользователь №: 3177

|
Такое чувство, что его противодавление запирало. но учитывая, что при устройстве перемычки всё заработало - это маловероятно. Может датчик давления накрылся? перестал открывать воду из т/с %-\ Интересная всё-таки задачка =)
|
|
|
|
|
|
|
|
15.12.2009, 20:08
|
Не по вкусу пряник, не по чину мундир.
Группа: Участники форума
Сообщений: 50453
Регистрация: 24.4.2009
Пользователь №: 32666

|
Цитата(Seifer @ 15.12.2009, 17:54)  Такое чувство, что его противодавление запирало. Тоже поначалу думал, что это какой-то сложный динамический процесс запирания/короткого перепуска, но давление-то в коллекторе полкилограмма было...
|
|
|
|
|
|
|
|
15.12.2009, 20:20
|
Группа: Участники форума
Сообщений: 1274
Регистрация: 24.1.2008
Из: Екатеринбург
Пользователь №: 14772

|
проблема была, но фатальная. Тарелку клапана выгнуло по потоку, скорее всего из-за температуры (90С), поэтому клапан не закрывался, вырезал клапан, поставил другой бренд, но такой же пружинный 2'', посмотрим...
|
|
|
|
|
|
|
|
15.12.2009, 20:33
|
Не по вкусу пряник, не по чину мундир.
Группа: Участники форума
Сообщений: 50453
Регистрация: 24.4.2009
Пользователь №: 32666

|
Цитата(coverart @ 15.12.2009, 20:20)  проблема была, но фатальная. Тарелку клапана выгнуло по потоку, скорее всего из-за температуры (90С), поэтому клапан не закрывался, вырезал клапан, поставил другой бренд, но такой же пружинный 2'', посмотрим... Ладно бы он не закрывался (мы две штуки именно по этой причине ставим) так ведь он и не открывался почему-то...
|
|
|
|
|
|
|
|
15.12.2009, 21:12
|
Группа: Участники форума
Сообщений: 2422
Регистрация: 1.7.2004
Из: Санкт-Петербург
Пользователь №: 26

|
По правде говоря такие "детские" обратные клапаны не люблю и после пары поломок не ставлю вовсе. Их цена уже говорит о том, что доверять им не стоит :-) Ставлю межфланцевые или фланцевые типа как на рис.
Эскизы прикрепленных изображений
|
|
|
|
|
|
|
|
15.12.2009, 21:26
|
Познающий воду
Группа: Участники форума
Сообщений: 603
Регистрация: 17.6.2006
Из: Москва
Пользователь №: 3177

|
На диаметр 25 смешно ставить фланцевуа арматуру
|
|
|
|
|
|
|
|
15.12.2009, 22:06
|
Группа: Участники форума
Сообщений: 77
Регистрация: 10.7.2007
Из: Магнитогорск
Пользователь №: 9910

|
Была такая крень, дважды. Клапан нагревается и клинит. Температура падает- начинает работать. Можа шток направляющий распирает или еще че.
|
|
|
|
|
|
|
|
15.12.2009, 22:14
|
Группа: Участники форума
Сообщений: 2422
Регистрация: 1.7.2004
Из: Санкт-Петербург
Пользователь №: 26

|
Цитата На диаметр 25 смешно ставить фланцевуа арматуру Не вижу ничего смешного. Для дома для семьи можно и на резьбе, в промышленных системах обычное дело. А регулярно покупать/менять обратники тоже смешно ?
Сообщение отредактировал gilepp - 15.12.2009, 22:16
|
|
|
|
|
|
|
|
15.12.2009, 22:22
|
Не по вкусу пряник, не по чину мундир.
Группа: Участники форума
Сообщений: 50453
Регистрация: 24.4.2009
Пользователь №: 32666

|
Цитата(a-x-e-l-1 @ 15.12.2009, 22:06)  Была такая крень, дважды. Клапан нагревается и клинит. Температура падает- начинает работать. Можа шток направляющий распирает или еще че. Вот это интересно, надо запихать его в кастрюлю и на плиту с термометром. Спасибо за мысль.
|
|
|
|
|
|
|
|
15.12.2009, 22:57
|
Познающий воду
Группа: Участники форума
Сообщений: 603
Регистрация: 17.6.2006
Из: Москва
Пользователь №: 3177

|
на PN6-16 лучше уж  или  а фланцы либо PN25, либо Ду>50, либо t>100 вот такое у меня мнение
|
|
|
|
|
|
|
|
15.12.2009, 23:33
|
Группа: Участники форума
Сообщений: 20902
Регистрация: 8.8.2007
Из: Vilnius
Пользователь №: 10542

|
Клапаны были для ХВ. Правильное замечание было о том, что на высокой температуре их может клинить....
|
|
|
|
|
|
|
Гость_alsem_*
|
15.12.2009, 23:53
|
Guest Forum

|
Цитата(jota @ 15.12.2009, 23:33)  Клапаны были для ХВ. Правильное замечание было о том, что на высокой температуре их может клинить.... Они идут в двух вариантах. Если исполнительный механизм металлический, то не только для ХВ. Если исполнительный механизм полимерный (или с полимерами), то только для ХВ. Паспорт нужен.
Сообщение отредактировал alsem - 15.12.2009, 23:55
|
|
|
|
|
|
|
|
16.12.2009, 8:08
|
Не по вкусу пряник, не по чину мундир.
Группа: Участники форума
Сообщений: 50453
Регистрация: 24.4.2009
Пользователь №: 32666

|
Цитата(jota @ 15.12.2009, 23:33)  Клапаны были для ХВ. Правильное замечание было о том, что на высокой температуре их может клинить.... Цитата(alsem @ 15.12.2009, 23:53)  Они идут в двух вариантах. Если исполнительный механизм металлический, то не только для ХВ. Если исполнительный механизм полимерный (или с полимерами), то только для ХВ. Паспорт нужен. Вот то-то и оно, что поставщик уверял, дескать, клапаны наши именнно для горячей воды. Всё сегодня вечерком покажет кастрюля с термометром. Терпение, господа заседатели.
|
|
|
|
|
|
|
|
16.12.2009, 11:24
|
Не по вкусу пряник, не по чину мундир.
Группа: Участники форума
Сообщений: 50453
Регистрация: 24.4.2009
Пользователь №: 32666

|
Цитата(alsem @ 15.12.2009, 23:53)  Паспорт нужен. "При современном уровне развития печатного дела на западе..."© Да и на Востоке тоже печатное дело развито неплохо...
|
|
|
|
|
|
|
|
16.12.2009, 13:14
|
Группа: Участники форума
Сообщений: 2422
Регистрация: 1.7.2004
Из: Санкт-Петербург
Пользователь №: 26

|
Цитата на PN6-16 лучше уж Цитата а фланцы либо PN25, либо Ду>50, либо t>100 вот такое у меня мнение вот это понятное мнение, а то "фланцы смешно" и все такое :-)
|
|
|
|
|
|
|
Гость_Boris Blade_*
|
16.12.2009, 15:33
|
Guest Forum

|
Цитата(HeatServ @ 15.12.2009, 16:54)  Обратных клапанов два. Для надёжности, надежность в 2 раза меньше
|
|
|
|
|
|
|
|
16.12.2009, 16:15
|
Не по вкусу пряник, не по чину мундир.
Группа: Участники форума
Сообщений: 50453
Регистрация: 24.4.2009
Пользователь №: 32666

|
Цитата(Boris Blade @ 16.12.2009, 15:33)  надежность в 2 раза меньше Поясните.
|
|
|
|
|
|
|
Гость_Boris Blade_*
|
16.12.2009, 16:30
|
Guest Forum

|
Вероятность отказа в 2 раза больше.
|
|
|
|
|
|
|
|
16.12.2009, 16:42
|
Не по вкусу пряник, не по чину мундир.
Группа: Участники форума
Сообщений: 50453
Регистрация: 24.4.2009
Пользователь №: 32666

|
Цитата(Boris Blade @ 16.12.2009, 16:30)  Вероятность отказа в 2 раза больше. Они расположены последовательно, какая такая вероятность имеется ввиду? Отказал один - другой работает. То, что надёжность повышается не в 2 раза, это понятно, потому как наработка и у одного и у другого одинакова, но на случай непредвиденного брака спасает. Так уж получилось, что из всех смертных грехов превышение температуры обратной сетевой воды - самый тяжкий, потому и ставим два.
|
|
|
|
|
|
|
|
16.12.2009, 17:13
|
Группа: Участники форума
Сообщений: 33477
Регистрация: 4.12.2006
Из: 97
Пользователь №: 5032

|
"Отказал один - другой работает." Не совсем. Один из двух отказал- оба уже не работают и вся ветка. У вас же они не параллельно стоят.Залипание к примеру. При других вариантах неисправности вероятность работоспособности может и почти удваиваться. Но какая же это неисправность? Подбило седло одному из них?
|
|
|
|
|
|
|
|
16.12.2009, 18:25
|
Не по вкусу пряник, не по чину мундир.
Группа: Участники форума
Сообщений: 50453
Регистрация: 24.4.2009
Пользователь №: 32666

|
Отужинал. Гвоздями ужина были варёные обратные клапаны. Я немало озадачен, коллеги. Оба клапана шикарно работают при 50, 70 ,80 , 90 и 100 градусах. Никаких признаков клина. Всё-таки, какова пропускная способность этих клапанов? У кого есть какие-нибудь данные? Блин, я сегодня выпью наверное.
PS Может быть я не умею их готовить?...
Сообщение отредактировал HeatServ - 16.12.2009, 18:33
|
|
|
|
|
|
|
|
16.12.2009, 18:40
|
Группа: Участники форума
Сообщений: 33477
Регистрация: 4.12.2006
Из: 97
Пользователь №: 5032

|
А РТшка как сейчас? Жива и нормально пашет? Это не стародавняя ли РТ для ГВС? Правда не совсем уже помню( в 93-ем последний раз) чего мы там в ней крутили и где слабые места. Ключик на 10 снизу,но это Т регулировать вроде, а вот у капельника шайба вроде для перепада...... Может там подбило?
Сообщение отредактировал инж323 - 16.12.2009, 18:41
|
|
|
|
|
|
|
|
16.12.2009, 18:48
|
Не по вкусу пряник, не по чину мундир.
Группа: Участники форума
Сообщений: 50453
Регистрация: 24.4.2009
Пользователь №: 32666

|
Цитата(инж323 @ 16.12.2009, 18:40)  А РТшка как сейчас? Жива и нормально пашет? Это не стародавняя ли РТ для ГВС? Правда не совсем уже помню( в 93-ем последний раз) чего мы там в ней крутили и где слабые места. Ключик на 10 снизу,но это Т регулировать вроде, а вот у капельника шайба вроде для перепада...... Может там подбило? Регулятор типа РТ-ДО, штука крайне надёжная, что, впрочем, и доказала, когда с подачи поток перекрыла (температура в подаче за 90 была). Так что тут всё гут. Мысли у меня закончились. А это плохо.
Сообщение отредактировал HeatServ - 16.12.2009, 18:49
|
|
|
|
|
|
|
|
16.12.2009, 19:34
|
Познающий воду
Группа: Участники форума
Сообщений: 603
Регистрация: 17.6.2006
Из: Москва
Пользователь №: 3177

|
А может именно установка двух клапанов сыграла злую шутку?  Верхний каким то образом оказал действие на механику/гидравлику нижнего
|
|
|
|
|
|
|
|
16.12.2009, 21:43
|
Группа: Участники форума
Сообщений: 880
Регистрация: 18.2.2009
Пользователь №: 29388

|
Цитата(HeatServ @ 16.12.2009, 17:25)  PS Может быть я не умею их готовить?... Ну, наверное, кипел он не пару часиков, да еще и с колебаниями штока? Цитата: "Мнение о том, что разница между кранами от производителя и подделкой невелика, а преимущество в цене огромное, ошибочное. То же самое касается и мнения о производстве подделок неплохого качества, которое абсурдно уже само по себе, так как производители подделок в погоне за прибылью делают изделия из такой стали, которая не только плохого качества (крупное зерно стали, ломкость изделия, подверженность быстрой коррозии, слабая герметичность и т.д.), но и попросту вредна для здоровья. Дело в том, что, согласно сантехническим нормам, в России разрешено для сетей водоснабжения использовать только арматуру из латуни марки ЛС 59-1 или аналогичных по составу зарубежных материалов. Химический состав свинцовистой латуни ЛС 59-1 (ГОСТ 15527) составляет: Cu- медь (около 60%), Zn- цинк (около 39%), а содержание Pb- свинца не превышает 1,8%. По данным МИСиСа (Московский государственный институт стали и сплавов), который произвел в своей лаборатории спектральный анализ, из восьми купленных ими кранов шесть (!) оказались «чистой» подделкой, вредной для здоровья. Содержание в них свинца и других вредных примесей во много раз превышало все допустимые нормы." Почему бы не поставить обратный клапан из серии промарматуры, вместо сантех. Ведь пропуск 30тн/ч горяченького - уже кое-что.
|
|
|
|
|
|
|
Гость_alsem_*
|
17.12.2009, 0:48
|
Guest Forum

|
Есть в сетях ещё такая штука, как грязь. Из-за неё шток клапна( нов) мог заклинить. График в этот ден усиливался. Давление 0,5 наверное измерили при открытом водоразборе (иначе было бы дано две цифры, при открытом и закрытом). При демонтаже, говоря языком травмотологов, действие поражающего агента было случайно устранено (ведь не пинцетами демонтажили). Сейчас в наличии имеются два вполне работоспособных клапана (правда - варёных  ). Возможно такое? Причина должна быть простая ИМХО  .
|
|
|
|
|
|
|
|
17.12.2009, 1:18
|
Группа: Участники форума
Сообщений: 33477
Регистрация: 4.12.2006
Из: 97
Пользователь №: 5032

|
Цитата(alsem @ 17.12.2009, 0:48)  Причина должна быть простая ИМХО  . И даже до оскорбительно банального уровня простая!!!!!:mellow: .
|
|
|
|
|
|
|
|
17.12.2009, 8:16
|
Не по вкусу пряник, не по чину мундир.
Группа: Участники форума
Сообщений: 50453
Регистрация: 24.4.2009
Пользователь №: 32666

|
Причина - да, должна быть проста как три рубля... Грязь? Ну грязновато там, но не настолько же. Демонтировали варварски, ключами 4 номера и турбиной. Вариант, что поднесло что-то, а при отключении "обратно отнесло" тоже возможен, рукавица какая или тряпка, но там с обеих сторон на обратке фильтры сетчатые стоят. Неясно, будем ждать низкой температуры и большого водоразбора. Не выпуская из рук металлопласт Ду 20.
|
|
|
|
|
|
|
Гость_Boris Blade_*
|
17.12.2009, 9:12
|
Guest Forum

|
Чистота эксперимента нарушена. при демонтаже могли устранитЬ причину. Ваши действия попадают уже в область ремонта, там свои некоторые правила существуют. Да и хорошо бы мерять где нибудь, методом перебора, нет уверенности, что неисправность побеждена. есть и некоторые приметы в ремонте. например , если неисправность была, а затем самопроизвольно исчезла без каких то действий, очень вероятно, что когда нибудь появиться снова. а еще не выключай паяльник пока не одел крышку аппарата и не сделал ему прогон. (это из моего прошлого). Уже из нового: не собирай инструмент, пока все не проверил. Закон срабатывает изумительно. Еще : если долго и упорно е..я в одном месте и нет результата , причину ищи совсем в другом, иногда это другое на первый взгляд никакой связи не имеет с неисправностью.
Сообщение отредактировал Boris Blade - 17.12.2009, 9:27
|
|
|
|
|
|
|
|
17.12.2009, 9:29
|
Не по вкусу пряник, не по чину мундир.
Группа: Участники форума
Сообщений: 50453
Регистрация: 24.4.2009
Пользователь №: 32666

|
Цитата(Boris Blade @ 17.12.2009, 9:12)  Чистота эксперимента нарушена. Суровые северодвинские мужики не терпят приколов. Нафиг такие эксперименты, пусть хоть того чище. Цитата(Boris Blade @ 17.12.2009, 9:12)  Уже из нового: не собирай инструмент, пока все не проверил. Закон срабатывает изумительно. Предлагаете разложить инструмент и ждать в сентябре морозов под 20-25? Цитата(Boris Blade @ 17.12.2009, 9:12)  Еще : если долго и упорно е..я в одном месте и нет результата , причину ищи совсем в другом, иногда это другое на первый взгляд никакой связи не имеет с неисправностью. Это конечно же так. Вопрос уже перетекает в какую-то другую область, в которой я не силён.
|
|
|
|
|
|
|
Гость_Boris Blade_*
|
17.12.2009, 9:31
|
Guest Forum

|
Ничего не предлагаю, просто мои наблюдения, а какие мужики северодвинские или челябинские разницы нет. Ремонт- это почти искусство, и важен только результат (он и покажет насколько мужики суровы  ). если инструмент собрал, и не проверил окончательно работу, скорее всего будешь его тащить обратно из машины.
Сообщение отредактировал Boris Blade - 17.12.2009, 9:34
|
|
|
|
|
|
|
|
17.12.2009, 9:38
|
Не по вкусу пряник, не по чину мундир.
Группа: Участники форума
Сообщений: 50453
Регистрация: 24.4.2009
Пользователь №: 32666

|
Цитата(Boris Blade @ 17.12.2009, 9:31)  если инструмент собрал, и не проверил окончательно работу, Так особенность конструктива такова, что для полноценной проверки нужны определённые условия, низкая Tн и высокий водоразбор. И если водоразбор можно устроить, то на температуру нужно камлать, а это уже искусство бубна, и тут проблемы, недоработано.
|
|
|
|
|
|
|
Гость_Boris Blade_*
|
17.12.2009, 9:43
|
Guest Forum

|
я вашу схему не понял, по идее нужно устроить имитацию такого режима, а как, вопрос другой. Подсказал бы может че нибудь, если бы понял работу схемы. Есть еще: никогда никому не верь и все что может произойти-происходит.
|
|
|
|
|
|
|
|
17.12.2009, 9:55
|
Не по вкусу пряник, не по чину мундир.
Группа: Участники форума
Сообщений: 50453
Регистрация: 24.4.2009
Пользователь №: 32666

|
Цитата(Boris Blade @ 17.12.2009, 9:43)  я вашу схему не понял А чего там не понять? Классическая схема. Цитата(Boris Blade @ 17.12.2009, 9:43)  по идее нужно устроить имитацию такого режима Имитацию можно, закрыл подачу и имитируй, но температура теплоносителя другая будет. Цитата(Boris Blade @ 17.12.2009, 9:43)  все, что может произойти-происходит. А почему тогда происходит то, что происходить не должно? Цитата(Boris Blade @ 17.12.2009, 9:43)  никогда никому не верь Мне кажется, что Вы меня обманываете...
|
|
|
|
|
|
|
Гость_Boris Blade_*
|
17.12.2009, 10:06
|
Guest Forum

|
никогда никому не верь бывали случаи, что хором кричат, все зашибись работало, открываеш телевизор, на плате кусок припоя заводской на строчной развертке, т.е. он не работал по определению, таких случаев или подобных немало. Имеется ввиду: не доверяйте информации без подтверждения, а от поставщиков: недоверие х 1000 раз.
все, что может произойти-происходит. относится к РТДО, не следует считать его вне подозрений.
Клапана обратные выкиньте нах.
Сообщение отредактировал Boris Blade - 17.12.2009, 10:15
|
|
|
|
|
|
|
|
17.12.2009, 10:24
|
Не по вкусу пряник, не по чину мундир.
Группа: Участники форума
Сообщений: 50453
Регистрация: 24.4.2009
Пользователь №: 32666

|
Цитата(Boris Blade @ 17.12.2009, 10:06)  все, что может произойти-происходит. относится к РТДО, не следует считать его вне подозрений. Пока нет причин его подозревать. Цитата(Boris Blade @ 17.12.2009, 10:06)  Клапана обратные выкиньте нах. Они нах уже на полпути в пункт приёма цветмета.
|
|
|
|
|
|
|
|
17.12.2009, 10:35
|
Познающий воду
Группа: Участники форума
Сообщений: 603
Регистрация: 17.6.2006
Из: Москва
Пользователь №: 3177

|
Цитата никогда никому не верь бывали случаи, что хором кричат, все зашибись работало, открываеш телевизор, на плате кусок припоя заводской на строчной развертке, т.е. он не работал по определению, таких случаев или подобных немало. Имеется ввиду: не доверяйте информации без подтверждения, а от поставщиков: недоверие х 1000 раз. все, что может произойти-происходит . Доктор Хаус! Вы теперь в проектировании?
|
|
|
|
|
|
|
Гость_Boris Blade_*
|
17.12.2009, 10:42
|
Guest Forum

|
Был и в проектировании 5лет, предпоследнее место работы. Занимался и ремонтами БРЭА и сервисом HVAC, банковского оборудования, копировальной техники и вообще, чем только не занимался, в поганые 90 пришлось занятие искать, маленький ребенок, жрать нех, до этого работал на военке пока не разогнали нах. Врагу не пожелаешь такого.
Проблема с клапанами похоже не в них самих кроется, думаю, не должно такого явления повториться после их кастрации. впрочем время покажет.
Сообщение отредактировал Boris Blade - 17.12.2009, 10:50
|
|
|
|
|
|
|
|
17.12.2009, 11:02
|
Не по вкусу пряник, не по чину мундир.
Группа: Участники форума
Сообщений: 50453
Регистрация: 24.4.2009
Пользователь №: 32666

|
Цитата(Boris Blade @ 17.12.2009, 10:42)  впрочем время покажет. Да будет так. Вопросы остались, тема ещё не закрыта...
|
|
|
|
|
|
|
|
17.12.2009, 11:50
|
Группа: Участники форума
Сообщений: 53
Регистрация: 11.11.2009
Пользователь №: 40702

|
вопрос вода совсем не шла или небольшой расход все таки был? сопротивление у двух пружинных последовательно уже не детское... лепестковые получше в этом плане
|
|
|
|
|
|
|
Гость_alsem_*
|
17.12.2009, 12:13
|
Guest Forum

|
Цитата(HeatServ @ 17.12.2009, 8:16)  Причина - да, должна быть проста как три рубля... Грязь? Ну грязновато там, но не настолько же. Демонтировали варварски, ключами 4 номера и турбиной. Вариант, что поднесло что-то, а при отключении "обратно отнесло" тоже возможен, рукавица какая или тряпка, но там с обеих сторон на обратке фильтры сетчатые стоят. Неясно, будем ждать низкой температуры и большого водоразбора. Не выпуская из рук металлопласт Ду 20. Ил. Через грязевики проходит на раз. Заилились штоки, когда температура в сетях ещё небольшая была. Четыре пары скольжения (по две на клапан). При этом штоки могут очень даже чисто блестеть (трутся всё-таки). Если можем проворачивать арматуру в пункте (а зачем это делается?), а мы должны это делать, то как можем "провернуть" вертикальный обратный клапан? Тема может быть уже и открыта, а вот вопрос уже нет.
Сообщение отредактировал alsem - 17.12.2009, 12:16
|
|
|
|
|
|
|
|
17.12.2009, 12:27
|
Группа: Участники форума
Сообщений: 710
Регистрация: 11.2.2009
Пользователь №: 28987

|
может между ними воздух скопился? когда клапан один и в системе воздух есть, очень он сильно "хлопает", второй мог просто воздухом не открыться.
|
|
|
|
|
|
|
|
17.12.2009, 13:00
|
Не по вкусу пряник, не по чину мундир.
Группа: Участники форума
Сообщений: 50453
Регистрация: 24.4.2009
Пользователь №: 32666

|
Цитата(st_dir2 @ 17.12.2009, 11:50)  вопрос вода совсем не шла или небольшой расход все таки был? сопротивление у двух пружинных последовательно уже не детское... Сопротивление не детское, согласен, но и перепады не детские, в коллекторе 0,5 кгс/см2, а по другую сторону обратных уже 4 кгс/см2, что соотвествует 35 метрам перепада. И самое что интересное, двадцатка металлопластиковая всё исправила. Если чисто по математике: подача 90, обратка 52 после смешения 65 , то при расходе в 13 тонн получается, что с подмеса шло 8,5 тонн. Часть конечно через обратные, но большая часть именно через Ду 20. И какие потери на двух метрах Ду 20, да плюс переходники две штуки, в которых отверстие немногим больше 10 мм? Да ещё и на вентилях двадцатых потери тоже нешуточные. Цитата(alsem @ 17.12.2009, 12:13)  Ил. Через грязевики проходит на раз. Заилились штоки, когда температура в сетях ещё небольшая была. Четыре пары скольжения (по две на клапан). При этом штоки могут очень даже чисто блестеть (трутся всё-таки). Штоки были запачканы, на штоках небольшие царапины. Цитата(vovan08 @ 17.12.2009, 12:27)  может между ними воздух скопился? когда клапан один и в системе воздух есть, очень он сильно "хлопает", второй мог просто воздухом не открыться. Воздух в воде при давлении 4 кг тоже имеет давление 4 кг. По трубе, где стояли обратные шёл сильный шум.
|
|
|
|
|
|
|
|
17.12.2009, 13:31
|
Группа: Участники форума
Сообщений: 710
Регистрация: 11.2.2009
Пользователь №: 28987

|
не только в давление дело. думаю если поставить 1 клапан, работать будет.
|
|
|
|
|
|
|
|
17.12.2009, 13:45
|
Не по вкусу пряник, не по чину мундир.
Группа: Участники форума
Сообщений: 50453
Регистрация: 24.4.2009
Пользователь №: 32666

|
Цитата(vovan08 @ 17.12.2009, 13:31)  не только в давление дело. думаю если поставить 1 клапан, работать будет. Есть чем обосновать такую думку? Чем работа двух катастрофически отличается от работы одного?
|
|
|
|
|
|
|
|
17.12.2009, 13:54
|
Группа: Участники форума
Сообщений: 710
Регистрация: 11.2.2009
Пользователь №: 28987

|
Тем что первый пытается закрыться при проходе воздуха, поэтому и слышны "хлопки", когда этот пузырь будет проходить второй клапан, на первом появится еще один и в этой ситуации оба закроются, если воздуха станет достаточно то они оба останутся закрытыми. я так понимаю другой клапан поставили? "перемычку" закрывали? или у вас еще нет той Тн при которой все случилось и вы ее ждете?
|
|
|
|
|
|
|
|
17.12.2009, 14:07
|
Не по вкусу пряник, не по чину мундир.
Группа: Участники форума
Сообщений: 50453
Регистрация: 24.4.2009
Пользователь №: 32666

|
Цитата(vovan08 @ 17.12.2009, 13:54)  Тем что первый пытается закрыться при проходе воздуха, поэтому и слышны "хлопки", когда этот пузырь будет проходить второй клапан, на первом появится еще один и в этой ситуации оба закроются, если воздуха станет достаточно то они оба останутся закрытыми. То есть Вы говорите, что две слабеньких пружинки обратных клапанов и пузырёк воздуха могут заменить очень нехилый дроссель, создав перепад в 35 метров? Цитата(vovan08 @ 17.12.2009, 13:54)  "перемычку" закрывали? или у вас еще нет той Тн при которой все случилось и вы ее ждете? Вован, а Вы не пробовали темы с самого начала читать?
Сообщение отредактировал HeatServ - 17.12.2009, 14:16
|
|
|
|
|
|
|
|
17.12.2009, 14:20
|
Группа: Участники форума
Сообщений: 710
Регистрация: 11.2.2009
Пользователь №: 28987

|
как знаете, уважаемый...
|
|
|
|
|
|
|
Гость_alsem_*
|
18.12.2009, 0:15
|
Guest Forum

|
Цитата(Boris Blade @ 17.12.2009, 10:06)  Клапана обратные выкиньте нах. Более 60-ти штук, более чем с 30-ти объектов? Показалось, что HeatServ заботится об оставшихся в эксплуатации а не о снятых.
|
|
|
|
|
|
|
|
18.12.2009, 8:07
|
Не по вкусу пряник, не по чину мундир.
Группа: Участники форума
Сообщений: 50453
Регистрация: 24.4.2009
Пользователь №: 32666

|
Цитата(alsem @ 18.12.2009, 0:15)  Более 60-ти штук, более чем с 30-ти объектов? Показалось, что HeatServ заботится об оставшихся в эксплуатации а не о снятых. Конечно же никто их выбрасывать не будет, они же работают. Ну и что, что только в кастрюле? Впрочем, сегодня опять 25, минус 25, а это значит, что эксперимент продолжается.
|
|
|
|
|
|
|
|
18.12.2009, 21:31
|
Не по вкусу пряник, не по чину мундир.
Группа: Участники форума
Сообщений: 50453
Регистрация: 24.4.2009
Пользователь №: 32666

|
Вести со смесительных фронтов: лепестковый клапан работает как часы. Завтра сам туда съезжу.
|
|
|
|
|
|
|
Гость_егорыч_*
|
19.12.2009, 10:27
|
Guest Forum

|
Цитата(coverart @ 16.12.2009, 0:20)  проблема была, но фатальная. Тарелку клапана выгнуло по потоку, скорее всего из-за температуры (90С), поэтому клапан не закрывался, вырезал клапан, поставил другой бренд, но такой же пружинный 2'', посмотрим... Долго не отработает, садятся пружины и истираются рабочие поверхности. И температура своё поддаёт
|
|
|
|
|
|
|
Гость_alsem_*
|
19.12.2009, 23:57
|
Guest Forum

|
Цитата(HeatServ @ 18.12.2009, 8:07)  Впрочем, сегодня опять 25, минус 25, а это значит, что эксперимент продолжается. Как там с наружными температурами, отсюда НЕ виднее. Но есть такой помысел, что в этом сезоне повторов не будет. Ну если только - долгая и нудная оттепель. Это, если отказ системы был из-за засора клапанов по штокам.
|
|
|
|
|
|
|
|
20.12.2009, 0:09
|
Группа: Участники форума
Сообщений: 7297
Регистрация: 27.5.2007
Пользователь №: 8854

|
Клапан обратный латунный пружинный муфтовый c пластмассовым затвором типа EAGLE (аналог 601 и EURA) Kv=46,5 У двух последовательно установленных сопротивлений Kv уменьшается вдвое, как минимум. Пружинные клапаны в сцепке ставить нельзя - непредсказуемо меняется пропускная способность из-за нестационарности режимов между клапанами. Лепестковый надежнее. Я уверен что "аномалия" исчезнет, если один клапан уберете. Два клапана в сцепке - это изобретение с сомнительными целями. А пружинные клапаны - как клапаны меня тоже подводили в части перекрытия обратного потока. Отношусь к ним с предубеждением.
|
|
|
|
|
|
|
|
20.12.2009, 18:23
|
Не по вкусу пряник, не по чину мундир.
Группа: Участники форума
Сообщений: 50453
Регистрация: 24.4.2009
Пользователь №: 32666

|
Цитата(испытатель @ 20.12.2009, 0:09)  Пружинные клапаны в сцепке ставить нельзя - непредсказуемо меняется пропускная способность из-за нестационарности режимов между клапанами. Лепестковый надежнее. Я уверен что "аномалия" исчезнет, если один клапан уберете. Два клапана в сцепке - это изобретение с сомнительными целями. Давно Вас не было что-то, испытатель. Вот что за аномалия-то такая? Что там за режимы такие случились? Цитата(alsem @ 19.12.2009, 23:57)  Но есть такой помысел, что в этом сезоне повторов не будет. Ну если только - долгая и нудная оттепель. Это, если отказ системы был из-за засора клапанов по штокам. Не думаю, что засоры там при чём-то. А повторов видимо уже не будет, вчера проверял, лепестковый отлично отрабатывает, заехал на ряд объектов с муфтовыми спаренными - тоже работает всё, тоже с РТ-ДО, правда расходов таких, как на бане, естественно нет. Не люблю я эти вещи. Непонятные. Под подозрением остались муфтовики, и дружба с ними закончилась, а они ли виноваты - неизвестно. Осадочек, блин....
|
|
|
|
|
|
|
|
20.12.2009, 19:56
|
Группа: Участники форума
Сообщений: 7297
Регистрация: 27.5.2007
Пользователь №: 8854

|
Реплика - какое по вашему давление между клапанами и как оно меняется. С пружиной клапаны "Схлапываются", даже при наличии небольшого прямого перепада. Какой из клапанов "схлопнется" первый и как изменится перепад на втором? Вопросы реальные, но глупые, из серии кто сильнее- кит или слон. Ситуация не техническая, а созданная искусственно. Нужно применять комплектующие так, как они задуманы по своему функциональному назначению, а не экспериментировать, не понимая физики процессов. Кстати, какой из автомобилей лучше буксируется на мягкой сцепке опель или запорожец, а два таких автомобиля в сцепке. Зачем вы создаете проблемы, а потом их мужественно преодолеваете?
|
|
|
|
|
|
|
|
20.12.2009, 20:18
|
Не по вкусу пряник, не по чину мундир.
Группа: Участники форума
Сообщений: 50453
Регистрация: 24.4.2009
Пользователь №: 32666

|
Цитата(испытатель @ 20.12.2009, 19:56)  Нужно применять комплектующие так, как они задуманы по своему функциональному назначению, а не экспериментировать, не понимая физики процессов. Там происходит обычная вещь - клапан открыт только тогда, когда перепад давлений выше, чем усилие пружины, ни больше ни меньше. Подмешивание с обратного трубопровода в систему ГВС происходит не доли секунд, оно происходит несколько полноценных секунд (5-10), за это время режим между клапанами вполне себе стабилизируется, именно так происходит на всех объектах. А может где написано, что использование двух клапанов последовательно вообше запрещено?
|
|
|
|
|
|
|
|
21.12.2009, 12:07
|
Инженер-физик широкого профиля :-)
Группа: Модераторы
Сообщений: 5577
Регистрация: 27.3.2005
Из: Московская область
Пользователь №: 596

|
До сих пор не пойму, что у вас там произошло. В чудеса не верю, а осадочек после непонятно как устраненной неисправности действительно остается.
|
|
|
|
|
|
|
|
21.12.2009, 13:09
|
Не по вкусу пряник, не по чину мундир.
Группа: Участники форума
Сообщений: 50453
Регистрация: 24.4.2009
Пользователь №: 32666

|
Цитата(Alex_ @ 21.12.2009, 12:07)  До сих пор не пойму, что у вас там произошло. В чудеса не верю, а осадочек после непонятно как устраненной неисправности действительно остается. Придётся зорко бдить и ждать аналогичного случая, а там уже без окончательного выяснения и протоколирования инцидента спать не ложиться. Руки чешутся конечно поставить обратно эти клапаны и поселиться в бане, но времени столько нет.
|
|
|
|
|
|
|
|
21.12.2009, 13:57
|
Группа: Участники форума
Сообщений: 880
Регистрация: 18.2.2009
Пользователь №: 29388

|
Ну раз в расширение материалов штока, не предназначенных на температуру и в попадание грязи не верите, есть еще версия: если первый клапан вдавило до упора, уменьшилось проходное сечение, за ним резко упало давление, второй клапан просто не открылся. То что два подряд обратника ставить нельзя - тоже слышал.
Сообщение отредактировал toddd - 21.12.2009, 13:57
|
|
|
|
|
|
|
|
21.12.2009, 14:35
|
Инженер-физик широкого профиля :-)
Группа: Модераторы
Сообщений: 5577
Регистрация: 27.3.2005
Из: Московская область
Пользователь №: 596

|
Цитата(toddd @ 21.12.2009, 13:57)  если первый клапан вдавило до упора, уменьшилось проходное сечение, за ним резко упало давление, второй клапан просто не открылся. Не вариант. Давление падает в динамике. Если второй клапан не открыт, давление после первого будет такое же, как и до него. Да и сколько там давления падает даже при потоке? Доли атмосферы. Цитата То что два подряд обратника ставить нельзя - тоже слышал. Это на автономном отплении - там циркуляционные насосы слабые...
|
|
|
|
|
|
|
|
21.12.2009, 14:55
|
Не по вкусу пряник, не по чину мундир.
Группа: Участники форума
Сообщений: 50453
Регистрация: 24.4.2009
Пользователь №: 32666

|
Цитата(toddd @ 21.12.2009, 13:57)  первый клапан вдавило до упора, уменьшилось проходное сечение, за ним резко упало давление, второй клапан просто не открылся. Вода-то шла, немного, но шла, поэтому второй тоже был открыт, а вот про "вдавило до упора" тоже думал, по идее возможно, но тогда на тарелке, которую "вдавило до упора" должны быть следы остаточной деформации, надо разобрать и сравнить. Мысль!
Сообщение отредактировал HeatServ - 21.12.2009, 14:56
|
|
|
|
|
|
|
|
21.12.2009, 15:09
|
Группа: Участники форума
Сообщений: 33477
Регистрация: 4.12.2006
Из: 97
Пользователь №: 5032

|
"следы остаточной деформации" Наверное следы нанесенные в следствии неравной тепловой деформации разных геометрич. деталей из одного материала. Корпус ограничен прочностными делами и расширяться может в пределах линейного расширения,но периметрально и соответственно диаметр внутренний расшириться меньше. А вот седло клапана расшириться линейно и в большей степени и может задевать за... за края посадочного места и клинить там. А при оставании ... все вернулось.Может только царапинки какие только остануться и то сомнительно. Сумбурно сформулировано конечно, бытово.
|
|
|
|
|
|
|
|
21.12.2009, 20:35
|
Не по вкусу пряник, не по чину мундир.
Группа: Участники форума
Сообщений: 50453
Регистрация: 24.4.2009
Пользователь №: 32666

|
Ну, вот как бы так. Думаю, особые комментарии не нужны. Экземпляр слева стоял первым по ходу движения теплоносителя, правый вторым. Обе тарелки изогнуло конусом, обе тарелки свободно ходят по штоку и замечательно садятся почти полностью (да какое там почти - намертво!) перекрывая путь для воды. Вы до сих пор используете обратные муфтовые латунные?  PS toddd, Вам респект!
Сообщение отредактировал HeatServ - 21.12.2009, 20:52
Эскизы прикрепленных изображений
|
|
|
|
|
|
|
|
21.12.2009, 23:25
|
Инженер-физик широкого профиля :-)
Группа: Модераторы
Сообщений: 5577
Регистрация: 27.3.2005
Из: Московская область
Пользователь №: 596

|
Цитата(HeatServ @ 21.12.2009, 20:35)  Вы до сих пор используете обратные муфтовые латунные?  А вот теперь вторая часть мармизонского балета - ИМЯ ПРОИЗВОДИТЕЛЯ В СТУДИЮ!!!
|
|
|
|
|
|
|
|
21.12.2009, 23:34
|
Не по вкусу пряник, не по чину мундир.
Группа: Участники форума
Сообщений: 50453
Регистрация: 24.4.2009
Пользователь №: 32666

|
Цитата(Alex_ @ 21.12.2009, 23:25)  А вот теперь вторая часть мармизонского балета - ИМЯ ПРОИЗВОДИТЕЛЯ В СТУДИЮ!!! Обязательно. Завтра.
|
|
|
|
|
|
|
|
22.12.2009, 12:00
|
Не по вкусу пряник, не по чину мундир.
Группа: Участники форума
Сообщений: 50453
Регистрация: 24.4.2009
Пользователь №: 32666

|
Бумаг по виновнику пока не нашёл, но на боковине красуется гравировка, на гравировку денег хватило у них... Судя по наклону буквы С чувствуется след братского турецкого народа, хотя, может быть это братский китайский народ. Но уж никак не братский немецкий.
Эскизы прикрепленных изображений
|
|
|
|
|
|
|
|
22.12.2009, 12:09
|
Инженер-физик широкого профиля :-)
Группа: Модераторы
Сообщений: 5577
Регистрация: 27.3.2005
Из: Московская область
Пользователь №: 596

|
Цитата(HeatServ @ 22.12.2009, 12:00)  ... братский китайский народ. Хуже. "Бренд" одной из крупных российских торговых компаний, производимый в Китае. В поднебесной можно найти товары разного качества, но то, что идет в нашу страну по заказу наших предпринимателей - г..но. Однозначно.
|
|
|
|
|
|
|
|
22.12.2009, 16:40
|
сам себе Sapiens
Группа: Участники форума
Сообщений: 11390
Регистрация: 21.5.2005
Из: г. Владимир
Пользователь №: 797

|
Цитата(HeatServ @ 22.12.2009, 12:00)  может быть это братский китайский народ. "Sic !"
|
|
|
|
|
|
|
|
22.12.2009, 16:51
|
Не по вкусу пряник, не по чину мундир.
Группа: Участники форума
Сообщений: 50453
Регистрация: 24.4.2009
Пользователь №: 32666

|
Цитата(tiptop @ 22.12.2009, 16:40)  "Sic !"  Братья-латиняне?
|
|
|
|
|
|
|
|
22.12.2009, 17:35
|
Группа: Участники форума
Сообщений: 33477
Регистрация: 4.12.2006
Из: 97
Пользователь №: 5032

|
Цитата(tiptop @ 22.12.2009, 16:40)  "Sic !"  По турецки (если это так же написать) тоже уместно звучит.И даже типа и банить не за что. А вообще, чего то в памяти всплывает несколько по другому выглядящим этот узел с фоток.С седлом другим и там металла поболее.Лет 7 назад что то такое всплывало,но уже не вспомню.Тож чего то клапана чудеса творили и не в паре , а поодиночке даже.Толи Т вообще недержали, толи ломались обратным давлением....
|
|
|
|
|
|
1 чел. читают эту тему (гостей: 1, скрытых пользователей: 0)
Пользователей: 0
|
|
Реклама
ООО «Арктика групп» ИНН: 7713634274
Реклама: ООО «СибСтронг» | ИНН 6670013662 | ERID: 2VtzqvdgiCU
ООО «УНИСПЛИТ» ИНН: 6453155081 erid:2VtzqwGt2gw
Реклама: ООО «СЛ-ЛАЗЕР» ИНН 7727447267 | erid: 2VtzqvY3G2W
Реклама: ООО «НовоКС» | ИНН 6330071530 | erid: 2VtzqwMVijq
Последние сообщения Форума
|