расчет приведенного сопротивления теплопередачи полов по грунту (разбивка по зонам) |
|
|
|
|
20.6.2011, 11:39
|
Группа: Участники форума
Сообщений: 130
Регистрация: 29.4.2010
Пользователь №: 54782

|
Коллеги! нужна помощь! Подскажите как подсчитать приведенное сопротивление теплопередачи наружных ограждающих конструкций подвального помещения, контактирующих с грунтом. Знаю, что необходимо площади подвала разбивать по зонам, почитал приложение Я.2 СП 23-101-2004г Проектирование тепловой защиты здания, ничего не понял!  Может есть какая-то более подробная методика, помогите! В моем случае, все банальней, есть МОУСОШ (средняя школа) и есть подвальное помещение, размеры подвала (ширина, длина, высота, площадь, объем) известны. HELP!
|
|
|
|
|
|
|
|
20.6.2011, 12:51
|
Группа: Участники форума
Сообщений: 93
Регистрация: 19.4.2011
Из: Ростов-на-Дону
Пользователь №: 104364

|
Цитата(lsvtula @ 20.6.2011, 12:39)  Коллеги! нужна помощь! Подскажите как подсчитать приведенное сопротивление теплопередачи наружных ограждающих конструкций подвального помещения, контактирующих с грунтом. Знаю, что необходимо площади подвала разбивать по зонам, почитал приложение Я.2 СП 23-101-2004г Проектирование тепловой защиты здания, ничего не понял!  Может есть какая-то более подробная методика, помогите! В моем случае, все банальней, есть МОУСОШ (средняя школа) и есть подвальное помещение, размеры подвала (ширина, длина, высота, площадь, объем) известны. HELP! Приведенное термическое сопротивление теплопередаче конструкции пола, расположенного непосредственно на грунте, принимается по упрощенной методике, в соответствии с которой поверхность пола делят на полосы шириной 2 м, параллельные наружным стенам. Для первой зоны (ближайшей к наружной стене) условное термическое сопротивление теплопередаче принима-ется равным – R н.п. = 2,1 (м2 • градС)/ Вт, для следующей за ней – второй зоны Rн.п. = 4,3(м2 •градС)/ Вт, для третей зоны – Rн.п. = 8,6 (м2 •градС)/ Вт, для четвертой зоны – R н.п. = 14,2 (м2•градС)/ Вт. То есть, там на наружной стене, где начинается грунт, пошел отчет первой зоны пола. и так далее.
|
|
|
|
|
|
|
|
20.6.2011, 13:06
|
Группа: Участники форума
Сообщений: 130
Регистрация: 29.4.2010
Пользователь №: 54782

|
Цитата(Кислов @ 20.6.2011, 13:51)  Приведенное термическое сопротивление теплопередаче конструкции пола, расположенного непосредственно на грунте, принимается по упрощенной методике, в соответствии с которой поверхность пола делят на полосы шириной 2 м, параллельные наружным стенам. Для первой зоны (ближайшей к наружной стене) условное термическое сопротивление теплопередаче принима-ется равным – R н.п. = 2,1 (м2 • градС)/ Вт, для следующей за ней – второй зоны Rн.п. = 4,3(м2 •градС)/ Вт, для третей зоны – Rн.п. = 8,6 (м2 •градС)/ Вт, для четвертой зоны – R н.п. = 14,2 (м2•градС)/ Вт. То есть, там на наружной стене, где начинается грунт, пошел отчет первой зоны пола. и так далее. подвал в сечении здания имеет прямоугольную форму по одной длинной стороне и трем коротким сторонам наружная ограждающая стена граничит с грунтом. По какой стороне нарезать полосы? по длиной или короткой стороне? В площадь наружного ограждения каждой зоны что входит?: площадь пола+площадь той части стены, которая находится ниже 0,00 отметки? Так я понимаю?
|
|
|
|
|
|
|
|
20.6.2011, 13:28
|
Группа: Участники форума
Сообщений: 93
Регистрация: 19.4.2011
Из: Ростов-на-Дону
Пользователь №: 104364

|
Цитата(lsvtula @ 20.6.2011, 14:06)  подвал в сечении здания имеет прямоугольную форму по одной длинной стороне и трем коротким сторонам наружная ограждающая стена граничит с грунтом. По какой стороне нарезать полосы? по длиной или короткой стороне? В площадь наружного ограждения каждой зоны что входит?: площадь пола+площадь той части стены, которая находится ниже 0,00 отметки? Так я понимаю?  на каждой стене, контактирующей с грунтом, от нулевой отметки вниз отсчитываете 2м. это 1я зона. далее также со второй и третьей. четвертая зона - то что осталось.
|
|
|
|
|
|
|
|
20.6.2011, 14:48
|
Группа: Участники форума
Сообщений: 130
Регистрация: 29.4.2010
Пользователь №: 54782

|
Цитата(Кислов @ 20.6.2011, 14:28)  на каждой стене, контактирующей с грунтом, от нулевой отметки вниз отсчитываете 2м. это 1я зона. далее также со второй и третьей. четвертая зона - то что осталось. извините, за бестолковость  пол учитывается или нет?
|
|
|
|
|
|
|
|
20.6.2011, 15:03
|
Группа: Участники форума
Сообщений: 95
Регистрация: 10.2.2009
Пользователь №: 28886

|
ещё надо не забыть правило:"Поверхность пола в I зоне, примыкающая к наружному углу, имеет повышенные теплопотери, поэтому ее площадь размером 2х2 дважды учитывается при определении общей площади I зоны." а для наглядности и в качестве помощи при расчетах предлагаю свою незамысловатую наработочку
|
|
|
|
|
|
|
|
20.6.2011, 15:09
|
Группа: Участники форума
Сообщений: 130
Регистрация: 29.4.2010
Пользователь №: 54782

|
Цитата(uРАn @ 20.6.2011, 16:03)  ещё надо не забыть правило:"Поверхность пола в I зоне, примыкающая к наружному углу, имеет повышенные теплопотери, поэтому ее площадь размером 2х2 дважды учитывается при определении общей площади I зоны." а для наглядности и в качестве помощи при расчетах предлагаю свою незамысловатую наработочку  Большое вам спасибо! Дай бог вам всем здоровья!
|
|
|
|
|
|
|
|
20.6.2011, 15:28
|
Группа: Участники форума
Сообщений: 93
Регистрация: 19.4.2011
Из: Ростов-на-Дону
Пользователь №: 104364

|
Цитата(uРАn @ 20.6.2011, 16:03)  ещё надо не забыть правило:"Поверхность пола в I зоне, примыкающая к наружному углу, имеет повышенные теплопотери, поэтому ее площадь размером 2х2 дважды учитывается при определении общей площади I зоны." а для наглядности и в качестве помощи при расчетах предлагаю свою незамысловатую наработочку  точно. забыл написать. Цитата(uРАn @ 20.6.2011, 16:03)  в качестве помощи при расчетах предлагаю свою незамысловатую наработочку  цветастая и понятная, благодарю
|
|
|
|
|
|
|
|
20.6.2011, 15:33
|
Группа: Участники форума
Сообщений: 130
Регистрация: 29.4.2010
Пользователь №: 54782

|
Цитата(uРАn @ 20.6.2011, 16:03)  ещё надо не забыть правило:"Поверхность пола в I зоне, примыкающая к наружному углу, имеет повышенные теплопотери, поэтому ее площадь размером 2х2 дважды учитывается при определении общей площади I зоны." а для наглядности и в качестве помощи при расчетах предлагаю свою незамысловатую наработочку  А в табличках под номерами 1,2,3,4,5 что означает?
|
|
|
|
|
|
|
|
20.6.2011, 15:37
|
Группа: Участники форума
Сообщений: 78
Регистрация: 20.1.2011
Пользователь №: 90328

|
lsvtula, Вы кто по профессии??и какое у Вас образование?
Сообщение отредактировал rblgik - 20.6.2011, 15:38
|
|
|
|
|
|
|
|
20.6.2011, 15:41
|
Группа: Участники форума
Сообщений: 95
Регистрация: 10.2.2009
Пользователь №: 28886

|
можно считать до 5 вариантов по пяти схемам. такая надобность может возникнуть при расчете сложного по конфигурации пола по грунту при разбивке на большое кол-во участков.
|
|
|
|
|
|
|
|
20.6.2011, 15:46
|
Группа: Участники форума
Сообщений: 130
Регистрация: 29.4.2010
Пользователь №: 54782

|
Цитата(rblgik @ 20.6.2011, 16:37)  lsvtula, Вы кто по профессии??и какое у Вас образование? Не строитель точно!
|
|
|
|
|
|
|
|
20.6.2011, 15:51
|
Группа: Участники форума
Сообщений: 78
Регистрация: 20.1.2011
Пользователь №: 90328

|
Цитата(lsvtula @ 20.6.2011, 12:39)  Коллеги! нужна помощь! ..... Цитата(lsvtula @ 20.6.2011, 16:46)  Не строитель точно!  Ну да, ну да))))
|
|
|
|
|
|
|
|
20.6.2011, 15:53
|
Группа: Участники форума
Сообщений: 95
Регистрация: 10.2.2009
Пользователь №: 28886

|
дык я вот тоже в прошлом космиццкий инженер, но по велениям времени пришлось, как пел Велюров в "Покровских воротах", пере-квали-фи-цирова-ться
|
|
|
|
|
|
|
|
20.6.2011, 16:07
|
Группа: Участники форума
Сообщений: 130
Регистрация: 29.4.2010
Пользователь №: 54782

|
Цитата(rblgik @ 20.6.2011, 16:51)  Ну да, ну да))))  не совсем понятна ваша ирония, ну да бог с вами. Вообще я по образованию инженер-теплоэнергетик, и мне переквалификация не нужна. А вот в строительной теплотехнике я делаю первые шаги, поэтому много вопросов, как уже обратили внимание.
|
|
|
|
|
|
|
|
20.6.2011, 16:14
|
Группа: Участники форума
Сообщений: 93
Регистрация: 19.4.2011
Из: Ростов-на-Дону
Пользователь №: 104364

|
Цитата(lsvtula @ 20.6.2011, 17:07)  не совсем понятна ваша ирония, ну да бог с вами. Вообще я по образованию инженер-теплоэнергетик, и мне переквалификация не нужна. А вот в строительной теплотехнике я делаю первые шаги, поэтому много вопросов, как уже обратили внимание. по специальности инженер-теплоэнергетик. на 4 курсе преподавали предмет ЭСОЖ - энергетические системы обеспечения жизнедеятельности человека. там как раз и считали теплопотери и полы по зонам разбивали. у Вас не было такого?
|
|
|
|
|
|
|
|
20.6.2011, 16:43
|
Группа: Участники форума
Сообщений: 130
Регистрация: 29.4.2010
Пользователь №: 54782

|
Цитата(Кислов @ 20.6.2011, 17:14)  по специальности инженер-теплоэнергетик. на 4 курсе преподавали предмет ЭСОЖ - энергетические системы обеспечения жизнедеятельности человека. там как раз и считали теплопотери и полы по зонам разбивали. у Вас не было такого?  У меня специальность промышленная теплоэнергетика и я занимался не полами, а котельными, ТЭЦ промышленных предприятий и другими ИЦТ
|
|
|
|
|
|
|
|
20.6.2011, 16:46
|
Группа: Участники форума
Сообщений: 93
Регистрация: 19.4.2011
Из: Ростов-на-Дону
Пользователь №: 104364

|
Цитата(lsvtula @ 20.6.2011, 17:43)  У меня специальность промышленная теплоэнергетика и я занимался не полами, а котельными, ТЭЦ промышленных предприятий и другими ИЦТ  РГУПС, Ростов-на-Дону, специальность пром.теплоэнергетика
|
|
|
|
|
|
|
|
20.6.2011, 16:49
|
Группа: Участники форума
Сообщений: 130
Регистрация: 29.4.2010
Пользователь №: 54782

|
Цитата(Кислов @ 20.6.2011, 17:46)  РГУПС, Ростов-на-Дону, специальность пром.теплоэнергетика  НИ РХТУ г.Новомосковск Тульская область, специальность промышленная теплоэнергетика
|
|
|
|
|
|
|
|
20.6.2011, 19:43
|
Группа: Участники форума
Сообщений: 685
Регистрация: 8.3.2011
Из: г.Королев
Пользователь №: 97402

|
Вспоминается Л. Кэролл: "Алиса, это - пудинг! Пудинг, это - Алиса!" Я - ТГВ, МГСУ (Московский строительный), пошел по стопам матери - она РГСУ (Рижский строительный), ПГС. Тоже, кстати, в бюрократии.
|
|
|
|
|
|
|
|
20.6.2011, 20:12
|
Группа: Участники форума
Сообщений: 93
Регистрация: 19.4.2011
Из: Ростов-на-Дону
Пользователь №: 104364

|
интересно, автор разобрался с зонами?
|
|
|
|
|
|
|
|
21.6.2011, 1:04
|
Группа: Участники форума
Сообщений: 518
Регистрация: 29.4.2010
Из: Россия
Пользователь №: 54687

|
Умничать завязывайте! Тут реально надо быть и электриком и тепловиком и экономистом в одном лице. Я думаю, мало кто соответствует данной категории. В энергоаудите, сколь будешь жить столь и учиться. Мне, допустим тоже не зазорно спросить про то, чего пришлось, как бы на бегу изучать.
|
|
|
|
|
|
|
|
21.6.2011, 6:02
|
Не придуман ещё мой мир ·)
Группа: Участники форума
Сообщений: 719
Регистрация: 21.10.2005
Из: г.Иваново
Пользователь №: 1377

|
Цитата(lsvtula @ 20.6.2011, 17:43)  У меня специальность промышленная теплоэнергетика и я занимался не полами, а котельными, ТЭЦ промышленных предприятий и другими ИЦТ  Не надо нашу специальность так заужать Нас учили и котельным и ТЭЦ и установкам всяким - выпарным, холодильным, ректификационным, сушильным,... и полам, и отоплению, и вентиляции, и кондиционированию... иии...
|
|
|
|
|
|
|
|
21.6.2011, 6:53
|
Группа: Участники форума
Сообщений: 93
Регистрация: 19.4.2011
Из: Ростов-на-Дону
Пользователь №: 104364

|
Цитата(Иванов В.А. @ 21.6.2011, 7:02)  Не надо нашу специальность так заужать Нас учили и котельным и ТЭЦ и установкам всяким - выпарным, холодильным, ректификационным, сушильным,... и полам, и отоплению, и вентиляции, и кондиционированию... иии... я о том же
|
|
|
|
|
|
|
|
21.6.2011, 6:59
|
Группа: Участники форума
Сообщений: 93
Регистрация: 19.4.2011
Из: Ростов-на-Дону
Пользователь №: 104364

|
Цитата(zabexpert @ 21.6.2011, 2:04)  Умничать завязывайте! Тут реально надо быть и электриком и тепловиком и экономистом в одном лице. Я думаю, мало кто соответствует данной категории. В энергоаудите, сколь будешь жить столь и учиться. Мне, допустим тоже не зазорно спросить про то, чего пришлось, как бы на бегу изучать. не думаю, что здесь кто-то всерьез умничает.
|
|
|
|
|
|
|
|
21.6.2011, 7:08
|
Группа: Участники форума
Сообщений: 518
Регистрация: 29.4.2010
Из: Россия
Пользователь №: 54687

|
Цитата(Кислов @ 21.6.2011, 7:59)  не думаю, что здесь кто-то всерьез умничает. Вот и я о том же.
|
|
|
|
|
|
|
|
21.6.2011, 14:33
|
Группа: Участники форума
Сообщений: 130
Регистрация: 29.4.2010
Пользователь №: 54782

|
Цитата(Кислов @ 20.6.2011, 21:12)  интересно, автор разобрался с зонами?  Добрый день! разобрался, не сумневайтесь  !
|
|
|
|
|
|
|
Гость_Fenrisulven_*
|
2.12.2011, 6:23
|
Guest Forum

|
uРАn, спасибо большое, выручил!!!
|
|
|
|
|
|
|
|
12.1.2012, 13:09
|
Группа: Участники форума
Сообщений: 1186
Регистрация: 11.4.2011
Пользователь №: 103012

|
Цитата(uРАn @ 20.6.2011, 16:03)  ещё надо не забыть правило:"Поверхность пола в I зоне, примыкающая к наружному углу, имеет повышенные теплопотери, поэтому ее площадь размером 2х2 дважды учитывается при определении общей площади I зоны." а для наглядности и в качестве помощи при расчетах предлагаю свою незамысловатую наработочку  Тема была отдельная вроде по вашей программке, не могу найти.. или ошибаюсь?
|
|
|
|
|
|
|
|
10.4.2012, 10:03
|
Группа: New
Сообщений: 1
Регистрация: 1.12.2010
Пользователь №: 83720

|
Вопрос в развитие темы. Насколько я понимаю, эти значения - 2.1, 4.3, 8.6, 14.2 принимаются для неутепленного пола. А если я строю (допустим) частный дом и хочу в будущем снизить эксплуатационные расходы (и друг у меня директор завода по производству пенополистирола), пол я утеплил - то должен рассчитывать расчетное сопротивление по фактическому составу пола.
Уважаемые гуру, правилен ли ход мысли?
|
|
|
|
|
|
|
|
13.4.2012, 22:04
|
Группа: Участники форума
Сообщений: 288
Регистрация: 8.9.2010
Из: СПб
Пользователь №: 71253

|
Цитата(Istopnik_514 @ 10.4.2012, 10:03)  Вопрос в развитие темы. Насколько я понимаю, эти значения - 2.1, 4.3, 8.6, 14.2 принимаются для неутепленного пола. А если я строю (допустим) частный дом и хочу в будущем снизить эксплуатационные расходы (и друг у меня директор завода по производству пенополистирола), пол я утеплил - то должен рассчитывать расчетное сопротивление по фактическому составу пола.
Уважаемые гуру, правилен ли ход мысли? добавляйте к этим цифирькам сопротивление теплопередаче вашего утеплителя и все получится как надо
|
|
|
|
|
|
|
|
23.4.2012, 8:14
|
Группа: New
Сообщений: 11
Регистрация: 20.12.2011
Пользователь №: 133839

|
Цитата(uРАn @ 20.6.2011, 20:03)  ещё надо не забыть правило:"Поверхность пола в I зоне, примыкающая к наружному углу, имеет повышенные теплопотери, поэтому ее площадь размером 2х2 дважды учитывается при определении общей площади I зоны." а для наглядности и в качестве помощи при расчетах предлагаю свою незамысловатую наработочку  Пытаюсь подставить в размерах схемы 1 а=100, b=100, h=1 получается суммарная площадь 3020м2. Подскажите как в программе она считается? ибо если учесть для каждого из 4х углов дополнительную площадь 2х2=4м2, то будет 10016м2
|
|
|
|
|
|
|
|
23.4.2012, 10:18
|
Группа: Участники форума
Сообщений: 95
Регистрация: 10.2.2009
Пользователь №: 28886

|
сорри, вкралась ашыбачка... прилагаю исправленный вариант
|
|
|
|
|
|
|
|
23.4.2012, 15:47
|
Группа: New
Сообщений: 11
Регистрация: 20.12.2011
Пользователь №: 133839

|
Цитата(uРАn @ 23.4.2012, 15:18)  сорри, вкралась ашыбачка... прилагаю исправленный вариант Подскажите откуда появляются дополнительные площади помимо 2х2 по углам для А1? Например для 100х100: Полосы идут шириной 2м А1 с углами считается 100*2*2+96*2*2+2*2*4=800м2, а в таблице 812; А2 уже идет без углов 96*2*2+92*2*2=752м2, таблица 768; А3 без углов 92*2*2+88*2*2=720м2, таблица 736; А4 без углов 88*88=7744, таблица 8100
Сообщение отредактировал Bada - 23.4.2012, 15:48
|
|
|
|
|
|
|
|
24.4.2012, 8:57
|
Группа: Участники форума
Сообщений: 95
Регистрация: 10.2.2009
Пользователь №: 28886

|
потому что высота h задана не 0, а 1 м. т.е. начинать отсчет зон надо с боковых стен подвала
|
|
|
|
|
|
|
|
27.4.2012, 12:58
|
Группа: Участники форума
Сообщений: 95
Регистрация: 10.2.2009
Пользователь №: 28886

|
небольшое уточненьице в программке. вот теперь считает всё как надо
|
|
|
|
|
|
|
|
27.4.2012, 16:11
|
Группа: Участники форума
Сообщений: 1186
Регистрация: 11.4.2011
Пользователь №: 103012

|
а сколько было до этого посчитано
|
|
|
|
|
|
|
|
28.4.2012, 9:53
|
Группа: New
Сообщений: 11
Регистрация: 20.12.2011
Пользователь №: 133839

|
Большое спасибо за конечный вариант! З.Ы. Не сочтите за претензию. В ходе поисков по автоматизации расчетов паспорта постоянно натыкаюсь на всевозможные таблицы. И понял, что на 100% надо полностью во всем самому разобраться-пересчитать) Главное чтоб не попадались монстры вроде приложенного.
Сообщение отредактировал Bada - 28.4.2012, 10:04
|
|
|
|
|
|
|
|
26.5.2012, 5:02
|
Группа: New
Сообщений: 1
Регистрация: 26.5.2012
Пользователь №: 151855

|
а для наглядности и в качестве помощи при расчетах предлагаю свою незамысловатую наработочку  uPAn Огромное спасибо тебе!!!
Сообщение отредактировал FomenkoVK - 26.5.2012, 5:16
|
|
|
|
|
|
|
|
28.8.2012, 11:42
|
Группа: Участники форума
Сообщений: 1510
Регистрация: 31.8.2009
Из: Не резиновая...
Пользователь №: 37873

|
Читаю переписку и плачу... Сначало над автором, потом над собой... Полез сюда, посколько R не помню для зон... Помню что вроде как 2,13 и дальше 4, 8 , 12.... Но сейчас и меня коллапс разбил. Температуру внутри помещения - это ясно, а под полом сколько принимать?
+ 4?
Где это найти в документах???
|
|
|
|
|
|
|
|
28.8.2012, 12:09
|
Инженер
Группа: Участники форума
Сообщений: 2270
Регистрация: 12.4.2012
Из: Херсон
Пользователь №: 147254

|
Цитата(MAverick @ 28.8.2012, 11:42)  Читаю переписку и плачу... Сначало над автором, потом над собой... Полез сюда, посколько R не помню для зон... Помню что вроде как 2,13 и дальше 4, 8 , 12.... Но сейчас и меня коллапс разбил. Температуру внутри помещения - это ясно, а под полом сколько принимать?
+ 4?
Где это найти в документах??? Расчетную температуру-как для стен, самую холодную пятидневку.
|
|
|
|
|
|
|
|
28.8.2012, 12:40
|
Группа: Участники форума
Сообщений: 1308
Регистрация: 12.4.2007
Из: Россия
Пользователь №: 7094

|
Цитата(Khomenko_A_S @ 28.8.2012, 13:09)  Расчетную температуру-как для стен, самую холодную пятидневку. Ща последует вопрос: а почему холодную пятидневку, ведь под полом теплее чем на улице? Что отвечать будете?
|
|
|
|
|
|
|
|
28.8.2012, 12:54
|
Инженер
Группа: Участники форума
Сообщений: 2270
Регистрация: 12.4.2012
Из: Херсон
Пользователь №: 147254

|
Цитата(А.В. @ 28.8.2012, 12:40)  Ща последует вопрос: а почему холодную пятидневку, ведь под полом теплее чем на улице? Что отвечать будете? Это ведь упрощение. Предполагает что для дополнительным теплоизолирующим слоем выступает грунт- разной толщиной для разных зон. Упрощение имеет свои недостатки и область применения. Скажем если посчитать теплопотери шахты- то получится что нужно еще и отапливать, а то шахтеры замерзнут.)) Как вариант можно в нормах закрепить обязательный расчет по теплообмену с применением интегрирования и дифференциальных уравнений второго порядка и несколькими последовательными приближениями, с учетом типа и плотности, а также влажности грунта. Но тогда все теплотехники страны:
Сообщение отредактировал Khomenko_A_S - 28.8.2012, 13:10
|
|
|
|
|
|
|
|
28.8.2012, 13:10
|
Группа: Участники форума
Сообщений: 1308
Регистрация: 12.4.2007
Из: Россия
Пользователь №: 7094

|
Цитата(Khomenko_A_S @ 28.8.2012, 13:54)  Это ведь упрощение. Предполагает что для дополнительным теплоизолирующим слоем выступает грунт- разной толщиной для разных зон. Упрощение имеет свои недостатки и область применения. Скажем если посчитать теплопотери шахты- то получится что нужно еще и отапливать, а то шахтеры замерзнут.)) Сорри, удалил, правильно - пятидневка.
Сообщение отредактировал А.В. - 28.8.2012, 13:14
|
|
|
|
|
|
|
|
28.8.2012, 13:15
|
Инженер
Группа: Участники форума
Сообщений: 2270
Регистрация: 12.4.2012
Из: Херсон
Пользователь №: 147254

|
Поясните пожалуйста еще раз, я вопроса не понял. Есть пол- определяем в какой он зоне- принимаем сопротивление - определяем теплопотери. Если пол на лагах или есть утеплитель- сопротивление изменяется.
|
|
|
|
|
|
|
|
28.8.2012, 13:18
|
Группа: Участники форума
Сообщений: 1308
Регистрация: 12.4.2007
Из: Россия
Пользователь №: 7094

|
Цитата(Khomenko_A_S @ 28.8.2012, 13:54)  Это ведь упрощение. Предполагает что для дополнительным теплоизолирующим слоем выступает грунт- разной толщиной для разных зон. Упрощение имеет свои недостатки и область применения. Скажем если посчитать теплопотери шахты- то получится что нужно еще и отапливать, а то шахтеры замерзнут.)) Как вариант можно в нормах закрепить обязательный расчет по теплообмену с применением интегрирования и дифференциальных уравнений второго порядка и несколькими последовательными приближениями, с учетом типа и плотности, а также влажности грунта. Но тогда все теплотехники страны:  Эт точно )))
|
|
|
|
|
|
|
|
29.8.2012, 8:57
|
Группа: Участники форума
Сообщений: 1510
Регистрация: 31.8.2009
Из: Не резиновая...
Пользователь №: 37873

|
Да нет, не последует. Не напрягаясь заложил для МСК -28. Но ссылку на док так и не нашел..
|
|
|
|
|
|
|
|
13.3.2013, 11:54
|
Группа: New
Сообщений: 1
Регистрация: 13.3.2013
Пользователь №: 184939

|
как написать свои данные туда на ексел, в место исх данные?
|
|
|
|
|
|
|
|
20.3.2013, 9:44
|
Группа: New
Сообщений: 1
Регистрация: 20.3.2013
Пользователь №: 185949

|
Цитата(Жадик @ 13.3.2013, 12:54)  как написать свои данные туда на ексел, в место исх данные? Удалить табличку где написано "исходные данные",она ввиде картинки вставлена поверх ячеек. У меня другой вопрос: что означает h в табличках,высота стены или ширина полосы пола (2 м должна быть)
|
|
|
|
|
|
|
|
2.7.2013, 3:35
|
Группа: New
Сообщений: 2
Регистрация: 2.7.2013
Пользователь №: 197617

|
Такой вопрос, а для какой зоны брать значение при расчёте, если размеры пола в помещении 3,17х12 м. Или в данном случае расчёт пола на грунте как то по другому считается?
|
|
|
|
|
|
|
|
2.7.2013, 8:08
|
Группа: Участники форума
Сообщений: 2233
Регистрация: 8.7.2008
Из: Днепропетровск
Пользователь №: 20416

|
Цитата(Логинов Вадим @ 2.7.2013, 3:35)  Такой вопрос, а для какой зоны брать значение при расчёте, если размеры пола в помещении 3,17х12 м. Или в данном случае расчёт пола на грунте как то по другому считается? 1-я зона
|
|
|
|
|
|
|
|
3.7.2013, 2:58
|
Группа: New
Сообщений: 2
Регистрация: 2.7.2013
Пользователь №: 197617

|
Ага, спасибо
|
|
|
|
|
|
|
|
26.8.2013, 13:46
|
Группа: New
Сообщений: 10
Регистрация: 25.7.2013
Пользователь №: 200158

|
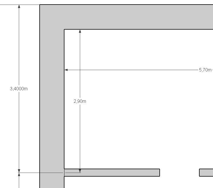
Цитата(uРАn @ 24.4.2012, 13:57)  потому что высота h задана не 0, а 1 м. т.е. начинать отсчет зон надо с боковых стен подвала Простите, эксперты, но я подниму тему еще раз. Разбираюсь со стенами и полами по грунту. Как я понял, площадь стены считается в горизонтали по осям внутренних стен (или от наружного угла до оси внутренней стены), а по вертикали от уровня грунта до поверхности пола. Площадь пола считается от внутренней поверхности наружной стены. (см. файл zone03.gif и Ris1.jpg) Правильно? uPAn, в Вашем файле как учитывается толщина стены? Для подсчета площади зоны на стене, нужно знать размеры внутренних стен по осям, а наружных по наружному периметру. При подсчете площади зоны по полу, угловая площадь размером не более 2х2 учитывается дважды в случае, если пол расположен непосредственно на грунте, т.е. без заглубления. (см. файл zone03.gif, zone01.gif). Как-то отдельно подсчитывать эти угловые площади, как я понял, не нужно, т.к. они автоматически дважды учтутся при подсчете зоны по полу (см. файл Ris2.jpg обе штриховки в углу. Автор Е.Г.Малявина Теплопотери здания), например помещение 100х100, площадь 1 зоны равна 100*4*2 = 800 кв.м. (а так считал Bada 100*2*2+96*2*2+2*2*4=800м2). Если зона начинается на наружной стене, то угловая зона по полу будет меньше чем 2х2, например помещение 100х100 (внутренний размер) закопано на глубину 1,2 м толщина наружной стены 0,6 м, считаем 1 зону: по стене (100+0,6+0,6)*4*1,2 = 485,76 кв.м. по полу 100*4*0,8=320 кв.м. Всего 805,76 кв.м. Угловая площадь пола, учитываемая дважды, равна 0,8х0,8 так? Я правильно разобрался с темой? Файлы zone03.gif, zone01.gif взял с форума http://forum.dwg.ru/showthread.php?t=81093Подскажите из какой литературы эти сканы?
Эскизы прикрепленных изображений
|
|
|
|
|
|
|
|
28.8.2013, 17:34
|
Группа: Участники форума
Сообщений: 10258
Регистрация: 8.3.2007
Пользователь №: 6446

|
http://forum.dwg.ru/attachment.php?attachm...mp;d=1332527767Это "изображение" ShaggyDoc разместил из книги: Щекин, Березовский, Потапов, "Расчет систем центрального отопления". Красный квадрат - его добавка, в книге авторов квадрата нет. Подобные рисунки есть и в иных учебниках прошлых лет..
|
|
|
|
|
|
|
|
31.8.2013, 5:20
|
Группа: New
Сообщений: 10
Регистрация: 25.7.2013
Пользователь №: 200158

|
Kult_Ra, спасибо!
|
|
|
|
|
|
|
|
21.11.2013, 11:58
|
Группа: New
Сообщений: 12
Регистрация: 21.11.2013
Пользователь №: 213935

|
Добрый день! Не судите строго. Я начинающий проектировщик. Прошу вашей помощи по расчету утепленных полов по грунту. Имеется подвал, площадь пола 12х12 м, глубина 2,25 м. По СНиП 2.04.05-91 (приложение 9 пункт 3 б) расчитываю Rh для четырех зон. Потом расчитываю фактическое R0. Получаю некоторую цифру. Дальше ее нужно сравнивать с чем-то? Или как?
|
|
|
|
|
|
|
|
21.11.2013, 12:34
|
Группа: Участники форума
Сообщений: 2233
Регистрация: 8.7.2008
Из: Днепропетровск
Пользователь №: 20416

|
Насколько я знаю, сопротивление теплопередаче полов на грунте не нормируется, а значит, сравнивать не с чем... Но это у нас, а как там у Вас - бог его знает... Город не указан, может, Вы из Латвии, например...
Сообщение отредактировал lovial - 21.11.2013, 12:35
|
|
|
|
|
|
|
|
21.11.2013, 12:46
|
Группа: New
Сообщений: 12
Регистрация: 21.11.2013
Пользователь №: 213935

|
Цитата(lovial @ 21.11.2013, 13:34)  Насколько я знаю, сопротивление теплопередаче полов на грунте не нормируется, а значит, сравнивать не с чем... Но это у нас, а как там у Вас - бог его знает... Город не указан, может, Вы из Латвии, например... Тюмень
|
|
|
|
|
|
|
|
1.9.2014, 20:29
|
Группа: New
Сообщений: 15
Регистрация: 18.10.2013
Пользователь №: 209756

|
Уважаемые знатоки, подскажите источник, откуда взяли, что R1=2.1 и т. д. для расчета зон полов.
|
|
|
|
|
|
|
|
1.9.2014, 21:12
|
Группа: Участники форума
Сообщений: 12940
Регистрация: 9.4.2014
Пользователь №: 229939

|
СП 50.13330.2012, приложение Е, п. Е7
|
|
|
|
|
|
|
|
26.10.2017, 10:50
|
Группа: New
Сообщений: 17
Регистрация: 18.11.2011
Пользователь №: 129932

|
Добрый день, уважаемые специалисты. Помогите плиз избавиться от когнитивного диссонанса. В него меня ввело наличие повышающего коэффициента при расчете приведенного сопротивления теплопередаче полов на лагах. Вводные: 1. СП 50.13330.2012. Приложение Е, пункт Е7:
Как бы речь идет обо всех полах. И как бы формула Е.16 (Ro,пол = 1.18 * (Rп + [дельта] / [лямбда]), судя по тексту, не относится к полам по грунту. Во всяком случае явно об отношении этой формулы к ППГ не сказано. 2. Малявина Е.Г. "Теплопотери здания"5.3 Приведенное сопротивление теплопередаче полов и стен на грунте. Здесь та же по смыслу формула (5.12) явно относится к полам по грунту. В свою очередь далее в 5.4 "Пример определения сопротивления теплопередаче утепленных полов на лагах" расчет идет по методике для полов по грунту, с разбиением на зоны. Но никоим образом явно не указано, как расположены лаги относительно "грунта". Непосредственно ли на нем они уложены, или находятся над ним, с неким зазором. В общем два вопроса: 1. Какое расположение лаг относительно грунта (или стяжки или бетонной плиты) подразумевает формула Е.16 из СП 50.13330.2012 Приложение Е: непосредственно на "грунте" или над ним, с воздушной прослойкой? Я догадываюсь, что второе скорее дикость. Но когда я встречаю в "руководящих документах" какую-то неоднозначность, то начинаю во всем сомневаться, испытываю непрерывные рефлексии, и, как результат: состояние транса совмещенного с когнитивным диссонансом 2. Из двух частей: - Если лаги расположены непосредственно на "грунте", то что означает повышающий коэффициент 1.18 в формуле Е.16. Чем утепление пола по грунту с использованием лаг лучше утепления без оного? Какова вообще природа этого коэффициента в этом случае? - Если лаги над "грунтом", то чем этот вариант отличается от тех же плит перекрытия? В общем, повторюсь, понимаю, что второй вариант выглядит несколько идиотски, но отсутствие однозначности при упоминании Е.16 в СП 50.13330.2012, и непонимание физической природы повышающего коэффициента в этой формуле, ввели меня в ступор
Сообщение отредактировал Sailor2000 - 26.10.2017, 10:52
|
|
|
|
|
|
|
|
26.10.2017, 11:37
|
Группа: Участники форума
Сообщений: 5907
Регистрация: 12.10.2009
Из: Шантарск-Севастополь (пробегом)
Пользователь №: 39475

|
Ну и чего тут "когнитивно диссонировать"? Теплопотери через полы по грунту десятки лет определяются одним и тем же способом. По зонам. Для утепленного пола добавляется сопротивление утепляющих слоев.
А для утепленного пола по лагам сопротивление увеличивается (учитывается воздушная прослойка).
Когда методика расчет теплопотерь была непосредственно в СНиП по ОВ, там было это совершенно четко написано. Rл=(1/0.85)* Rуп.
Потом расчет теплопотерь из СНиП по ОВ убрали и он "пошел по рукам". И уже новые "ученые" стали вносить свой "вклад в науку". Например вместо 1/0.85 записали 1.18. И вместо Rо.п вставили его формулу. Видимо так "научнее".
|
|
|
|
|
|
|
|
26.10.2017, 12:00
|
Группа: New
Сообщений: 17
Регистрация: 18.11.2011
Пользователь №: 129932

|
Цитата(Татьяна Удальцова @ 26.10.2017, 11:37)  Ну и чего тут "когнитивно диссонировать"? Теплопотери через полы по грунту десятки лет определяются одним и тем же способом. По зонам. Для утепленного пола добавляется сопротивление утепляющих слоев. Это понятно. Но пока легче на душе не стало: Цитата(Татьяна Удальцова @ 26.10.2017, 11:37)  А для утепленного пола по лагам сопротивление увеличивается (учитывается воздушная прослойка). Вот про учет воздуха мысль была. Иначе появление повышающего коэффициента сложно было бы объяснить. Но все-таки. Под полом по лагам подразумевается пол с лагами, под которым есть "подпол"? В чем тогда отличие от пола с перекрытием плитами или другим видом ЖБ перекрытия, под которым тоже есть воздушная прослойка? Право слово, объясните на пальцах, в каких случаях надо считать с повышающим коэффициентом? Или что прочитать, где подробно это расписано? И спасибо за ответ.
|
|
|
|
|
|
|
|
26.10.2017, 12:17
|
Группа: Участники форума
Сообщений: 5907
Регистрация: 12.10.2009
Из: Шантарск-Севастополь (пробегом)
Пользователь №: 39475

|
Коэффициент учета лаг ввели еще наши предки. Именно для полов по грунту, потому что там задаются условные сопротивления каждой зоны. Потому что температура грунта увеличивается по мере удления от наружного воздуха. Вот и придумали, для простоты условные 2-метровые зоны.
Если рассчитываете полы по перекрытию, то здесь сопротивления не условные, а точные. Т.к. есть постоянная разница температур. И само перекрытие (еще и с учетом пустот в плите), и пол, столбики, и сами лаги, и воздушную прослойку. Не коэффициентом, а по сопротивлению воздушной прослойки ®, которое зависит от её толщины и положения в пространстве (горизонтальная, вертикальная, откуда поток тепла).
|
|
|
|
|
|
|
|
26.10.2017, 12:46
|
Группа: New
Сообщений: 17
Регистрация: 18.11.2011
Пользователь №: 129932

|
Цитата(Татьяна Удальцова @ 26.10.2017, 12:17)  Коэффициент учета лаг ввели еще наши предки. Именно для полов по грунту, потому что там задаются условные сопротивления каждой зоны. Потому что температура грунта увеличивается по мере удления от наружного воздуха. Вот и придумали, для простоты условные 2-метровые зоны. Поверьте, я еще больше запутываюсь. Про причины появления 2-х метровых зон все понятно. Я про них (про зоны) ничего и не спрашивал. Меня конкретно интересуют лаги. В предыдущем сообщении Вы говорили, что повышающий коэффициент введен для учета воздушной прослойки. Где она? Если не затруднит Вас, просто односложные ответы на вопросы: 1. Лаги в полах по грунту опираются непосредственно на грунт (стяжка etc.)? 2. Или они имеют воздушное пространство между грунтом и собой?
|
|
|
|
|
|
|
|
26.10.2017, 13:21
|
Группа: Участники форума
Сообщений: 2660
Регистрация: 20.3.2005
Пользователь №: 570

|
Цитата Где она? Между грунтом и поверхностью настила пола на высоту лаг, которые лежат на грунте. Цитата Или они имеют воздушное пространство между грунтом и собой? Это уже техническое подполье/подвал связанное/не связанное проемами с наружным воздухом.
|
|
|
|
|
|
|
|
26.10.2017, 14:17
|
Группа: New
Сообщений: 17
Регистрация: 18.11.2011
Пользователь №: 129932

|
Цитата(Wiz @ 26.10.2017, 13:21)  Между грунтом и поверхностью настила пола на высоту лаг, которые лежат на грунте.
Это уже техническое подполье/подвал связанное/не связанное проемами с наружным воздухом. Вау! Т.е. по грунту уложены лаги, а уже поверх лаг идет конструкция с утеплителем? Похоже все, включая и мой воспаленный мозг, встает на свои места  Я неправильно понимал устройство этой конструкции. Спасибо!
|
|
|
|
|
|
|
|
26.10.2017, 15:57
|
Группа: Участники форума
Сообщений: 2233
Регистрация: 8.7.2008
Из: Днепропетровск
Пользователь №: 20416

|
Цитата(Sailor2000 @ 26.10.2017, 14:17)  Вау! Т.е. по грунту уложены лаги, а уже поверх лаг идет конструкция с утеплителем? Похоже все, включая и мой воспаленный мозг, встает на свои места  Я неправильно понимал устройство этой конструкции. Спасибо! По грунту уложены либо кирпичи, либо бетонные столбики, либо что-то еще. По ним идут лаги (брусья), на которые опирается конструкция пола. Таким образом, имеем достаточно сложную в теплотехническом отношении конструкцию - горизонтальная воздушная прослойка с теплопроводными включениями в виде столбиков и лагов. Если лямбда - коэффициент сопротивление данной конструкции выше определенного значения - ее следует учитывать, добавляя ее R к установленному нормами для данной зоны пола.
|
|
|
|
|
|
|
|
26.10.2017, 17:28
|
Группа: Участники форума
Сообщений: 5907
Регистрация: 12.10.2009
Из: Шантарск-Севастополь (пробегом)
Пользователь №: 39475

|
Цитата(lovial @ 26.10.2017, 17:57)  По грунту уложены либо кирпичи, либо бетонные столбики, либо что-то еще. По ним идут лаги (брусья), на которые опирается конструкция пола. Таким образом, имеем достаточно сложную в теплотехническом отношении конструкцию - горизонтальная воздушная прослойка с теплопроводными включениями в виде столбиков и лагов. Если лямбда - коэффициент сопротивление данной конструкции выше определенного значения - ее следует учитывать, добавляя ее R к установленному нормами для данной зоны пола. Всё правильно. Никогда лаги на грунт не кладутся. И даже если на ЖБ перекрытии, под лаги прокладки делаются. Именно из-за того, что столбики+прокладки+лаги - конструкция сложная для расчета и ввели простой повышающий коэффициент. И как-то еще "актуализаторы" не додумались и для таких конструкций заставить делать расчет температурных полей. Может оставили"на сладкое", до следующей актуализации.
|
|
|
|
|
|
|
|
30.10.2017, 8:09
|
Группа: Участники форума
Сообщений: 439
Регистрация: 30.11.2008
Из: г. Кемерово
Пользователь №: 26048

|
А как правильно определять площадь пола по грунту, если имеются неотапливаемые помещения (тамбур) - по схеме 1 или по схеме 2?
|
|
|
|
|
|
|
|
30.10.2017, 10:29
|
Группа: New
Сообщений: 17
Регистрация: 18.11.2011
Пользователь №: 129932

|
Цитата(FonViZZin @ 30.10.2017, 8:09)  А как правильно определять площадь пола по грунту, если имеются неотапливаемые помещения (тамбур) - по схеме 1 или по схеме 2?
"Обе две" неправильные  Насчет тамбура не знаю, а то, что "заштрихованных" зон с наложением в наружных углах не хватает - к гадалке не ходить. И свой вопрос вдогонку по схеме.
Как правильно определять "зону наложения", когда одна из сторон наружного угла явно меньше двух метров? 1. Квадратом (слева) со сторонами, равными длине "короткой" стены (вариант слева)? 2. Прямоугольником с разными сторонами, одна из которых 2 метра (вариант справа)?
Сообщение отредактировал Sailor2000 - 30.10.2017, 10:36
|
|
|
|
|
|
|
|
30.10.2017, 11:57
|
Группа: Участники форума
Сообщений: 439
Регистрация: 30.11.2008
Из: г. Кемерово
Пользователь №: 26048

|
Цитата а то, что "заштрихованных" зон с наложением в наружных углах не хватает - к гадалке не ходить С "заштрихованными" зонами был бы связан мой следующий вопрос, в зависимости ответа на предыдущий. Цитата Как правильно определять "зону наложения", когда одна из сторон наружного угла явно меньше двух метров? Вероятно, так?
|
|
|
|
|
|
|
|
29.11.2017, 11:59
|
Группа: New
Сообщений: 17
Регистрация: 18.11.2011
Пользователь №: 129932

|
Добрый день, уважаемые специалисты. Еще один вопрос, связанный с расчетами ППГ. Как правильно считать тепловые потери ППГ? Два варианта: 1. Определить сопротивление теплопередаче каждой зоны, попутно определив площади зон. Посчитать тепловые потери каждой из зон. Просуммировать. 2. Определить среднее значение сопротивление теплопередаче, как указано в книге Малявиной Е.Г. Посчитать общие тепловые потери. Попробовал оба варианта. Во втором случае результат получается меньше. Порой гораздо меньше. Пример в прикрепленном файле. Полагаю, что правильным является первый вариант. Я прав?
Прикрепленные файлы
Q____.xlsx ( 12,43 килобайт )
Кол-во скачиваний: 415
|
|
|
|
|
|
|
|
29.11.2017, 12:56
|
Группа: Участники форума
Сообщений: 1035
Регистрация: 13.9.2017
Пользователь №: 328076

|
Цитата(Sailor2000 @ 29.11.2017, 11:59)  Добрый день, уважаемые специалисты. Еще один вопрос, связанный с расчетами ППГ. Как правильно считать тепловые потери ППГ? Два варианта: 1. Определить сопротивление теплопередаче каждой зоны, попутно определив площади зон. Посчитать тепловые потери каждой из зон. Просуммировать. 2. Определить среднее значение сопротивление теплопередаче, как указано в книге Малявиной Е.Г. Посчитать общие тепловые потери. Попробовал оба варианта. Во втором случае результат получается меньше. Порой гораздо меньше. Пример в прикрепленном файле. Полагаю, что правильным является первый вариант. Я прав? Думаю где то закралась ошибка - и если вы в свою формулу подставите К а не R у вас обе формулы сойдутся абсолютно. Думаю получается что считать среднее через умножение для числа которое дальше используется как деление получается не корректно - как это правильно назвать я хз - но если вы свою колонку R поменяете на К - у вас расчет по обоим методам по сути сойдется. Ошибка или у Вас или у "Малявиной Е.Г.". Если посчитать как я сказал - то у вас "среднее" К будет не 4,61 а 3,15 - и расчеты сойдутся
|
|
|
|
|
|
|
|
29.11.2017, 13:07
|
Группа: New
Сообщений: 17
Регистрация: 18.11.2011
Пользователь №: 129932

|
Цитата(Woodcuter @ 29.11.2017, 12:56)  Если посчитать как я сказал - то у вас "среднее" К будет не 4,61 а 3,15 - и расчеты сойдутся Это уже хорошо. По поводу "ошибки". Нормирование таки по R. Посему для проверки на соответствие требованиям у Малявиной считается R. И это не может быть ошибкой  Не понятно, почему такая разница при K и при R. Надо покумекать.
|
|
|
|
|
|
|
|
29.11.2017, 13:35
|
Группа: New
Сообщений: 17
Регистрация: 18.11.2011
Пользователь №: 129932

|
Цитата(Woodcuter @ 29.11.2017, 12:56)  Думаю где то закралась ошибка Собственно, все верно. И дабы считать через R формулу из книги Малявиной, надо "перевернуть": Rср = (S1 + S2 + S3 + S4) / (S1 / R1 + S2 / R2 + S3 / R3 + S4 / R4) Спасибо огромное. Теперь и физика и арифметика и логика сложились в один пазл. Осталось только небольшое чувство досады, что в издании, на которое часто ссылаются при освоении расчета ППГ, вкрался такой вот казус
Сообщение отредактировал Sailor2000 - 29.11.2017, 13:36
|
|
|
|
|
|
|
|
12.3.2018, 6:00
|
Группа: New
Сообщений: 12
Регистрация: 6.4.2011
Пользователь №: 102205

|
Добрый день всем! Подскажите пожалуйста, как учесть наличие бассейна в подвале при расчете сопротивления полов? Спасибо
|
|
|
|
|
|
|
|
27.3.2018, 14:47
|
Группа: New
Сообщений: 17
Регистрация: 18.11.2011
Пользователь №: 129932

|
Доброго дня, уважаемые специалисты! По сабжу возник еще один вопрос. Как учесть утепленную отмостку (УО)? Фактически, при наличии утепленной отмостки изменяется температура грунта под ППГ. Если без УО по периметру ППГ температура близка к уличной, то с УО по периметру ППГ температура будет уже выше (предполагаем, что сопротивление теплопередаче слоя утеплителя в УО больше или равно сопротивлению теплопередаче слоя грунта в ширину УО):  Правильно ли я предполагаю, что в случае наличия УО можно уменьшить ширину I-й зоны ППГ на ширину УО? Или есть какие иные мысли по этому поводу? Для домов с МЗЛФ и ППГ, плитными утепленными фундаментами, кмк, этот вопрос весьма актуален.
|
|
|
|
|
|
|
|
21.3.2025, 12:29
|
Группа: Участники форума
Сообщений: 30
Регистрация: 31.3.2009
Пользователь №: 31400

|
Добрый день, уважаемые коллеги! Хочу поднять вопрос расчета толщины утеплителя пола по грунту. Имеется здание, для которого приведенное сопротивление теплопередаче полов по грунту выше требуемого, то есть по СП 50.13330 утеплять пол не требуется. Однако есть СП 29.13330.2011 "Полы", в пункте 9.13 которого указано следующее: "В помещениях с нормируемой температурой внутреннего воздуха при расположении низа бетонного основания выше отмостки здания или ниже нее не более чем на 0,5 м, под бетонным основанием вдоль наружных стен, отделяющих отапливаемые помещения от неотапливаемых, следует укладывать по грунту слой шириной не менее 0,8 м из неорганического влагостойкого утеплителя толщиной, определяемой из условия обеспечения термического сопротивления этого слоя утеплителя не менее термического сопротивления наружной стены."
Если буквально читать этот пункт, получается, что для достижения Rут показателя Rтр стены = 2,17 м2·°С/Вт я должен предусмотреть для первой зоны пола утеплитель толщиной 76 мм (при λут = 0,035 Вт/(м·°С)): Rут = 0,076/0,035 = 2,17 м2·°С/Вт. Тогда суммарное термическое сопротивление I зоны пола у меня составит: R = 2,17 + 2,1 = 4,27 м2·°С/Вт, то есть почти в 2 раза больше, чем для наружной стены, контактирующей непосредственно с наружным воздухом, в отличии от пола на грунте. Мне это кажется нелогичным. Хочу узнать ваше мнение.
|
|
|
|
|
|
|
|
21.3.2025, 13:14
|
Группа: Участники форума
Сообщений: 2233
Регистрация: 8.7.2008
Из: Днепропетровск
Пользователь №: 20416

|
Цитата(Xpander @ 21.3.2025, 13:29)  Добрый день, уважаемые коллеги! Хочу поднять вопрос расчета толщины утеплителя пола по грунту. Имеется здание, для которого приведенное сопротивление теплопередаче полов по грунту выше требуемого, то есть по СП 50.13330 утеплять пол не требуется. Однако есть СП 29.13330.2011 "Полы", в пункте 9.13 которого указано следующее: "В помещениях с нормируемой температурой внутреннего воздуха при расположении низа бетонного основания выше отмостки здания или ниже нее не более чем на 0,5 м, под бетонным основанием вдоль наружных стен, отделяющих отапливаемые помещения от неотапливаемых, следует укладывать по грунту слой шириной не менее 0,8 м из неорганического влагостойкого утеплителя толщиной, определяемой из условия обеспечения термического сопротивления этого слоя утеплителя не менее термического сопротивления наружной стены." Этот пункт еще из СНиПа 80-х годов. Тогда требуемое термическое сопротивление наружной стены считали по формуле, и она получалась с R не более 1.
|
|
|
|
|
|
|
|
21.3.2025, 13:26
|
Группа: Участники форума
Сообщений: 30
Регистрация: 31.3.2009
Пользователь №: 31400

|
Цитата(lovial @ 21.3.2025, 13:14)  Этот пункт еще из СНиПа 80-х годов. Тогда требуемое термическое сопротивление наружной стены считали по формуле, и она получалась с R не более 1. И тем не менее СП 29.13330.2011 - действующий. И как тогда с этим быть? Задавать архитекторам утеплитель с избыточной толщиной по указанному пункту?
|
|
|
|
|
|
1 чел. читают эту тему (гостей: 1, скрытых пользователей: 0)
Пользователей: 0
|
|
Реклама
ООО «Арктика групп» ИНН: 7713634274 | erid 2VtzqvpbUMg
ООО «УНИСПЛИТ» ИНН: 6453155081 erid:2Vtzqv6z6bU
Реклама: ООО «Зет-Логист» ИНН 5401982392 | erid: 2Vtzqw44UH9
Последние сообщения Форума
|