Экологичный и оригинальный дом с бассейном в Краснодаре |
|
|
|
|
22.10.2013, 20:04
|
Группа: New
Сообщений: 7
Регистрация: 22.10.2013
Из: Краснодар
Пользователь №: 210201

|
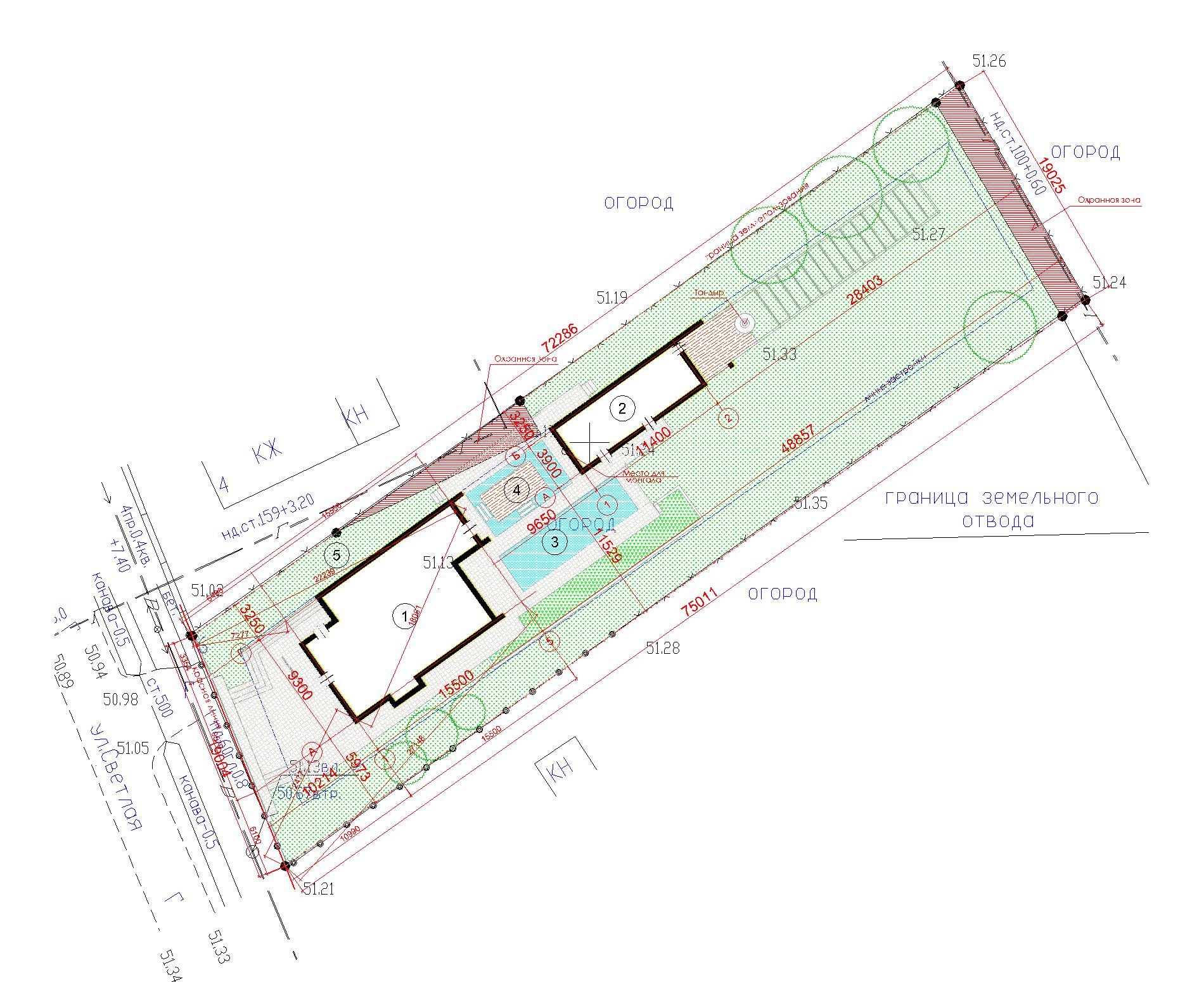
Добрый день, хочу поделиться своим проектом запроектированным для одного хорошего человека (с достатком чуть выше среднего, и желающем жить в экологичном доме). Но еще больше хочу обсудить принятые решения и услышать предложения по модернизации проекта, снижению его стоимости, энергопотребления и повышению энергоэффективности, комфорта и экологичности. Итак принятые решения. 1. На участке дом спроектирован с учтом сторон света. Т. е глухая стена на север и помещения типа кухня, кладовая, су около северной стены. 2. Большие площади остекления ориентированны на восток, юг и запад. С учетом соседских построек, открывающихся видов, и правил инсоляции. 3. отдельным блоком будет стоять небольшая баня (используемая как домик для гостей) в которой будут все инженерные приборы для обслуживания дома, бассеина и пруда для карпов кои. 4. По конструкциям. Фундаменты- бнс 1350 шаг 2400, связанные ростверком 400х450.ростверк над землей, потом утеплиться. несущий каркас колонны350х350, перекрытие между 1 и 2 эт монолитное, покрытие деревянное с уклоном и есть зонами плоская кровля. Баня будет из сборного деревянного каркаса (точно не определенна технология) на винтовых сваях. 5 По материалам. Наружние стены из керамического камня POROMAX 380, внутренние из забутовочного кирпича 120. Утеплитель пеноплекс 80мм. фасад штукатурка по сетке и частично навесной фасад из термодоски (кто посоветует недорогую и приемлемого качества?). Кровля односкатная металл с пуралом замок стоячий фланец, там где плоские участки пирог по Технониколю. Остекление хочу принять алюминиевые системы со стеклопакетами с двумя камерами. Есть вопрос по роллетам на нижнем этаже нужны ли (для защиты и как доп утепление на ночь.)? 6 Отопление газовое, кател конденсационный (но хотелось бы еще эффективней). Будут теплые полы, встроенные конвекторы под витражи и наверно немного батарей всетаки нужно поставить. Центральное кондиционирование совмещенное с вентиляцией (не знаю на сколько это реально и дорого). встает вопрос о рекуператоре, нужен ли он на дом 230кв.м? 7. Бассеин будет переливной, с эко фильтром, возможно со спец. жалюзей для безопасности от детей и животных и так же для нагрева воды. Хотели еще запроектировать солнечный коллектор для нагрева воды в бассеине, но не знаю на сколько это оправданно и можно ли его вкллючить в другие системы (например на теплый пол в баню). Надеюсь он буде нагреваться весь день от движения солнца. 8 По экономии. В здании бани, будет двухкубовый бак для дождевой воды, для полива. В кровле над гардеробами хотел сделать солнечные коллекторы для света, но боюсь что сильно нарушу герметичность крыши, да и какихто тех решний не нашел для примера, так что пока под вопросом. 9 По автоматизации. Дымоуловители с блокировкой газа. Аквастопы. Датчики движения на свет и на гор. воду в с/У (чтобы циркуляционный насос не гонял попросту воду) 10. Не понятные для меня вопросы. Как избежать грызунов в каркасной бане? Как завязать все системы и датчики в единый комплекс? на сколько это реально и дорого? Какие нужны условия для карпов Кои? Как сделать печь для бани энергоэффективной, и чтобы она грела воду на купель, теплые полы и нагревала свежий воздух в бане. Высказывайте ваши предложени по фирмам, узлам, решениям, технологиям, вобщем по всему что интересует. С удовольствием подискутирую для нахождения верных решений) Часть прикрепленных изображений удалена на основании пункта 3 правил форумаhttp://forum.abok.ru/index.php?act=boardrules
Сообщение отредактировал andrey R - 22.10.2013, 20:28
Эскизы прикрепленных изображений
|
|
|
|
|
|
|
|
23.10.2013, 9:21
|
Группа: Участники форума
Сообщений: 1444
Регистрация: 19.6.2012
Из: Санкт-Петербург
Пользователь №: 154099

|
Вы форум не перепутали?
|
|
|
|
|
|
|
|
23.10.2013, 9:30
|
Группа: New
Сообщений: 7
Регистрация: 22.10.2013
Из: Краснодар
Пользователь №: 210201

|
Отчего же, именно здесь куча специалистов по отоплению, кондиционированию, вентиляции, автоматизации. А это именно те системы которые могут создать качественный комфорт в доме! Это именно те специалисты которые могут сэкономить энергию и деньги, так что мне именно сюда
|
|
|
|
|
|
|
|
23.10.2013, 10:22
|
Группа: Участники форума
Сообщений: 1444
Регистрация: 19.6.2012
Из: Санкт-Петербург
Пользователь №: 154099

|
Цитата(kosenko111 @ 23.10.2013, 10:30)  Отчего же, именно здесь куча специалистов по отоплению, кондиционированию, вентиляции, автоматизации. А это именно те системы которые могут создать качественный комфорт в доме! Это именно те специалисты которые могут сэкономить энергию и деньги, так что мне именно сюда  Все-таки перепутали... Как крыс в бане травить одновременно разводить рыбок в 261ФЗ ничего не сказано, а энергоаудиторы - порождение 261ФЗ  Что касаемо автоматизации, я как старый бывший автоматчик скажу, той информации, которую вы выложили по датчикам не достаточно для конкретного предложения. Здесь можнопосоветовать только "надергать" сухие контакты на указанных датчиках (как правило, все оборудованы такими выходами), свести их тем или иным способом (проводный, беспроводный, зависит от бюджета) в один девайс (контроллер, например), который уже можно зацепить на софт верхнего уровня в компе, например. Зависит от пожелания, куда передаваемые от датчиков сигналы сливать. Контроллер тоже выбирать по бюджету, с учетом необходимости в централизации, или наоборот, в децентрализации устройств сбора данных. И т.д. По печке можно примерно так же ответить, но думаю, лучше вам обратиться к "фанатам" данных устройств по функциональному признаку... То бишь, к производителям, и иже с ними, дилерам всяким... Говорю же, не ваш этот форум... Или хотя бы перейдите в соответствующие некоторым вопросам (про мышей и рыбок все равно не сюда) разделы форума...
Сообщение отредактировал Энерджайзер - 23.10.2013, 10:23
|
|
|
|
|
|
|
|
23.10.2013, 12:39
|
Группа: Участники форума
Сообщений: 1550
Регистрация: 14.4.2011
Пользователь №: 103554

|
По поводу чего то экономичней конденсационного котла, посмотрите в сторону газовых абсорбционных тепловых насосов. Такие есть у RoBur и Viessman, они комбинируются с солнечными коллекторами и позволяют скидывать избытки тепла летом в геоконтур. По поводу рекуператора, если приточно вытяжная вентиляция будет, то ставьте, если не будет можете не ставить. Солнечный коллектор прекрасно будет уживаться с теплым полом и ГВС (и особенно бассейном в летнее время). По поводу боязни установки солнечных коллекторов на кровле, если будете ставить на плоской кровли посмотрите технические решения по эксплуатируемой кровли от технониколя.
|
|
|
|
|
|
|
|
23.10.2013, 13:13
|
Группа: New
Сообщений: 7
Регистрация: 22.10.2013
Из: Краснодар
Пользователь №: 210201

|
Цитата(Энерджайзер @ 23.10.2013, 11:22)  Говорю же, не ваш этот форум... Или хотя бы перейдите в соответствующие некоторым вопросам (про мышей и рыбок все равно не сюда) разделы форума... Не заостряйте внимание на этом, это побочные вопросы которые меня интересуют, может кто сталкивался и попутно подскажет. И спасибо за ответы. Цитата(cpt @ 23.10.2013, 13:39)  По поводу чего то экономичней конденсационного котла, посмотрите в сторону газовых абсорбционных тепловых насосов. Такие есть у RoBur и Viessman, они комбинируются с солнечными коллекторами и позволяют скидывать избытки тепла летом в геоконтур. По поводу рекуператора, если приточно вытяжная вентиляция будет, то ставьте, если не будет можете не ставить. Солнечный коллектор прекрасно будет уживаться с теплым полом и ГВС (и особенно бассейном в летнее время). По поводу боязни установки солнечных коллекторов на кровле, если будете ставить на плоской кровли посмотрите технические решения по эксплуатируемой кровли от технониколя. Спасибо за комментарий. Вопрос, геоконтур обязательно глубоко закапывать или достаточно на глубину 0.6-0.8м?
|
|
|
|
|
|
|
|
23.10.2013, 13:30
|
Группа: New
Сообщений: 7
Регистрация: 22.10.2013
Из: Краснодар
Пользователь №: 210201

|
Модераторы, ни чего я не рекламировал! Не надо эти удалять!
Эскизы прикрепленных изображений
|
|
|
|
|
|
|
|
23.10.2013, 13:54
|
Группа: Участники форума
Сообщений: 2233
Регистрация: 8.7.2008
Из: Днепропетровск
Пользователь №: 20416

|
Цитата(kosenko111 @ 22.10.2013, 20:04)  1. На участке дом спроектирован с учтом сторон света. Т. е глухая стена на север и помещения типа кухня, кладовая, су около северной стены. То есть санузел у наружной стены? Это не есть гут, так что готовьтесь там ставить довольно мощную систему вентиляциии Цитата(kosenko111 @ 22.10.2013, 20:04)  2. Большие площади остекления ориентированны на восток, юг и запад. С учетом соседских построек, открывающихся видов, и правил инсоляции. Большие площади остекления и энергоэффективность не особо дружат... Цитата(kosenko111 @ 22.10.2013, 20:04)  5 По материалам. Наружние стены из керамического камня POROMAX 380, внутренние из забутовочного кирпича 120. Утеплитель пеноплекс 80мм. фасад штукатурка по сетке и частично навесной фасад из термодоски. Остекление хочу принять алюминиевые системы со стеклопакетами с двумя камерами. Есть вопрос по роллетам на нижнем этаже нужны ли (для защиты и как доп утепление на ночь.)? Лучше бы разрез по стене выложить... Не совсем понятно, что где, и может быть конденсатообразование... По двухкамерным стеклопакетам - желательно все же с энергоотражающим покрытием... Роллеты - вещь хорошая, но заказчика очень скоро "замахает" их открывать/закрывать, ИМХО... Цитата(kosenko111 @ 22.10.2013, 20:04)  6 Отопление газовое, кател конденсационный (но хотелось бы еще эффективней). Будут теплые полы, встроенные конвекторы под витражи и наверно немного батарей всетаки нужно поставить. Центральное кондиционирование совмещенное с вентиляцией (не знаю на сколько это реально и дорого). встает вопрос о рекуператоре, нужен ли он на дом 230кв.м? В помещении с теплым полом, как правило, ставится что-то еще для "оперативного" регулирования температуры. Если стоят конвекторы - батареи, соответственно, не нужны, если по расчету теплопотерь без них можно обойтись... Рекуператор будет нелишним (но и недешевым)... Цитата(kosenko111 @ 22.10.2013, 20:04)  7. Хотели еще запроектировать солнечный коллектор для нагрева воды в бассеине, но не знаю на сколько это оправданно и можно ли его вкллючить в другие системы (например на теплый пол в баню). Надеюсь он буде нагреваться весь день от движения солнца Через мультибойлер коллектор можно включить практически куда угодно. Наличие бассейна - очень большой плюс, поскольку летом от коллектора куча тепла, которое никуда не идет при небольшом разборе ГВС... Цитата(kosenko111 @ 22.10.2013, 20:04)  9 Как сделать печь для бани энергоэффективной, и чтобы она грела воду на купель, теплые полы и нагревала свежий воздух в бане. Вариантов много, вплоть до теплообменника из чугунных радиаторов в топке печи...
|
|
|
|
|
|
|
|
23.10.2013, 16:04
|
инженер ВК
Группа: Модераторы
Сообщений: 41720
Регистрация: 11.7.2006
Из: Москва
Пользователь №: 3370

|
Цитата(kosenko111 @ 23.10.2013, 14:30)  Модераторы, ни чего я не рекламировал! Не надо эти удалять! Вот теперь, когда нет надписи поперек картинок - действительно ничего
|
|
|
|
|
|
|
|
23.10.2013, 16:32
|
Инженер
Группа: Участники форума
Сообщений: 2270
Регистрация: 12.4.2012
Из: Херсон
Пользователь №: 147254

|
Цитата(lovial @ 23.10.2013, 13:54)  Большие площади остекления и энергоэффективность не особо дружат...
По двухкамерным стеклопакетам - желательно все же с энергоотражающим покрытием... Роллеты - вещь хорошая
В помещении с теплым полом, батареи, соответственно, не нужны, если по расчету теплопотерь без них можно обойтись... При том ни зимой ни летом Обязательно с покрытием, и ролеты с автоматикой- очень "дешево" обойдется Что за энергоеффективный дом где ТП недостаточно. З.Ы. И это Вы еще ласково ответили
|
|
|
|
|
|
|
|
23.10.2013, 21:15
|
Группа: Участники форума
Сообщений: 901
Регистрация: 5.7.2004
Из: Украина, Киев
Пользователь №: 38

|
Цитата(kosenko111 @ 22.10.2013, 20:04)  .. Центральное кондиционирование совмещенное с вентиляцией (не знаю на сколько это реально и дорого). встает вопрос о рекуператоре, нужен ли он на дом 230кв.м? Центральное кондиционирование совмещенное с вентиляцией = казарма. Хотя, если будут в доме жить два человека, то приемлимо. Без рекуперации тепла вентидляции теоретически возможно достичь только категории D по энергоэффективности. На практике - едва ли F получите... Недавно был в коттедже 250м.кв в Харькове. Отапливается тепловым насосом 8кВт. Много дерева - дышится изумительно легко. Вероятно благодаря тому, что перекрытия засыпаны какой-то смесью щепы, извести и еще чего-то... Обратите особое внимание на качество воздуха - это залог счастливой жизни в доме. Михаил
|
|
|
|
|
|
|
|
23.10.2013, 21:32
|
Группа: Участники форума
Сообщений: 20930
Регистрация: 8.8.2007
Из: Vilnius
Пользователь №: 10542

|
Цитата(kosenko111 @ 22.10.2013, 20:04)  ....хочу поделиться своим проектом А Вы кто? Архитектор?
|
|
|
|
|
|
|
|
24.10.2013, 0:06
|
Группа: Участники форума
Сообщений: 1527
Регистрация: 5.1.2010
Из: Белгород
Пользователь №: 43680

|
Цитата(kosenko111 @ 22.10.2013, 21:04)  2. Большие площади остекления ориентированны на восток, юг и запад. С учетом соседских построек, открывающихся видов, и правил инсоляции. Предусмотрите стеклопакеты т.н. с селективным (низкоэмисионным) покрытием. Не так жарко летом будет. Цитата(kosenko111 @ 22.10.2013, 21:04)  Утеплитель пеноплекс 80мм. Пеноплекс - это пенопласт. У пеноплекса практически никакая воздухопроницаемость (т.е. обязательно надо делать принудительную вентиляцию), класс горючести Г3 или Г4. Говорят, его хорошо грызут мыши. Минераловатные утеплители конечно то же имеют свои недостатки, главное - водопоглощение. Посмотрите пеностекло, может понравится? Цитата(kosenko111 @ 22.10.2013, 21:04)  6 Отопление газовое, кател конденсационный (но хотелось бы еще эффективней). Будут теплые полы, встроенные конвекторы под витражи и наверно немного батарей всетаки нужно поставить. А стоит конденсатный? Неоправдано дорого (по сравнению с экономией топлива) и куча недостатков, например необходим специальный газоход, проблема с большим количеством кислотного конденсата - если канализация местная, загадите всю почву. Ставьте обычный. Цитата(kosenko111 @ 22.10.2013, 21:04)  Центральное кондиционирование совмещенное с вентиляцией (не знаю на сколько это реально и дорого). встает вопрос о рекуператоре, нужен ли он на дом 230кв.м? Обязательно нужен. Система не очень дорога, мне на коттедж 100 м2 посчитали в пределах менее 100 т.р. (без кондиционера, но с рекуператором). Люди, которые ставят рекуператоры в квартиры, отзываются очень хорошо именно с точки зрения комфорта, свежий воздух зимой. Цитата(kosenko111 @ 23.10.2013, 14:13)  Вопрос, геоконтур обязательно глубоко закапывать или достаточно на глубину 0.6-0.8м? Лучше сделать не горизонтальные траншеи, а вертикальную шахту. По затратам не намного больше (бурение), но меньше места занимает.
|
|
|
|
|
|
|
|
24.10.2013, 8:20
|
Группа: Участники форума
Сообщений: 2233
Регистрация: 8.7.2008
Из: Днепропетровск
Пользователь №: 20416

|
Цитата(tpa2009 @ 24.10.2013, 0:06)  Лучше сделать не горизонтальные траншеи, а вертикальную шахту. По затратам не намного больше (бурение), но меньше места занимает. Вопрос спорный... Начиная от рекомендуемой глубины геоконтура (в районе 1,2-1,5 м) и заканчивая ценой на бурение если под участком, например, гранит... Впрочем, пока у автора нет геологии - говорить не о чем...
|
|
|
|
|
|
|
|
24.10.2013, 10:46
|
Группа: New
Сообщений: 7
Регистрация: 22.10.2013
Из: Краснодар
Пользователь №: 210201

|
Цитата(lovial @ 23.10.2013, 14:54)  То есть санузел у наружной стены? Это не есть гут, так что готовьтесь там ставить довольно мощную систему вентиляциии не совсем понял как расположение санузла связано с вентиляцией, можете пояснить? Цитата(kord @ 23.10.2013, 22:15)  Центральное кондиционирование совмещенное с вентиляцией = казарма. Хотя, если будут в доме жить два человека, то приемлимо. Михаил Михаил, спасибо за ответы. но на счет казармы не совсем понял. Наверное потомучто в армию не успел Цитата(jota @ 23.10.2013, 22:32)  А Вы кто? Архитектор? Да архитектор. Цитата(tpa2009 @ 24.10.2013, 1:06)  Предусмотрите стеклопакеты т.н. с селективным (низкоэмисионным) покрытием. Не так жарко летом будет.
Пеноплекс - это пенопласт. У пеноплекса практически никакая воздухопроницаемость (т.е. обязательно надо делать принудительную вентиляцию), класс горючести Г3 или Г4. Говорят, его хорошо грызут мыши. Минераловатные утеплители конечно то же имеют свои недостатки, главное - водопоглощение. Посмотрите пеностекло, может понравится?
А стоит конденсатный? Неоправдано дорого (по сравнению с экономией топлива) и куча недостатков, например необходим специальный газоход, проблема с большим количеством кислотного конденсата - если канализация местная, загадите всю почву. Ставьте обычный.
Лучше сделать не горизонтальные траншеи, а вертикальную шахту. По затратам не намного больше (бурение), но меньше места занимает. Дом сорентирован так, что летом солнеце практически не будет попадать напрямую в окна. Очень нравиться пеностекло, но поблизости у нас его не производят. А вот пеноплекс выбрал, потомучто, у него очень достойные показатели теплопроводности, практически нет водопоглащения, он не разрушается как пенопласт, да и на счет мышей это не про него. на частный дом, да еще и под штукатурку горючесть не берем в расчет. А на счет принудительной вентиляции считаю, что естественная уже давно не удовлетворяет комфорту в частном доме, т.е. ей быть в любом случае) На счет котла спорно, не думаю что обычный нам нужен, может есть еще альтернатива, например как "газовые абсорбционные тепловые насосы". Про геоконтур я думал в сторону "корзин" от упонора, думаю это будет самый приемлемый вариант. По грунтам узнаю чтонибудь позже.
|
|
|
|
|
|
|
|
24.10.2013, 11:08
|
Группа: Участники форума
Сообщений: 2233
Регистрация: 8.7.2008
Из: Днепропетровск
Пользователь №: 20416

|
Цитата(kosenko111 @ 24.10.2013, 10:46)  не совсем понял как расположение санузла связано с вентиляцией, можете пояснить? Дом сорентирован так, что летом солнеце практически не будет попадать напрямую в окна.
Очень нравиться пеностекло, но поблизости у нас его не производят. А вот пеноплекс выбрал, потомучто, у него очень достойные показатели теплопроводности, практически нет водопоглащения, он не разрушается как пенопласт, да и на счет мышей это не про него. на частный дом, да еще и под штукатурку горючесть не берем в расчет. Наружные стены - низкая температура внутренней поверхности - высокая влажность в помещении - конденсат на стенах - для снижения влажности придется резко увеличивать воздухообмен... Про солнце, не попадающее в окна, не понял - Вы вроде писали, что окна на восточной, западной и южной стороне... По стене - еще раз советую просчитать "пирог" стены на паропроницание/конденсатообразование...
|
|
|
|
|
|
|
|
24.10.2013, 11:32
|
Инженер
Группа: Участники форума
Сообщений: 2270
Регистрация: 12.4.2012
Из: Херсон
Пользователь №: 147254

|
Цитата(lovial @ 24.10.2013, 11:08)  Про солнце, не попадающее в окна, не понял - Вы вроде писали, что окна на восточной, западной и южной стороне... По стене - еще раз советую просчитать "пирог" стены на паропроницание/конденсатообразование... У него стенка южная под наклоном, а летом угол падения изменяется. Наверно так. А санузел с окном- то что надо
|
|
|
|
|
|
|
|
24.10.2013, 12:23
|
Группа: Участники форума
Сообщений: 901
Регистрация: 5.7.2004
Из: Украина, Киев
Пользователь №: 38

|
Цитата(kosenko111 @ 24.10.2013, 10:46)  Михаил, спасибо за ответы. но на счет казармы не совсем понял. Наверное потомучто в армию не успел  Вот и будет Вам шанс узнать - что это такое, когда реализуете у себя. сленг "казарма" подразумевает, что все находящиеся в зоне действия системы "Кондиционирование совмещенное с вентиляцией" живут при одной температуре, дышат одним воздухом, включая запахи, слушают одни и те же звуки. Я пеностекло себе установил при ремонте - очень доволен. Если надумаете дюралевые рамы - надо окна обдувать зимой и летом: без этого некомфортно и термонапряжения большие - треск будет. Михаил
|
|
|
|
|
|
|
|
24.10.2013, 12:43
|
Группа: Участники форума
Сообщений: 1550
Регистрация: 14.4.2011
Пользователь №: 103554

|
Цитата(lovial @ 24.10.2013, 15:08)  Наружные стены - низкая температура внутренней поверхности - высокая влажность в помещении - конденсат на стенах - для снижения влажности придется резко увеличивать воздухообмен...
Про солнце, не попадающее в окна, не понял - Вы вроде писали, что окна на восточной, западной и южной стороне... По стене - еще раз советую просчитать "пирог" стены на паропроницание/конденсатообразование... Дом утеплён для Краснодара очень даже прилично, можно провести расчёт на случай самой холодной пятидневки и посмотреть будет ли на стене точка росы, но сам факт того что даже в старых дома на стенах никогда не было точки росы говорит о том, что всё будет нормально.
|
|
|
|
|
|
|
|
24.10.2013, 13:09
|
Группа: Участники форума
Сообщений: 2233
Регистрация: 8.7.2008
Из: Днепропетровск
Пользователь №: 20416

|
Цитата(cpt @ 24.10.2013, 12:43)  Дом утеплён для Краснодара очень даже прилично, можно провести расчёт на случай самой холодной пятидневки и посмотреть будет ли на стене точка росы, но сам факт того что даже в старых дома на стенах никогда не было точки росы говорит о том, что всё будет нормально. Спорный вопрос... В старых домах много пеноплекса раньше ставили?
|
|
|
|
|
|
|
|
24.10.2013, 16:48
|
Группа: Участники форума
Сообщений: 1527
Регистрация: 5.1.2010
Из: Белгород
Пользователь №: 43680

|
Цитата(kosenko111 @ 24.10.2013, 11:46)  Очень нравиться пеностекло, но поблизости у нас его не производят. Закажите фуру. Это не так и дорого, у нас так делали, везли за 1,500 км. Цитата(kosenko111 @ 24.10.2013, 11:46)  А вот пеноплекс выбрал, потомучто, у него очень достойные показатели теплопроводности, практически нет водопоглащения, он не разрушается как пенопласт, да и на счет мышей это не про него. Меньше рекламы читайте. Цитата(kosenko111 @ 24.10.2013, 11:46)  На счет котла спорно, не думаю что обычный нам нужен, может есть еще альтернатива, например как "газовые абсорбционные тепловые насосы". Чем сложнее аппарат, тем больше вероятности поломки и дороже ремонт и обслуживание. А газовые абсорбционные разве выпускают? Я их только в книжках видел.
|
|
|
|
|
|
|
|
25.10.2013, 3:57
|
Группа: Участники форума
Сообщений: 1550
Регистрация: 14.4.2011
Пользователь №: 103554

|
Цитата(tpa2009 @ 24.10.2013, 20:48)  Чем сложнее аппарат, тем больше вероятности поломки и дороже ремонт и обслуживание. А газовые абсорбционные разве выпускают? Я их только в книжках видел. Автор темы хочет энергоэффективность, а не надёжность и резервирование, поэтому и советуем АБТН, а не две буржуйки в бункере с запасом дров.
|
|
|
|
|
|
|
Гость_Iroha_*
|
25.10.2013, 8:42
|
Guest Forum

|
Хотелось бы видеть конкретные технические характеристики. вроде: количество проживающих, расход воды, дров, газа, удельные теплопотери, энергоэффективность, соответствие нормам, стоимость проживания и т.д. Как, например, характеристики автомобиля. Чтобы покупатель после приобретения, мог сравнить заявленное с действительным и при необходимости спросить с продавца. Иначе получается кот в мешке, ничего кроме красивых картинок. имхо.
Сообщение отредактировал Iroha - 25.10.2013, 8:44
|
|
|
|
|
|
|
|
25.10.2013, 17:51
|
Группа: Участники форума
Сообщений: 1527
Регистрация: 5.1.2010
Из: Белгород
Пользователь №: 43680

|
Цитата(Khomenko_A_S @ 23.10.2013, 17:32)  Что за энергоеффективный дом где ТП недостаточно. Теплый пор конечно хорошо, но если очень холодно, в нем надо поднимать температуру, что будет не очень комфортно ногам. И еще мои знакомые жаловались, что в комнатах с теплым полом, если отключать радиатора под окном, то из окна несет холодом. Поэтому конечно лучше сделать два контура, в т.ч. и с небольшими радиаторами. Цитата(kosenko111 @ 24.10.2013, 11:46)  Дом сорентирован так, что летом солнеце практически не будет попадать напрямую в окна. Там в окна попадает не только прямое излучение, но и отраженнное. У нас по ТСН за отопительный период средняя величина солнечной радиации на вертикальную поверхность, ориентированную на север составляет 626, на юг - 1440. летом в принципе будет похожее соотношение. Цитата(cpt @ 25.10.2013, 4:57)  Автор темы хочет энергоэффективность, а не надёжность и резервирование, поэтому и советуем АБТН, а не две буржуйки в бункере с запасом дров. Ну, энергоэффективность - не культ. Ей занимаются, что бы деньги съэкономить. А что это за экономия, если лампочки стоят дороже сьэкономленной энергии? То же и с котлом. А надежность - сломался зимой обычный массовый котел или ТН, или абсорбционный ТН. Какой агрегат в Краснодарском крае оперативней починить? И дешевле починить? Ну ли оперативно заменить, если чинить долго или дорого? Думаю, вопрос риторический. Да, АБТН - это Теплосибмаш? Которые от 0,6 МВт? )) Или еще какие-то есть, не такие масштабные?
|
|
|
|
|
|
|
|
25.10.2013, 17:57
|
Группа: Участники форума
Сообщений: 2233
Регистрация: 8.7.2008
Из: Днепропетровск
Пользователь №: 20416

|
Цитата(Iroha @ 25.10.2013, 8:42)  Хотелось бы видеть конкретные технические характеристики. вроде: количество проживающих, расход воды, дров, газа, удельные теплопотери, энергоэффективность, соответствие нормам, стоимость проживания и т.д. Ну, теоретически, кое-что посчитать можно. Но насколько оно с практикой будет "пересекаться" - большой вопрос... Это не автомобиль, которых одинаковых тысячи выпускают и на всяких тестах гоняют, это индивидуальный проект. Проблемы вылезут в любом случае, посему автор проекта вполне, на мой взгляд, резонно интересуется, какие они могут быть...
|
|
|
|
|
|
|
|
25.10.2013, 20:42
|
Группа: New
Сообщений: 7
Регистрация: 22.10.2013
Из: Краснодар
Пользователь №: 210201

|
Цитата(kord @ 24.10.2013, 13:23)  Вот и будет Вам шанс узнать - что это такое, когда реализуете у себя. сленг "казарма" подразумевает, что все находящиеся в зоне действия системы "Кондиционирование совмещенное с вентиляцией" живут при одной температуре, дышат одним воздухом, включая запахи, слушают одни и те же звуки. Михаил, это же будет наружний воздух, через рекуператор. Цитата(lovial @ 24.10.2013, 14:09)  Спорный вопрос... В старых домах много пеноплекса раньше ставили? в старых домах думаю это решалось естественной вентиляцией через окна и буржуйкой которая ох как не экономична) Цитата(tpa2009 @ 24.10.2013, 17:48)  Закажите фуру. Это не так и дорого, у нас так делали, везли за 1,500 км.
Меньше рекламы читайте.
Чем сложнее аппарат, тем больше вероятности поломки и дороже ремонт и обслуживание. А газовые абсорбционные разве выпускают? Я их только в книжках видел. считаю ЭППС самым оптимальным цена/качество. Но сужу по рекламе и отзывам. Цитата(Iroha @ 25.10.2013, 9:42)  Хотелось бы видеть конкретные технические характеристики. вроде: количество проживающих, расход воды, дров, газа, удельные теплопотери, энергоэффективность, соответствие нормам, стоимость проживания и т.д. Как, например, характеристики автомобиля. Чтобы покупатель после приобретения, мог сравнить заявленное с действительным и при необходимости спросить с продавца. Иначе получается кот в мешке, ничего кроме красивых картинок. имхо. Мне бы тоже все это хотелось видеть  поэтому и пишу, чтобы опытом поделился кто сталкивался. проживать будут семья из 2 а позднее 3 человек. Пока разрабатывается проект, позже думаю чтоибудь да будет известно. Цитата(tpa2009 @ 25.10.2013, 18:51)  Теплый пор конечно хорошо, но если очень холодно, в нем надо поднимать температуру, что будет не очень комфортно ногам. И еще мои знакомые жаловались, что в комнатах с тепУлым полом, если отключать радиатора под окном, то из окна несет холодом. Поэтому конечно лучше сделать два контура, в т.ч. и с небольшими радиаторами.
Там в окна попадает не только прямое излучение, но и отраженнное. У нас по ТСН за отопительный период средняя величина солнечной радиации на вертикальную поверхность, ориентированную на север составляет 626, на юг - 1440. летом в принципе будет похожее соотношение.
Ну, энергоэффективность - не культ. Ей занимаются, что бы деньги съэкономить. А что это за экономия, если лампочки стоят дороже сьэкономленной энергии? То же и с котлом. А надежность - сломался зимой обычный массовый котел или ТН, или абсорбционный ТН. Какой агрегат в Краснодарском крае оперативней починить? И дешевле починить? Ну ли оперативно заменить, если чинить долго или дорого? Думаю, вопрос риторический. Да, АБТН - это Теплосибмаш? Которые от 0,6 МВт? )) Или еще какие-то есть, не такие масштабные? У окон будут конвекторы в полу(отдельный контур) По окнам могу сказать, что в основном большая площадь выходит на восток(это не страшно) на юг окна на наклонной стене и с горизонтальными рассечками на витраже(прямой свет будет попадать зимой, на это расчитываем) на западе стоит решетка частично защищающая от солнца(в основном от соседей) должно все работать) Думаю всеже стоит купить лампу которая не окупиться, как говориться после нас будут жить наши дети, так что нужно постораться не засрать что осталось. Мое такое мнение. Меняем менталитет друзья над котлом еще думаем. Цитата(lovial @ 25.10.2013, 18:57)  Ну, теоретически, кое-что посчитать можно. Но насколько оно с практикой будет "пересекаться" - большой вопрос... Это не автомобиль, которых одинаковых тысячи выпускают и на всяких тестах гоняют, это индивидуальный проект. Проблемы вылезут в любом случае, посему автор проекта вполне, на мой взгляд, резонно интересуется, какие они могут быть... спасибо за понимание) как начнем буду выкладывать фото и инфу по ценам и результатам.
|
|
|
|
|
|
|
Гость_Iroha_*
|
25.10.2013, 21:16
|
Guest Forum

|
Вопрос такого плана: какие будут затраты. на отопление, на вентиляцию и прочее в руб. в месяц , в год. Может оказаться что "автомобиль" имеет расход 100 л/км.
|
|
|
|
|
|
|
|
26.10.2013, 10:49
|
Группа: Участники форума
Сообщений: 2233
Регистрация: 8.7.2008
Из: Днепропетровск
Пользователь №: 20416

|
Цитата(kosenko111 @ 25.10.2013, 20:42)  в старых домах думаю это решалось естественной вентиляцией через окна и буржуйкой которая ох как не экономична) Я не о том... Я опять о паропроницании стен... Выложите "пирожок" - я вам посчитаю...
|
|
|
|
|
|
|
|
26.10.2013, 11:16
|
Группа: Участники форума
Сообщений: 1550
Регистрация: 14.4.2011
Пользователь №: 103554

|
На данном этапе, автору не плохо было бы посчитать энергетический паспорт на дом, что бы оценить выбранные решения
|
|
|
|
|
|
|
|
29.10.2013, 8:32
|
Группа: Участники форума
Сообщений: 1527
Регистрация: 5.1.2010
Из: Белгород
Пользователь №: 43680

|
Цитата(kosenko111 @ 25.10.2013, 21:42)  По окнам могу сказать, что в основном большая площадь выходит на восток(это не страшно) на юг окна на наклонной стене и с горизонтальными рассечками на витраже(прямой свет будет попадать зимой, на это расчитываем) на западе стоит решетка частично защищающая от солнца(в основном от соседей) должно все работать) Меня всегда забавляли такие решения - сделать здоровое окно и закрыть его капитальной жалюзийной решеткой. Смысл этих затрат и снижения энергоэффективности? Цитата(kosenko111 @ 25.10.2013, 21:42)  Думаю всеже стоит купить лампу которая не окупиться, как говориться после нас будут жить наши дети, так что нужно постораться не засрать что осталось. Мое такое мнение. Меняем менталитет друзья  Про детей не особенно думайте))) До них все это сломается. ТН по принципу работы - тот же кондиционер, то есть будет работать при интенсивной эксплуатации лет 10, не больше. А бережное отношение к природе? По логике, если лампа стоит дороже, то и затраты на её производство больше. Поэтому вся экономия энергии при эксплуатации компенсируется затратами при её производстве. Да и чем дороже устройство, тем больше в нем всякой гадости, типа ртути в лампах или фреона в ТН, и больше гадости выделяется при их производстве.
|
|
|
|
|
|
1 чел. читают эту тему (гостей: 1, скрытых пользователей: 0)
Пользователей: 0
|
|
Реклама
ООО «Арктика групп» ИНН: 7713634274 | erid 2VtzqvpbUMg
ООО «УНИСПЛИТ» ИНН: 6453155081 erid:2VtzqxNcYBM
Реклама: ООО «СЛ-ЛАЗЕР» ИНН 7727447267 | erid: 2VtzqvEDgM7

Реклама: ООО «Зет-Логист» ИНН 5401982392 | erid: 2Vtzqw44UH9
Последние сообщения Форума
|