Проблема с работай системы отопления, Не работает первый этаж |
|
|
|
|
23.1.2018, 13:22
|
Группа: Участники форума
Сообщений: 47
Регистрация: 25.8.2006
Из: г.Иркутск
Пользователь №: 3796

|
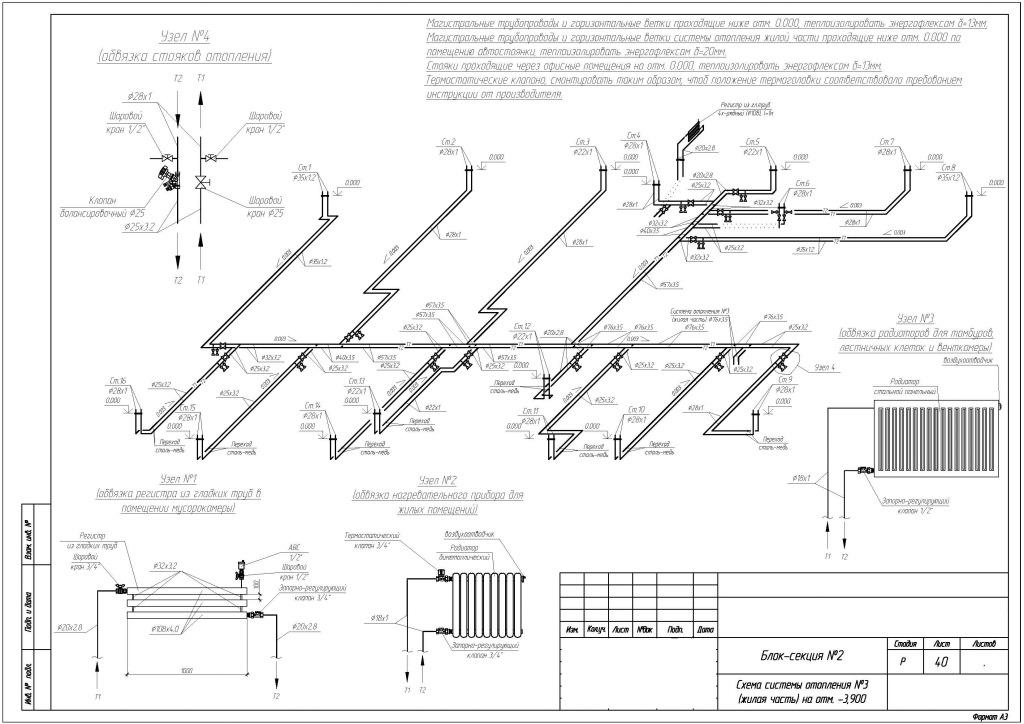
Здравствуйте, нужна консультация. Выполнил проект системы отопления жилого дома 14 этажей. Система отопления вертикальная двухтрубная с нижней разводкой магистралей. Трубы медные, стояки с ручными балансировочными клапанами, приборы отопления секционные биметаллические с термостатами без преднастройки и с запорно-регулирующим клапаном на обратке. ИТП по закрытой схеме. Запусти систему без пока пусконаладки и столкнулись с такой проблемой приборы первого этажа на каждом стояке не прогреваются, причём подача холоднее чем обратка, а остальные этажи работают. Подскажите кто сталкивался из-за чего это происходит! Вот мои догадки: 1. скорость движения теплоносителя. Нужно уменьшить скорость насоса в ИТП, выставить преднастройки на балансирах и запорно-регулирующих клапанах на радиаторах Заранее Спасибо!!!
Сообщение отредактировал Denis First - 23.1.2018, 13:24
Эскизы прикрепленных изображений
|
|
|
|
|
|
|
 |
Ответов
(1 - 20)
|
|
23.1.2018, 14:00
|
Проектировщик ОВиК (Фриланс)
Группа: Участники форума
Сообщений: 579
Регистрация: 22.10.2004
Из: .
Пользователь №: 214

|
Подача и обратка в такой системе будет меняться местами, всё будет работать как попало. Настроить ее тем что есть невозможно. Можно просто попытаться сделать не так ужасно как есть.
|
|
|
|
|
|
|
|
23.1.2018, 14:19
|
Группа: Участники форума
Сообщений: 1653
Регистрация: 22.1.2014
Из: Пенза
Пользователь №: 220488

|
Цитата(Denis First @ 23.1.2018, 13:22)  ... Выполнил проект системы отопления жилого дома 14 этажей. Система отопления вертикальная двухтрубная с нижней разводкой магистралей. Трубы медные, стояки с ручными балансировочными клапанами, приборы отопления секционные биметаллические с термостатами без преднастройки и с запорно-регулирующим клапаном на обратке. ИТП по закрытой схеме. Запусти систему без пока пусконаладки и столкнулись с такой проблемой приборы первого этажа на каждом стояке не прогреваются, причём подача холоднее чем обратка, а остальные этажи работают. Подскажите кто сталкивался из-за чего это происходит! Система гидравлически рассчитывалась? Если рассчитывалась, то нужно произвести пуско-наладку в соответствии с гидравлическими расчетами. Тогда всё будет работать настолько правильно, насколько правилен проект.
Сообщение отредактировал Inchin - 23.1.2018, 14:20
|
|
|
|
|
|
|
|
23.1.2018, 14:25
|
Группа: Участники форума
Сообщений: 47
Регистрация: 25.8.2006
Из: г.Иркутск
Пользователь №: 3796

|
Цитата(SP_ @ 23.1.2018, 14:00)  Подача и обратка в такой системе будет меняться местами, всё будет работать как попало. Настроить ее тем что есть невозможно. Можно просто попытаться сделать не так ужасно как есть. Это не первая подобная система смонтированная нами, до этого не было таких проблем всё работает в чём всё таки причина, можете пояснить
|
|
|
|
|
|
|
|
23.1.2018, 14:32
|
проектировщик ТМ (фриланс)
Группа: Участники форума
Сообщений: 4032
Регистрация: 13.3.2005
Из: Череповец - СПБ - Воронеж - Геленджик
Пользователь №: 543

|
медные трубы? ничего себе. это круто. а на данный момент установлены термоголовки на приборы? если нет, то в этом и кроется ответ на ваш вопрос. если не хотите ставить пока термоголовки (до заселения), тогда надо будет заняться предварительной настройкой. а так вы достаточно хорошую мину закладываете на будущее, до первого жильца со своим взглядом на работу системы отопления.
|
|
|
|
|
|
|
|
23.1.2018, 14:39
|
Группа: Участники форума
Сообщений: 47
Регистрация: 25.8.2006
Из: г.Иркутск
Пользователь №: 3796

|
Цитата(ssn @ 23.1.2018, 14:32)  медные трубы? ничего себе. это круто. а на данный момент установлены термоголовки на приборы? если нет, то в этом и кроется ответ на ваш вопрос. если не хотите ставить пока термоголовки (до заселения), тогда надо будет заняться предварительной настройкой. а так вы достаточно хорошую мину закладываете на будущее, до первого жильца со своим взглядом на работу системы отопления. Да я согласен что нужна настройка, просто мне интересно понять физику вопроса по логике теплоносителю проще зайти в ближайший прибор, чем на 14 этаж, а по факту получается на оборот с чем это связано???
|
|
|
|
|
|
|
|
23.1.2018, 14:48
|
проектировщик ТМ (фриланс)
Группа: Участники форума
Сообщений: 4032
Регистрация: 13.3.2005
Из: Череповец - СПБ - Воронеж - Геленджик
Пользователь №: 543

|
а связано это с появлением гравитационных циркуляционных колец и местами подача может превращаться в обратку.
|
|
|
|
|
|
|
|
23.1.2018, 15:20
|
Группа: Участники форума
Сообщений: 1653
Регистрация: 22.1.2014
Из: Пенза
Пользователь №: 220488

|
Цитата(Denis First @ 23.1.2018, 14:25)  Это не первая подобная система смонтированная нами, до этого не было таких проблем всё работает в чём всё таки причина, можете пояснить Сдаётся мне, что в системе очень низкие авторитеты приборных узлов. Какие авторитеты в вашей системе минимум и максимум? На приборных узлах, на балансировочниках недостаточные перепады давлений. Пьезометр рассчитывали? Вследствие этого из-за гравитационного напора, на нижних этажах давление на подаче в приборный узел может становиться больше, чем на обратке. При правильных авторитетах, и достаточном падении давления на балансировочной арматуре приборных узлов, опрокидывание циркуляции было бы невозможным. Вот и все причины. Если есть гидравлический расчет - то сделайте пуско-наладку, установите все балансировочные клапаны в расчетное положение. А если расчета гидравлического нет - значит такой "замечательный" фейковый проект. Тогда нужно сделать нормальный гидравлический расчет и переделать систему по новому правильному проекту. Цитата(Denis First @ 23.1.2018, 14:39)  ... мне интересно понять физику вопроса по логике теплоносителю проще зайти в ближайший прибор, чем на 14 этаж, а по факту получается на оборот с чем это связано??? Связано с тем, что не учитывался при гидравлическом расчёте гравитационный напор в стояках. А также не учитывались авторитеты и не было создано необходимого падения давления на балансировочниках приборных узлов. Рассчитайте пьезометр по стояку с учетом гравитационного напора и будет понятно, почему опрокидывается циркуляция на некоторых этажах.
Сообщение отредактировал Inchin - 23.1.2018, 15:33
|
|
|
|
|
|
|
|
23.1.2018, 17:13
|
Проектировщик ОВиК (Фриланс)
Группа: Участники форума
Сообщений: 579
Регистрация: 22.10.2004
Из: .
Пользователь №: 214

|
Система высокая поэтому гравитационное давление играют огромную роль. Ваша система это отлично показывает - на 1м этаже это давление 0, поэтому эти приборы не работают. В течении года температура в системе отопления значительно изменяется, расход воды так же изменяется из-за наличия термостатов. Первое приводит к изменению гравитационного давления, последнее привод к неправильной работе ручных вентилей на стояках.
В этой системе крайне важно иметь автоматические балансировочники на стояках, чтобы снизить избыточное давление насоса, а так же настройки на термостат.клапанах чтобы снизить влияние гравтиционного давления.
А вот четкое понимание какие нужны клапаны и какие на них настройки даст расчет в программе. То что я описал это как должно быть и только расчет в программе может дать возможность урезать систему до вашего состояния.
ТАк вот это гравитационное давление гидравлически разрегулирует систему и подача и обратка могут поменяться местами. Если другие системы работают, это незначит что они работают правильно, они работают кое как. На каком то этаже много тепла, на каком то мало и в течении отопительного периода всё меняется.
Как будет хорошо точно: здания до 3х этажей можно делать только на терм.вентилях без настроек здания до 5 этажей можно делать как в вашем случае здания свыше 5 этажей делать как я написал.
В вашем случае помоему можно только одно - попобровать менять напор насоса в ИТП, но в любом случае более 30кПа недопустимо, так чтобы на первом термостате не было более 25кПа.
|
|
|
|
|
|
|
|
23.1.2018, 18:22
|
Группа: Участники форума
Сообщений: 1653
Регистрация: 22.1.2014
Из: Пенза
Пользователь №: 220488

|
Цитата(SP_ @ 23.1.2018, 17:13)  Система высокая поэтому гравитационное давление играют огромную роль. Ваша система это отлично показывает - на 1м этаже это давление 0, поэтому эти приборы не работают. В течении года температура в системе отопления значительно изменяется, расход воды так же изменяется из-за наличия термостатов. Первое приводит к изменению гравитационного давления, последнее привод к неправильной работе ручных вентилей на стояках. "Гравитационное давление"? Не могли бы пояснить, что это такое? Знаю только "гравитационный напор". Возможно плохо учился, поэтому, если вас не затруднит, подскажите, где неправ. Цитата(SP_ @ 23.1.2018, 17:13)  ... В этой системе крайне важно иметь автоматические балансировочники на стояках, чтобы снизить избыточное давление насоса, а так же настройки на термостат.клапанах чтобы снизить влияние гравтиционного давления. Да? А почему? Не могли бы подробней пояснить? Цитата(SP_ @ 23.1.2018, 17:13)  А вот четкое понимание какие нужны клапаны и какие на них настройки даст расчет в программе. То что я описал это как должно быть и только расчет в программе может дать возможность урезать систему до вашего состояния. Ну почему же обязательно в программе считать? Можно и "вручную закатывать Солнце".  И непонятно до какого состояния предлагаете "урезать" систему? Цитата(SP_ @ 23.1.2018, 17:13)  ТАк вот это гравитационное давление гидравлически разрегулирует систему и подача и обратка могут поменяться местами. Если другие системы работают, это незначит что они работают правильно, они работают кое как. На каком то этаже много тепла, на каком то мало и в течении отопительного периода всё меняется. "Гравитационное давление разрегулирует систему". Очень интересно! А почему, можете пояснить? А "другие" системы, подозреваю, работают по принципу: "Всегда всем так делали и никто не жаловался!".  Цитата(SP_ @ 23.1.2018, 17:13)  Как будет хорошо точно: здания до 3х этажей можно делать только на терм.вентилях без настроек здания до 5 этажей можно делать как в вашем случае здания свыше 5 этажей делать как я написал. Это еще почему? Если не затруднит, то докажите. В свою очередь, могу привести примеры гидравлических расчётов для многоэтажек разной этажности, опровергающие ваши слова. Цитата(SP_ @ 23.1.2018, 17:13)  В вашем случае помоему можно только одно - попобровать менять напор насоса в ИТП, но в любом случае более 30кПа недопустимо, так чтобы на первом термостате не было более 25кПа. Поясните, зачем нужно менять напор насоса в ИТП? И с чего вы взяли, что именно более 25 кПа, является недопустимым перепадом на радиаторных термоклапанах? Вам необходимо привести техдоки производителей, которые доказывают, что вы заблуждаетесь, или сами найдете на официальных сайтах производителей?
Сообщение отредактировал Inchin - 23.1.2018, 18:24
|
|
|
|
|
|
|
|
23.1.2018, 19:02
|
Проектировщик ОВиК (Фриланс)
Группа: Участники форума
Сообщений: 579
Регистрация: 22.10.2004
Из: .
Пользователь №: 214

|
Inchin, не хочу с тролями общаться.
|
|
|
|
|
|
|
|
23.1.2018, 19:57
|
проектировщик ТМ (фриланс)
Группа: Участники форума
Сообщений: 4032
Регистрация: 13.3.2005
Из: Череповец - СПБ - Воронеж - Геленджик
Пользователь №: 543

|
цель одна - поднять сопротивление узла радиатора добиться этого можно повышением общего расхода (что не есть правильно и не факт что поможет) или увеличением сопротивления именно узла радиатора. вот последним как раз и надо заняться. хотя бы через предварительные настройки клапанов. вы же читали СП? надо обеспечивать гидравлическую устойчивость систем путём правильного распределения потерь в участках трубопроводов. 70% надо тратить на приборах, и будет все работать. Т.е. магистрали зажимать не надо, а приборы - надо.
Сообщение отредактировал ssn - 23.1.2018, 19:58
|
|
|
|
|
|
|
|
23.1.2018, 19:59
|
Группа: Участники форума
Сообщений: 33571
Регистрация: 4.12.2006
Из: 97
Пользователь №: 5032

|
а ТО в ИТП в курсе про увеличение общего расхода?
|
|
|
|
|
|
|
|
23.1.2018, 20:13
|
проектировщик ТМ (фриланс)
Группа: Участники форума
Сообщений: 4032
Регистрация: 13.3.2005
Из: Череповец - СПБ - Воронеж - Геленджик
Пользователь №: 543

|
Цитата(инж323 @ 23.1.2018, 19:59)  а ТО в ИТП в курсе про увеличение общего расхода?  а что ТО, ему то что. вот насос, это да. )))
|
|
|
|
|
|
|
|
23.1.2018, 20:21
|
Группа: Участники форума
Сообщений: 33571
Регистрация: 4.12.2006
Из: 97
Пользователь №: 5032

|
Цитата(ssn @ 23.1.2018, 20:13)  а что ТО, ему то что. вот насос, это да. ))) Понимаю, что фрилансер может что угодно говорить , в отличие от сотрудника большого института, но не стоит перегибать и пользоваться этим в профобласти.  Увеличение расхода выходящее по мощности за предела запаса в ТО даст снижение Т в подаче и изменение графика Т в системе с изменением теплоотдачи ОП и влияния давления в малых циркуляционных кольцах.
|
|
|
|
|
|
|
|
23.1.2018, 21:33
|
Группа: Участники форума
Сообщений: 3575
Регистрация: 5.3.2009
Из: Газ-Ачака
Пользователь №: 30120

|
Цитата(Denis First @ 23.1.2018, 14:39)  Да я согласен что нужна настройка, просто мне интересно понять физику вопроса по логике теплоносителю проще зайти в ближайший прибор, чем на 14 этаж, а по факту получается на оборот с чем это связано??? Всё очень просто. Помимо принудительной циркуляции существует естественная. Чем больше разница температур и высот тем больше возникает давление. Поэтому воде в двухтрубной системе легче дойти до верхнего прибора. Это из школьного курса физики p=р*g*h как сейчас помню фразу физики для запоминания "рожу аш перекосило")))
Сообщение отредактировал Composter - 23.1.2018, 21:45
|
|
|
|
|
|
|
|
23.1.2018, 22:52
|
проектировщик ТМ (фриланс)
Группа: Участники форума
Сообщений: 4032
Регистрация: 13.3.2005
Из: Череповец - СПБ - Воронеж - Геленджик
Пользователь №: 543

|
Цитата(инж323 @ 23.1.2018, 20:21)  Понимаю, что фрилансер может что угодно говорить , в отличие от сотрудника большого института, но не стоит перегибать и пользоваться этим в профобласти.  Увеличение расхода выходящее по мощности за предела запаса в ТО даст снижение Т в подаче и изменение графика Т в системе с изменением теплоотдачи ОП и влияния давления в малых циркуляционных кольцах. ну. выход теплообменника за расчетные рамки по расходу просто изменит графики с обоих сторон (про увеличение нагрузки не было разговора, дом останется прежним. вернее как, нагрузка конечно вырастет, но не значительно... определить расчетом как она вырастет думаю не реально). со стороны потребителя вырастет обратка, а значит и со стороны сетей она тоже вырастет. но. там же рукастые наладчики. они изменят график на стороне потребителя, и приведут обратку сетей в подобие нужной. ))) совет конечно вредный. но теоретически возможный. меня больше удивляет медь в системе отопления жилого здания в 17 этажей. это описка или правда?
Сообщение отредактировал ssn - 23.1.2018, 23:04
|
|
|
|
|
|
|
|
23.1.2018, 23:31
|
Группа: Участники форума
Сообщений: 33571
Регистрация: 4.12.2006
Из: 97
Пользователь №: 5032

|
Были б рукастые- не было б тут темы.
|
|
|
|
|
|
|
|
24.1.2018, 5:00
|
Группа: Участники форума
Сообщений: 47
Регистрация: 25.8.2006
Из: г.Иркутск
Пользователь №: 3796

|
Спасибо! Всё по делу, все мой догадки подтвердили. Я конечно же считал систему, и делаю это уже 14 лет. про настройки сразу выше обозначил что пока ничего ни делали. Просто хотел услышать мнение коллег, для подтверждения своего мнения.
Просто монтажники в таких случаях начинают тупить и сваливать всё на нерабочую систему и вспоминать времена однотрубки.
Спасибо, всем!!!
|
|
|
|
|
|
|
|
24.1.2018, 9:41
|
Проектировщик ОВиК (Фриланс)
Группа: Участники форума
Сообщений: 579
Регистрация: 22.10.2004
Из: .
Пользователь №: 214

|
"про настройки сразу выше обозначил что пока ничего ни делали." в исходных данных сказано "с термостатами без преднастройки". От балансиров на стояках толка нет, так как стояков мало , потери в магистрали низкие.
СП60 6.2.7 Потери давления в системах водяного отопления должны составлять: в циркуляционных кольцах через верхние приборы (ветки) двухтрубных вертикальных систем, а также через приборы однотрубных горизонтальных систем - не менее естественного давления в них при расчетных параметрах теплоносителя.
Чтобы этого добиться нужно зажимать трубами или крутить настройки термостатов, которых нет и что еще хуже термостаты применены на 3/4. Всё это делается чтобы убрать разрегулирующее гравитационное давление.
В системах отопления многоэтажных зданий для гидравлической балансировки и обеспечения работы автоматических терморегуляторов в оптимальном режиме на стояках (как правило, двухтрубных систем) следует предусматривать установку автоматических балансировочных клапанов. В системах отопления без автоматических терморегуляторов у отопительных приборов согласно 6.4.9 допускается устанавливать ручные балансировочные клапаны.
А вот здесь четко сказано какие клапаны нужны на стояках.
Здесь один вариант - увеличивать напор насоса, а может хоть как то заработает. Да будут шуметь термостаты, да в течении года людям будет то жарко то холодно... но сегодня все так делают.. печально...
|
|
|
|
|
|
|
|
24.1.2018, 13:07
|
Группа: Участники форума
Сообщений: 1653
Регистрация: 22.1.2014
Из: Пенза
Пользователь №: 220488

|
Цитата(Denis First @ 24.1.2018, 5:00)  Всё по делу, все мой догадки подтвердили. Какие знаете точно установлены термоклапаны на подаче в приборные узлы и клапаны на обратке? Какой фирмы и марки? Давайте посмотрим, какой у них КМС. Не прикидывали какую долю гидросопротивления в цирк.кольце занимает сопротивление приборных узлов? Может быть спасёт положение установка дроссельных шайб? Хотя здесь на форуме и предупреждали, что шайбы забивает шламом, но в независимой системе, возможно, это не будет таким критическим? Подозреваю, что требуется каким-то образом увеличить сопротивление приборных узлов. А возможно ещё и увеличить перепад на основаниях стояков. Известны ли необходимые перепады?
|
|
|
|
|
|
|
  |
1 чел. читают эту тему (гостей: 1, скрытых пользователей: 0)
Пользователей: 0
|
|
Реклама
ООО «Арктика групп» ИНН: 7713634274 | erid 2VtzqvpbUMg
ООО «УНИСПЛИТ» ИНН: 6453155081 erid:2VtzqxNcYBM
Реклама: ООО «СЛ-ЛАЗЕР» ИНН 7727447267 | erid: 2VtzqvEDgM7

Реклама: ООО «Зет-Логист» ИНН 5401982392 | erid: 2Vtzqw44UH9
Последние сообщения Форума
|