Отопление котеджа, нужен совет |
|
|
|
|
20.9.2012, 8:12
|
Группа: New
Сообщений: 7
Регистрация: 20.9.2012
Пользователь №: 163917

|
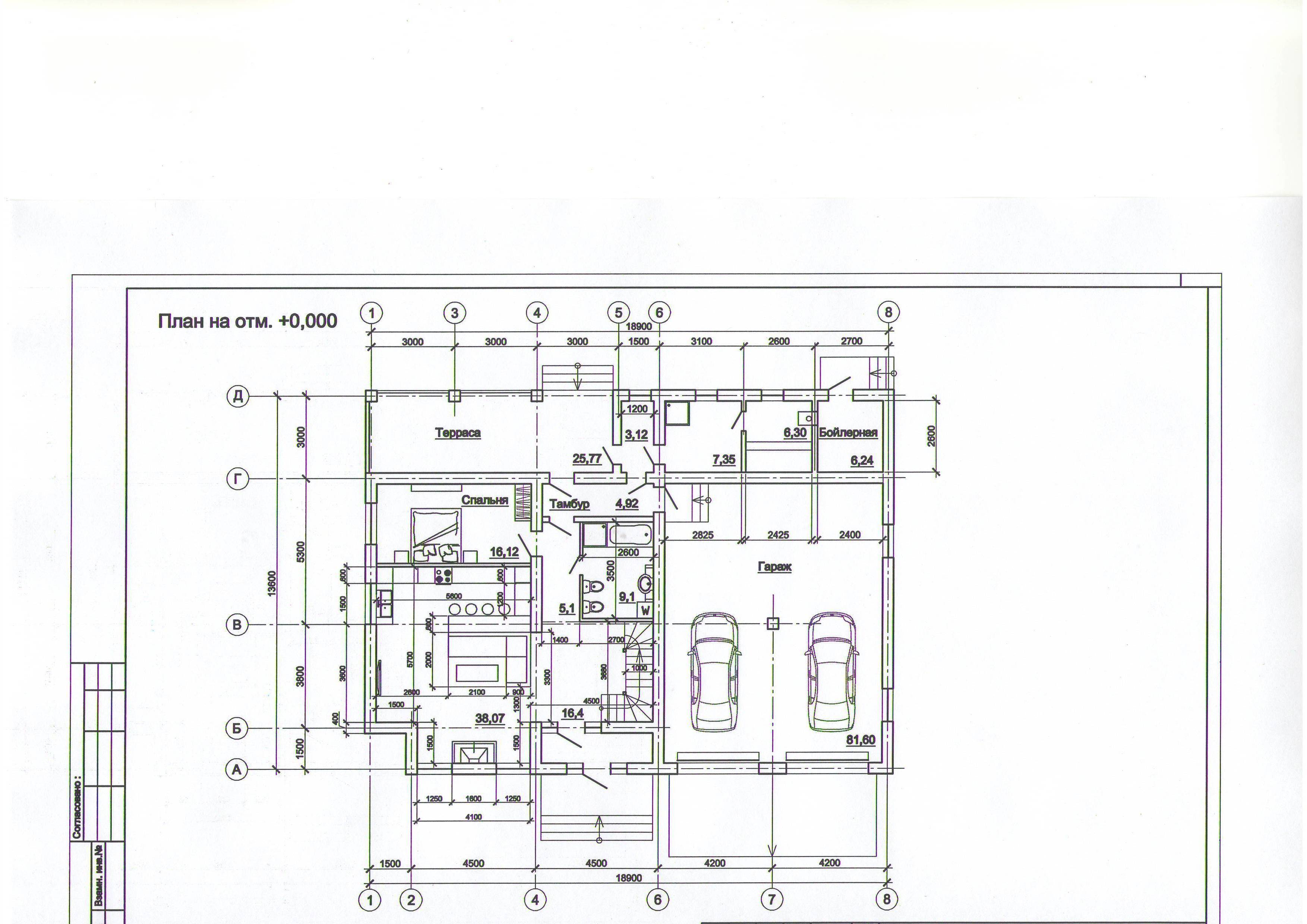
Уважаемые, дайте совет. Проект в стадии разработки вот планы. Вопрос: Возможно ли эффективно отапливать дом, в котором гостиная на два этажа, без теплых полов. В качестве отопления хочу использовать вот такой котел: http://in-comfort.com.ua/tverd33.html Климат как в Барнауле.
Эскизы прикрепленных изображений
|
|
|
|
|
|
|
 |
Ответов
(1 - 15)
|
|
20.9.2012, 9:37
|
Группа: Участники форума
Сообщений: 266
Регистрация: 27.10.2010
Из: Калуга
Пользователь №: 78404

|
Почему нет, главное что бы мощи хватило у котла, ну поставите гармохи в гостиной и всё.
|
|
|
|
|
|
|
|
20.9.2012, 16:38
|
Группа: Участники форума
Сообщений: 348
Регистрация: 25.8.2012
Пользователь №: 161088

|
С котлом понятно - нужна правильно подобранная мощность. Эффективно можно отопить всё что угодно, главное правильно спроектировать и смонтировать систему. А здесь кроме планов ничего нет. А что вы не представили схему отопления?
|
|
|
|
|
|
|
|
20.9.2012, 18:00
|
Группа: New
Сообщений: 7
Регистрация: 20.9.2012
Пользователь №: 163917

|
Цитата(Крестьянин @ 20.9.2012, 17:38)  С котлом понятно - нужна правильно подобранная мощность. Эффективно можно отопить всё что угодно, главное правильно спроектировать и смонтировать систему. А здесь кроме планов ничего нет. А что вы не представили схему отопления? Ваша фраза "А здесь кроме планов ничего и нет..." - так оно и есть, проект в стадии разработки.... Хотелось бы узнать - Каким путем идти? варианты..... 1.Радиаторы; 2. Радиаторы+теплый пол; Хотелось бы избежать второй вариант... Мощность и модель котла указана....
|
|
|
|
|
|
|
|
20.9.2012, 18:08
|
Группа: Участники форума
Сообщений: 20930
Регистрация: 8.8.2007
Из: Vilnius
Пользователь №: 10542

|
Вас больше должна волновать вентиляция, бо тепло и плохой воздух будут подниматься снизу вверх и стоять на уровне спален.... Значит надо решить направление потока воздуха сверху вниз - по золотому правилу вентиляции: "от более чистого к более грязному", заодно возврвщая тепло вниз.
|
|
|
|
|
|
|
|
20.9.2012, 19:50
|
Группа: New
Сообщений: 7
Регистрация: 20.9.2012
Пользователь №: 163917

|
Цитата(jota @ 20.9.2012, 19:08)  Вас больше должна волновать вентиляция, бо тепло и плохой воздух будут подниматься снизу вверх и стоять на уровне спален.... Значит надо решить направление потока воздуха сверху вниз - по золотому правилу вентиляции: "от более чистого к более грязному", заодно возврвщая тепло вниз. Если у вас есть техническое решение как вернуть теплый воздух вниз, подскажите пожалуйста. Буду очень благодарен....
|
|
|
|
|
|
|
|
20.9.2012, 21:04
|
Группа: Участники форума
Сообщений: 20930
Регистрация: 8.8.2007
Из: Vilnius
Пользователь №: 10542

|
Механической вентиляцией. Подавать на уровне потолка 2 света, вытягивать на уровне потолка 1 этажа
|
|
|
|
|
|
|
|
21.9.2012, 8:48
|
Группа: New
Сообщений: 7
Регистрация: 20.9.2012
Пользователь №: 163917

|
А можно подробнее пожалуйста об этой системе.
|
|
|
|
|
|
|
|
21.9.2012, 12:36
|
Группа: Участники форума
Сообщений: 20930
Регистрация: 8.8.2007
Из: Vilnius
Пользователь №: 10542

|
Если не собираетесь делать механическую вентиляцию в доме, то говорить не о чём....
|
|
|
|
|
|
|
|
21.9.2012, 17:49
|
Группа: Участники форума
Сообщений: 348
Регистрация: 25.8.2012
Пользователь №: 161088

|
Не хотите тёплый пол. Тогда пожалуйста тёплый потолок и стены, если Вас как-то смущают радиаторы.
|
|
|
|
|
|
|
|
21.9.2012, 18:11
|
Группа: Участники форума
Сообщений: 1367
Регистрация: 4.4.2010
Из: СНГ!!!!!
Пользователь №: 50549

|
Цитата(Крестьянин @ 21.9.2012, 17:49)  Не хотите тёплый пол. Тогда пожалуйста тёплый потолок и стены, если Вас как-то смущают радиаторы. Вот что значит не успевать про все информацию на форуме ! Вы про потолки и остальное серьезно или так ....? Если нет, потрудитесь сюда заглянуть и там попробуйте повторить что сейчас посоветовали, (интересно чем аргументировать будите) и как сможете убедить наших коллег в обратном !
Сообщение отредактировал Anatol - 21.9.2012, 18:21
|
|
|
|
|
|
|
|
23.9.2012, 10:58
|
Группа: New
Сообщений: 7
Регистрация: 20.9.2012
Пользователь №: 163917

|
Цитата(jota @ 21.9.2012, 13:36)  Если не собираетесь делать механическую вентиляцию в доме, то говорить не о чём....  я не против механической вентиляции, просто в этом деле полный делитант и хотел бы получить советы, как это сделать.....
|
|
|
|
|
|
|
|
23.9.2012, 11:06
|
Группа: New
Сообщений: 7
Регистрация: 20.9.2012
Пользователь №: 163917

|
Цитата(Крестьянин @ 21.9.2012, 18:49)  Не хотите тёплый пол. Тогда пожалуйста тёплый потолок и стены, если Вас как-то смущают радиаторы. радиаторы меня не смущают.... они будут... Меня интересует: как правильно организовать систему отопления и вентиляции?
|
|
|
|
|
|
|
|
23.9.2012, 23:11
|
Группа: Участники форума
Сообщений: 20930
Регистрация: 8.8.2007
Из: Vilnius
Пользователь №: 10542

|
Цитата(premer @ 23.9.2012, 10:58)  я не против механической вентиляции, просто в этом деле полный делитант и хотел бы получить советы, как это сделать..... Давать советы трудно, надо заказать проект. Пример: делал давно, лет 10 назад. Сейчас бы изменил решение- подачу в зону со вторым светом делал бы на втором этаже, а вытяжку так бы и оставил.
|
|
|
|
|
|
|
|
24.9.2012, 17:25
|
Группа: New
Сообщений: 7
Регистрация: 20.9.2012
Пользователь №: 163917

|
Цитата(jota @ 24.9.2012, 0:11)  Давать советы трудно, надо заказать проект. Пример: делал давно, лет 10 назад. Сейчас бы изменил решение- подачу в зону со вторым светом делал бы на втором этаже, а вытяжку так бы и оставил. спасибо за совет....однозначно буду заказывать проект по системе вентиляции...
|
|
|
|
|
|
|
|
28.9.2012, 8:02
|
Группа: Участники форума
Сообщений: 281
Регистрация: 4.5.2010
Пользователь №: 55216

|
Так делайте сразу воздушное отопление, охлаждение и вентиляцию. Т.е. полную систему кондиционирования, с фильтрами и увлажнителем.
|
|
|
|
|
|
|
  |
1 чел. читают эту тему (гостей: 1, скрытых пользователей: 0)
Пользователей: 0
|
|
Реклама
ООО «Арктика групп» ИНН: 7713634274 | erid 2VtzqvpbUMg
ООО «УНИСПЛИТ» ИНН: 6453155081 erid:2VtzqxNcYBM
Реклама: ООО «СЛ-ЛАЗЕР» ИНН 7727447267 | erid: 2VtzqvEDgM7

Реклама: ООО «Зет-Логист» ИНН 5401982392 | erid: 2Vtzqw44UH9
Последние сообщения Форума
|