Реклама / ООО «ИЗОЛПРОЕКТ» / ИНН: 7725566484 | ERID: 2VtzqvfExCR
IPB IPB
Проектирование, монтаж, наладка, сервис


Здравствуйте, гость ( Вход | Регистрация )

- Стандарт НП «АВОК» 7.12-2025
«Рекомендации по проектированию инженерных систем
общеобразовательных организаций»

АВОК в соц. сетях
ИНН: 7714824045 | erid: 2Vtzqvh9Ati
 
Добавить ответ в эту темуОткрыть тему
> Закольцовка Тепловой сети ГВС, Консультации по закольцовке Тепловой сети и ГВС
РусИс
сообщение 12.7.2019, 11:09
Сообщение #1





Группа: New
Сообщений: 7
Регистрация: 23.4.2018
Пользователь №: 340826



Уважаемые форумчане!

Вопрос такой: есть теплосеть общая на два завода, планируем закрыть отсечными задвижками и закольцевать ее.
Просто соединить прямую с обраткой нельзя.
Знает ли кто-нибудь как вообще это делается. Есть ли какие-нибудь нормы, снипы ?
Вернуться в начало страницы
 
+Ответить с цитированием данного сообщения
Галиев
сообщение 13.7.2019, 9:01
Сообщение #2





Группа: Участники форума
Сообщений: 4292
Регистрация: 10.1.2011
Из: г.Саранск
Пользователь №: 88830



Цитата(РусИс @ 12.7.2019, 11:09) *
Уважаемые форумчане!

Вопрос такой: есть теплосеть общая на два завода, планируем закрыть отсечными задвижками и закольцевать ее.
Просто соединить прямую с обраткой нельзя.
Знает ли кто-нибудь как вообще это делается. Есть ли какие-нибудь нормы, снипы ?

Желая получить развернутый ответ, потрудитесь задать информативный вопрос. Набросайте существующую схему, укажите планируемые изменения, график сети, источник тепла, преследуемую цель.
Вернуться в начало страницы
 
+Ответить с цитированием данного сообщения
nik4t
сообщение 14.7.2019, 0:03
Сообщение #3


ТС


Группа: Участники форума
Сообщений: 8436
Регистрация: 28.7.2010
Из: Москва и рядом
Пользователь №: 66391



Цитата(РусИс @ 12.7.2019, 13:09) *
Уважаемые форумчане!

Вопрос такой: есть теплосеть общая на два завода, планируем закрыть отсечными задвижками и закольцевать ее.
Просто соединить прямую с обраткой нельзя.
Знает ли кто-нибудь как вообще это делается. Есть ли какие-нибудь нормы, снипы ?

Обратка соединяется с обраткой, а прямая с прямой, в месте разграничения у секционирующих задвижек.
Выполняя так называемый «перехлёст».

Эскизы прикрепленных изображений
Прикрепленное изображение
 
Вернуться в начало страницы
 
+Ответить с цитированием данного сообщения
РусИс
сообщение 18.7.2019, 20:54
Сообщение #4





Группа: New
Сообщений: 7
Регистрация: 23.4.2018
Пользователь №: 340826



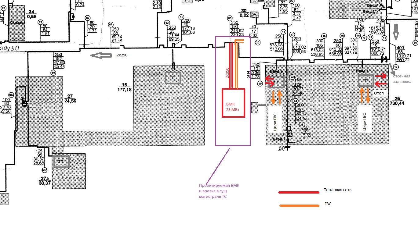
Можно ли врезать трубу Ду350 от БМК в сущ магистраль тс Ду250 и идти на увеличение диаметра Ду300...Ду350 ?
ГВС отбирался с гребенки ТП. Каким образом лучше завести ГВС от БМК в здания ?
Эскизы прикрепленных изображений
Прикрепленное изображение
 
Вернуться в начало страницы
 
+Ответить с цитированием данного сообщения
Defdogs
сообщение 20.7.2019, 20:18
Сообщение #5





Группа: New
Сообщений: 4
Регистрация: 17.10.2010
Из: Москва
Пользователь №: 76729



А зачем 350? Она уже проложена? Из опыта диагностики скажу, что есть риск получить внутреннюю коррозию, т.к. циркуляция будет хуже.
Вернуться в начало страницы
 
+Ответить с цитированием данного сообщения
РусИс
сообщение 22.7.2019, 20:10
Сообщение #6





Группа: New
Сообщений: 7
Регистрация: 23.4.2018
Пользователь №: 340826



Ду350 рассчитан исходя из необходимого тепла в 20 Гкал/ч. От старой котельной после отсечной также был Ду350. Думаю, что проектировщики не ошиблись диаметром. Проектировщики предлагают переложить на магистрали Ду250 на Ду300, но не могут точно сказать сколько метров и не могут обновить старую расчетную схему тс. На данный момент я склоняюсь, что перекладывать нужно до первых ответвлений, но как точнее рассчитать схему ?
Вернуться в начало страницы
 
+Ответить с цитированием данного сообщения

Добавить ответ в эту темуОткрыть тему
1 чел. читают эту тему (гостей: 1, скрытых пользователей: 0)
Пользователей: 0

 

Реклама
ООО «Арктика групп» ИНН: 7713634274 | erid 2VtzqvpbUMg




ООО «УНИСПЛИТ» ИНН: 6453155081 erid:2VtzqxNcYBM
Реклама: ООО «СЛ-ЛАЗЕР» ИНН 7727447267 | erid: 2VtzqvEDgM7

Реклама: ООО «Зет-Логист» ИНН 5401982392 | erid: 2Vtzqw44UH9

Последние сообщения Форума






RSS Текстовая версия Сейчас: 6.2.2026, 2:31
Политика ООО ИИП «АВОК-ПРЕСС» в отношении обработки персональных данных