отопление петлёй техельмана, негреет дадиатор |
|
|
|
|
6.11.2014, 23:29
|
Группа: New
Сообщений: 3
Регистрация: 6.11.2014
Пользователь №: 249994

|
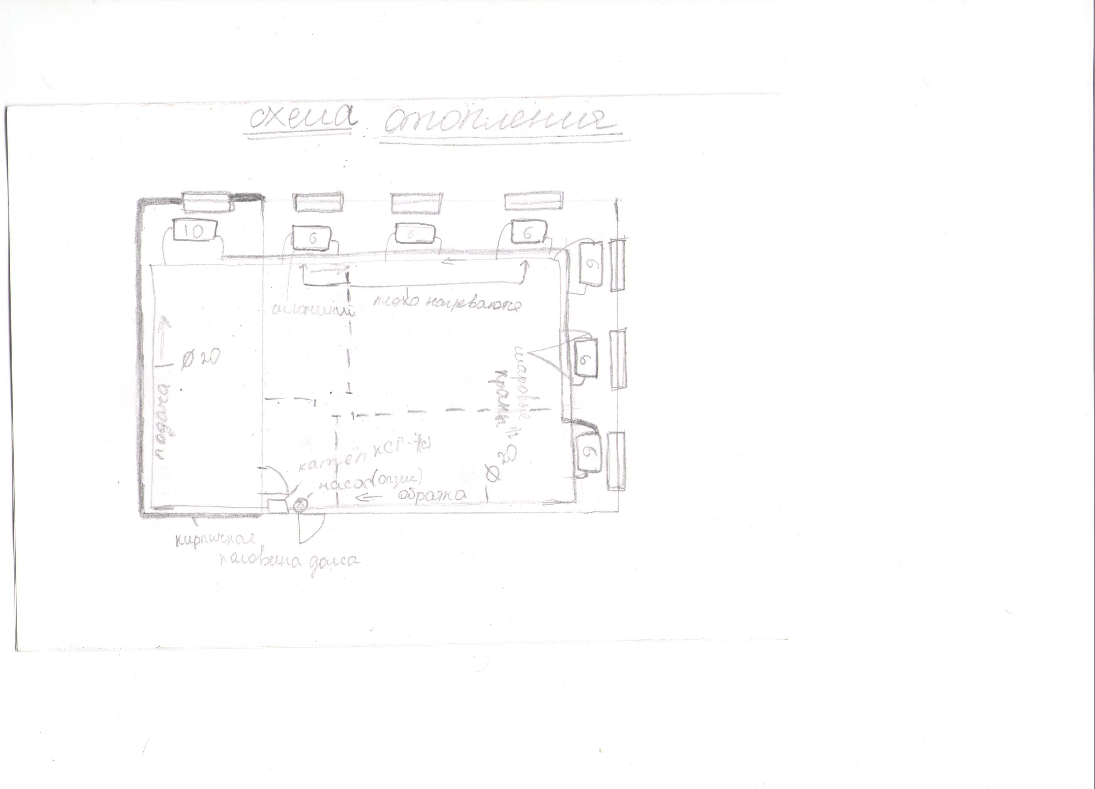
Нужна консультанция по отоплению. Дом 49кв. м. Котёл КСГ-7 (с). отопление радиаторное (алюминий) обратки и подача проведена полипропиленом с наружнем диаметром на 20. всего 7 радиаторов по 6 секций (планируется ещё 2 поставить) система спроектировано с петлёй тихельмана. В системе поставлен насос. Почему то непрогревается второй радиатор и и один на углу. в чём может быть причина? Могу ли я поставить ещё 2 радиатора по 6 сеций? Отопление делал сам первый раз. Прощу строго несудить.Ч итал много про уменьшение диаметров трубы от 32 до 20 к последнему радиатору.если буду менять то воспользоваться уменьшение диаметра или просто пустить цельную трубу?Приложил схему )))если можно её так назвать.
Эскизы прикрепленных изображений
|
|
|
|
|
|
3 страниц
1 2 3 >
|
 |
Ответов
(1 - 29)
|
|
7.11.2014, 0:20
|
Группа: Участники форума
Сообщений: 29
Регистрация: 24.8.2010
Из: Пермь
Пользователь №: 69477

|
А терерь можно все то же самое, но с диаметрами каждой трубы? И прочими миллиметрами...
|
|
|
|
|
|
|
|
7.11.2014, 0:44
|
Группа: New
Сообщений: 3
Регистрация: 6.11.2014
Пользователь №: 249994

|
Цитата(Onsyi @ 7.11.2014, 0:20)  А терерь можно все то же самое, но с диаметрами каждой трубы? И прочими миллиметрами... диамет всех труб включая подводку к радиатором выполнет полипропиленой трубой на 20 (внешний диаметр).внутренний диаметр 17мм
Сообщение отредактировал demien89 - 7.11.2014, 0:45
|
|
|
|
|
|
|
|
7.11.2014, 5:39
|
МОДЕРАТОР
Группа: Модераторы
Сообщений: 11040
Регистрация: 3.7.2004
Пользователь №: 32

|
Рег.арматура?
|
|
|
|
|
|
|
|
7.11.2014, 7:03
|
Группа: Участники форума
Сообщений: 5907
Регистрация: 12.10.2009
Из: Шантарск-Севастополь (пробегом)
Пользователь №: 39475

|
Цитата Почему то непрогревается второй радиатор и и один на углу. в чём может быть причина? Причина в том, что у этих радиаторов происходит переток теплоносителя из обратки в подающую. Возможность такого перетока - органический недостаток попутной системы при малом сопротивлении ОП.
|
|
|
|
|
|
|
|
7.11.2014, 8:37
|
Группа: Участники форума
Сообщений: 6646
Регистрация: 31.1.2010
Из: г. Изобильный
Пользователь №: 45516

|
Цитата(Татьяна Удальцова @ 7.11.2014, 7:03)  Причина в том, что у этих радиаторов происходит переток теплоносителя из обратки в подающую. Возможность такого перетока - органический недостаток попутной системы при малом сопротивлении ОП. Если рядом две тубы по которым течет вода в одном направлении, то их можно заменить одной трубой. Т.е. эта петля ничто иное как однотрубка выполненная двумя трубами. Думаю, что если обе подводки к радиатору выполнить снизу, то будет неважно где давление больше.
Сообщение отредактировал CNFHSQ - 7.11.2014, 8:37
|
|
|
|
|
|
|
|
7.11.2014, 8:55
|
Группа: Участники форума
Сообщений: 29
Регистрация: 24.8.2010
Из: Пермь
Пользователь №: 69477

|
В общем, однотрубка по прежнему рулит. )))
|
|
|
|
|
|
|
|
7.11.2014, 10:17
|
Группа: Участники форума
Сообщений: 5907
Регистрация: 12.10.2009
Из: Шантарск-Севастополь (пробегом)
Пользователь №: 39475

|
Цитата однотрубка выполненная двумя трубами. Открытие "космического" масштаба. Цитата Думаю, что если обе подводки к радиатору выполнить снизу, то будет неважно где давление больше Хоть снизу, хоть сверху, хоть наискосок - вода всегда протекает из точки с бОльшим давлением, в точку с меньшим давлением. В тупиковой системе давление в подающей всегда больше, и вода всегда идет в правильном направлении. Там могут быть проблемы с несбалансированностью начальных и конечных приборов - может протекать нерасчетное количество воды. Но всегда из подающей в обратку. Попутную систему делают "думая" что приборы будут "сами собой" сбалансированы. Но это только на первый взгляд, "логически рассуждая", кажется так. В реальных условиях как раз в попутной системе возможен "перехлест" пьезометра на отдельных участках внутри кольца. В учебниках об этом пишут, но учебники не читаем.
|
|
|
|
|
|
|
|
7.11.2014, 12:05
|
Группа: New
Сообщений: 3
Регистрация: 6.11.2014
Пользователь №: 249994

|
Цитата(LordN @ 7.11.2014, 5:39)  Рег.арматура? на радиаторах стоят шаровые краны.2 трубы идут по низу .подключение радиаторов паралельное.ВАРИАНТ:если заменить подачу на 32 а обратку сделать меньшим диаметром?
|
|
|
|
|
|
|
|
7.11.2014, 13:40
|
Группа: Участники форума
Сообщений: 6646
Регистрация: 31.1.2010
Из: г. Изобильный
Пользователь №: 45516

|
Цитата(Татьяна Удальцова @ 7.11.2014, 10:17)  . В реальных условиях как раз в попутной системе возможен "перехлест" пьезометра на отдельных участках внутри кольца. В учебниках об этом пишут, но учебники не читаем. Что, прям так и пишут ?
|
|
|
|
|
|
|
|
7.11.2014, 14:08
|
Группа: Участники форума
Сообщений: 6646
Регистрация: 31.1.2010
Из: г. Изобильный
Пользователь №: 45516

|
Как неуч набрал в поиске " перехлест пьезометра". Рядом с нашей темой высветилось, что "Ежу понятно , что никакого перехлеста в жизни быть не может" Вот и кому верить. А тоже форум теплотехников.
А ведь и правда, если "перехлест" то вода потечет вспять , но прибор будет теплый.
|
|
|
|
|
|
|
|
7.11.2014, 15:02
|
Группа: Участники форума
Сообщений: 10258
Регистрация: 8.3.2007
Пользователь №: 6446

|
Цитата(CNFHSQ @ 7.11.2014, 14:40)  Что, прям так и пишут ? Да. Иногда. Прямо пишут реже, чем пишут криво. Есть только потребители - радиаторы, конвекторы, калориферы и пр и трубы "туда и обратно". Всё остальное - адреса, жаргон типа, район, улица и номер дома, квартиры. Электричество движется от источника до потребителя и уже обратно к источнику по одному проводу (или по одному многожильному). Теплоснабжение (отопление и холодоснабжение, к примеру) - тоже всегда применяется одна труба. Так? Отопительный прибор для управления им, имеет обвязку и образует "узел". Как потребители электричества, так и потребители тепла и холода можно соединять последовательно в некую группу (стояк - столько их системе - столько и контуров) или параллельно - число контуров, которые надо "сбалансировать", равно число ОП. Контуры внутри стояков выравнивают (увязывают, создают им гидравлическое равенство) отдельно, а уж затем увязывают контуры стояков шайбами или балансировочными устройствами. Получается по факту все системы теплоснабжения всегда только " однотрубные". Различие только по способу подключения потребителей - последовательно или параллельно. Говорить двухтрубная система - значит бескорыстно врать. Так?  Системы отопления с попутным движением воды (система Тихельмана) . Иногда их удачно "путают" с бифилярными это когда прибор имеет независимых два хода по теплоносителю. По одному направлен горячий теплоноситель, по второму - возврат в ТП. Средняя температура потребителей равна. Системы отопления с попутным движением воды (система Тихельмана) - надо считать с вычислением давления в начале и в конце каждого участка. Потоки делятся в тройниках - давление и температура в этой точке деления одинаковы. Потоки в тройниках слияния подходят с разной температурой и давлением. Температура общая определяется как смесь двух расходов, а вот давление по приведенной схем в точках слияния от панели 2 и слияния панели 3, подвержено двойной корректировки за счет переброски расходов по принципу потели в левом полукольце всегда в натуре равны потерям в правом. Задача конструктора - предугадать фактическое потокораспределение в системе. То есть знать температуру и давление в конце каждого участка системы.
Сообщение отредактировал Kult_Ra - 7.11.2014, 15:08
|
|
|
|
|
|
|
|
7.11.2014, 15:08
|
Группа: Участники форума
Сообщений: 89
Регистрация: 4.5.2010
Из: Тула
Пользователь №: 55230

|
Слова"перехлест .."не нравится ,почитайте об "опрокидывании" циркуляции,причинах ее в СО.
|
|
|
|
|
|
|
|
7.11.2014, 15:25
|
Группа: Участники форума
Сообщений: 10258
Регистрация: 8.3.2007
Пользователь №: 6446

|
Цитата(Kult_Ra @ 7.11.2014, 16:02)  Да. Иногда. Прямо пишут реже, чем пишут криво.  Системы отопления с попутным движением воды (система Тихельмана) - надо считать с вычислением давления в начале и в конце каждого участка. Потоки делятся в тройниках - давление и температура в этой точке деления одинаковы. Потоки в тройниках слияния подходят с разной температурой и давлением. Температура общая определяется как смесь двух расходов, а вот давление по приведенной схем в точках слияния от панели 2 и слияния панели 3, подвержено двойной корректировки за счет переброски расходов по принципу потели в левом полукольце всегда в натуре равны потерям в правом. Задача конструктора - предугадать фактическое потокораспределение в системе. То есть знать температуру и давление в конце каждого участка системы. H 1=G 12 x S 1H 2=G 22 x S 2Автоматическое перераспределение расходов всегда формирует равенство H 1 = H 2Назови это факт "перехлестом" или "капризом" или "опрокидыванием" не суть. Всего лишь неправильный гидравлический расчёт полуколец. Мелочь. Так?
Сообщение отредактировал Kult_Ra - 7.11.2014, 15:28
|
|
|
|
|
|
|
|
7.11.2014, 15:35
|
Группа: Участники форума
Сообщений: 6646
Регистрация: 31.1.2010
Из: г. Изобильный
Пользователь №: 45516

|
Цитата(Kult_Ra @ 7.11.2014, 15:02)  Электричество движется от источника до потребителя и уже обратно к источнику по одному проводу (или по одному многожильному). Теплоснабжение (отопление и холодоснабжение, к примеру) - тоже всегда применяется одна труба. Так?
Задача конструктора - предугадать фактическое потокораспределение в системе. То есть знать температуру и давление в конце каждого участка системы. Законы гидравлики и электричества похожи. Сила тока и расход зависят от разности потенциалов и соответственно распологаемого напора. Если расхода нет и батарея холодная с чего решили что там перехлест или по научному опрокидывание циркуляции, ЕЕ, циркуляции нет совсем. Иногда любят любят у нас научного туману напустить.
|
|
|
|
|
|
|
|
7.11.2014, 16:32
|
Группа: Участники форума
Сообщений: 5907
Регистрация: 12.10.2009
Из: Шантарск-Севастополь (пробегом)
Пользователь №: 39475

|
Цитата Законы гидравлики и электричества похожи. Сила тока и расход зависят от разности потенциалов и соответственно распологаемого напора Похожи, вот только есть "мааленькая", но важная разница. В электрической сети ток прямо пропорционален разности потенциалов и потери напряжения по длине проводника линейные, а в гидравлических сетях потери напора находятся в квадратичной зависимости от расхода. Цитата Что, прям так и пишут ? Что, прям тяжело "азбуку" открыть? Или "Буратино продал азбуку за 4 сольдо"? Ну, поищите по форуму, я не так давно прикладывала картинки с демонстрацией эффекта.
|
|
|
|
|
|
|
|
7.11.2014, 17:13
|
Группа: Участники форума
Сообщений: 7297
Регистрация: 27.5.2007
Пользователь №: 8854

|
Цитата(Татьяна Удальцова @ 7.11.2014, 13:32)  Что, прям тяжело "азбуку" открыть? Или "Буратино продал азбуку за 4 сольдо"? Ну, поищите по форуму, я не так давно прикладывала картинки с демонстрацией эффекта. Нетрудно вовсе
Эскизы прикрепленных изображений
|
|
|
|
|
|
|
|
7.11.2014, 18:30
|
Группа: Участники форума
Сообщений: 5907
Регистрация: 12.10.2009
Из: Шантарск-Севастополь (пробегом)
Пользователь №: 39475

|
Забыла сразу написать про ещё одно важнейшее отличие электрической сети от теплоснабжения - в электрических сетях основные потери напряжения (внутри дома максимум 5%, обычно меньше) происходят в "абонентах", т.е. в лампочках, нагревательных приборах, обмотках. Это делает электрическую сеть устойчивой. Если происходит падение напряжения на вводе, то все "лампочки" реагируют примерно одинаково.
А гидравлические сети, как правило, неустойчивые. У них значительные "потери нпаряжения" (т.е. напора) именно в разводке. При колебаниях напора (а они неизбежны) расход в стояках (ОП) изменяется непропорционально. Кроме того используется ограниченная номенклатура диаметров труб. Да еще бестолковые "проектанты" стремятся "экономить" и делать "телескопы" где только возможно. И понятия не имеют о гидравлической устойчивости, которая даже выражается математически специальным критерием Г>20.
Хорошо, что электрики не додумываются менять сечения провода после каждой розетки или лампы. Ну, они же умные.
|
|
|
|
|
|
|
|
7.11.2014, 18:56
|
сам себе Sapiens
Группа: Участники форума
Сообщений: 11391
Регистрация: 21.5.2005
Из: г. Владимир
Пользователь №: 797

|
Цитата(Татьяна Удальцова @ 7.11.2014, 18:30)  Хорошо, что электрики не додумываются менять сечения провода после каждой розетки или лампы. Додумываются. Противодействует этому тот факт, что заниженная площадь поперечного сечения электропроводов приводит к их перегреву и сгоранию (в отличие от заниженного диаметра трубопроводов).
|
|
|
|
|
|
|
|
7.11.2014, 19:17
|
Группа: Участники форума
Сообщений: 6646
Регистрация: 31.1.2010
Из: г. Изобильный
Пользователь №: 45516

|
Цитата Ексаев Арсен Рудольфович
Re: RE: Выбор геониформационной системы.
« Ответ #34 : 10 Января 2014, 19:21:27 » Цитировать "В программных расчетных системах, "гуляющих" на Российском и постсоветском пространстве, в 99% решение данной задачи свелось к компьютерной интерпретации ручного "дедовского" расчета, основанного на сложении расчетных расходов потребителей по ходу сети с "засечкой перепадов". Безусловно, это также можно назвать "потокораспределением" - в итоге что-то и как-то действительно распределяется. Но, весь вопрос в практической применимости данного решения".
Олег Валерьевич, Вы маленько отстали от жизни и ломитесь в открытую дверь - ТАК, как Вы описали в цитируемом фрагменте, реальные сети уже очень много лет никто (из трех с половиной "гуляющих") не считает. Ну разве что в качестве первого приближения для последующей калибровки и уточнения гидравлических сопротивлений потребителей. Ежу же понятно, что никаких перехлестов пьезометра в жизни быть не может, ибо это означало бы отрицательное сопротивление абонентского ввода. Для проектных работ такой расчет еще как-то "прокатывает", но для эксплуатационщиков - никуда не годится. Ну что Вы так "неаккуратненько", ей богу...
Это так, в качестве ремарки на тему "тут весь мир идет не в ногу". В ногу, в ногу! И ваш подход к расчету ничем не отличается ни от "зулусного", ни от "ситиком-теплографного".
А в остальном все верно, было бы странно отрицать очевидное. Для пользователя задача сводится лишь к определению более вкусного для него фломастера из невеликого набора ))) http://www.rosteplo.ru/forum/7/6275/p20
Сообщение отредактировал CNFHSQ - 7.11.2014, 19:18
|
|
|
|
|
|
|
|
7.11.2014, 19:33
|
Группа: Участники форума
Сообщений: 6646
Регистрация: 31.1.2010
Из: г. Изобильный
Пользователь №: 45516

|
Цитата гидравлических сетях потери напора находятся в квадратичной зависимости от расхода Цитата(Kult_Ra @ 7.11.2014, 15:02)  Т.е. в красной точке у второго радиатора будет давление меньше или равно чем в синей точке у 3 го .
Сообщение отредактировал CNFHSQ - 7.11.2014, 19:52
|
|
|
|
|
|
|
|
7.11.2014, 20:14
|
МОДЕРАТОР
Группа: Модераторы
Сообщений: 11040
Регистрация: 3.7.2004
Пользователь №: 32

|
Цитата(Татьяна Удальцова @ 7.11.2014, 21:30)  Забыла сразу написать про ещё одно важнейшее отличие электрической сети от теплоснабжения ... в эл.сети, всегда, ну почти всегда, один единственный источник силы, побуждающей движение тока. в гидравлике источников может быть несколько. на ровном месте, как говорится. обычная гравитация. и про это почти никто, к моему удивлению, не знает.
|
|
|
|
|
|
|
|
7.11.2014, 21:57
|
Группа: Участники форума
Сообщений: 5907
Регистрация: 12.10.2009
Из: Шантарск-Севастополь (пробегом)
Пользователь №: 39475

|
Цитата(LordN @ 7.11.2014, 22:14)  в эл.сети, всегда, ну почти всегда, один единственный источник силы, побуждающей движение тока. в гидравлике источников может быть несколько. на ровном месте, как говорится. обычная гравитация. и про это почти никто, к моему удивлению, не знает. Или не знают или забывают. И удивляются, когда через верхние приборы двухтрубной вертикальной системы идет завышенный расход. И даже начинают подозревать, что кто-то поставил насос себе. А этот "насос" - гравитация. Эх, если бы тепловые сети и отопление действительно полностью работали "по закону Ома" - как бы всё было проще. Но они согласны только по закону Кирхгофа работать...
|
|
|
|
|
|
|
|
7.11.2014, 21:58
|
Группа: Участники форума
Сообщений: 4345
Регистрация: 10.3.2010
Из: Зеленоград
Пользователь №: 48108

|
Коллеги! Я бы все-таки отметил еще одно определяющее отличие электросетей от гидравлических. Это качественное отличие в скоростях "тока". У электриков это постоянная (?) величина и не зависит от сечения провода, а у гидравликов - переменная. Отсюда и основное: в формуле R=U/I нет составляющей скорости, а в гидравлике есть. Поэтому при всей смысловой похожести этих сетей расчеты разные. Про Тихельмана уже много писАлось. Чтоб не повторяться: суть проблемы, если она возникает, сводится не только к неправильному расчету (это очевидно), а в основном к жабозадавизму. Чтобы петля нормально работала надо минимизировать влияние подводящих трубопроводов и делать их как минимум на порядок больше, чем в двухтрубной (100500 раз говорили), а это дороже, муторней на монтаже и часто не влезает в подготовку пола при скрытой нижней подводке.
|
|
|
|
|
|
|
|
8.11.2014, 7:21
|
Группа: Участники форума
Сообщений: 5907
Регистрация: 12.10.2009
Из: Шантарск-Севастополь (пробегом)
Пользователь №: 39475

|
Цитата У электриков это постоянная (?) величина и не зависит от сечения провода, а у гидравликов - переменная. Отсюда и основное: в формуле R=U/I нет составляющей скорости, а в гидравлике есть. Конечно. К тому же еще электрический ток, обзываемый "направленное движение электронов" вроде как и не движение. Электроны только "перепихиваются" (ну, по нашему, по-бабьи) и вовсе не движутся со скоростью света. А средняя скорость упорядоченного движения электронов имеет значение в пределах 0,6–6 мм/c. Они просто передают энергию друг другу и кажется, что ток протекает мгновенно по всей длине. А жидкости и газы движутся по трубам физически.
|
|
|
|
|
|
|
|
8.11.2014, 7:35
|
Группа: Участники форума
Сообщений: 6646
Регистрация: 31.1.2010
Из: г. Изобильный
Пользователь №: 45516

|
Цитата(Татьяна Удальцова @ 8.11.2014, 7:21)  А жидкости и газы движутся по трубам физически.  Позтому они никогда не потекут от синей" точки 3 панели к красной у 2 панели.Даже если Вы это не бумаге докажете.
|
|
|
|
|
|
|
|
8.11.2014, 11:26
|
Группа: Участники форума
Сообщений: 7297
Регистрация: 27.5.2007
Пользователь №: 8854

|
Цитата(CNFHSQ @ 8.11.2014, 5:35)   Позтому они никогда не потекут от синей" точки 3 панели к красной у 2 панели.Даже если Вы это не бумаге докажете. Бабушке своей расскажите  Десятки случаев в практике, включая вертикальную однотрубку с нижней разводкой на двухэтажном комплексе, где стояки были подключены в разводящую попутку и трехярусную горизонтальную ветвь (спиоалью по этажам) где "долбанутый проектировщик также пронадеялся на "самобалансировку" 40 ОП на такой ветви. Такая "космическая спираль" во вновь построенном банке типовой серии попала под такую псевдоинженерную ловушку - между прочим. Переделывали в нескольких регионах.
|
|
|
|
|
|
|
|
8.11.2014, 11:41
|
сам себе Sapiens
Группа: Участники форума
Сообщений: 11391
Регистрация: 21.5.2005
Из: г. Владимир
Пользователь №: 797

|
Цитата(CNFHSQ @ 7.11.2014, 15:35)  Законы гидравлики и электричества похожи. Ну, да. Правила Кирхгофа... Цитата(CNFHSQ @ 7.11.2014, 15:35)  Если расхода нет и батарея холодная с чего решили что там перехлест или по научному опрокидывание циркуляции, ЕЕ, циркуляции нет совсем. Иногда любят любят у нас научного туману напустить. Несколько лет назад я показывал пример расчётного уменьшения расхода воды через средний отопительный прибор:
А "пересечение пьезометрических графиков" - это, наверное, более реально в вертикальной системе - сказывается гравитационная составляющая циркуляционного давления.
Сообщение отредактировал tiptop - 8.11.2014, 11:44
|
|
|
|
|
|
|
|
8.11.2014, 12:06
|
Группа: Участники форума
Сообщений: 5907
Регистрация: 12.10.2009
Из: Шантарск-Севастополь (пробегом)
Пользователь №: 39475

|
Цитата Позтому они никогда не потекут от синей" точки 3 панели к красной у 2 панели.Даже если Вы это не бумаге докажете. Для особо неграмотных и неверующих в который раз выкладываю наглядную картинку (пусть простят те, кому она надоела). Показаны "идеализированные" (как думают "проектанты") и реальные (как оно бывает на самом деле) пьезометрические графики тупиковой и попутной систем. На всех графиках напор по ходу теплоносителя уменьшается, как и должно быть. Но в попутной системе при некоторых сочетаниях потерь напора в разводке и в ОП, возможно превышение давления в обратке по сравнению с подающей. У таких ОП вода протекает из обратки в подающую, а потом уже через другие приборы возвращается в общую обратку. Или может быть равенство напоров, тогда вода никуда не течет, а просто заполняет ОП. Это бывает не всегда. Потому что "не все в деревне дураки". Для двух ОП не произойдет вообще. А чем больше ОП на ветке, тем вероятность опрокидывания циркуляции больше. И это часто происходит в действительности.
|
|
|
|
|
|
|
|
8.11.2014, 14:53
|
сам себе Sapiens
Группа: Участники форума
Сообщений: 11391
Регистрация: 21.5.2005
Из: г. Владимир
Пользователь №: 797

|
Цитата(Татьяна Удальцова @ 7.11.2014, 10:17)  В учебниках об этом пишут, но учебники не читаем. Цитата(Николай_Иванович @ 7.11.2014, 15:08)  Слова"перехлест .."не нравится ,почитайте об "опрокидывании" циркуляции,причинах ее в СО. Татьяна Удальцова, Николай_Иванович, испытатель, прошу, покажите, пожалуйста, такую страницу из учебника (про опрокидывание в горизонтальной двухтрубной). Цитата(Татьяна Удальцова @ 8.11.2014, 12:06)  в попутной системе при некоторых сочетаниях потерь напора в разводке и в ОП, возможно превышение давления в обратке по сравнению с подающей. Татьяна Удальцова, прошу, покажите, пожалуйста, пример с численными величинами "потерь напора в разводке и в ОП" (опрокидывание в горизонтальной двухтрубной).
|
|
|
|
|
|
1 чел. читают эту тему (гостей: 1, скрытых пользователей: 0)
Пользователей: 0
|
|
Реклама
ООО «Арктика групп» ИНН: 7713634274 | erid 2VtzqvpbUMg
ООО «УНИСПЛИТ» ИНН: 6453155081 erid:2Vtzqux2Ugf
Последние сообщения Форума
|