Помощь - Поиск - Пользователи - Календарь
Полная версия этой страницы: Система отопления с ЕЦ - есть вопросы
Диалог специалистов АВОК > ОБЩИЙ ФОРУМ > Отопление
Страницы: 1, 2
proton2008
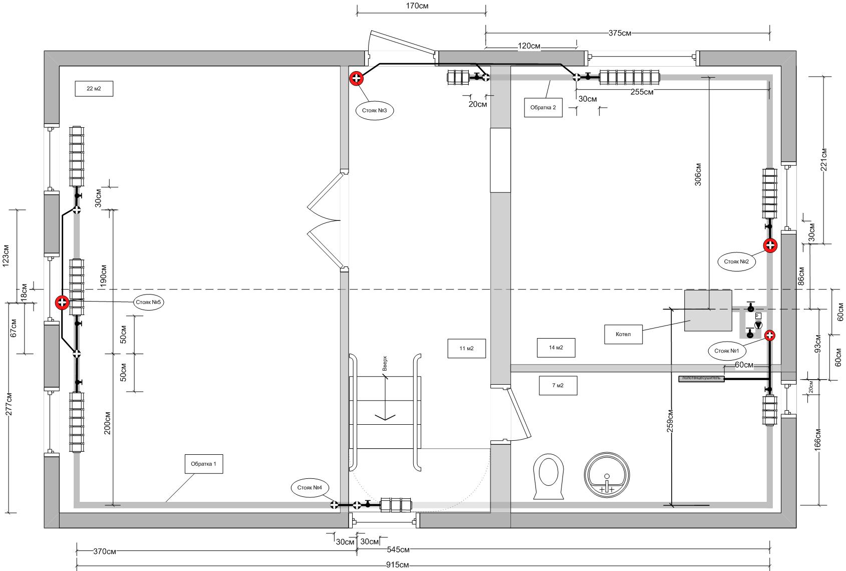
Собрали сруб, поставили сверху 2-й этаж (полноценный потолок 2,26 м), при планировке схемы отопления, хочется не показывать через весь дом подающую магистраль, и обвязываться трубами тоже. Как вариант однотрубка, тупиковая, ОБЯЗАТЕЛЬНО и только с ЕЦ!!! частые перебои с электричеством, газа нету - планируется лет через 3-4-5.. smile.gif) (как вариант твердотопливный котел, температура воды 85 - 65, запас по мощности около 5 кВт - если учесть его кпд 0,8 - то чуть больше 1 кВт); чердак холодный, на чердаке будет установлен открытый расширительный бак (без перелива, но соединен с магистралью для медленной циркуляции воды в нем)+ (будет в утепленной конструкции). А вот магистраль? её на чердаке придется утеплять.? На сколько это негативно отразится на ЕЦ. Стояк будет обязательно утеплен в "скорлупе". По предварительным расчетам.... трубы: 32 в минимуме, в основном 40 и 50.... как вариант было предложено использовать чешский сшитый армированный полипропилен (скорее всего "STABILA"). Обвязку обратки возле котла сделать из металла... там же установить фильтр и насос (насос если и будет использоваться то крайне редко). Стояк? металл? или полипропилен? Ориентировочно диаметр стояка 70 (диаметр выходного фланца котла DN70). В общем по трем рисункам я думаю конструкция дома понятная. Горизонтальные разводки (в зале на первом этаже и над входной дверью будут находиться за фальшпотолком - т.е. будут виды только вертикальные участки - эстетика - удел женщин - но просьба есть просьба). На магистралях в аксонометрии указана тепловая нагрузка, на ОП тепловая нагрузка помещений. В туалете на 2-м этаже батареи ставить не предусмотрено, думается полотенцесушитель прогреет санузел. Для уклонов в трубах (обратках) место есть - я заложил уклон: 5мм на 1 м, уклон в подающей магистрали сколько надо столько и возьмем - подкрышное пространство в 1,4 м позволяет. Дайте пожалуйста дельные советы. Подскажите "узкие моменты".
Нажмите для просмотра прикрепленного файла
Нажмите для просмотра прикрепленного файла
Нажмите для просмотра прикрепленного файла
HeatServ
По поводу "без насоса"... есть довольно изящное решение, ЕЦ конечно хорошо, но и ахтунги случаются, трёрдотопливники не любят низкой обратки, есть риск получить сернокислую точку росы и убить котёл за год-другой.
Решение: поставить насос в байпасе к стояку, а на сам стояк параллельно насосу обычный муфтовый клапан со снятой пружиной, люди пробовали, работает, отключения не страшны. Материал стояка - только сталь. Или медь.
гоша
Цитата(HeatServ @ 4.4.2011, 9:42) *
Решение: поставить насос в байпасе к стояку, а на сам стояк параллельно насосу обычный муфтовый клапан со снятой пружиной, люди пробовали, работает, отключения не страшны. Материал стояка - только сталь. Или медь.


согласен. я смонтировал несколько систем таким образом . работают нормально , только клапан всегда горизонтально и двухтрубка .момент его открывания хорошо чуствуется по температуре главного стояка .если собираетесь зашивать магистрали то организуйте им вентиляцию. однобокое подключение радиаторов мне не нравиться , еще при однотрубке !!!! если Вы выполнили гидравлический расчет ( сомневаюсь ) то Вам видней . лично я считаю что на первом этаже будет холодно . конденсат в котле гарантирован поскольку дельта ситемы будет велико . минимальный уклон 10мм на метр. трубы на чердаке - большие потери , изолируйте ОЧЕНЬ хорошо , хотя тут палка о двух концах - хорошая изоляция это сохранение тепла но неизбежно ведет к ухудшению циркуляции .в идеале магистрали должны быть в помещении - и тепло не пропадает и для циркуляции лучше . про полипропилен в такой системе лучше забыть . для гидравлического расчета берется не центр котла а точка расположенная на 250 мм выше колосников . так ,, на глазок " радиаторы маловаты для таких помещений , особенно угловой санузел .
испытатель
Что-то намудрили немного. Упростить нельзя? Первое - раздвоение обратки для гравитационной системы - применяют только если ветка длинная и уклон вызывает "задирание" начала обратки. Второе - раздвоение стояков, тоже из этой оперы. И третье, почему на одних стояках ОП с полным протоком, на других с частичным затеканием. Да и рег. краны на гравитационке - излишний "прибамбас" Проще и однообразнее - надежнее. Пустите верхнюю раздачу одну с уклоном, по периметру и обратку соответственно. Со всеми - согласен.
kharlanchuk
Цитата
открытый расширительный бак (без перелива, но соединен с магистралью для медленной циркуляции воды в нем)

это как? Сверху дырка и пусть на потолок если что льётся? В каком месте он получится открытый?
msi
Цитата(proton2008 @ 4.4.2011, 10:10) *
(как вариант твердотопливный котел, температура воды 85 - 65, запас по мощности около 5 кВт - если учесть его кпд 0,8 - то чуть больше 1 кВт)

Рассчитывайте на 70 С. к.п.д. у твердотопливного 80%???
Маловата кольчужка.
HeatServ
Цитата(kharlanchuk @ 5.4.2011, 7:23) *
это как? Сверху дырка и пусть на потолок если что льётся? В каком месте он получится открытый?
Да неужели не видели без переливной трубы? В наших джамахириях везде без этой трубы обходятся, ставится наверху бак-бидон и всего делов долить раз в год.
гоша
Цитата(HeatServ @ 5.4.2011, 12:27) *
Да неужели не видели без переливной трубы? В наших джамахириях везде без этой трубы обходятся, ставится наверху бак-бидон и всего делов долить раз в год.


а еще без этой трубки надежнее . был такой случай : хозяева регулярно заправляли систему из водопровода . в один прекрасный вечер стали заправлять систему , ждут , ждут а из переливной трубы вода все не идет . решили что в водопроводе давление низкое ( не все могут судить о давлении по струе из крана ) оставили кран открытым , до полночи наблюдали и так и не дождались заполнения системы . топить побоялись, легли спать в холоде . на следующий день встали в пять утра , открыли кран и опять ждут . часов в восемь терпение лопнуло - позвонили мне . оказалось что эта переливная труба от частого заполнения и (наверное ) от испарений из расширителя забилась льдом ....
гоша
Цитата(испытатель @ 4.4.2011, 21:28) *
Что-то намудрили немного. Упростить нельзя? Первое - раздвоение обратки для гравитационной системы - применяют только если ветка длинная и уклон вызывает "задирание" начала обратки. Второе - раздвоение стояков, тоже из этой оперы. И третье, почему на одних стояках ОП с полным протоком, на других с частичным затеканием. Да и рег. краны на гравитационке - излишний "прибамбас"


НЕ согласен . первое - разветвление позволяет снизить нагрузку на участки близкие к котлу поэтому диаметр труб уменьшается . второе - из той же оперы. третье - подключение радиаторов нужно полностью ,, пережевать ". краны - совсем не лишние . иногда возникает необходимость какую то комнату не топить . советую систему сделать полностью двухтрубной . пример стояка в файле .
Anatol
Цитата(гоша @ 5.4.2011, 19:14) *
а еще без этой трубки надежнее . оказалось что эта переливная труба от частого заполнения и (наверное ) от испарений из расширителя забилась льдом ....

Труб должно быть две ,контрольная и переливная!
Может не надежнее ,а экономичней -труб меньше используются?
Может этот случай единственный ,может отводов кучу имела это сигнальная труба .
Я родился в доме в котором была система с ЕЦ все как обычно ,бак на чердаке , труба сигнальная прямая под уклон ( всегда сухая)и не каких проблем!
А даже удобно если подпитать ,не лазать на чердак ведрами ,я понимаю если водоснабжение нет!
Вообщим я за трубы, конечно если система не в экстремальных условиях (за бортом -50....) там жизнь подсказывает по другому.
Нажмите для просмотра прикрепленного файла
proton2008
Почитал... вот добавляю:
1. С хорошим и надежным насосом + н-ое кол-во кранов, так практически можно запустить ЛЮБУЮ схему отопления. А нужно 100% ЕЦ.
2. Гидравлику считал, по ЭКСЕЛЕВСКОЙ проге. Диаметры труб "порадовали". Сейчас гидравлику считаю самостоятельно. Оказывается так интересно.
3. По поводу конденсата в котле и ... дельта схемы... можно чуть-чуть поподробнее и по проще... без сленга спеца... я постараюсь понять.
4. Вот внутренняя начинка котла. Где у него "на глазок 250 мм от колесника..." будет "центр котла"? Нажмите для просмотра прикрепленного файла
выбор котла обусловлен возможностью топить угольком, а при хорошем раскладе (когда подведут газ) для этого котла - производитель продает газовые форсунки. Вот и весь выбор. нельзя забывать и о надежности этих чугунных монстров, гарантия производителя - 40 лет.
5. Радиаторы отопления будут алюминиевые, мощность одной секции 199 Вт. На схемах они показаны "художественно", и не отражают количества секций. Расчет такой: при 95 градусах воды - секция отдает 199 Вт, значит при 65 градусах - будет всего 136 Вт отдавать. При тепловой нагрузке на 1 ОП в 1505 Вт - понадобится (1505/136) 11 секций.
6. Раздвоение обратки,,,,,, раздвоение стояков,,,,, и что страшного? Что здесь для ЕЦ будет "смертельно"? Меня больше волнует вопрос "утепления подающей магистрали" на холодном чердаке. Я писал, 2м 26 см высота потолка... представьте под потолком с уклоном магистраль.... по середине дома на втором этаже, и рост человека... (завтра выложу фотки - чтоб понятнее было что к чему).
7. По аксонометрии видно только один ОП проточного соединения, он возле входной двери на первом этаже, там просто возле дверей нет места установить "как все остальные" - вот и все соображения.
8. Краны возле ОП предназначены исключительно для временного отключения тех помещений которые отапливать "на всю катушку" не будет надобности. Если учитывать такой процесс в ОП как "затекаемость" (не смотря на то, что одна труба будет перекрыта) то они все равно будут теплыми...
9. С самого начала, хотелось сделать двухтрубку, но эстетика и конструктивные особенности дома не все позволяют делать "красиво" для заказчика. Труб будет больше, но система будет устойчивей... это я понимаю... пока заказчик стоит на эстетике.
10. Вопрос по расширительном бачке - скорее всего поставлю закрытого мембранного типа, рядом с нижней обвязкой котла. Ну да, вся система будет под внутренним давлением с одной стороны мембрана, с другой - неугомонная вода... а может и не воду туда закачать? Какие будут на сей счет советы?


вот котел (там что-то я не так вставил)
Нажмите для просмотра прикрепленного файла
Anatol
Цитата(proton2008 @ 5.4.2011, 22:10) *
3. По поводу конденсата в котле и ... дельта схемы... можно чуть-чуть поподробнее и по проще... без сленга спеца... я постараюсь понять.

Важно:
Во избежание оседания капель воды в котле, другими словами – конденсации, которая, в
свою очередь, может привести к образованию коррозии, температура обратной линии не
должна опускаться ниже 60°С, а подающей – ниже 70°С.
Точка росы продуктов сгорания составляет при-
мерно 65 °C, поэтому их температура на поверх-
ностях нагрева не должна быть ниже 65 °C.
Возникновение конденсата в загрузочной камере
указывает на повышенное содержание влаги в
топливе. В таких случаях конденсат может возник-
нуть при температуре котловой воды выше 65 °C.
Аналогичные причины способствуют смолообразование-
ванию (низкая мощность, пониженная температура),
смола образуется также при неправильно отрегули-
рованном процесе горения – при недостатке воздуха
для сгорания.

Цитата(proton2008 @ 5.4.2011, 22:10) *
10. Вопрос по расширительном бачке - скорее всего поставлю закрытого мембранного типа, рядом с нижней обвязкой котла. Ну да, вся система будет под внутренним давлением с одной стороны мембрана, с другой - неугомонная вода...

Тогда система получается ЗАКРЫТАЯ с ЕЦ !

HeatServ
Цитата(proton2008 @ 5.4.2011, 23:10) *
... а может и не воду туда закачать? Какие будут на сей счет советы?
Воду, только забодяжить этиленгликолем. Процентов 40. Залил и забыл.
yastreb
Схема для ЕЦ не совсем удачная. Регулировку радиаторов при твёрдотопливном котле всё равно никто производить не будет, так как температура в доме всегда нестабильная, зря вы поставили запорную арматуру на радиаторах. Последний стояк прогреваться не будет, так как предпоследний служит как перемычка. Вам не нужны замыкающие участки особенно на первом этаже. Лучше всего разветвление сделать на чердаке (два кольца), на каждую комнату свой стояк (ДУ 25 не меньше), подводка к радиаторам (ДУ 25 не меньше), замыкающие участки можно сделать только на втором этаже ДУ 20. Тогда циркуляция у вас будет приличная. И для такой схемы трубы только стальные. А про обратку на такой котёл вам говорят дело, температура должна быть не меньше 65 град., в противном случае теплообменник котла долго не прослужит. Поставьте котёл лучше тогда самодельный.
ЁЖик
Цитата(yastreb @ 9.4.2011, 23:05) *
. А про обратку на такой котёл вам говорят дело, температура должна быть не меньше 65 град., в противном случае теплообменник котла долго не прослужит. Поставьте котёл лучше тогда самодельный.

УЖЕ 65 ?
prochor
Нет, я таки вами тащусь.А как же паровое отопление - скажем 105*.Конешно кочегар был пьян , но отопление ЕЦ и чугунный котел убить - эт надо уметь.
proton2008
Большое спасибо всем кто уделяет время на просмотр моей темки и дает свои советы. Вот опять усе пересчитал, прочитал парочку умных книжек... Взвесил все за и против... Пришел в принципе к ... очевидным выводам... Опустить котел ниже пола первого этажа некуда... Подающая магистраль ОДНОЗНАЧНО будет на холодном чердаке в утепленном кожухе (я так и не услышал здесь мнений на этот вопрос). Там же будет расположен расширительный бак открытого типа - в утепленной конструкции. Емкость системы оклоло 200 литров - 4,5 % расширения (даже пусть 5) = 10 литров - поставлю алюминиевый на 20 - проверить в нем уровень - нет проблем. От установки насоса откажусь вовсе, а зачем он? При его включении - вся схема ЕЦ будет разбалансирована. Для насоса нужно обязательно ставить на каждом стояке регулировочный кран - думаю, что хозяин вряд ли готов перенастраивать систему в зависимости от наличия или отсутствия электричества. На выходных днях - напряжение в линии упало так сильно что потух телевизор... В общем без насоса, чтоб руки не искали выключатель.. (На несколько лет вперед - переделок не ожидается, а уж если приспичит... слить воду и перетряхнуть "обвязку" - лично мне труда не составит). Однотрубка не потянет... развесовка воды (холодная - горячая) конечно создаст ЕЦ, но она практически не прокачает данную схему до нужных температур на ОП. Основное требование "ТОЛЬКО ЕЦ" - необходимо соблюсти. Переделал схему под двухтрубную... немножко изменились некоторые узлы системы. Калибры труб пересчитываю под их "реальное" внутреннее сечение, получается, что по наружному диаметру трубы будут не меньше 40 мм (туда-сюда: +-; зависит от того, кто эти трубы делает). Оказывается, что с 2004 года - изготовители труб, практически могут не придерживаться старых гостов... ну естественно... делаем выводы господа. В общем то меня уже ничего не пугает и не расстраивает. Выбираю "продавца" - цены; беру справочные данные из его прайса на трубы, потом подставляю "реальные значения в расчетные формулы". когда усе пересчитаю, выложу сюда свои расчеты. Проблема с трубами в другом - в методах и способах их соединений... сварку на чердак вовсе не хочется тащить - опасно... резьбы - сгоны... в общем у кого какие будут советы и предложения? может медные... только такого калибра..... придется еще поискать...
Вот добавляю обещанные для наглядности фотки дома.
Переделанная аксонометрия - для двухтрубки
Нажмите для просмотра прикрепленного файла
вот на чем стоит весь дом с верандой
Нажмите для просмотра прикрепленного файла
так дом выглядит сегодня
Нажмите для просмотра прикрепленного файла
вид со стороны фронтонов и я на крыше
Нажмите для просмотра прикрепленного файла
вид чердака
Нажмите для просмотра прикрепленного файла
это выход на второй этаж, здесь еще не стоят перегородки, как видно, под потолком... тянуть подающую магистраль - негде
Нажмите для просмотра прикрепленного файла
с лестницы вид на выход на балкон и вход на чердак
Нажмите для просмотра прикрепленного файла
зал - первый этаж - самые дальние отопительные приборы...
Нажмите для просмотра прикрепленного файла
кухня (в углу - место для котла)
Нажмите для просмотра прикрепленного файла
вот такие фотки... для наглядности
Буду признателен и благодарен всем, кто напишет сюда свои мнения и советы.
ЁЖик
Цитата(proton2008 @ 15.4.2011, 0:02) *
...
Вот опять усе пересчитал, прочитал парочку умных книжек... Взвесил все за и против... Пришел в принципе к ... очевидным выводам...
...
...
...
Основное требование "ТОЛЬКО ЕЦ" - необходимо соблюсти. Переделал схему под двухтрубную... немножко изменились некоторые узлы системы.

Интересная логика...
Попробовал бы - перечитать книжки...
proton2008
"ЁЖик"у (в том числе)

Тем, кто посещает эту тему (смотрите внимательно ее название) за советы и ответы на вопросы большое спасибо. Я не волшебник, я только учусь. Вот списки литературы, которые найдены в инете и скачанны мною для ее изучения.
Нажмите для просмотра прикрепленного файла
Нажмите для просмотра прикрепленного файла
Может чего-то здесь и нету, но то что я нашел, вполне достаточно для изучения данной темы.
Я не совсем понял совета от ЁЖика.... У Вас лично есть дельный совет? Вы смотрите на мой проект и знаете в каком месте и что нужно исправить? Странный Вы человек. Хотите подсказать - подсказывайте, а советовать учиться не надо. Я лично испытываю колоссальный аппетит к знаниям, утоляю как могу. Я не прошу Вас рассчитать мне мой проект, я прошу советов и замечаний. Вы же все здесь мастера, а я тут только учусь.
Уважаемые форумчане! Будьте так добры, или пишите по существу, или не пишите вовсе. я здесь выкладываюсь в надеждах услышать дельное.

"ГОЛОДНЫМ РЫБАКАМ НЕ ДАВАЙТЕ ПИЩИ, ДАЙТЕ ИМ НЕВОД,,,"
Бойко
Если говорить о надежности "сдел и забыл".... чем "Сталинка" плоха?


Нажмите для просмотра прикрепленного файла

"Дубово" равные кольца... вне зависимости от текущей мощности котла
JJJJ
Цитата(Бойко @ 15.4.2011, 10:49) *
Если говорить о надежности "сдел и забыл".... чем "Сталинка" плоха?


Нажмите для просмотра прикрепленного файла

"Дубово" равные кольца... вне зависимости от текущей мощности котла

+1
Кто то выше писал о таком решении, ну т.е. подающую и обратку гнать одной трубой, без раздвоения потоков. встречных потоков тоже не должно быть. Просто и надежно. Иначе краны на приборах обязательны, будут проблемы и с пуском и с прогревом и даже с воздухом могут быть.
Lyko
Цитата(proton2008 @ 14.4.2011, 23:02) *
Подающая магистраль ОДНОЗНАЧНО будет на холодном чердаке в утепленном кожухе (я так и не услышал здесь мнений на этот вопрос). Там же будет расположен расширительный бак открытого типа - в утепленной конструкции. Емкость системы оклоло 200 литров - 4,5 % расширения (даже пусть 5) = 10 литров - поставлю алюминиевый на 20 - проверить в нем уровень - нет проблем.
Последний вариант схемы - рабочий. Сохранен основной недостаток/особенность вертикальной двухтрубки - разность цирк. давлений в кольцах приборов разных по высоте этажей. Исходя из этого, улучшить положение нижних можно, не снижая диаметра стояка подачи после врезки верхних приборов. Утепление подающей трубы даст заметное ухудшение циркуляции, снижая разность температур между гл. стояком и стояками приборов. Компенсироваться это снижение будет вынуждено охлаждением в стояках - замедлением циркуляции для создания нужного перепада температур. Повредит это, опять же приборам 1-го этажа. На схеме не указаны размеры дома и выбранные диаметры разводки. Отсюда - общие рекомендации. Т.к. основным препятствием для созданного (схемой разводки) давления циркуляции являются гидравлические сопротивления, не лишним будет увеличить соотв. диаметры, особенно верхней разводки и обвязки нижних приборов сверх гидравлически просчитанных/необходимых. Заодно это поднимет и центр охлаждения СО.

Цитата
От установки насоса откажусь вовсе, а зачем он? При его включении - вся схема ЕЦ будет разбалансирована. Для насоса нужно обязательно ставить на каждом стояке регулировочный кран -
Насос, возможно, и будет невостребован, но балансировка по приборам потребуется. Во первых, между приборами первого и второго этажей, во вторых, из-за разнообразия обвязки приборов, а след-но, неравных условий обеспечения расходом. И в-третьих - для регулировки "по потребности".

Цитата
Однотрубка не потянет... развесовка воды (холодная - горячая) конечно создаст ЕЦ, но она практически не прокачает данную схему до нужных температур на ОП.
Вертикальная однотрубка, с приборами на одном стояке, уравновесит ц. давление по стоякам, а затекание в приборы будет зависеть только от схемы их обвязки и расстояния от стояка. С такой схемой как у вас - с разной конфигурацией возможных 1-трубных стояков это может быть и неоправдано..
Горизонтальная однотрубка с перемычками, возможно, будет нежелательна из-за труб по периметру обоих этажей, но (без размеров на схеме) вполне обеспечивает два этажа по 100м.кв. .. без мыслей о насосе.
Цитата
Проблема с трубами в другом - в методах и способах их соединений... сварку на чердак вовсе не хочется тащить - опасно... резьбы - сгоны... в общем у кого какие будут советы и предложения? может медные... только такого калибра..... придется еще поискать...
Нет такой проблемы. Достаточно найти людей, делавших "это" не один раз и в более "пожароопасных" домах..
Lyko
Цитата(Бойко @ 15.4.2011, 12:49) *
Если говорить о надежности "сдел и забыл".... чем "Сталинка" плоха?
Нажмите для просмотра прикрепленного файла
Кольца циркуляции приборов на разных этажах имеют разное цирк. давление, вызванное неодинаковой высотой центров их охлаждения над центром нагрева котла. По схеме, визуально, ц. охл. нижних приборов, даже учитывая охлаждение стояков, будет ниже ц. нагрева котла. А след- но, невозможна циркуляция через них...
ЁЖик
Цитата(proton2008 @ 15.4.2011, 12:01) *
"ЁЖик"у (в том числе)

Тем, кто посещает эту тему (смотрите внимательно ее название) за советы и ответы на вопросы большое спасибо. Я не волшебник, я только учусь. Вот списки литературы, которые найдены в инете и скачанны мною для ее изучения.
Нажмите для просмотра прикрепленного файла
Нажмите для просмотра прикрепленного файла
Может чего-то здесь и нету, но то что я нашел, вполне достаточно для изучения данной темы.
Я не совсем понял совета от ЁЖика.... У Вас лично есть дельный совет? Вы смотрите на мой проект и знаете в каком месте и что нужно исправить? Странный Вы человек. Хотите подсказать - подсказывайте, а советовать учиться не надо. Я лично испытываю колоссальный аппетит к знаниям, утоляю как могу. Я не прошу Вас рассчитать мне мой проект, я прошу советов и замечаний. Вы же все здесь мастера, а я тут только учусь.
Уважаемые форумчане! Будьте так добры, или пишите по существу, или не пишите вовсе. я здесь выкладываюсь в надеждах услышать дельное.

"ГОЛОДНЫМ РЫБАКАМ НЕ ДАВАЙТЕ ПИЩИ, ДАЙТЕ ИМ НЕВОД,,,"

О! Спасибо за личное обращение. Спасибо.

По существу:
1) Если только учитесь, то берясь за системы с ЕЦ, ни в коем случае не собирайте библиотеки. Это не приведёт к добру laugh.gif ...
2) Вернитесь к схеме в пост1. Потому как, при некоторых своих недостатках - она рабочая, в отличии от схемы в пост 17.
Надеюсь - конкретно ответил.
Успехов smile.gif
инж323
Цитата(Lyko @ 15.4.2011, 22:13) *
По схеме, визуально, ц. охл. нижних приборов, даже учитывая охлаждение стояков, будет ниже ц. нагрева котла. А след- но, невозможна циркуляция через них...

С визуализацией на схеме не так все и просто. Посмотрите внимательно.
нахождение ОП ниже котла не отменяет и не запрещает циркуляции через ОП, хоть и на этом участке естественное давление возникающее имеет отрицательный знак. Но циркуляция может быть вполне достаточной. Хватило б располагаемого давления.
yastreb
Я не пойму, зачем вам на двухтрубке ЕЦ последовательные соединения, зачем запорная арматура на подаче к радиаторам, если и ставить, то только на обратке, из каких соображений отказались от закрытой системы? Судя по аксонометрии, вам лучше сделать два кольца, чтобы стояки были прямыми., первые стояки сделать ниже диаметром, чем последнии. А подающии линии наоборот в конце заужать - чтобы увеличить давление. На два кольца система будет гораздо лучше работать.
Бойко
Цитата(Lyko @ 15.4.2011, 22:13) *
Кольца циркуляции приборов на разных этажах имеют разное цирк. давление, 3их охлаждения над центром нагрева котла. По схеме, визуально, ц. охл. нижних приборов, даже учитывая охлаждение стояков, будет ниже ц. нагрева котла. А след- но, невозможна циркуляция через них...


"Сталинка" обязана своим названием тем временам когда ошибаться было нельзя.
Жестко равные расходы все отличия приборов и стояков убираются "самовыравниванием" СО. Не тебует перенастройки при работе от насоса.

"...вызванное неодинаковой высотой центров..." большая часть напора в этой гравитационной системе формируется в подающих вертикальном и горизонтальном стояке/"лежаке" 80-90%.

Прекрасно "тянет" и отопительные приборы/теплые полы ниже "центра нагрева" (подвал/цоколь).
Это легко Вам проверить расчетом...

Нажмите для просмотра прикрепленного файла

Нажмите для просмотра прикрепленного файла

Лучшее враг хорошего (ц)

Ну не без деталей... rolleyes.gif
Lyko
Цитата(Бойко @ 16.4.2011, 15:44) *
"Сталинка" обязана своим названием тем временам когда ошибаться было нельзя.
..Сочувствую автору установки радиаторов ниже котла.((


Цитата
Жестко равные расходы все отличия приборов и стояков убираются "самовыравниванием" СО. Не тебует перенастройки при работе от насоса."...вызванное неодинаковой высотой центров..." большая часть напора в этой гравитационной системе формируется в подающих вертикальном и горизонтальном стояке/"лежаке" 80-90%.
"Самовыравнивание" (саморегуляция) СО с ЕЦ выражается в "стремлении" теплоносителя установиться в СО на одном уровне - согласно плотности/температуре (уд. весу). Котел вместе с охлаждением СО непрерывно создают эту разницу, порождая циркуляцию.
Циркуляционное давление определяется, помимо температурной разности, высотой "пресловутых" столбов нагретой и охлажденной. Сами эти "столбы" являются высотой центра охлаждения ц. кольца (с радиатором поэтажно, по вашей схеме). от центра нагрева котла. Обратите внимание на "высоту" нижнего радиатора относительно ц.котла - величина отрицательная Если идти расчетом с учетом охлаждения во всех элементах ц.кольца т.е. в "лежаках" и стояках, интегрированный центр охлаждения ц.кольца нижнего радиатора приподнимется. Насколько? На величину, пропорциональную "участию" в охлаждении/циркуляции труб кольца относительно радиатора. Вы уверены, что это 80-90%? Упрощенно - общий центр охлаждения цирк. кольца определится, как центр тяжести тела неправильной формы (контрур циркуляции) ...где вместо "веса" тела выступает обьем воды в контуре кольца. То бишь, разводка будет участвовать в подьеме ц.охл. ц. кольца нижних радиаторов пропорционально содержащейся в ней воды (т/н, если особые требования к терминологии) Можете посчитать и вы...
Цитата
Прекрасно "тянет" и отопительные приборы/теплые полы ниже "центра нагрева" (подвал/цоколь).
Это легко Вам проверить расчетом...

Нажмите для просмотра прикрепленного файла
...Если по расчету нижние радиаторы будут работать, как верхние, выбросьте расчет. - Даже если сверх разумного увеличить диаметр (обьем) труб подводки к нижнему радиатору, и поднять т.о. центр охлаждения его кольца циркуляции до уровня ц. котла (нагрева), кольца с лучшей циркуляцией (2-3 уровней) "забьют" его гидравликой (бОльшее давл. циркуляции) ...Если одновременно не увеличить диаметр общей обр. на врезке в нее этого рад-ра.

Кроме методики расчета "по давлению" (ф-лу вы привели) и "по температуре" существует и предложенная - по центрам нагрева/охлаждения. Предложена, как самая наглядная и применимая практически. Равное для всех радиатов давление по данной схеме (3 уровня) можно создать однотрубными стояками для них. Однако и в этом случае, их общий центр охлаждения окажется значительно ниже. Для нормальной циркуляции в обоих случаях котел должен находиться в подвале. Или необходима установка насоса.
proton2008
а я тут вот опять все по новой,,,,,,,, пере-пере-пере... в общем наверное будет вот так. Даже подсчитал гидравлику... не хватат естественного циркуляционного давления, дальние ОП первого этажа будут непрогретыми. Нагретая вода по трубам "будет ходить неохотно", а заставить ее не чем...
Вспомнил СО дома у матушки. Там от котла под потолок стояк, потом он вниз опускается и далее идет под наклоном по всей хате. от нее питаются все чугунные батареи (подключены по диагонали: ввод верх слева, выход внизу справа), потом все выходы собирает обратка - и в котел... трубы стальные... кран возле котла чтобы слить систему... самое интересное, на Украине в период летних дождей холодно и очень влажно - парочку полен в котел - и в хате ташкент - работает до сих пор... Значит и у меня должна заработать вот эта схема.
Придется пожертвовать местом для труб по периметру. На первом этаже это не совсем мешает - там и по первоначальным вариантам обратка лежит, а вот на втором... А ШО РОБЫТЬ? ТРЭБА ТАК ТРЭБА...
Но вопросики остались:
во-первых ВОЗДУХ в конце "колец" - как его собирать?
во-вторых в душевой на первом этаже нужен полотенце-сушитель, куда и как его теперь подключить... (там на рисунке есть ОП с мощностью 1377 Вт - это и есть душевая)
в-третьих полотенце-сушитель на втором этаже... (в санузле - там ОП с мощностью 188 Вт) ... куда и как?
в-четвертых - в качестве труб есть большое желание поставить трубы ХПВХ (эти трубы склеиваются специальным клеем)- не боятся ультрафиолета - наименьший коэффициент линейного расширения - максимальная рабочая температура 95 - потеря геометрии с 118 - цена -чуть выше пропиленовых - правда я не знаю расхода клея - его цена не очень большая, но смотря какое количество... - какие на сей счет мнения - кто-нибудь пользовался? практика есть? (нашел в Москве немецкие - но раньше - лет 8 назад у нас в Туле продавали АМЕРИКОССКИЕ трубы и клей)


Вот собственно аксонометрия горизонтальной однотрубной на два кольца:
Нажмите для просмотра прикрепленного файла

Самая требовательная и капризная система, это система с ЕЦ, но если ее по уму сделать и запустить - головной боли не будет никогда. С насосами можно запустить практически любую СО, а если в нее интегрировать термостатические датчики да еще и датчики температуры в помещениях, да ко всему котел с микроконтроллерным управлением форсунок и т. и т.п. ... вот токо жизнь такая не предсказуемая... Хочется быть уверенным, когда я не дома, то дети и жена не замерзнут только по-тому, что где-то что-то почему-то отключится... (как практика подсказывает - иногда на долго....).
инж323
Lyko
Посмотрите еще раз на чертеж. Только внимательно. Попробуйте проследить один стояк прям от верхней магистрали и четко до нижней и не спутаться в ветвях этих магистралей. Как посмотрите, так и .. собственно сами скажете что чертеж просто вообще не корректен. И уже не до высоты расположения котла будет.
на чертеже иили вертикальные стояки должны идти по диагонали через дом, от фасада к фасаду, либо магистрали рисовал второкласник, не освоивший объемного рисунка( и это для второклассника серьезный прорыв в пространственное восприятие и не до смеха тут) коробка.
А ежели все приборы первого этажа будут ниже котла, то тут собственно сильно считать нужно, ибо располагаемого совсем мала мала останется.Но может работать.
Lyko
Цитата(инж323 @ 16.4.2011, 20:44) *
Lyko
Посмотрите еще раз на чертеж. Только внимательно. Попробуйте проследить один стояк прям от верхней магистрали и четко до нижней и не спутаться в ветвях этих магистралей. Как посмотрите, так и .. собственно сами скажете что чертеж просто вообще не корректен. И уже не до высоты расположения котла будет.
на чертеже иили вертикальные стояки должны идти по диагонали через дом, от фасада к фасаду, либо магистрали рисовал второкласник, не освоивший объемного рисунка( и это для второклассника серьезный прорыв в пространственное восприятие и не до смеха тут) коробка.
А ежели все приборы первого этажа будут ниже котла, то тут собственно сильно считать нужно, ибо располагаемого совсем мала мала останется.Но может работать.
Уже ..много чертежей. По "сталинской" 2-трубке - любыми расчетами радиаторы ниже котла этажом греть не будут. Вообще - никак. (Схема, видимо, точно - из ГУЛага). Две первые схемы автора - рабочие. Корявые, но принцип соблюден. Будут работать с соотв. раскладкой диаметров. Третья (однотрубка) - прекрасно себя показала (с нюансами).
Lyko
Цитата(proton2008 @ 16.4.2011, 20:35) *
а я тут вот опять все по новой,,,,,,,, пере-пере-пере... в общем наверное будет вот так. Даже подсчитал гидравлику... не хватат естественного циркуляционного давления, дальние ОП первого этажа будут непрогретыми. Нагретая вода по трубам "будет ходить неохотно", а заставить ее не чем...
Стальные трубы Ду50 на каждое крыло. К радиаторам- Ду20. Сделать пропиленом с малой т/проводностью и проходом - вольному воля..



Цитата
Вспомнил СО дома у матушки. .... трубы стальные... кран - и в хате ташкент - работает до сих пор... Значит и у меня должна заработать вот эта схема.
С насосом заработает. Если без стальных труб.

Цитата
во-первых ВОЗДУХ в конце "колец" - как его собирать?
Он сам будет собираться в радиаторах. Уклоны - символические.


Цитата
во-вторых в душевой на первом этаже нужен полотенце-сушитель, куда и как его теперь подключить... (там на рисунке есть ОП с мощностью 1377 Вт - это и есть душевая)
в-третьих полотенце-сушитель на втором этаже... (в санузле - там ОП с мощностью 188 Вт) ... куда и как?
Обычно на ГВС.

Цитата
в-четвертых - в качестве труб есть большое желание поставить трубы ХПВХ (эти трубы склеиваются специальным клеем)- не боятся ультрафиолета - наименьший коэффициент линейного расширения - максимальная рабочая температура 95 -
95* - надолго ли? Обычно 75 для пластика.


Цитата
Самая требовательная и капризная система, это система с ЕЦ, но если ее по уму сделать и запустить - головной боли не будет никогда. С насосами можно запустить практически любую СО, а если в нее интегрировать термостатические датчики да еще и датчики температуры в помещениях, да ко всему котел с микроконтроллерным управлением форсунок и т. и т.п. ... вот токо жизнь такая не предсказуемая... Хочется быть уверенным, когда я не дома, то дети и жена не замерзнут только по-тому, что где-то что-то почему-то отключится..
. Мысли правильные. Решения сомнительные.
proton2008
вот добавлю рисунок с повысотными отметками между котлом и батареей (самая последняя) на 1 этаже, там самый высокий подъем обратки. Вот только центр нагрева я тут отсчитываю чисто из геометрии выходов... а в литературе говорится "от колосников..."---- в общем центры ОП на 1 этаже НЕ НА УРОВНЕ центра нагрева котла, а чуть выше... но уж точно не ниже...
Нажмите для просмотра прикрепленного файла
Lyko
Цитата(proton2008 @ 16.4.2011, 22:27) *
вот добавлю рисунок с повысотными отметками между котлом и батареей (самая последняя) на 1 этаже, там самый высокий подъем обратки. Вот только центр нагрева я тут отсчитываю чисто из геометрии выходов... а в литературе говорится "от колосников..."---- в общем центры ОП на 1 этаже НЕ НА УРОВНЕ центра нагрева котла, а чуть выше... но уж точно не ниже...
В вашей 2-трубке вам незачем беспокоиться о центре батареи. Котел и ОП находятся но одном этаже. И именно в таком варианте повышение ц. охл. кольца циркуляции радиатора достигается за счет высоты подающей трубы. Обычный и почти единственный (+ заглубление котла) способ улучшить циркуляцию в 1-этажном доме старой постройки. У вас же высота верхней подающей линии значительно больше, чем в 1-этажном доме. Остается не загубить такое давление узким диаметром (сопротивлением) и слабой теплоотдачей разводки/стояков, создающей перепад температур. Так что, куда ни кинь, ПП - только для насоса, если речь о достаточной эффективности гравит. СО.

..В литературе говорится еще о "центре топки". Имеется в виду ..средняя по температуре точка между Т*входа и выхода котла.
("скачкообразного" изменения температуры в котле). И где ее обозначить - видимо, имеются расхождения.


msi
Цитата(Lyko @ 15.4.2011, 22:13) *
Кольца циркуляции приборов на разных этажах имеют разное цирк. давление, вызванное неодинаковой высотой центров их охлаждения над центром нагрева котла. По схеме, визуально, ц. охл. нижних приборов, даже учитывая охлаждение стояков, будет ниже ц. нагрева котла. А след- но, невозможна циркуляция через них...

Если в десятках тысяч домов десятки лет работают однотрубки с АГВ в качестве котла, хотя, по-вашему, работать они не могут, - вам следует задуматься.
Ведь там все приборы расположены ниже котлового змеевика.
Lyko
Цитата(msi @ 16.4.2011, 23:36) *
Если в десятках тысяч домов десятки лет работают однотрубки с АГВ в качестве котла, хотя, по-вашему, работать они не могут, - вам следует задуматься.
Ведь там все приборы расположены ниже котлового змеевика.
Вынуждет уточнить. Все сентенции относительно низкого расположения приборов (п.31) относятся к "сталинке" - 2-трубке из сообщ. N20 (!). Где нижние приборы расположены .".этажом ниже" (3м.?) котла. Даже в популярных рассуждениях в инете существует "норма" по расположению приборов - 3м. выше котла. Реально необходимые перепады - значительно ниже.

Относительно 2-трубки (именно они работают в десятках тысяч домов ..десятки лет) с АГВ и радиаторами "почти на одном уровне" с котлом - ответил в п.34 данной темы.
Дубль:

...В вашей 2-трубке вам незачем беспокоиться о центре батареи. Котел и ОП находятся но одном этаже. И именно в таком варианте повышение ц. охл. кольца циркуляции радиатора достигается за счет высоты подающей трубы. Обычный и почти единственный (+ заглубление котла) способ улучшить циркуляцию в 1-этажном доме старой постройки.

Применение однотрубки в инд. домостроении стало возможным ..с появлением у "населения" 2-3 уровневых домов, высота которых позволяет поднять ц. охлаждения основного кольца (2-х колец) в разЫ, по сравнению с ..одноэтажными. Яркий пример - последняя однотрубная схема у автора темы.
ЁЖик
Двухтрубки... Однотрубки... Десятки тысяч домов... Масло маслянное...

В тех десятках тысяч домов (квартир), разве теплоноситель попадает в прибор, с температурой - равной подаче котла?
Разве там нет перетопов под потолком? Разве там "тепловая горизонталь" стояка совпадает с "геометрической горизонталью" отопительного прибора или котла?

Первую схему делать. И всё. Не зря в первой схеме, дальний стояк делится на два - ПОСЛЕ радиатора второго этажа. Придумавший ту схему - знал, что делал. В отличии от "начертАвшего" её. ИМХО.
инж323
Цитата(Lyko @ 17.4.2011, 1:48) *
Вынуждет уточнить. Все сентенции относительно низкого расположения приборов (п.31) относятся к "сталинке" - 2-трубке из сообщ. N20 (!). Где нижние приборы расположены .".этажом ниже" (3м.?) котла. Даже в популярных рассуждениях в инете существует "норма" по расположению приборов - 3м. выше котла. Реально необходимые перепады - значительно ниже.

Может все таки посмотрите именно этот рисунок и уточнитесь- как вы определили, что там что то выши или ниже? И более о том и не говорить что б.
А вместо чтения популярных прений в инете откроете учебник какого нибудь автора(тут на форуме в библиотеке их полно) и прочтете, что ваше утверждение несколько преувеличено.
Бойко
Цитата(ЁЖик @ 17.4.2011, 2:37) *
Двухтрубки... Однотрубки... Десятки тысяч домов... Масло маслянное...

.... разве теплоноситель попадает в прибор, с температурой - равной подаче котла...


Часто применяется технический прием.... труба 1" с "краником" байпасом от котлового стояка вдоль верхнего "лежака" туда где охлаждение теплоносителя вызывает проблемы.... rolleyes.gif (он на рисунке помечен)...

В "Сталинке" НЕТ "дальнего" стояка - все стояки равноудалены (по сопротивлению).

Конечно есть "цена" надежности - дубовости......

Инж! Ну не нашел я в инете другой схемы "сталинки"... смысл там ясен.... но сам рисовать не буду... rolleyes.gif .
инж323
так и не к самой сталинке и не квашим пояснениям вопросы. Просто непонятка в рисунке выявила у чела неверные представления. что и само по себе не может так же говорить о том, что его результатыот работы с СОс ЕЦ печальны. Только претензии к пояснениям и использование неточностей в рисунке в качестве аргумента. Угробить можно любую систему на любом здании, как расчетом, так и монтажом, так и пользованием, но и всю совокупность и каждый этап неправильно толковать,но в свою пользу. Задача то обратная. В известные условия вставить систему , которая решит нужные впоросы и снять при этом возможность условий возникновения неработы этой системы.
msi
Цитата(Бойко @ 17.4.2011, 12:29) *
Часто применяется технический прием.... труба 1" с "краником" байпасом от котлового стояка вдоль верхнего "лежака" туда где охлаждение теплоносителя вызывает проблемы.... rolleyes.gif (он на рисунке помечен)...

В "Сталинке" НЕТ "дальнего" стояка - все стояки равноудалены (по сопротивлению).

Конечно есть "цена" надежности - дубовости......

Инж! Ну не нашел я в инете другой схемы "сталинки"... смысл там ясен.... но сам рисовать не буду... rolleyes.gif .

Однотрубка с верхней разводкой подающей магистрали и спутной нижней разводкой обратной магистрали. С постоянной величиной потерь в циркуляционных контурах.
В учебниках Сканави и Махова описаны, но их наши сантехники не читают.
proton2008
Благодарю всем за советы и замечания. Открытая тема перешла на 3-тью страницу. Это не оправдано. Тем более, что сейчас моя тема - превращается в поле ... мудрых ... и правильных. Моя схема не самый трудный вариант, а по тому - есть другие участники форума с вопросами, им тоже нужно помочь... советом.
Считаю, что тему на некоторое время надо охладить. Я определился с проектом, заказчик согласен (самое главное). Думается мне, что летом ее точно запущу, вот там и посмотрим - в действии.
Я не специалист, грузиться мелочами не буду. Форум - полезное изобретение. Можно пообщаться с разными людьми разных "континентов". А в общем, я понял то, что сколько специалистов - столько и мнений. Но теория без практики мертва. Мне показали рабочие проекты, так там накуралесено, что моим удивлениям не было предела, но схемы были рабочие, при желании можно было поехать на адрес и посмотреть, хозяева не против. Я отказался. Поверив на слово.
Поразительно то, что на практике - все чаще и чаще применяют насосы, а по тому исполнители не считаются ни с гидравликой ни с теплопотерями и не заморачиваются "мелочами" - красиво? уже хорошо = главное срубить бабла - и свалить.
Еще раз, спасибо всем!
инж323
Летом, с ЕЦ ? А вот может и не выйдет. Не охладятся так сильно приборы и ЕЦ нехватит на преодоление мест с отрицательным знаком ест. давления и не будет циркуляции.Но без мест с отр. цтркуляцией тянет она летом тяжко- не убедительно для демонстрации хозяину, что мол все пучком и отдавай денег за работу.Хоть и осенью эта же система весьма душевно отпахивать будет и демонстрация будет явно в пользу работавшему над системой.
Lyko
Цитата(инж323 @ 17.4.2011, 9:51) *
Может все таки посмотрите именно этот рисунок и уточнитесь- как вы определили, что там что то выши или ниже? И более о том и не говорить что б.
А вместо чтения популярных прений в инете откроете учебник какого нибудь автора(тут на форуме в библиотеке их полно) и прочтете, что ваше утверждение несколько преувеличено.
Посмотрел внимательно, да, перепутаны места врезки обратных стояков в магистраль. ..Что не помешало опознать вертик. 2-трубку. Опять же с радиаторами в подвале..)) По вашему совету "открыл учебник какого-нибудь автора" (им оказался ув. тов. Сканави А.Н.). И что же вижу? ..Один в один - мое сообщение N23 в этой теме..)). (розовым) Да еще и с правильным рисунком "сталинки" и, слава богу, без радиаторов в подвале... И с формулами для подсчета давления в каждом кольце!
Не знаю, что и думать...
Цитата(инж323 @ 17.4.2011, 20:05) *
Летом, с ЕЦ ? А вот может и не выйдет. Не охладятся так сильно приборы и ЕЦ нехватит на преодоление мест с отрицательным знаком ест. давления и не будет циркуляции.Но без мест с отр. цтркуляцией тянет она летом тяжко- не убедительно для демонстрации хозяину, что мол все пучком и отдавай денег за работу.Хоть и осенью эта же система весьма душевно отпахивать будет и демонстрация будет явно в пользу работавшему над системой.
Как ни странно, сдача "обьектов" происходит обычно летом.. Сам процесс: Запуск отопления с доведением Т* до 80-85* часа за 2-3. До состояния "бани". Регулировка побатарейно. Предложение заказчику прислониться "пятой точкой" к самой "холодной" - последней батарее гориз. однотрубки, с условием - усидит минуту - часть "мани бэк". Минуту никто не выдерживает, однако, после этого процесс передачи "гонорара" идет уже на мажорной ноте...
инж323
Цитата(Lyko @ 15.4.2011, 22:13) *
По схеме, визуально, ц. охл. нижних приборов, даже учитывая охлаждение стояков, будет ниже ц. нагрева котла. А след- но, невозможна циркуляция через них...

Найдите это у Сканави и таки читайте внимательно. Уже несколько удивляет ваше чуть ли не преднамеренное нежелание читать что написано, а проглатывая значимые вещи спорить ни о чем.
Как и с третьей попытки наконец то рассмотреть и увидеть в схеме явные графические ошибки.Но считать , что и котел там правильно" по отметке" нарисован и "делая" эту схему "нерабочей".
Lyko
Цитата(инж323 @ 17.4.2011, 22:18) *
Найдите это у Сканави и таки читайте внимательно. Уже несколько удивляет ваше чуть ли не преднамеренное нежелание читать что написано, а проглатывая значимые вещи спорить ни о чем.
Как и с третьей попытки наконец то рассмотреть и увидеть в схеме явные графические ошибки.Но считать , что и котел там правильно" по отметке" нарисован и "делая" эту схему "нерабочей".
Не нашел у тов. Сканави варианта с центром охлаждения цирк. кольца ниже ц.нагрева (котла). Не могли бы указать такой вариант работы отопления, возможно у других авторов? И развеять мои заблуждения?
инж323
Сканави А.Н.
"Конструирование и расчет систем водяного и воздушного отопления" СИ. 1983 г. глава V1.4, рис V1.28 сам текст поясняющий рисунок на стр. 148.
Есть и в других,но вы похоже не знаете , что искать надо.
Lyko
Цитата(инж323 @ 17.4.2011, 23:01) *
Сканави А.Н.
"Конструирование и расчет систем водяного и воздушного отопления" СИ. 1983 г. глава V1.4, рис V1.28 сам текст поясняющий рисунок на стр. 148.
Есть и в других,но вы похоже не знаете , что искать надо.
Что искать - достаточно точно сформулировал постом выше. У тов. Сканави в 2002 году уже было только это:

(Что также совпадает с п.N34 моего сообщения:
Котел и ОП находятся но одном этаже. И именно в таком варианте повышение ц. охл. кольца циркуляции радиатора достигается за счет высоты подающей трубы. Обычный и почти единственный (+ заглубление котла) способ улучшить циркуляцию в 1-этажном доме старой постройки.
msi
Цитата(proton2008 @ 17.4.2011, 20:57) *
Благодарю всем за советы и замечания. Открытая тема перешла на 3-тью страницу. Это не оправдано. Тем более, что сейчас моя тема - превращается в поле ... мудрых ... и правильных. Моя схема не самый трудный вариант, а по тому - есть другие участники форума с вопросами, им тоже нужно помочь... советом.
Считаю, что тему на некоторое время надо охладить. Я определился с проектом, заказчик согласен (самое главное). Думается мне, что летом ее точно запущу, вот там и посмотрим - в действии.
Я не специалист, грузиться мелочами не буду. Форум - полезное изобретение. Можно пообщаться с разными людьми разных "континентов". А в общем, я понял то, что сколько специалистов - столько и мнений. Но теория без практики мертва. Мне показали рабочие проекты, так там накуралесено, что моим удивлениям не было предела, но схемы были рабочие, при желании можно было поехать на адрес и посмотреть, хозяева не против. Я отказался. Поверив на слово.
Поразительно то, что на практике - все чаще и чаще применяют насосы, а по тому исполнители не считаются ни с гидравликой ни с теплопотерями и не заморачиваются "мелочами" - красиво? уже хорошо = главное срубить бабла - и свалить.
Еще раз, спасибо всем!

Вы знаете, чтобы заставить систему отопления (любую!) совсем не работать, - нужно постараться.
Пока есть нагрев, охлаждение и контур.
Бойко
Цитата(Lyko @ 17.4.2011, 23:27) *
Не нашел у тов. Сканави варианта с центром охлаждения цирк. кольца ниже ц.нагрева (котла). Не могли бы указать такой вариант работы отопления, возможно у других авторов? И развеять мои заблуждения?


Правильно! И не найдете. Но Вас в этом и не убеждали. Говорили не про центр охлаждения контура, а про прибор отопления ... привели формулу...

Если прибор отопления и часть обратки находится ниже центра нагрева.... его напор вычитается из напора кольца (учитывается со знаком "-"). Иногда такие обратки изолируют.... Если из 100 отнять 20 = 80 (напор все одно положительный).
Для просмотра полной версии этой страницы, пожалуйста, пройдите по ссылке.
Форум IP.Board © 2001-2026 IPS, Inc.