Цитата(MihaChe @ 16.5.2018, 16:26)

Исходных данных для ответа на этот вопрос не достаточно.
Для нормального гидравлического расчета нужно знать температурные параметры теплоносителя, рабочую точку насоса (расход и напор), мощность каждого отопительного прибора. Также нужна достаточно подробная и точная схема системы отопления, с указанием длин и внутренних диаметров всех участков трубопровода.
Только собрав все эти данные, можно посчитать гидравлику и достаточно точно ответить на вопрос - прокачает ли имеющийся насос проектируемую систему отопления.
Кроме того стоит задуматься о том, какова будет реальная экономия от заужения диаметра. Возможно не стоит рисковать и обрекать себя на покупку нового, более мощного насоса.
Я так понимаю прокачать можно всё что угодно, все зависеть будет от насоса, который сможет преодолеть гидравлическое сопротивление системы и обеспечить необходимую скорость потока , и при этом чтоб радиаторы грели нормально (на всю свою мощность) нужно обеспечить достаточный объём воды (скорость потока) проходящий через эти радиаторы, а это будет зависеть от диаметра труб (чем больше тем меньше требуется скорость потока). Я понял что чем меньше диаметр трубы , нам необходимо выше скорость потока , а чем выше скорость потока тем выше гидравлическое сопротивление.
Я так пологая человек который занимается отоплением, ему уже на "глаз" можно определить будет работать такая разводка или нет (я имею ввиду простую, как у меня).
Я видел расчеты что 25 ППр может при скорости потока 0.6 м/с может передать 8кВт тепла.
Если поможете разобраться буду очень благодарен.
Цитата(lovial @ 17.5.2018, 11:45)

Как зачинщик локального холиварчика по поводу полипропилена поясню свою позицию.
1. Топикстартер указывает прокладку труб в стяжке, что прямо запрещено производителем полипропиленовых труб - доступ к местам соединения труб и фитингов должен быть, в стяжке его обеспечить не получится.
2. По поводу температуры. Да, при регулировке температуры (качественное регулирование) в зоне высоких температур труба будет работать не очень долго. Но качественное регулирование в частном жилье бывает нечасто (смесительные узлы, погодная автоматика - штука недешевая, если у человека нет денег на нормальную трубу - на подобные навороты тем более не будет). То есть чаще всего автоматикой работает сам пользователь - крутит ручку температуры на навесном котле. А для более-менее подобия ее надо крутить несколько раз в сутки, кто-то будет это делать? К ночи подымать градусов на 5, к утру снижать? Вряд ли... В начале похолодания поднимет на максимум, с потеплением снизит градусов на 10-15...
Ну и надо понимать, что срок службы трубы при определенных температурах рассчитывается по довольно сложной формуле. Как правило, производитель выдает результат в виде "при 80 - 2 года, при 70 - 7 лет, при 60 - 15" и т.д., в итоге "набирается" аж по 50 лет. Тут надо понимать, что, условно, 2 часа при температуре 95 - это минус год при температуре 80 (подчеркиваю - условно, точно надо считать), или минус 20 лет при температуре 40...
3. Срок службы полипропилена ОЧЕНЬ СИЛЬНО зависит от давления в трубе. То есть то, что в принципе пойдет для частника (давление в системе индивидуального дома не выше 3 атм), категорически не годится в многоэтажках, особенно на нижних этажах.
4. Пластики имеют очень высокий коэффициент температурного удлинения. По сравнению с металлом - примерно в 7 раз выше. И в случае полипропилена (который идет прямыми кусками, в отличие о, например, полиэтилена, идущего в бухтах и укладываемого зигзагами, чтобы туба могла "играть" внутри защитной гофры) при нагреве либо имеем "пузо" при открытой прокладке, либо трубу "жмет" продольно в стяжке. И жмет сильно, радиаторы, подключенные полипропиленом из пола по диагонали, аж перекашивает...
Вы не правы ППр выбрал не из экономии. (тут много не сэкономишь). Поясню дом строю сам (нравится) делаю все сам.
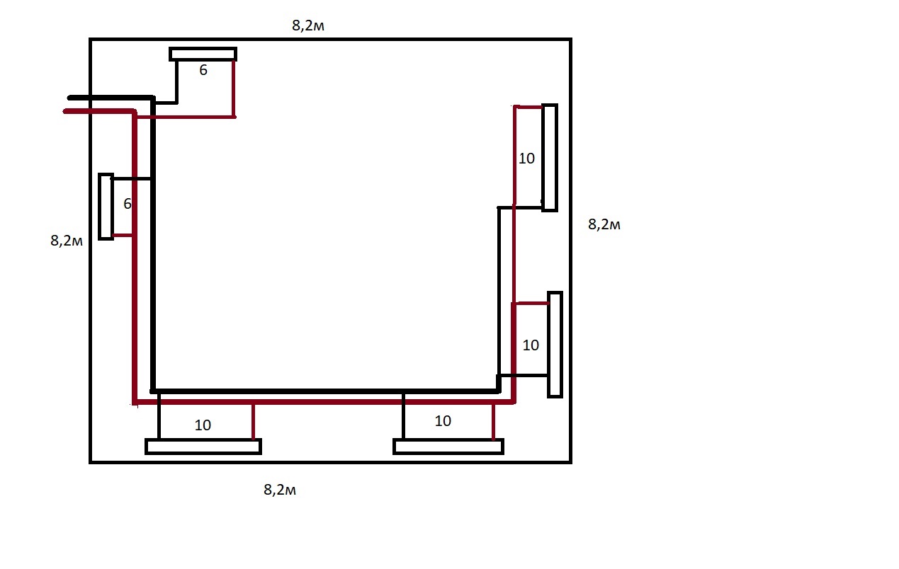
Поясню, у меня первый этаж с ТП будет (трубы купил PEX EVOH VALTEK) (рассчитал теплопотери дома) и ТП должно хватить с запасом на первый этаж). Далее много лазил смотрел, вообщем решил еще радиаторы поставить на первом этаже (больше для межсезонья так как инерционность полов большая ну и другие минусы есть для меня.)
Какой выбор был у меня металлопластик ( минусы для меня, считаю менее надёжным соединения его в стяжке). Коллекторную разводку не хочу для радиаторов. Ну и что мне выбрать? Реально ни одного примера не нашёл чтоб полипропилен потёк в стяжке, так что всё это домыслы и игра конкурентов (надо же чтоб метталопластик кто тот покупал).
Ну и если случится такой казус что полипропилен потечёт в стяжке, долбить я её не буду, максимум что я сделаю разводку с наружи (не обеднею). Меня сейчас больше вопрос интересует, на трубу с внутр диаметром 17мм сколько можно повешать радиаторов или по другому какую тепловую мощность точно можно по ним передать при скорости теплоносителя 0.6м с