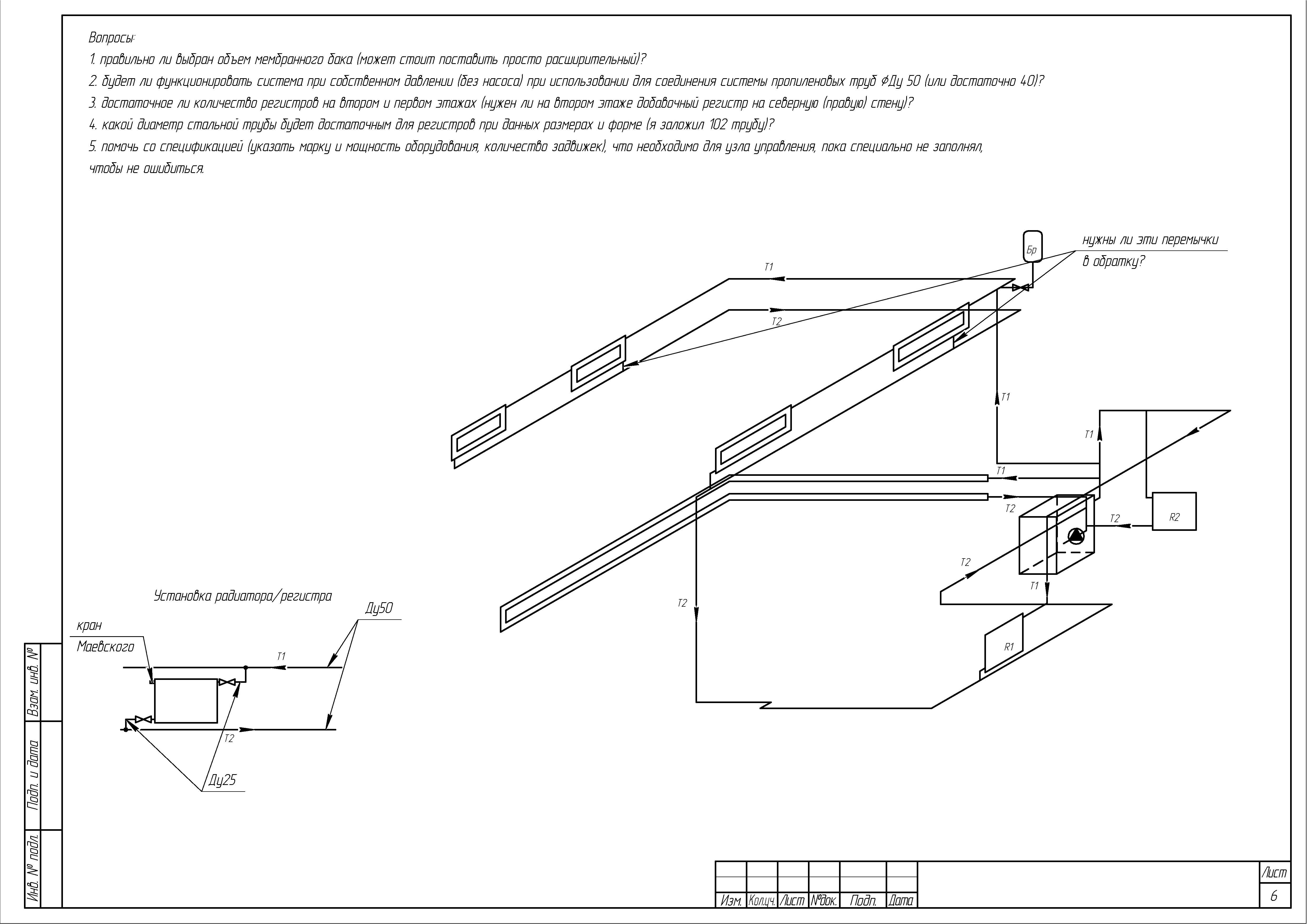
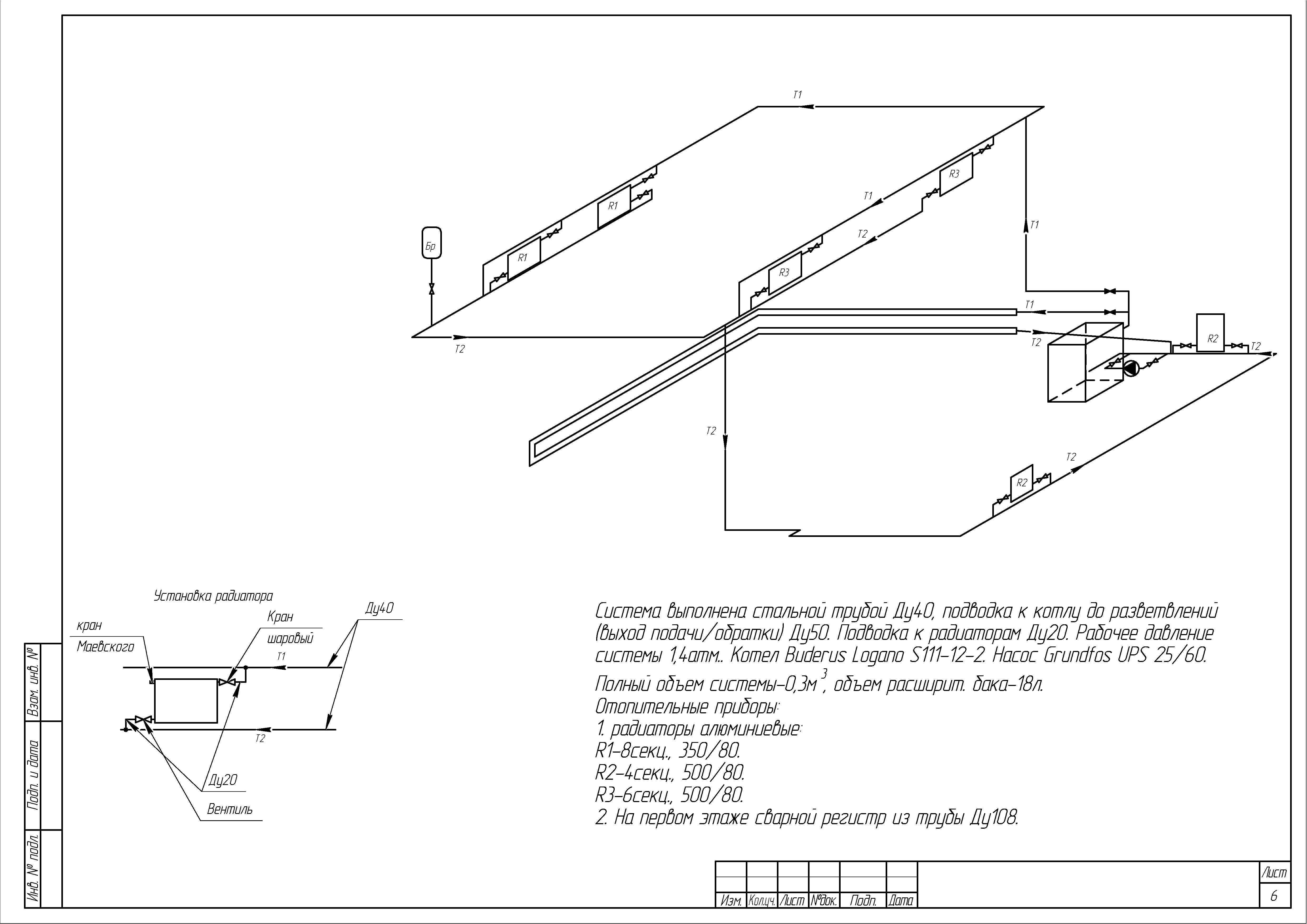
Цитата(ESP @ 18.10.2012, 11:21)

... а почему "никаким" будет контур на прихожую и кухню и чем это грозит по большому счету?
Циркуляция в контуре, как известно, определяется
1.высотой центра охлаждения контура над центром нагрева котла.
2. Разностью температур Т*под./Т*обр. возникающей при этом.
При расчете центра охлаждения контура находится общий для контура, учитывающий охл. прибора и
труб.При расположении ц.охлаждения прибора на уровне ц. нагрева котла -
преимущественно за счет охлаждения труб.Дабы избежать "рецензий"..
..Схемы систем с естественной циркуляции подобны схемам насосной системы отопления. Однако среди них предпочтение отдается схеме с верлхним расположением подающих магистралей, учитывая, что при этом возрастает естественное циркуляционное давление в результате охлаждения воды в сравнительно высоко расположенных магистралях.
...Квартирные системы отполения устраивают так, чтобы хотя бы одна из магистралей прокладывалась под потолком отапливаемых помещений. Тогда необходимое для устойчивой циркуляции естественное давление обеспечивается вследствие охлаждения воды в трубах.
Что же касается охлаждения воды в приборах, то центр охлаждения в них может оказаться не только не выше центра нагревания в котле, но даже ниже его....(Сканави А.Н. Конструирование и расчет систем водяного и воздушного отопления зданий).
А какое "охлаждение" может быть у труб - теплоизоляторов, с коэфф. теплопроводности на уровне дерева / картона, меньшим, чем у стали в ..350 раз?
Потому циркуляция в них, или то, что можно было бы назвать "рабочим режимом", не ожидается...
"Благодаря" и неудачному подключению к подающему стояку самая нагретая вода будет концентрироваться в верхней части этого стояка, при отсутствии охлаждения труб, как выяснили...
Хорошо, если Т* воды будет 70* Но для ТТ котла такие "пожелания" непонятны. Он даст ..сколько даст. Но циркуляции в этом контуре это не поможет. А что будет с ПП трубами - можно только догадываться.
p.s. Потому и надо делать ЕЦ в стали. Для худшего контура это просто необходимо. Верхняя труба может быть и Ду50. Помимо "повышения" центра охлаждения контура, она даст гидравлический плюс - снижение сопротивлений. То же можно сказать и о стояках к радиаторам.