Доброго времени!
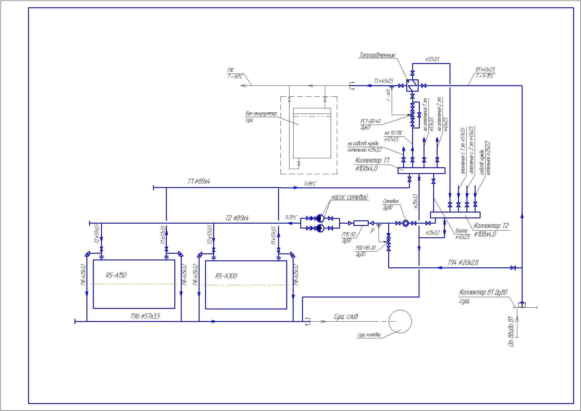
Прилагаю схему автономной котельной: отопление и ГВС. Были паровые котлы - заменили на водяные. Мощность устанавливаемая от.+вент.=300 кВт., ГВС - 150 кВт, грубо.
Но суть вопроса в чем...
Заказчик хочет минимум затрат и соответственно автоматики, но я считаю нужно установить ЧРП на насосы, с сигналами от датчиков давления за насосами (если есть места лучше прошу подсказать). В этом случае я могу уйти от установки расширительного бака, т.к. перепады давления будут регулироваться рабочими режимами насоса, если я правильно понимаю. Да, и на котлах на воде есть предохранительные клапана. Прав ли я?
Так же прошу совет, нужен ли мне регулятор давления на подпиточном водопроводе, либо можно вручную (что как я понимаю не безопасно для стабильности системы), не будет ли он "конфликтовать" с насосами с ЧРП в данной схеме? Получается двойная регулировка.
Кстати, давления в контуре отоплению 1,0-1,5 кгс/см2 думаю хватит? Т.к. водопровод 2,5 кг/см2.
Рассчитываю разумеется на обоснованные +- ответы, спасибо!
Нажмите для просмотра прикрепленного файла
