Здравствуйте господа спецы и главспецы! очень нужна ваша помощь. Нужно смонтировать СО в доме. СО будет двухтрубная с нижним подключением. Информации очень много и я не могу сложить все в кучу. Застряла уже на первом вопросе: где установить котёл. Согласно п. 6.28 ДБН В.2.5-20-2001 его можно установить на кухне. А вот расстояние от строительных конструкций найти не могу. СНиП II-35-76 «Котельные установки» ссылается на НПАОП, а в нём расстояния указываются для отдельно стоящего здания.
Второй вопрос возник с вентиляцией. Спецы газовой службы сказали, что нам нужно будет установить систему естественной вентиляции. Но зачем она нужна если котёл битурбированный и забор воздуха для горения газа берется с улицы через трубу отвода газов сгорания?
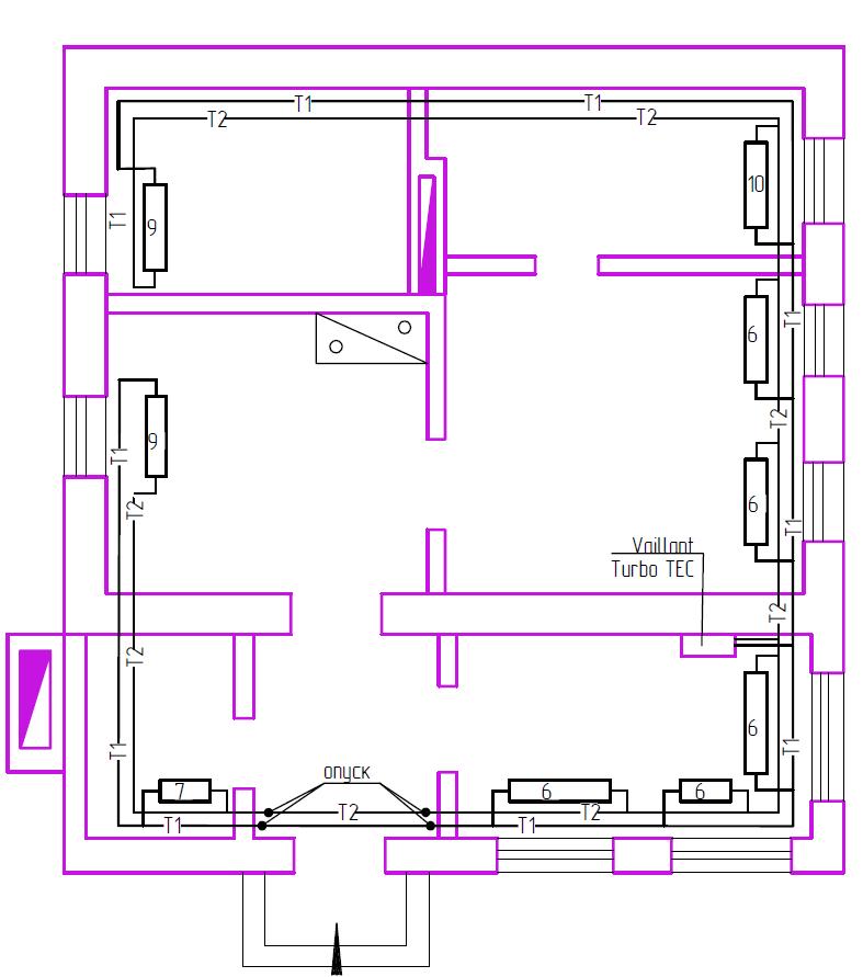
Третий вопрос по подключению самих отопительных приборов. Проектировщик строительной организации сказал, что подача воды должна идти снизу, а обратка – сверху (аксонометрическую схему прилагаю). Это правильно. Хотя чисто логически мне кажется что должно быть наоборот. Диагональное подключение, только подача подключена вверх а обратка вниз. Горячая вода остывая ведь будет опускаться вниз а не подыматься вверх… Как вы думаете будет правильней ?
Ну и самый глобальный вопрос будет ли вообще работать и правильно функционировать данная СО.
Нажмите для просмотра прикрепленного файла
Нажмите для просмотра прикрепленного файла
Нажмите для просмотра прикрепленного файла
Нажмите для просмотра прикрепленного файла
Нажмите для просмотра прикрепленного файла
Нажмите для просмотра прикрепленного файла
